Maison à construire à Vagnas (07150)
Images
Description
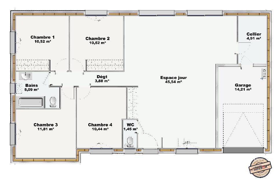
Terra 104 : L'alliance parfaite entre confort, espace et performance en ossature bois
Découvrez Terra 104, une maison de plain-pied de 104 m² au design chaleureux et contemporain, pensée pour offrir à votre famille un cadre de vie à la fois spacieux, lumineux et résolument fonctionnel. Grâce à sa construction en ossature bois, elle combine efficacité énergétique, bien-être intérieur et esthétisme naturel.
Un vaste espace de vie lumineux de 45,54 m²
Au coeur de Terra 104 se trouve un espace jour généreux de 45,54 m², baigné de lumière grâce à ses larges ouvertures. Cet espace convivial devient rapidement le centre des moments partagés : repas animés, soirées en famille, moments de détente... tout y trouve naturellement sa place.
Ouvert, accueillant et parfaitement structuré, il crée une atmosphère chaleureuse où il fait bon vivre chaque jour.
Quatre chambres pour le confort de toute la famille
Pensées comme de véritables cocons, les quatre chambres offrent à chaque membre de la famille son espace d'intimité. Qu'il s'agisse d'une chambre parentale, d'espaces pour les enfants ou d'une pièce polyvalente, chacun y profite d'un environnement calme et ressourçant.
Des espaces fonctionnels qui simplifient le quotidien
Terra 104 mise sur la praticité pour vous offrir une vie plus facile et mieux organisée :
un cellier idéal pour le rangement et la gestion du quotidien,
un garage intégré pour stationner en toute sécurité,
une salle de bains fonctionnelle, adaptée à toute la famille,
un dégagement central pour une circulation fluide dans toute la maison,
des toilettes séparées pour un confort optimal.
Chaque détail a été soigneusement pensé pour créer un intérieur à la fois accueillant, moderne et fonctionnel.
Logement susceptibles de vous intéresser
Nous vous proposons de découvrir aussi cette sélection de logements situés à moins de 10km de Vagnas et qui seraient susceptibles de vous intéresser.
Saint-Sauveur-de-Cruzières
TERRAINA vendre Ardèche – Saint-Sauveur-De-CruzièresTerrain constructible avec partie avant plate et arrière en friche pour une superficie totale de 3 150 m², dans un environnement très calme et sans vis à vis. Les raccordements d’eau, EDF, tout-à-l’égout et télécom se situent à proximité de la propriété.De plus deux parcelles de bois non-attenantes (à proximité) pour une contenance suplémentaire de 1 600 m².Plus de renseignements sur notre site Le TUC Immobilier Saint-Ambroix – Réf 92761
Barjac
TERRAINFiche N°Id-TCT177604 : BARJAC Fiche BC177604 : Barjac, secteur 2 min ? pied du centre vi, Terrain ? b?tir – Vue : Vue dominante – – Equipements annexes : – chauffage : Aucun – Plus d’informations disponibles sur demande… – Mentions légales : Proposé à la vente à 65000 Euros (honoraires à la charge du vendeur) – Affaire suivie par Mme Solweig ASTRUC (Agent immobilier – Responsable) – Reseau Immo-Diffusion Les Mages – Pour plus d’informations, contactez notre secrétariat au (Numéro supprimé) (Appel gratuit ou prix d’une communication locale)
Barjac
TERRAIN🏡 À Barjac, superbe terrain à bâtir de plus de 1800 m²Situé dans un quartier résidentiel, calme et recherché, ce magnifique terrain entièrement clos par des murs et murets en pierre offre un cadre exceptionnel et beaucoup de charme.Vous profiterez d’une belle vue dégagée sur les champs de lavande, un environnement paisible et un cadre naturel préservé.🔹 Surface généreuse de + de 1800 m²🔹 Terrain clos sur les 4 côtés🔹 Quartier résidentiel et tranquille🔹 Vue imprenable sur les champs de lavande🔹 Assainissement autonome à prévoir🔹 Viabilisation en bordureJe suis à votre disposition pour étudier votre projet de construction avec Maisons France Confort et vous accompagner dans toutes les étapes.📞 Caroline – (Numéro supprimé)
Barjac
TERRAIN ET MAISON🏡 Villa de plain-pied de 107 m² – Style ultra contemporain & toiture plateLaissez-vous séduire par cette villa de plain-pied de 107 m² au design résolument moderne, avec toiture plate et lignes épurées, pensée pour un mode de vie confortable et lumineux.🛋️ Des espaces bien définis et ouverts sur l’extérieurLa maison s’organise autour d’un hall d’entrée baigné de lumière, qui fait le lien entre les deux zones principales :Espace jour :Une grande pièce de vie moderne avec cuisine ouverte,Salon et salle à manger,Un cellier fonctionnel attenant à la cuisine.Espace nuit :Une suite parentale avec dressing et salle d’eau,Deux chambres confortables,Une salle de bain indépendante,Un deuxième WC séparé.💡 Depuis l’entrée, vous bénéficiez d’une triple vue : sur le séjour, le jardin et la partie nuit.Un espace de travail y est également intégré, parfait pour le télétravail ou les devoirs des enfants.🔧 Prestations & finitions de qualitéArchitecture cubique avec toiture terrasseVolumes lumineux et bien agencésPlans personnalisables selon vos besoins📞 Contactez Caroline au (Numéro supprimé)Construisons ensemble votre maison de demain !
Barjac
TERRAIN ET MAISON🏡 Villa contemporaine de 140 m² – Élégance, confort et modernitéDécouvrez cette magnifique villa contemporaine d’environ 140 m², alliant design moderne et fonctionnalité.Pensée pour le confort de toute la famille, elle offre des espaces lumineux et bien agencés.🛏️ Agencement intérieur4 chambres, dont une suite parentale avec salle d’eau privative,Deux salles d’eau supplémentaires,Deux WC indépendants,Un vaste espace de vie de plus de 60 m², convivial et baigné de lumière,Un cellier et une buanderie, pour un rangement optimal,Une terrasse couverte sur le côté, idéale pour profiter de l’extérieur en toute saison.⚙️ Prestations et finitionsChauffage gainable par pompe à chaleur (système Shogun),Menuiseries aluminium coloris RAL 7016,Volets roulants motorisés et centralisés avec sonde d’ensoleillement,Carrelage sur toute la surface,Salles de bains entièrement équipées,Possibilité de bardage bois, selon les autorisations d’urbanisme.🔒 Sécurité et garantiesContrat de Construction de Maison Individuelle (CCMI),Garantie prix, délais et livraison,Assurance dommage-ouvrage incluse,Maison conforme aux normes en vigueur (RT et réglementation actuelle).
Barjac
TERRAIN ET MAISON🏡 Une villa agréable, lumineuse et résolument contemporaineLaissez-vous séduire par cette villa à l’architecture élégante et moderne.Dans la pointe du L, un vaste espace de vie baigné de lumière s’ouvre naturellement sur la cuisine, la terrasse et le jardin, créant un lieu convivial, idéal pour partager des moments en famille ou entre amis.La partie nuit se compose de trois belles chambres, accompagnées de deux salles d’eau, d’un dressing et d’un WC indépendant, offrant confort et fonctionnalité au quotidien.Les menuiseries anthracite, le garage à toit plat et les châssis longs soulignent le style contemporain de cette maison, lui conférant une allure moderne et raffinée.✨ Contactez-nous dès maintenant : dessinons ensemble votre future villa !
Barjac
TERRAIN ET MAISON✨ Une bastide au charme traditionnel, sublimée par une touche contemporaine ✨Cette villa de 179 m² conjugue authenticité et modernité.👉 Au rez-de-chausséeUn vaste espace de vie de plus de 70 m² baigné de lumière, avec sa cuisine ouverte et conviviale.Un cellier attenant pour plus de praticité, communiquant directement avec le garage.Côté garage, une terrasse couverte a été pensée pour profiter de l’extérieur en toutes saisons.Une spacieuse suite parentale avec salle d’eau et dressing, ouverte également sur une terrasse couverte.👉 À l’étage4 chambres déjà créées, avec la possibilité d’une cinquième.Un espace détente pensé comme un petit salon où enfants, ados ou invités peuvent se retrouver, discuter ou travailler en toute autonomie.2 salles de bain et un troisième WC complètent cet étage.👉 Confort & performanceMaison conforme à la RE2020.Chauffage par pompe à chaleur gainable avec programmateur.Volets roulants motorisés, centralisés et programmables pour un confort optimal.👉 Les garanties Maisons France ConfortPrix ferme et définitif.Respect des délais.Assurance dommage-ouvrage, garanties décennales, biennales et de bon fonctionnement.🔑 Choisir Maisons France Confort, c’est la sérénité d’un projet mené à terme, dans le respect de vos envies et de votre budget.CAROLINE AU (Numéro supprimé)
Vagnas
TERRAIN ET MAISONTerra 104 : L’alliance parfaite entre confort, espace et performance en ossature boisDécouvrez Terra 104, une maison de plain-pied de 104 m² au design chaleureux et contemporain, pensée pour offrir à votre famille un cadre de vie à la fois spacieux, lumineux et résolument fonctionnel. Grâce à sa construction en ossature bois, elle combine efficacité énergétique, bien-être intérieur et esthétisme naturel.Un vaste espace de vie lumineux de 45,54 m²Au coeur de Terra 104 se trouve un espace jour généreux de 45,54 m², baigné de lumière grâce à ses larges ouvertures. Cet espace convivial devient rapidement le centre des moments partagés : repas animés, soirées en famille, moments de détente… tout y trouve naturellement sa place.Ouvert, accueillant et parfaitement structuré, il crée une atmosphère chaleureuse où il fait bon vivre chaque jour.Quatre chambres pour le confort de toute la famillePensées comme de véritables cocons, les quatre chambres offrent à chaque membre de la famille son espace d’intimité. Qu’il s’agisse d’une chambre parentale, d’espaces pour les enfants ou d’une pièce polyvalente, chacun y profite d’un environnement calme et ressourçant.Des espaces fonctionnels qui simplifient le quotidienTerra 104 mise sur la praticité pour vous offrir une vie plus facile et mieux organisée :un cellier idéal pour le rangement et la gestion du quotidien,un garage intégré pour stationner en toute sécurité,une salle de bains fonctionnelle, adaptée à toute la famille,un dégagement central pour une circulation fluide dans toute la maison,des toilettes séparées pour un confort optimal.Chaque détail a été soigneusement pensé pour créer un intérieur à la fois accueillant, moderne et fonctionnel.
Barjac
TERRAIN ET MAISONDécouvrez cette élégante maison de plain-pied de 75 m², conçue pour allier confort et fonctionnalité. Ses trois chambres accueillantes, son vaste espace de vie baigné de lumière et son agencement parfaitement optimisé créent un lieu de vie agréable au quotidien.Réalisée en ossature bois, elle bénéficie d’une isolation remarquable, vous offrant une maison économe en énergie et respectueuse de l’environnement. Grâce à la préfabrication, le montage est rapide et précis, tandis que le bois apporte une atmosphère douce et naturelle. Une maison chaleureuse, moderne et durable, pensée pour votre bien-être.Contactez moi pour votre projet au (Numéro supprimé)
L’actualité immobilière à Vagnas
27/11/2023
02/11/2023
30/10/2023
20/10/2023
16/10/2023
16/10/2023