Maison à construire à Asfeld (08190)
Images
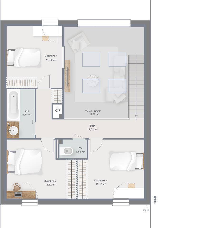
Description
Maison neuve de 6 pièces (122 m²) à vendre à Asfeld.
La maison propose quatre chambres dont une suite parentale (avec salle d'eau et dressing), une salle de bains, une cuisine ouverte sur la pièce de vie , et un cellier.
La construction traditionnelle aux normes RE2020 de la maison est réalisée en brique et l'ensemble des matériaux utilisés sont de qualité afin de vous assurer un investissement durable.
Terrain de 1350m2 à Asfeld parfaitement plat et idéalement situé au calme et proche de toutes les commodités.
Asfeld est une commune recherchée pour son axe direct, ses commodités (écoles jusqu'au collège, commerces, nombreuses associations sportives et culturelles pour la famille) la commune est proche de Guignicourt, Brienne Sur Aisne, Poilcourt Sydney, Avaux, Vieux Lès Asfeld, Houldicourt, Roizy et Reims.
Pour plus de renseignements vous pouvez me contacter , Nicolas GUILLAUME de l'agence Maisons France Confort de Cormontreuil au (Numéro supprimé)
Logement susceptibles de vous intéresser
Nous vous proposons de découvrir aussi cette sélection de logements situés à moins de 10km de Asfeld et qui seraient susceptibles de vous intéresser.

Asfeld
TERRAINTerrain de 1350m2 à Asfeld parfaitement plat et idéalement situé au calme et proche de toutes les commodités.Asfeld est une commune recherchée pour son axe direct, ses commodités (écoles jusqu’au collège, commerces, nombreuses associations sportives et culturelles pour la famille) la commune est proche de Guignicourt, Brienne Sur Aisne, Poilcourt Sydney, Avaux, Vieux Lès Asfeld, Houldicourt, Roizy et Reims.Pour plus de renseignements vous pouvez me contacter , Nicolas GUILLAUME de l’agence Maisons France Confort de Cormontreuil au (Numéro supprimé)

Asfeld
TERRAIN ET MAISONEn vente à Asfeld maison neuve de plain-pied de 85m2 avec 3 chambres. Le modèle présenté est Open Nord PP GI 85 design, il est équipé d’une pièce de vie de 43m² ouverte sur la cuisine, d’une salle de bain avec douche ou baignoire, un wc séparé, 3 chambres avec placards, un cellier et un garage. Il est possible de personnaliser ces plans afin qu’ils répondent parfaitement à vos attentes, en ajoutant par exemple une suite parentale avec dressing, ou encore en aménageant le garage en pièce supplémentaire.La construction traditionnelle aux normes RE2020 de la maison est réalisée en brique et l’ensemble des matériaux utilisés sont de qualité afin de vous assurer un investissement durable.Terrain de 1350m2 à Asfeld parfaitement plat et idéalement situé au calme et proche de toutes les commodités.Asfeld est une commune recherchée pour son axe direct, ses commodités (écoles jusqu’au collège, commerces, nombreuses associations sportives et culturelles pour la famille) la commune est proche de Guignicourt, Brienne Sur Aisne, Poilcourt Sydney, Avaux, Vieux Lès Asfeld, Houldicourt, Roizy et Reims.Pour plus de renseignements vous pouvez me contacter , Nicolas GUILLAUME de l’agence Maisons France Confort de Cormontreuil au (Numéro supprimé)

Asfeld
TERRAIN ET MAISONMaison neuve de 90m² avec 3 chambres à Asfeld. Le modèle de maison qui vous est présenté est Open Nord PP L GA accès nord 90 so tradition. Architecture de style traditionnelle offrant 90m2, l’espace intérieur comprend une pièce de vie ouverte sur la cuisine, 3 chambres avec placards, une salle de bains, un cellier et un garage. Il est possible de personnaliser ces plans afin qu’ils répondent parfaitement à vos attentesLa construction traditionnelle aux normes RE2020 de la maison est réalisée en brique et l’ensemble des matériaux utilisés sont de qualité afin de vous assurer un investissement durable.Terrain de 1350m2 à Asfeld parfaitement plat et idéalement situé au calme et proche de toutes les commodités.Asfeld est une commune recherchée pour son axe direct, ses commodités (écoles jusqu’au collège, commerces, nombreuses associations sportives et culturelles pour la famille) la commune est proche de Guignicourt, Brienne Sur Aisne, Poilcourt Sydney, Avaux, Vieux Lès Asfeld, Houldicourt, Roizy et Reims.Pour plus de renseignements vous pouvez me contacter , Nicolas GUILLAUME de l’agence Maisons France Confort de Cormontreuil au (Numéro supprimé)

Asfeld
TERRAIN ET MAISONÀ vendre à Asfeld une maison neuve individuelle de 90m² avec 4 chambres. Le modèle de maison est Open CA GA 90 design, il est composé d’une pièce de vie de 42m² ouverte sur la cuisine, 3 chambres avec placards dont une avec un dressing, un bureau au rez-de-chaussée, une salle de bain avec douche ou baignoire, deux wc (dont un au rez-de-chaussée), un cellier et un garage. Il est possible de personnaliser ces plans afin qu’ils répondent parfaitement à vos attentes.La construction traditionnelle aux normes RE2020 de la maison est réalisée en brique et l’ensemble des matériaux utilisés sont de qualité afin de vous assurer un investissement durable.Terrain de 1350m2 à Asfeld parfaitement plat et idéalement situé au calme et proche de toutes les commodités.Asfeld est une commune recherchée pour son axe direct, ses commodités (écoles jusqu’au collège, commerces, nombreuses associations sportives et culturelles pour la famille) la commune est proche de Guignicourt, Brienne Sur Aisne, Poilcourt Sydney, Avaux, Vieux Lès Asfeld, Houldicourt, Roizy et Reims.Pour plus de renseignements vous pouvez me contacter , Nicolas GUILLAUME de l’agence Maisons France Confort de Cormontreuil au (Numéro supprimé)

Asfeld
TERRAIN ET MAISONMaison neuve avec 4 chambres et 97m² habitables à vendre à Asfeld.Le modèle présenté est Open Nord R+1 GI 97 trendy. Cette maison neuve individuelle est composée d’un espace de vie avec cuisine ouverte de 42m2, une salle de bain avec douche et baignoire, deux wc dont un au rez-de-chaussée, 4 chambres, et un garage. Il est possible de personnaliser ces plans afin qu’ils répondent parfaitement à vos attentes.La construction traditionnelle aux normes RE2020 de la maison est réalisée en brique et l’ensemble des matériaux utilisés sont de qualité afin de vous assurer un investissement durable.Terrain de 1350m2 à Asfeld parfaitement plat et idéalement situé au calme et proche de toutes les commodités.Asfeld est une commune recherchée pour son axe direct, ses commodités (écoles jusqu’au collège, commerces, nombreuses associations sportives et culturelles pour la famille) la commune est proche de Guignicourt, Brienne Sur Aisne, Poilcourt Sydney, Avaux, Vieux Lès Asfeld, Houldicourt, Roizy et Reims.Pour plus de renseignements vous pouvez me contacter , Nicolas GUILLAUME de l’agence Maisons France Confort de Cormontreuil au (Numéro supprimé)

Asfeld
TERRAIN ET MAISONÀ Asfeld, maison neuve (normes RE 2020) de 90m2 avec patio.Maison de construction traditionnelle (matériaux de qualité, ossature en brique) de 3 chambres (possibilité d’une quatrième). Le modèle présenté est le modèle Open Nord ETG L GA accès Sud 90 so chic d’une surface habitable de 90m2 et compte une pièce de vie ouverte sur la cuisine, une salle de bain, 3 chambres, avec espace pour les placards, deux wc, un cellier et un garage. Il est possible de personnaliser ces plans afin qu’ils répondent parfaitement à vos attentes.Terrain de 1350m2 à Asfeld parfaitement plat et idéalement situé au calme et proche de toutes les commodités.Asfeld est une commune recherchée pour son axe direct, ses commodités (écoles jusqu’au collège, commerces, nombreuses associations sportives et culturelles pour la famille) la commune est proche de Guignicourt, Brienne Sur Aisne, Poilcourt Sydney, Avaux, Vieux Lès Asfeld, Houldicourt, Roizy et Reims.Pour plus de renseignements vous pouvez me contacter , Nicolas GUILLAUME de l’agence Maisons France Confort de Cormontreuil au (Numéro supprimé)

Asfeld
TERRAIN ET MAISONMaison de 120m² de plain-pied à acheter à Asfeld.Le modèle de maison qui vous est présenté est Family 120 GA, elle est composée d’une pièce de vie ouverte sur la cuisine, une salle de bains (avec douche et baignoire), deux wc, un espace nuit comprenant 4 chambres avec placards (dont une chambre twin et une suite parentale avec dressing et salle d’eau privative), un cellier et un garage. Il est possible de personnaliser ces plans afin qu’ils répondent parfaitement à vos attentes.La construction traditionnelle aux normes RE2020 de la maison est réalisée en brique et l’ensemble des matériaux utilisés sont de qualité afin de vous assurer un investissement durable.Terrain de 1350m2 à Asfeld parfaitement plat et idéalement situé au calme et proche de toutes les commodités.Asfeld est une commune recherchée pour son axe direct, ses commodités (écoles jusqu’au collège, commerces, nombreuses associations sportives et culturelles pour la famille) la commune est proche de Guignicourt, Brienne Sur Aisne, Poilcourt Sydney, Avaux, Vieux Lès Asfeld, Houldicourt, Roizy et Reims.Pour plus de renseignements vous pouvez me contacter , Nicolas GUILLAUME de l’agence Maisons France Confort de Cormontreuil au (Numéro supprimé)

Asfeld
TERRAIN ET MAISONMaison de 111m² de plain-pied en L à acheter à Asfeld.Le modèle de maison qui vous est présenté est Lumina 106 GA, elle est composée d’une pièce de vie ouverte sur la cuisine, une salle de bains (avec douche et baignoire), deux wc, un espace nuit comprenant 4 chambres avec placards (dont une suite parentale avec dressing et salle d’eau privative), un cellier et un garage. Il est possible de personnaliser ces plans afin qu’ils répondent parfaitement à vos attentes.La construction traditionnelle aux normes RE2020 de la maison est réalisée en brique et l’ensemble des matériaux utilisés sont de qualité afin de vous assurer un investissement durable.Terrain de 1350m2 à Asfeld parfaitement plat et idéalement situé au calme et proche de toutes les commodités.Asfeld est une commune recherchée pour son axe direct, ses commodités (écoles jusqu’au collège, commerces, nombreuses associations sportives et culturelles pour la famille) la commune est proche de Guignicourt, Brienne Sur Aisne, Poilcourt Sydney, Avaux, Vieux Lès Asfeld, Houldicourt, Roizy et Reims.Pour plus de renseignements vous pouvez me contacter , Nicolas GUILLAUME de l’agence Maisons France Confort de Cormontreuil au (Numéro supprimé)

Asfeld
TERRAIN ET MAISONÀ Asfeld maison neuve de 125 m² habitables et 4 chambres. Le modèle de maison est Inova 125. Conception contemporaine pour ce projet de maison à toit à 4 pans composé d’un espace de vie ouvert sur la cuisine, une salle d’eau, un espace nuit comprenant 4 chambres avec placards (dont une suite parentale au rez-de-chaussée avec salle d’eau privative et dressing), un cellier et un garage. La construction traditionnelle aux normes RE2020 de la maison est réalisée en brique et l’ensemble des matériaux utilisés sont de qualité afin de vous assurer un investissement durable.Terrain de 1350m2 à Asfeld parfaitement plat et idéalement situé au calme et proche de toutes les commodités.Asfeld est une commune recherchée pour son axe direct, ses commodités (écoles jusqu’au collège, commerces, nombreuses associations sportives et culturelles pour la famille) la commune est proche de Guignicourt, Brienne Sur Aisne, Poilcourt Sydney, Avaux, Vieux Lès Asfeld, Houldicourt, Roizy et Reims.Pour plus de renseignements vous pouvez me contacter , Nicolas GUILLAUME de l’agence Maisons France Confort de Cormontreuil au (Numéro supprimé)
L’actualité immobilière à Asfeld





