Maison à construire à Juniville (08310)
Images
Description
À acheter à Juniville, maison neuve de 150 m² habitables bénéficiant de 5 chambres.
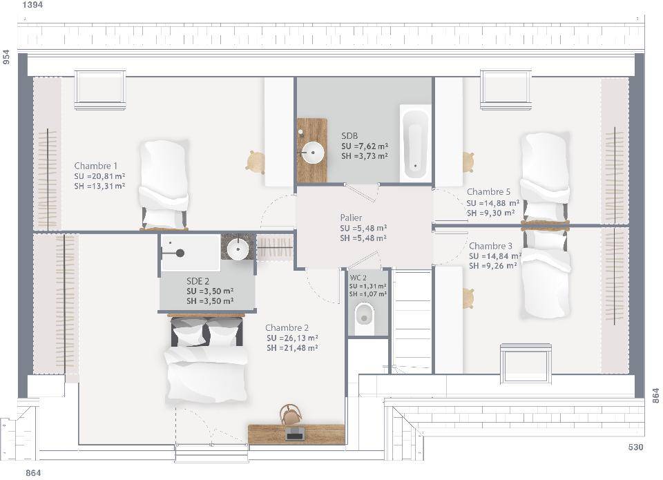
Le modèle de maison qui vous est présenté est Lumina 150 R+1 GI. Conception contemporaine pour ce projet de maison qui comprend 5 chambres avec espace pour les placards dont deux suites parentales avec dressing et salle d'eau privative (une au rez-de-chaussée), deux wc, une salle de bains, une grande pièce de vie ouverte sur la cuisine, un cellier et un garage.
La construction traditionnelle aux normes RE2020 de la maison est réalisée en brique et l'ensemble des matériaux utilisés sont de qualité afin de vous assurer un investissement durable.
Terrain constructible de 650m2 entièrement viabilisé à Juniville parfaitement plat et idéalement situé au calme et proche de toutes les commodités.
Juniville est une commune recherchée pour son axe direct, ses commodités (écoles jusqu'au collège, commerces et nombreuses associations sportives et culturelles pour la famille) et sa proximité avec Reims, Charleville, Warmeriville, Le Châtelet sur Retourne, Bergnicourt, Bazancourt, Tagnon et Rethel.
Pour plus de renseignements vous pouvez me contacter , Nicolas GUILLAUME de l'agence Maisons France Confort de Cormontreuil au (Numéro supprimé)
Logement susceptibles de vous intéresser
Nous vous proposons de découvrir aussi cette sélection de logements situés à moins de 10km de Juniville et qui seraient susceptibles de vous intéresser.

Alincourt
TERRAINTerrain constructible de 850m2 à Alincourt parfaitement plat et idéalement situé au calme et proche de toutes les commodités.Alincourt est une commune recherchée pour son axe direct, ses commodités à deux pas (écoles jusqu’au collège, commerces et nombreuses associations sportives et culturelles pour la famille) et sa proximité avec Reims, Charleville, Warmeriville, Le Châtelet sur Retourne, Bergnicourt, Bazancourt, Tagnon, Neuflize, Juniville, Bazancourt, Boult sur Suippe, l’Ecaille et Rethel.Pour plus de renseignements vous pouvez me contacter , Nicolas GUILLAUME de l’agence Maisons France Confort de Cormontreuil au (Numéro supprimé)

Juniville
TERRAINTerrain constructible de 650m2 entièrement viabilisé à Juniville parfaitement plat et idéalement situé au calme et proche de toutes les commodités.Juniville est une commune recherchée pour son axe direct, ses commodités (écoles jusqu’au collège, commerces et nombreuses associations sportives et culturelles pour la famille) et sa proximité avec Reims, Charleville, Warmeriville, Le Châtelet sur Retourne, Bergnicourt, Bazancourt, Tagnon et Rethel.Pour plus de renseignements vous pouvez me contacter , Nicolas GUILLAUME de l’agence Maisons France Confort de Cormontreuil au (Numéro supprimé)

Alincourt
TERRAIN ET MAISONEn vente à Alincourt maison neuve de plain-pied de 85m2 avec 3 chambres. Le modèle présenté est Open Nord PP GI 85 design, il est équipé d’une pièce de vie de 43m² ouverte sur la cuisine, d’une salle de bain avec douche ou baignoire, un wc séparé, 3 chambres avec placards, un cellier et un garage. Il est possible de personnaliser ces plans afin qu’ils répondent parfaitement à vos attentes, en ajoutant par exemple une suite parentale avec dressing, ou encore en aménageant le garage en pièce supplémentaire.La construction traditionnelle aux normes RE2020 de la maison est réalisée en brique et l’ensemble des matériaux utilisés sont de qualité afin de vous assurer un investissement durable.Terrain constructible de 850m2 à Alincourt parfaitement plat et idéalement situé au calme et proche de toutes les commodités.Alincourt est une commune recherchée pour son axe direct, ses commodités à deux pas (écoles jusqu’au collège, commerces et nombreuses associations sportives et culturelles pour la famille) et sa proximité avec Reims, Charleville, Warmeriville, Le Châtelet sur Retourne, Bergnicourt, Bazancourt, Tagnon, Neuflize, Juniville, Bazancourt, Boult sur Suippe, l’Ecaille et Rethel.Pour plus de renseignements vous pouvez me contacter , Nicolas GUILLAUME de l’agence Maisons France Confort de Cormontreuil au (Numéro supprimé)

Alincourt
TERRAIN ET MAISONÀ Alincourt, grande maison neuve.La maison présentée sur ce terrain est Ultima 120. Architecture contemporaine pour cette maison à toit à 4 pans. Dans 120m2, l’intérieur est constitué d’une pièce de vie ouverte sur la cuisine, 4 chambres avec placards (dont une suite parentale avec salle d’eau privative et dressing) une salle de bains, un cellier et un garage. La construction traditionnelle aux normes RE2020 de la maison est réalisée en brique et l’ensemble des matériaux utilisés sont de qualité afin de vous assurer un investissement durable.Terrain constructible de 850m2 à Alincourt parfaitement plat et idéalement situé au calme et proche de toutes les commodités.Alincourt est une commune recherchée pour son axe direct, ses commodités à deux pas (écoles jusqu’au collège, commerces et nombreuses associations sportives et culturelles pour la famille) et sa proximité avec Reims, Charleville, Warmeriville, Le Châtelet sur Retourne, Bergnicourt, Bazancourt, Tagnon, Neuflize, Juniville, Bazancourt, Boult sur Suippe, l’Ecaille et Rethel.Pour plus de renseignements vous pouvez me contacter , Nicolas GUILLAUME de l’agence Maisons France Confort de Cormontreuil au (Numéro supprimé)

Alincourt
TERRAIN ET MAISONMaison neuve de 6 pièces (122 m²) à vendre à Alincourt.La maison propose quatre chambres dont une suite parentale (avec salle d’eau et dressing), une salle de bains, une cuisine ouverte sur la pièce de vie , et un cellier.La construction traditionnelle aux normes RE2020 de la maison est réalisée en brique et l’ensemble des matériaux utilisés sont de qualité afin de vous assurer un investissement durable.Terrain constructible de 850m2 à Alincourt parfaitement plat et idéalement situé au calme et proche de toutes les commodités.Alincourt est une commune recherchée pour son axe direct, ses commodités à deux pas (écoles jusqu’au collège, commerces et nombreuses associations sportives et culturelles pour la famille) et sa proximité avec Reims, Charleville, Warmeriville, Le Châtelet sur Retourne, Bergnicourt, Bazancourt, Tagnon, Neuflize, Juniville, Bazancourt, Boult sur Suippe, l’Ecaille et Rethel.Pour plus de renseignements vous pouvez me contacter , Nicolas GUILLAUME de l’agence Maisons France Confort de Cormontreuil au (Numéro supprimé)

Alincourt
TERRAIN ET MAISONÀ acheter à Alincourt : maison de plain-pied de 100m2 habitables avec 4 chambres et un garage.La maison neuve présentée sur ce terrain est Open PP GA 4 chambres design 100m². Elle est composée d’une pièce de vie ouverte sur la cuisine de 40m², d’une salle de bains avec baignoire et douche, un wc séparé, 4 chambres avec espace pour les placards, et un garage avec un accès par le cellier. Il est possible de personnaliser ces plans afin qu’ils répondent parfaitement à vos attentes, en ajoutant par exemple une suite parentale avec dressing, ou encore en aménageant le garage en pièce supplémentaire.La construction traditionnelle aux normes RE2020 de la maison est réalisée en brique et l’ensemble des matériaux utilisés sont de qualité afin de vous assurer un investissement durable.Terrain constructible de 850m2 à Alincourt parfaitement plat et idéalement situé au calme et proche de toutes les commodités.Alincourt est une commune recherchée pour son axe direct, ses commodités à deux pas (écoles jusqu’au collège, commerces et nombreuses associations sportives et culturelles pour la famille) et sa proximité avec Reims, Charleville, Warmeriville, Le Châtelet sur Retourne, Bergnicourt, Bazancourt, Tagnon, Neuflize, Juniville, Bazancourt, Boult sur Suippe, l’Ecaille et Rethel.Pour plus de renseignements vous pouvez me contacter , Nicolas GUILLAUME de l’agence Maisons France Confort de Cormontreuil au (Numéro supprimé)

Alincourt
TERRAIN ET MAISONÀ vendre à Alincourt une maison neuve individuelle de 90m² avec 4 chambres. Le modèle de maison est Open CA GA 90 design, il est composé d’une pièce de vie de 42m² ouverte sur la cuisine, 3 chambres avec placards dont une avec un dressing, un bureau au rez-de-chaussée, une salle de bain avec douche ou baignoire, deux wc (dont un au rez-de-chaussée), un cellier et un garage. Il est possible de personnaliser ces plans afin qu’ils répondent parfaitement à vos attentes.La construction traditionnelle aux normes RE2020 de la maison est réalisée en brique et l’ensemble des matériaux utilisés sont de qualité afin de vous assurer un investissement durable.Terrain constructible de 850m2 à Alincourt parfaitement plat et idéalement situé au calme et proche de toutes les commodités.Alincourt est une commune recherchée pour son axe direct, ses commodités à deux pas (écoles jusqu’au collège, commerces et nombreuses associations sportives et culturelles pour la famille) et sa proximité avec Reims, Charleville, Warmeriville, Le Châtelet sur Retourne, Bergnicourt, Bazancourt, Tagnon, Neuflize, Juniville, Bazancourt, Boult sur Suippe, l’Ecaille et Rethel.Pour plus de renseignements vous pouvez me contacter , Nicolas GUILLAUME de l’agence Maisons France Confort de Cormontreuil au (Numéro supprimé)

Alincourt
TERRAIN ET MAISONMaison neuve avec 4 chambres et 98m² habitables à vendre à Alincourt.Le modèle présenté est Open Nord R+1 GA 98 trendy. Cette maison neuve individuelle est composée d’un espace de vie avec cuisine ouverte, une salle de bain avec douche et baignoire, deux wc dont un au rez-de-chaussée, 4 chambres avec placards (dont une au rez-de-chaussée, ainsi qu’une équipée d’un dressing à l’étage), un cellier et un garage. Il est possible de personnaliser ces plans afin qu’ils répondent parfaitement à vos attentes.La construction traditionnelle aux normes RE2020 de la maison est réalisée en brique et l’ensemble des matériaux utilisés sont de qualité afin de vous assurer un investissement durable.Terrain constructible de 850m2 à Alincourt parfaitement plat et idéalement situé au calme et proche de toutes les commodités.Alincourt est une commune recherchée pour son axe direct, ses commodités à deux pas (écoles jusqu’au collège, commerces et nombreuses associations sportives et culturelles pour la famille) et sa proximité avec Reims, Charleville, Warmeriville, Le Châtelet sur Retourne, Bergnicourt, Bazancourt, Tagnon, Neuflize, Juniville, Bazancourt, Boult sur Suippe, l’Ecaille et Rethel.Pour plus de renseignements vous pouvez me contacter , Nicolas GUILLAUME de l’agence Maisons France Confort de Cormontreuil au (Numéro supprimé)

Alincourt
TERRAIN ET MAISONÀ Alincourt, maison neuve (normes RE 2020) de 90m2 avec patio.Maison de construction traditionnelle (matériaux de qualité, ossature en brique) de 3 chambres (possibilité d’une quatrième). Le modèle présenté est le modèle Open Nord ETG L GA accès Sud 90 so chic d’une surface habitable de 90m2 et compte une pièce de vie ouverte sur la cuisine, une salle de bain, 3 chambres, avec espace pour les placards, deux wc, un cellier et un garage. Il est possible de personnaliser ces plans afin qu’ils répondent parfaitement à vos attentes.Terrain constructible de 850m2 à Alincourt parfaitement plat et idéalement situé au calme et proche de toutes les commodités.Alincourt est une commune recherchée pour son axe direct, ses commodités à deux pas (écoles jusqu’au collège, commerces et nombreuses associations sportives et culturelles pour la famille) et sa proximité avec Reims, Charleville, Warmeriville, Le Châtelet sur Retourne, Bergnicourt, Bazancourt, Tagnon, Neuflize, Juniville, Bazancourt, Boult sur Suippe, l’Ecaille et Rethel.Pour plus de renseignements vous pouvez me contacter , Nicolas GUILLAUME de l’agence Maisons France Confort de Cormontreuil au (Numéro supprimé)
L’actualité immobilière à Juniville





