Maison à construire à Vouziers (08400)
Images
Description
À Vouziers, maison neuve de 115m² avec 4 chambres à acheter.
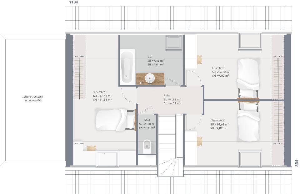
Le modèle de maison qui vous est présenté est Horizon 115 GA. L'intérieur est constitué d'un espace de vie ouvert sur la cuisine, une salle de bains, deux wc, 4 chambres (dont une suite parentale avec dressing et salle d'eau privative au rez-de-chaussée), et un cellier. La maison dispose également d'un garage accolé communiquant par la maison via le cellier.
La construction traditionnelle aux normes RE2020 de la maison est réalisée en brique et l'ensemble des matériaux utilisés sont de qualité afin de vous assurer un investissement durable.
Terrain constructible de 600m2 entièrement viabilisé à Vouziers parfaitement plat et idéalement situé au calme et proche de toutes les commodités.
Vouziers est une commune recherchée pour son axe direct, ses commodités (écoles jusqu'au Lycée, commerces et nombreuses associations sportives et culturelles pour la famille) et sa proximité avec Reims, Charleville, Rethel, Attigny, Monthois, Juniville et Bétheniville.
Pour plus de renseignements vous pouvez me contacter , Nicolas GUILLAUME de l'agence Maisons France Confort de Cormontreuil au (Numéro supprimé)
Logement susceptibles de vous intéresser
Nous vous proposons de découvrir aussi cette sélection de logements situés à moins de 10km de Vouziers et qui seraient susceptibles de vous intéresser.
Vouziers
TERRAINTerrain constructible de 600m2 entièrement viabilisé à Vouziers parfaitement plat et idéalement situé au calme et proche de toutes les commodités.Vouziers est une commune recherchée pour son axe direct, ses commodités (écoles jusqu’au Lycée, commerces et nombreuses associations sportives et culturelles pour la famille) et sa proximité avec Reims, Charleville, Rethel, Attigny, Monthois, Juniville et Bétheniville.Pour plus de renseignements vous pouvez me contacter , Nicolas GUILLAUME de l’agence Maisons France Confort de Cormontreuil au (Numéro supprimé)
Vouziers
TERRAIN ET MAISONEn vente à Vouziers maison neuve de plain-pied de 85m2 avec 3 chambres. Le modèle présenté est Open Nord PP GI 85 design, il est équipé d’une pièce de vie de 43m² ouverte sur la cuisine, d’une salle de bain avec douche ou baignoire, un wc séparé, 3 chambres avec placards, un cellier et un garage. Il est possible de personnaliser ces plans afin qu’ils répondent parfaitement à vos attentes, en ajoutant par exemple une suite parentale avec dressing, ou encore en aménageant le garage en pièce supplémentaire.La construction traditionnelle aux normes RE2020 de la maison est réalisée en brique et l’ensemble des matériaux utilisés sont de qualité afin de vous assurer un investissement durable.Terrain constructible de 600m2 entièrement viabilisé à Vouziers parfaitement plat et idéalement situé au calme et proche de toutes les commodités.Vouziers est une commune recherchée pour son axe direct, ses commodités (écoles jusqu’au Lycée, commerces et nombreuses associations sportives et culturelles pour la famille) et sa proximité avec Reims, Charleville, Rethel, Attigny, Monthois, Juniville et Bétheniville.Pour plus de renseignements vous pouvez me contacter , Nicolas GUILLAUME de l’agence Maisons France Confort de Cormontreuil au (Numéro supprimé)
Vouziers
TERRAIN ET MAISONMaison neuve de 6 pièces (122 m²) à vendre à Vouziers.La maison propose quatre chambres dont une suite parentale (avec salle d’eau et dressing), une salle de bains, une cuisine ouverte sur la pièce de vie , et un cellier.La construction traditionnelle aux normes RE2020 de la maison est réalisée en brique et l’ensemble des matériaux utilisés sont de qualité afin de vous assurer un investissement durable.Terrain constructible de 600m2 entièrement viabilisé à Vouziers parfaitement plat et idéalement situé au calme et proche de toutes les commodités.Vouziers est une commune recherchée pour son axe direct, ses commodités (écoles jusqu’au Lycée, commerces et nombreuses associations sportives et culturelles pour la famille) et sa proximité avec Reims, Charleville, Rethel, Attigny, Monthois, Juniville et Bétheniville.Pour plus de renseignements vous pouvez me contacter , Nicolas GUILLAUME de l’agence Maisons France Confort de Cormontreuil au (Numéro supprimé)
Vouziers
TERRAIN ET MAISONÀ acheter à Vouziers : maison de plain-pied de 100m2 habitables avec 4 chambres et un garage.La maison neuve présentée sur ce terrain est Open PP GA 4 chambres design 100m². Elle est composée d’une pièce de vie ouverte sur la cuisine de 40m², d’une salle de bains avec baignoire et douche, un wc séparé, 4 chambres avec espace pour les placards, et un garage avec un accès par le cellier. Il est possible de personnaliser ces plans afin qu’ils répondent parfaitement à vos attentes, en ajoutant par exemple une suite parentale avec dressing, ou encore en aménageant le garage en pièce supplémentaire.La construction traditionnelle aux normes RE2020 de la maison est réalisée en brique et l’ensemble des matériaux utilisés sont de qualité afin de vous assurer un investissement durable.Terrain constructible de 600m2 entièrement viabilisé à Vouziers parfaitement plat et idéalement situé au calme et proche de toutes les commodités.Vouziers est une commune recherchée pour son axe direct, ses commodités (écoles jusqu’au Lycée, commerces et nombreuses associations sportives et culturelles pour la famille) et sa proximité avec Reims, Charleville, Rethel, Attigny, Monthois, Juniville et Bétheniville.Pour plus de renseignements vous pouvez me contacter , Nicolas GUILLAUME de l’agence Maisons France Confort de Cormontreuil au (Numéro supprimé)
Vouziers
TERRAIN ET MAISONÀ vendre à Vouziers une maison neuve individuelle de 90m² avec 4 chambres. Le modèle de maison est Open CA GA 90 design, il est composé d’une pièce de vie de 42m² ouverte sur la cuisine, 3 chambres avec placards dont une avec un dressing, un bureau au rez-de-chaussée, une salle de bain avec douche ou baignoire, deux wc (dont un au rez-de-chaussée), un cellier et un garage. Il est possible de personnaliser ces plans afin qu’ils répondent parfaitement à vos attentes.La construction traditionnelle aux normes RE2020 de la maison est réalisée en brique et l’ensemble des matériaux utilisés sont de qualité afin de vous assurer un investissement durable.Terrain constructible de 600m2 entièrement viabilisé à Vouziers parfaitement plat et idéalement situé au calme et proche de toutes les commodités.Vouziers est une commune recherchée pour son axe direct, ses commodités (écoles jusqu’au Lycée, commerces et nombreuses associations sportives et culturelles pour la famille) et sa proximité avec Reims, Charleville, Rethel, Attigny, Monthois, Juniville et Bétheniville.Pour plus de renseignements vous pouvez me contacter , Nicolas GUILLAUME de l’agence Maisons France Confort de Cormontreuil au (Numéro supprimé)
Vouziers
TERRAIN ET MAISONMaison neuve avec 4 chambres et 98m² habitables à vendre à Vouziers.Le modèle présenté est Open Nord R+1 GA 98 trendy. Cette maison neuve individuelle est composée d’un espace de vie avec cuisine ouverte, une salle de bain avec douche et baignoire, deux wc dont un au rez-de-chaussée, 4 chambres avec placards (dont une au rez-de-chaussée, ainsi qu’une équipée d’un dressing à l’étage), un cellier et un garage. Il est possible de personnaliser ces plans afin qu’ils répondent parfaitement à vos attentes.La construction traditionnelle aux normes RE2020 de la maison est réalisée en brique et l’ensemble des matériaux utilisés sont de qualité afin de vous assurer un investissement durable.Terrain constructible de 600m2 entièrement viabilisé à Vouziers parfaitement plat et idéalement situé au calme et proche de toutes les commodités.Vouziers est une commune recherchée pour son axe direct, ses commodités (écoles jusqu’au Lycée, commerces et nombreuses associations sportives et culturelles pour la famille) et sa proximité avec Reims, Charleville, Rethel, Attigny, Monthois, Juniville et Bétheniville.Pour plus de renseignements vous pouvez me contacter , Nicolas GUILLAUME de l’agence Maisons France Confort de Cormontreuil au (Numéro supprimé)
Vouziers
TERRAIN ET MAISONÀ Vouziers, maison neuve (normes RE 2020) de 90m2 avec patio.Maison de construction traditionnelle (matériaux de qualité, ossature en brique) de 3 chambres (possibilité d’une quatrième). Le modèle présenté est le modèle Open Nord ETG L GA accès Sud 90 so chic d’une surface habitable de 90m2 et compte une pièce de vie ouverte sur la cuisine, une salle de bain, 3 chambres, avec espace pour les placards, deux wc, un cellier et un garage. Il est possible de personnaliser ces plans afin qu’ils répondent parfaitement à vos attentes.Terrain constructible de 600m2 entièrement viabilisé à Vouziers parfaitement plat et idéalement situé au calme et proche de toutes les commodités.Vouziers est une commune recherchée pour son axe direct, ses commodités (écoles jusqu’au Lycée, commerces et nombreuses associations sportives et culturelles pour la famille) et sa proximité avec Reims, Charleville, Rethel, Attigny, Monthois, Juniville et Bétheniville.Pour plus de renseignements vous pouvez me contacter , Nicolas GUILLAUME de l’agence Maisons France Confort de Cormontreuil au (Numéro supprimé)
Vouziers
TERRAIN ET MAISONMaison de 120m² de plain-pied à acheter à Vouziers.Le modèle de maison qui vous est présenté est Family 120 GA, elle est composée d’une pièce de vie ouverte sur la cuisine, une salle de bains (avec douche et baignoire), deux wc, un espace nuit comprenant 4 chambres avec placards (dont une chambre twin et une suite parentale avec dressing et salle d’eau privative), un cellier et un garage. Il est possible de personnaliser ces plans afin qu’ils répondent parfaitement à vos attentes.La construction traditionnelle aux normes RE2020 de la maison est réalisée en brique et l’ensemble des matériaux utilisés sont de qualité afin de vous assurer un investissement durable.Terrain constructible de 600m2 entièrement viabilisé à Vouziers parfaitement plat et idéalement situé au calme et proche de toutes les commodités.Vouziers est une commune recherchée pour son axe direct, ses commodités (écoles jusqu’au Lycée, commerces et nombreuses associations sportives et culturelles pour la famille) et sa proximité avec Reims, Charleville, Rethel, Attigny, Monthois, Juniville et Bétheniville.Pour plus de renseignements vous pouvez me contacter , Nicolas GUILLAUME de l’agence Maisons France Confort de Cormontreuil au (Numéro supprimé)
Vouziers
TERRAIN ET MAISONMaison neuve de plain-pied en V à vendre à Vouziers de 90m² habitables et 3 chambres. Le modèle présenté est Inova 90, qui profite d’une architecture en V, concept qui offre une belle exposition au soleil. Architecture de style contemporain qui comprend une pièce de vie ouverte sur la cuisine, un espace nuit avec 3 chambres équipées d’espace pour les placards (dont une suite parentale avec dressing et salle d’eau privative), une salle de bains, un cellier et un garage. La construction traditionnelle aux normes RE2020 de la maison est réalisée en brique et l’ensemble des matériaux utilisés sont de qualité afin de vous assurer un investissement durable.Terrain constructible de 600m2 entièrement viabilisé à Vouziers parfaitement plat et idéalement situé au calme et proche de toutes les commodités.Vouziers est une commune recherchée pour son axe direct, ses commodités (écoles jusqu’au Lycée, commerces et nombreuses associations sportives et culturelles pour la famille) et sa proximité avec Reims, Charleville, Rethel, Attigny, Monthois, Juniville et Bétheniville.Pour plus de renseignements vous pouvez me contacter , Nicolas GUILLAUME de l’agence Maisons France Confort de Cormontreuil au (Numéro supprimé)
L’actualité immobilière à Vouziers
27/11/2023
02/11/2023
30/10/2023
20/10/2023
16/10/2023
16/10/2023