Maison à construire à Bénaix (09300)
Images
Description
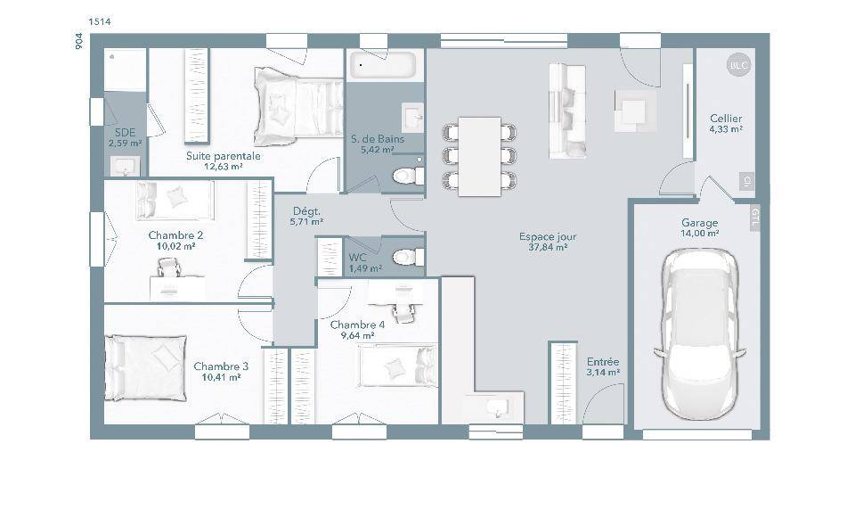
Avec Maisons France Confort Pamiers, devenez propriétaire de cette sobre et élégante maison de 103 m² pour 222 195 € hors frais, sur un terrain de 3 002 m² sur la commune de Bénaix. Vous allez apprécier ses surfaces bien réparties.
Elle se compose, pour la partie nuit, d'une grande salle de bains, de WC séparés et de quatre chambres, dont une suite parentale. Dans sa partie jour, un espace de vie de 41 m² avec cellier contigu à la cuisine ouverte et au garage de 14 m².
Pour rendre votre projet unique, il est totalement personnalisable : les plans, le niveau de prestations, le système de chauffage... tout est possible, vous décidez selon vos envies et votre budget.
Maisons France Confort vous offre, dans votre contrat de construction de maison individuelle, toutes les garanties. Faites maintenant le choix du 1er constructeur en Midi-Pyrénées pour un accompagnement de haute qualité à toutes les étapes de votre projet et un résultat optimal.
Alors, pour toute information, étude personnalisée et gratuite de votre projet, c'est facile : contactez l'agence Maisons France Confort de Pamiers au (Numéro supprimé).
Annonce proposée par un Agent Commercial Partenaire.
Logement susceptibles de vous intéresser
Nous vous proposons de découvrir aussi cette sélection de logements situés à moins de 10km de Bénaix et qui seraient susceptibles de vous intéresser.
Lavelanet
TERRAINTerrain à Bâtir à Lavelanet Découvrez cette parcelle de terrain à bâtir d’une superficie de 334 m², idéalement située pour une petite construction. Dotée d’un chemin d’accès, cette parcelle offre la possibilité de se raccorder facilement aux différents réseaux (eau, électricité et assainissement), disponibles à proximité de la propriété. Situé en bordure de la propriété, ce terrain offre un cadre idéal pour réaliser votre projet de construction en toute tranquillité. Ne manquez pas cette opportunité ! Contactez-nous dès maintenant pour organiser une visite et découvrir tout le potentiel de ce terrain à bâtir.Honoraires à la charge du vendeurVotre agent commercial 3G IMMO sur place EI – Laurent PELOFI inscrit au RSAC de foix n° 904 755 329 Selon l’article L.561.5 du Code Monétaire et Financier, pour l’organisation de la visite, la présentation d’une pièce d’identité vous sera demandée.Les informations sur les risques auxquels ce bien est exposé sont disponibles sur le site Géorisques : www.georisques.gouv.frLes informations sur les risques auxquels ce bien est exposé sont disponibles sur le site Géorisques : www.georisques.gouv.fr
Bénaix
TERRAIN ET MAISONAvec Maisons France Confort Pamiers, devenez propriétaire de cette belle et élégante maison en L de 110 m² pour 240 020 € hors frais, sur un terrain de 3 002 m² sur la commune de Bénaix. Vous allez apprécier ses différentes possibilités d’accès à la maison et au garage, ainsi que ses volumes.Elle se compose, pour la partie nuit, d’une salle de bains et de quatre chambres, dont une suite parentale avec dressing. Pour la zone jour de 52 m², un espace de vie traversant avec cuisine ouverte, cellier, WC séparé et garage de 15 m².Pour rendre votre projet unique, il est totalement personnalisable : les plans, le niveau de prestations, le système de chauffage… tout est possible, vous décidez selon vos envies et votre budget.Maisons France Confort vous offre, dans votre contrat de construction de maison individuelle, toutes les garanties. Faites maintenant le choix du 1er constructeur en Midi-Pyrénées pour un accompagnement de haute qualité à toutes les étapes de votre projet et un résultat optimal.Alors, pour toute information, étude personnalisée et gratuite de votre projet, c’est facile : contactez l’agence Maisons France Confort de Pamiers au (Numéro supprimé).Annonce proposée par un Agent Commercial Partenaire.
Bénaix
TERRAIN ET MAISONVous êtes sensible à l’environnement ? Avec Maisons France Confort Pamiers, optez maintenant pour la maison à ossature bois et participez à la réduction de l’empreinte carbone pour préserver notre planète. Cette maison conjugue confort moderne, réduction des délais de construction et respect de l’environnement.Elle vous est proposée pour 361 307 € hors frais, sur un terrain de 3 002 m² dans la commune de Bénaix. Vous allez apprécier la ligne épurée et la façade abritée par un auvent de cette maison environnementale. Elle contribue à un avenir plus vert et vous assure une construction éco-performante avec une empreinte carbone basse.Elle se compose, pour la partie jour de 50 m², d’un espace de vie très lumineux avec deux grandes baies vitrées, une cuisine ouverte et un garage de 15 m² accolé au grand cellier. L’entrée sépare les deux espaces de nuit : un pour les parents avec cette belle suite parentale avec dressing et salle d’eau de 19 m², et pour les enfants ou les amis, deux chambres, une salle de bains et un WC séparé.Pour rendre votre projet unique, il est personnalisable : les plans, le niveau de prestations, les menuiseries… vous décidez selon vos envies et votre budget.Maisons France Confort vous offre, dans votre contrat de construction de maison individuelle, toutes les garanties. Faites maintenant le choix du 1er constructeur en Midi-Pyrénées pour un accompagnement de haute qualité à toutes les étapes de votre projet pour une construction durable.Alors, pour toute information, étude personnalisée et gratuite de votre projet, c’est facile : contactez l’agence Maisons France Confort de Pamiers au (Numéro supprimé).Annonce proposée par un Agent Commercial Partenaire.
Bénaix
TERRAIN ET MAISONAvec Maisons France Confort Pamiers, devenez propriétaire de cette superbe maison en V de 112 m² pour 250 321 € hors frais, sur un terrain de 3 002 m² sur la commune de Bénaix. Vous allez apprécier son architecture, permettant une large ouverture au soleil pour deux chambres et l’espace de vie.Elle dispose, dans la partie nuit, de quatre chambres dont une suite parentale, d’une salle de bains et de WC séparés. Dans la zone jour de 59 m², une entrée sous porche avec son hall et ses WC séparés, un espace de vie de 45 m² avec cellier contigu à la cuisine ouverte et au garage accolé de 18 m².Pour rendre votre projet unique, il est totalement personnalisable : les plans, le niveau de prestations, le système de chauffage… tout est possible, vous décidez selon vos envies et votre budget.Maisons France Confort vous offre, dans votre contrat de construction de maison individuelle, toutes les garanties. Faites maintenant le choix du 1er constructeur en Midi-Pyrénées pour un accompagnement de haute qualité à toutes les étapes de votre projet et un résultat optimal.Alors, pour toute information, étude personnalisée et gratuite de votre projet, c’est facile : contactez l’agence Maisons France Confort de Pamiers au (Numéro supprimé).Annonce proposée par un Agent Commercial Partenaire.
Bénaix
TERRAIN ET MAISONAvec Maisons France Confort Pamiers, devenez propriétaire de cette sobre et élégante maison de 103 m² pour 222 195 € hors frais, sur un terrain de 3 002 m² sur la commune de Bénaix. Vous allez apprécier ses surfaces bien réparties.Elle se compose, pour la partie nuit, d’une grande salle de bains, de WC séparés et de quatre chambres, dont une suite parentale. Dans sa partie jour, un espace de vie de 41 m² avec cellier contigu à la cuisine ouverte et au garage de 14 m².Pour rendre votre projet unique, il est totalement personnalisable : les plans, le niveau de prestations, le système de chauffage… tout est possible, vous décidez selon vos envies et votre budget.Maisons France Confort vous offre, dans votre contrat de construction de maison individuelle, toutes les garanties. Faites maintenant le choix du 1er constructeur en Midi-Pyrénées pour un accompagnement de haute qualité à toutes les étapes de votre projet et un résultat optimal.Alors, pour toute information, étude personnalisée et gratuite de votre projet, c’est facile : contactez l’agence Maisons France Confort de Pamiers au (Numéro supprimé).Annonce proposée par un Agent Commercial Partenaire.
Bénaix
TERRAIN ET MAISONVous êtes sensible à l’environnement ? Avec Maisons France Confort Pamiers, optez maintenant pour la maison à ossature bois et participez à la réduction de l’empreinte carbone pour préserver notre planète. Cette maison conjugue confort moderne, réduction des délais de construction et respect de l’environnement.Elle vous est proposée pour 283 469 € hors frais, sur un terrain de 3 002 m² dans la commune de Bénaix. Vous allez apprécier les différentes possibilités d’accès à la maison et au garage ainsi que les volumes de cette maison environnementale. Elle contribue à un avenir plus vert et vous assure une construction éco-performante avec une empreinte carbone basse.Elle se compose, pour la partie nuit, d’un WC séparé, d’une salle de bains et de quatre chambres, dont une suite parentale avec dressing et salle d’eau. Pour la zone jour de 45 m², un bel espace de vie avec cuisine ouverte, un grand cellier et un garage de 15 m².Pour rendre votre projet unique, il est personnalisable : les plans, le niveau de prestations, les menuiseries… vous décidez selon vos envies et votre budget.Maisons France Confort vous offre, dans votre contrat de construction de maison individuelle, toutes les garanties. Faites maintenant le choix du 1er constructeur en Midi-Pyrénées pour un accompagnement de haute qualité à toutes les étapes de votre projet pour une construction durable.Alors, pour toute information, étude personnalisée et gratuite de votre projet, c’est facile : contactez l’agence Maisons France Confort de Pamiers au (Numéro supprimé).Annonce proposée par un Agent Commercial Partenaire.
Bénaix
TERRAINMaisons France Confort vous propose ce terrain dans le paisible village ariégeois de Bénaix, à moins de 10 minutes de Lavelanet et 30 minutes de Foix. En plus de l’environnement bucolique du terrain, la commune possède un patrimoine naturel remarquable : un site Natura 2000 et deux zones naturelles d’intérêt écologique, faunistique et floristique.Au bout d’une impasse, deux parcelles d’environ 3 000 m² exposées plein sud vous attendent. Celle-ci fait 3 002 m² et vous est proposée pour 49 500 €.Vous voulez bâtir la maison de vos rêves ? Je vous offre toutes mes compétences pour vous accompagner dans votre projet de construction.Alors c’est simple : appelez dès maintenant l’agence Maisons France Confort de Pamiers au (Numéro supprimé).Annonce proposée par un Agent Commercial Partenaire.
Bénaix
TERRAIN ET MAISONAvec Maisons France Confort Pamiers, devenez propriétaire de cette agréable maison de 105 m² pour 230 856 € hors frais, sur un terrain de 3 002 m² sur la commune de Bénaix. Vous allez apprécier ses légers décrochés de murs et de toitures.Elle se compose, dans la partie nuit, d’une salle de bains avec WC et de quatre chambres, dont une suite parentale avec salle d’eau. Pour la zone jour, un espace de vie de 48 m² avec cuisine ouverte, un hall d’entrée avec WC séparé, cellier et un garage accolé de 17 m².Pour rendre votre projet unique, il est totalement personnalisable : les plans, le niveau de prestations, le système de chauffage… tout est possible, vous décidez selon vos envies et votre budget.Maisons France Confort vous offre, dans votre contrat de construction de maison individuelle, toutes les garanties. Faites maintenant le choix du 1er constructeur en Midi-Pyrénées pour un accompagnement de haute qualité à toutes les étapes de votre projet et un résultat optimal.Alors, pour toute information, étude personnalisée et gratuite de votre projet, c’est facile : contactez l’agence Maisons France Confort de Pamiers au (Numéro supprimé).Annonce proposée par un Agent Commercial Partenaire.
Dreuilhe
TERRAINBienvenue à vous, futurs propriétaires ! Vous êtes à la recherche d’une opportunité exceptionnelle dans le domaine immobilier ? Ne cherchez plus, nous avons le bien parfait pour vous.Niché au cœur de la magnifique commune de Dreuilhe, ce terrain constructible de 2594 m2 vous offre une toile vierge pour concrétiser vos rêves. Imaginez la maison de vos rêves entourée de 250 m2 de forêt luxuriante, créant ainsi un havre de paix naturel à votre porte.Ce terrain est déjà viabilisé, ce qui signifie que l’ensemble des infrastructures essentielles, telles que l’eau, l’électricité et l’assainissement, sont prêtes à être raccordées. Vous pouvez donc entamer la construction de votre futur chez-vous sans attendre.Sa topographie plane facilite grandement la construction, tandis que la végétation boisée existante ajoute une touche de beauté naturelle. Les bornes limitrophes sont déjà en place, garantissant une délimitation précise de votre propriété.L’exposition nord de ce terrain vous permettra de profiter d’une luminosité agréable tout au long de la journée, tout en évitant une chaleur excessive en été. Vous pourrez ainsi créer un espace extérieur idéal pour les moments en famille ou entre amis.Le petit village de Dreuilhe est réputé pour sa tranquillité et son charme authentique. Vous serez à proximité de toutes les commodités essentielles, tout en profitant de l’intimité offerte par ce terrain boisé.Ne laissez pas passer cette opportunité rare de devenir propriétaire de ce terrain exceptionnel. Il représente l’endroit parfait pour construire la maison de vos rêves, entourée par la nature, tout en étant proche de toutes les commodités dont vous avez besoin au quotidien.N’attendez pas, contactez-nous dès maintenant pour organiser une visite et découvrir par vous-même tout le potentiel de ce terrain à Dreuilhe. Votre futur commence ici.
L’actualité immobilière à Bénaix
27/11/2023
02/11/2023
30/10/2023
20/10/2023
16/10/2023
16/10/2023