Maison à construire à Les Issards (09100)
Images
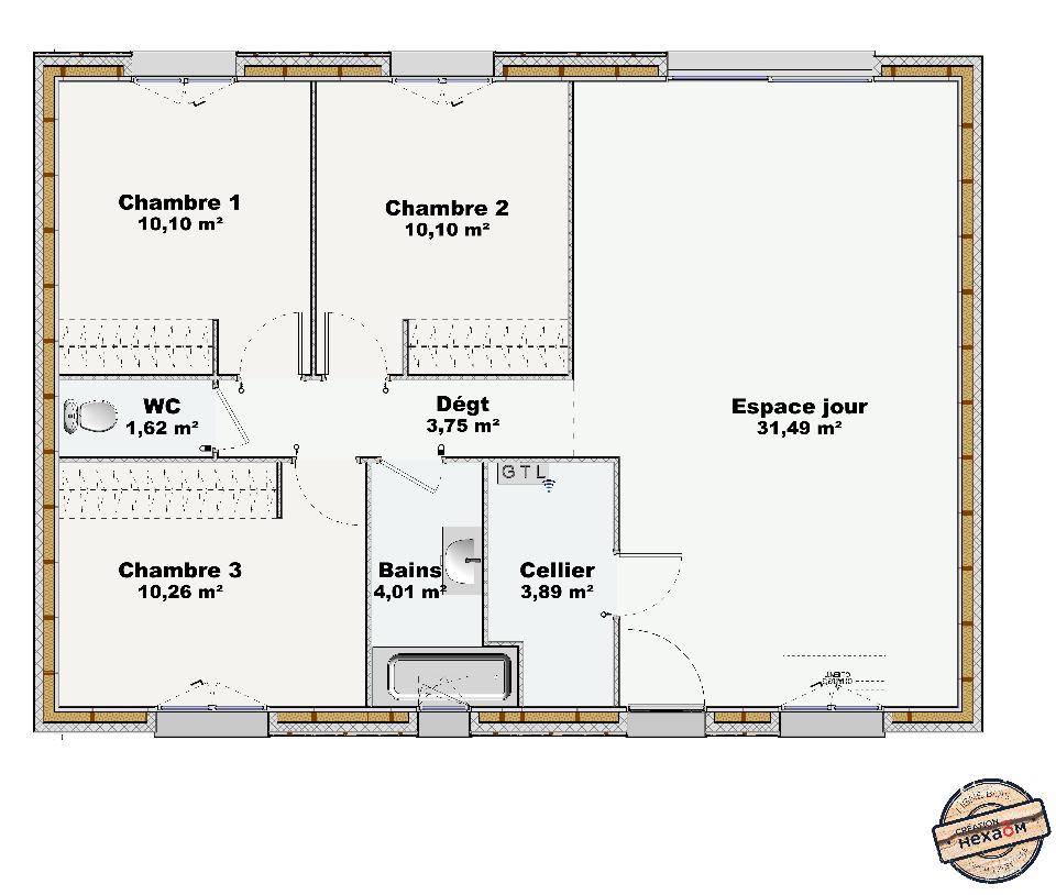
Description
Vous êtes sensible à l'environnement ? Avec Maisons France Confort Pamiers, optez maintenant pour la maison à ossature bois et participez à la réduction de l'empreinte carbone pour préserver notre planète. Cette maison conjugue confort moderne, réduction des délais de construction et respect de l'environnement. Elle vous est proposée pour 215 343 € Hors frais, sur un terrain de 942 m² dans la commune de Les Issards. Vous allez apprécier le côté fonctionnel de cette maison environnementale. Elle contribue à un avenir plus vert et vous assure une construction éco-performante avec une empreinte carbone basse. Elle se compose pour la zone nuit, d'une salle de bains, de trois chambres et d'un WC séparé. Pour la zone jour de 35 m2, un espace de vie avec cuisine ouverte et un cellier. Pour rendre votre projet unique, il est personnalisable : les plans, le niveau de prestations, les menuiseries...vous décidez suivant vos envies et votre budget. Maisons France Confort vous offre dans votre contrat de construction de maison individuelle toutes les garanties. Faites maintenant le choix du 1er constructeur en Midi Pyrénées pour un accompagnement de haute qualité à toutes les étapes de votre projet pour une construction durable. Alors pour toutes informations, étude personnalisée et gratuite de votre projet, c'est facile contactez l'agence Maisons France Confort de Pamiers au (Numéro supprimé).
Annonce proposée par un Agent Commercial Partenaire.
Logement susceptibles de vous intéresser
Nous vous proposons de découvrir aussi cette sélection de logements situés à moins de 10km de Les Issards et qui seraient susceptibles de vous intéresser.
Les Issards
TERRAIN ET MAISONAvec Maisons France Confort Pamiers, devenez propriétaire de cette sobre et élégante maison de 90 m2 pour 216 617 € Hors frais, sur un terrain de 934 m² sur la commune de Les Issards. Vous allez apprécier son ingénieuse conception et l’optimisation des espaces. Elle se compose dans sa partie nuit, d’une salle de bains et WC séparés, trois chambres dont une suite parentale. Pour la partie jour, un espace de vie de 41 m2 avec cellier contigu à la cuisine ouverte et au garage de 14m2. Pour rendre votre projet unique, il est totalement personnalisable : les plans, le niveau de prestations, le système de chauffage, tout est possible, vous décidez suivant vos envies et votre budget. Maisons France Confort vous offre dans votre contrat de construction de maison individuelle toutes les garanties. Faites maintenant le choix du 1er constructeur en Midi Pyrénées pour un accompagnement de haute qualité à toutes les étapes de votre projet et un résultat optimal. Alors pour toutes informations, étude personnalisée et gratuite de votre projet, c’est facile contactez l’agence Maisons France Confort de Pamiers au (Numéro supprimé). Annonce proposée par un Agent Commercial Partenaire.
Les Issards
TERRAIN ET MAISONVous êtes sensible à l’environnement ? Avec Maisons France Confort Pamiers, optez maintenant pour la maison à ossature bois et participez à la réduction de l’empreinte carbone pour préserver notre planète. Cette maison conjugue confort moderne, réduction des délais de construction et respect de l’environnement. Elle vous est proposée pour 293 041 € Hors frais, sur un terrain de 934 m² dans la commune de Les Issards. Vous allez apprécier les différentes possibilités d’accès maison et garage et les volumes de cette maison environnementale. Elle contribue à un avenir plus vert et vous assure une construction éco-performante avec une empreinte carbone basse. Elle se compose pour la partie nuit, d’un WC séparé, d’une salle de bains, de quatre chambres dont une suite parentale avec dressing et salle d’eau. Pour la zone jour de de 45 m2, un bel espace de vie avec cuisine ouverte, un grand cellier et un garage de 15m2. Pour rendre votre projet unique, il est personnalisable : les plans, le niveau de prestations, les menuiseries…vous décidez suivant vos envies et votre budget. Maisons France Confort vous offre dans votre contrat de construction de maison individuelle toutes les garanties. Faites maintenant le choix du 1er constructeur en Midi Pyrénées pour un accompagnement de haute qualité à toutes les étapes de votre projet pour une construction durable. Alors pour toutes informations, étude personnalisée et gratuite de votre projet, c’est facile contactez l’agence Maisons France Confort de Pamiers au (Numéro supprimé). Annonce proposée par un Agent Commercial Partenaire.
Saint-Jean-du-Falga
TERRAIN ET MAISONVous êtes sensible à l’environnement ? Avec Maisons France Confort Pamiers, optez maintenant pour la maison à ossature bois et participez à la réduction de l’empreinte carbone pour préserver notre planète. Cette maison conjugue confort moderne, réduction des délais de construction et respect de l’environnement. Elle vous est proposée pour 366 730 € Hors frais, sur un terrain de 500 m² dans la commune de Saint-Jean-Du-Falga. Vous allez apprécier la ligne épurée et la façade abritée par un auvent de cette maison environnementale. Elle contribue à un avenir plus vert et vous assure une construction éco-performante avec une empreinte carbone basse. Elle se compose, pour la partie jour de 50 m2, d’un espace de vie très lumineux avec deux grandes baies vitrées, une cuisine ouverte et d’un garage de 15m2 accolé au grand cellier. L’entrée sépare les deux espaces de nuit, un pour les parents avec cette belle suite parentale avec dressing et salle d’eau de 19 m2 et pour les enfants ou les amis 2 chambres, une salle de bains et un WC séparé. Pour rendre votre projet unique, il est personnalisable : les plans, le niveau de prestations, les menuiseries…vous décidez suivant vos envies et votre budget. Maisons France Confort vous offre dans votre contrat de construction de maison individuelle toutes les garanties. Faites maintenant le choix du 1er constructeur en Midi Pyrénées pour un accompagnement de haute qualité à toutes les étapes de votre projet pour une construction durable. Alors pour toutes informations, étude personnalisée et gratuite de votre projet, c’est facile contactez l’agence Maisons France Confort de Pamiers au (Numéro supprimé). Annonce proposée par un Agent Commercial Partenaire.
Saint-Jean-du-Falga
TERRAIN ET MAISONAvec Maisons France Confort Pamiers, devenez propriétaire de cette fonctionnelle petite maison de 50 m2 pour 141 757 € Hors frais, sur un terrain de 500 m² sur la commune de Saint-Jean-du-Falga. Vous apprécierez la conception évolutive de notre gamme de maisons OPEN. Avec la possibilité d’un large choix de ses finitions intérieures et extérieures avec plusieurs packs aux choix suivant vos besoins, vos envies et votre budget (Chauffage, Bien-être, Connect, Look, Déco, Sanitaires, Sol, Menuiseries…) Elle se compose pour la zone nuit, d’une salle de bains avec WC et de deux chambres. Pour la zone jour de 25 m2, un espace de vie traversant avec cuisine ouverte et un garage accolé en option. Vous n’avez pas besoin de garage, restez sur 2 chambres. Une troisième chambre ? transformez le garage en une belle suite parentale (en option). Toiture décalée ou simple avec en plus un auvent, à vous de choisir là aussi. Le prix de cette annonce est basé sur un modèle 2 chambres sans garage, sans auvent, en finition Trendy, sans carrelage, sans chape et sans sanitaires. Pour rendre votre projet unique, il est totalement personnalisable : les plans, le niveau de prestations, le système de chauffage, tout est possible, vous décidez suivant vos envies et votre budget. Maisons France Confort vous offre dans votre contrat de construction de maison individuelle toutes les garanties. Faites maintenant le choix du 1er constructeur en Midi Pyrénées pour un accompagnement de haute qualité à toutes les étapes de votre projet et un résultat optimal. Alors pour toutes informations, étude personnalisée et gratuite de votre projet, c’est facile contactez l’agence Maisons France Confort de Pamiers au (Numéro supprimé). Annonce proposée par un Agent Commercial Partenaire.
Saint-Jean-du-Falga
TERRAIN ET MAISONAvec Maisons France Confort Pamiers, devenez propriétaire de cette fonctionnelle maison de 80 m2 pour 167 913 € Hors frais, sur un terrain de 500 m² sur la commune de Saint-Jean-du-Falga. Vous apprécierez la conception évolutive de notre gamme de maisons OPEN. Avec la possibilité d’un large choix de ses finitions intérieures et extérieures avec plusieurs packs aux choix suivant vos besoins, vos envies et votre budget (Chauffage, Bien-être, Connect, Look, Déco, Sanitaires, Sol, Menuiseries…) Elle se compose pour la zone nuit, d’une salle de bains et de trois chambres. Pour la zone jour de 44 m2, un espace de vie de 39 m2 avec cuisine ouverte, un cellier, et une entrée avec placard et WC. Le garage vous est proposé en option. Pas besoin de garage ! Transformez le garage en une belle suite parentale (en option). Le prix de cette annonce est basé sur un modèle 3 chambres sans garage, en finition Trendy, sans carrelage, sans chape et sans sanitaires. Pour rendre votre projet unique, il est totalement personnalisable : les plans, le niveau de prestations, le système de chauffage, tout est possible, vous décidez suivant vos envies et votre budget. Maisons France Confort vous offre dans votre contrat de construction de maison individuelle toutes les garanties. Faites maintenant le choix du 1er constructeur en Midi Pyrénées pour un accompagnement de haute qualité à toutes les étapes de votre projet et un résultat optimal. Alors pour toutes informations, étude personnalisée et gratuite de votre projet, c’est facile contactez l’agence Maisons France Confort de Pamiers au (Numéro supprimé). Annonce proposée par un Agent Commercial Partenaire.
Saint-Jean-du-Falga
TERRAINEncore une belle opportunité, car très rare sur la commune de Saint-Jean-du-Falga, venez découvrir ce tout nouveau terrain de 500 m2 situé dans un petit lotissement de 11 parcelles. Préparez votre projet de construction dès maintenant, il vous est proposé pour 57 500 €. Il est orienté plein sud. Les écoles et premiers commerces de proximité sont à 200m mètres à pied. L’accès à la 4 voies et à l’autoroute à moins de 4km, à moins d’une heure de Toulouse et 3 minutes de Pamiers. Ce village est très dynamique, agréable et il y fait bon vivre. Vous voulez bâtir la maison de vos rêves, je vous offre toutes mes compétences pour vous accompagner sur votre projet de construction. Alors c’est simple, appelez dès maintenant l’agence Maisons France Confort de Pamiers au (Numéro supprimé) Annonce proposée par un Agent Commercial Partenaire.
Saint-Jean-du-Falga
TERRAIN ET MAISONAvec Maisons France Confort Pamiers, devenez propriétaire de cette fonctionnelle maison de 100 m2 pour 196 412 € Hors frais, sur un terrain de 500 m² sur la commune de Saint-Jean-du-Falga. Vous apprécierez la conception évolutive de notre gamme de maisons OPEN. Avec la possibilité d’un large choix de ses finitions intérieures et extérieures avec plusieurs packs aux choix suivant vos besoins, vos envies et votre budget (Chauffage, Bien-être, Connect, Look, Déco, Sanitaires, Sol, Menuiseries…) Elle se compose pour la zone nuit, d’une salle de bains et de quatre chambres. Pour la zone jour de 48 m2, un espace de vie de 43 m2 avec cuisine ouverte, un cellier, et une entrée avec placard et WC. Avec en plus un garage intégré de 15m2. Vous n’avez pas besoin de garage, mais d’une quatrième chambre ? Transformez le garage en une belle suite parentale (en option). Le prix de cette annonce est basé sur un modèle 4 chambres avec garage intégré, en finition Trendy, sans carrelage, sans chape et sans sanitaires. Pour rendre votre projet unique, il est totalement personnalisable : les plans, le niveau de prestations, le système de chauffage, tout est possible, vous décidez suivant vos envies et votre budget. Maisons France Confort vous offre dans votre contrat de construction de maison individuelle toutes les garanties. Faites maintenant le choix du 1er constructeur en Midi Pyrénées pour un accompagnement de haute qualité à toutes les étapes de votre projet et un résultat optimal. Alors pour toutes informations, étude personnalisée et gratuite de votre projet, c’est facile contactez l’agence Maisons France Confort de Pamiers au (Numéro supprimé). Annonce proposée par un Agent Commercial Partenaire.
Les Issards
TERRAIN ET MAISONAvec Maisons France Confort Pamiers, devenez propriétaire de cette belle et élégante maison en L de 110 m2 pour 246 111 € Hors frais, sur un terrain de 934 m² sur la commune de Les Issards. Vous allez apprécier ses différentes possibilités d’accès maison et garage et ses volumes. Elle se compose pour la partie nuit, d’une salle de bains, de quatre chambres dont une suite parentale avec dressing. Pour la zone jour de de 52 m2, un espace de vie traversant avec cuisine ouverte, cellier, un WC séparé et un garage de 15m2. Pour rendre votre projet unique, il est totalement personnalisable : les plans, le niveau de prestations, le système de chauffage, tout est possible, vous décidez suivant vos envies et votre budget. Maisons France Confort vous offre dans votre contrat de construction de maison individuelle toutes les garanties. Faites maintenant le choix du 1er constructeur en Midi Pyrénées pour un accompagnement de haute qualité à toutes les étapes de votre projet et un résultat optimal. Alors pour toutes informations, étude personnalisée et gratuite de votre projet, c’est facile contactez l’agence Maisons France Confort de Pamiers au (Numéro supprimé). Annonce proposée par un Agent Commercial Partenaire.
Les Issards
TERRAIN ET MAISONAvec Maisons France Confort Pamiers, devenez propriétaire de cette grande maison de 125 m2 pour 257 869 € Hors frais, sur un terrain de 934 m² sur la commune de Les Issards. Vous allez apprécier ses grandes pièces et ses grandes baies vitrées. Elle se compose pour la partie nuit, d’une salle de bains avec WC et quatre chambres. Petit plus avec une suite parentale de 18m2 séparée. Dans sa partie jour, WC séparés, un espace de vie de 49 m2 avec cellier contigu à la cuisine ouverte et au garage de 18m2. Pour rendre votre projet unique, il est totalement personnalisable : les plans, le niveau de prestations, le système de chauffage, tout est possible, vous décidez suivant vos envies et votre budget. Maisons France Confort vous offre dans votre contrat de construction de maison individuelle toutes les garanties. Faites maintenant le choix du 1er constructeur en Midi Pyrénées pour un accompagnement de haute qualité à toutes les étapes de votre projet et un résultat optimal. Alors pour toutes informations, étude personnalisée et gratuite de votre projet, c’est facile contactez l’agence Maisons France Confort de Pamiers au (Numéro supprimé). Annonce proposée par un Agent Commercial Partenaire.
L’actualité immobilière à Les Issards
27/11/2023
02/11/2023
30/10/2023
20/10/2023
16/10/2023
16/10/2023