Maison à construire à Mazères (09270)
Images
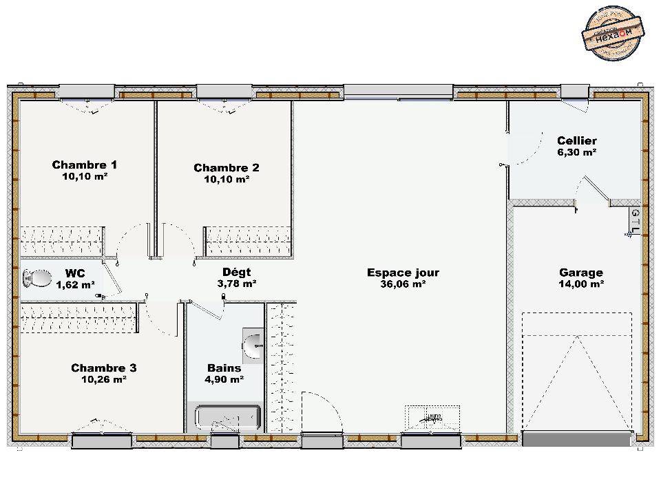
Description
Vous êtes sensible à l'environnement ? Avec Maisons France Confort Pamiers, optez maintenant pour la maison à ossature bois et participez à la réduction de l'empreinte carbone pour préserver notre planète. Cette maison conjugue confort moderne, réduction des délais de construction et respect de l'environnement. Elle vous est proposée pour 228 763 € Hors frais, sur un terrain de 472 m² dans la commune de Mazères. Vous allez apprécier l'ingénieuse adaptabilité de cette maison environnementale. Elle contribue à un avenir plus vert et vous assure une construction éco-performante avec une empreinte carbone basse. Elle se compose dans sa partie nuit, d'une salle de bains et WC séparés, et de trois chambres. Pour la partie jour, un espace de vie de 36 m2 avec cuisine ouverte, un grand cellier et un garage de 14m2. Pour rendre votre projet unique, il est personnalisable : les plans, le niveau de prestations, les menuiseries...vous décidez suivant vos envies et votre budget. Maisons France Confort vous offre dans votre contrat de construction de maison individuelle toutes les garanties. Faites maintenant le choix du 1er constructeur en Midi Pyrénées pour un accompagnement de haute qualité à toutes les étapes de votre projet pour une construction durable. Alors pour toutes informations, étude personnalisée et gratuite de votre projet, c'est facile contactez l'agence Maisons France Confort de Pamiers au (Numéro supprimé).
Annonce proposée par un Agent Commercial Partenaire.
Logement susceptibles de vous intéresser
Nous vous proposons de découvrir aussi cette sélection de logements situés à moins de 10km de Mazères et qui seraient susceptibles de vous intéresser.
Montaut
TERRAINBaisse de prix ! Unique sur la commune de Montaut, venez découvrir ce petit lotissement de 8 parcelles et réservez les 2 derniers lots dès maintenant.Celui-ci, de 527 m², vous est proposé pour 40 000 €. Il est orienté plein sud. Une école primaire est implantée dans le quartier.Niveau transports, on trouve les gares de Le Vernet d’Ariège, Pamiers et Saverdun à moins de 10 minutes en voiture. L’autoroute A66 et la nationale N20 sont accessibles à moins de 6 km.Pour bâtir la maison de vos rêves, je vous offre toutes mes compétences pour vous accompagner dans votre projet de construction.Alors c’est simple : appelez dès maintenant l’agence Maisons France Confort de Pamiers au (Numéro supprimé).Annonce proposée par un Agent Commercial Partenaire.
Montaut
TERRAIN ET MAISONAvec Maisons France Confort Pamiers, devenez propriétaire de cette sobre et élégante maison de 75 m² pour 178 626 € hors frais, sur un terrain de 527 m² à la campagne, sur la commune de Montaut. Vous allez apprécier son côté fonctionnel.Elle se compose, dans sa partie nuit, d’une salle de bains avec WC et de trois chambres. Pour la partie jour, un espace de vie de 35 m² avec cellier contigu à la cuisine ouverte et au garage de 14 m².Pour rendre votre projet unique, il est totalement personnalisable : les plans, le niveau de prestations, le système de chauffage… tout est possible, vous décidez selon vos envies et votre budget.Maisons France Confort vous offre, dans votre contrat de construction de maison individuelle, toutes les garanties. Faites maintenant le choix du 1er constructeur en Midi-Pyrénées pour un accompagnement de haute qualité à toutes les étapes de votre projet et un résultat optimal.Alors, pour toute information, étude personnalisée et gratuite de votre projet, c’est facile : contactez l’agence Maisons France Confort de Pamiers au (Numéro supprimé).Annonce proposée par un Agent Commercial Partenaire.
Montaut
TERRAIN ET MAISONAvec Maisons France Confort Pamiers, devenez propriétaire de cette agréable maison de 73 m² pour 183 391 € hors frais, sur un terrain de 527 m² à la campagne, sur la commune de Montaut. Vous allez apprécier ses légers décrochés de murs et de toitures.Elle se compose, pour la zone nuit, d’une salle de bains et de trois chambres. Pour la zone jour de 34 m², un espace de vie avec cuisine ouverte et WC séparé, cellier et un garage accolé de 17 m².Pour rendre votre projet unique, il est totalement personnalisable : les plans, le niveau de prestations, le système de chauffage… tout est possible, vous décidez selon vos envies et votre budget.Maisons France Confort vous offre, dans votre contrat de construction de maison individuelle, toutes les garanties. Faites maintenant le choix du 1er constructeur en Midi-Pyrénées pour un accompagnement de haute qualité à toutes les étapes de votre projet et un résultat optimal.Alors, pour toute information, étude personnalisée et gratuite de votre projet, c’est facile : contactez l’agence Maisons France Confort de Pamiers au (Numéro supprimé).Annonce proposée par un Agent Commercial Partenaire.
Montaut
TERRAIN ET MAISONAvec Maisons France Confort Pamiers, devenez propriétaire de cette agréable maison de 95 m² pour 205 442 € hors frais, sur un terrain de 527 m² à la campagne, sur la commune de Montaut. Vous allez apprécier ses légers décrochés de murs et de toitures.Elle se compose, dans la partie nuit, d’une salle de bains avec WC et de trois chambres, dont une suite parentale. Pour la zone jour, un espace de vie de 44 m² avec cuisine ouverte, cellier, WC et un garage accolé de 17 m².Pour rendre votre projet unique, il est totalement personnalisable : les plans, le niveau de prestations, le système de chauffage… tout est possible, vous décidez selon vos envies et votre budget.Maisons France Confort vous offre, dans votre contrat de construction de maison individuelle, toutes les garanties. Faites maintenant le choix du 1er constructeur en Midi-Pyrénées pour un accompagnement de haute qualité à toutes les étapes de votre projet et un résultat optimal.Alors, pour toute information, étude personnalisée et gratuite de votre projet, c’est facile : contactez l’agence Maisons France Confort de Pamiers au (Numéro supprimé).Annonce proposée par un Agent Commercial Partenaire.
Montaut
TERRAIN ET MAISONAvec Maisons France Confort Pamiers, devenez propriétaire de cette sobre et élégante maison de 90 m² pour 195 617 € hors frais, sur un terrain de 527 m² à la campagne, sur la commune de Montaut. Vous allez apprécier son ingénieuse conception et l’optimisation des espaces.Elle se compose, dans sa partie nuit, d’une salle de bains et de WC séparés, ainsi que de trois chambres dont une suite parentale. Pour la partie jour, un espace de vie de 41 m² avec cellier contigu à la cuisine ouverte et au garage de 14 m².Pour rendre votre projet unique, il est totalement personnalisable : les plans, le niveau de prestations, le système de chauffage… tout est possible, vous décidez selon vos envies et votre budget.Maisons France Confort vous offre, dans votre contrat de construction de maison individuelle, toutes les garanties. Faites maintenant le choix du 1er constructeur en Midi-Pyrénées pour un accompagnement de haute qualité à toutes les étapes de votre projet et un résultat optimal.Alors, pour toute information, étude personnalisée et gratuite de votre projet, c’est facile : contactez l’agence Maisons France Confort de Pamiers au (Numéro supprimé).Annonce proposée par un Agent Commercial Partenaire.
Montaut
TERRAIN ET MAISONVous êtes sensible à l’environnement ? Avec Maisons France Confort Pamiers, optez maintenant pour la maison à ossature bois et participez à la réduction de l’empreinte carbone pour préserver notre planète. Cette maison conjugue confort moderne, réduction des délais de construction et respect de l’environnement.Elle vous est proposée pour 193 343 € hors frais, sur un terrain de 527 m² dans la commune de Montaut. Vous allez apprécier le côté fonctionnel de cette maison environnementale. Elle contribue à un avenir plus vert et vous assure une construction éco-performante avec une empreinte carbone basse.Elle se compose, pour la zone nuit, d’une salle de bains, de trois chambres et d’un WC séparé. Pour la zone jour de 35 m², un espace de vie avec cuisine ouverte et un cellier.Pour rendre votre projet unique, il est personnalisable : les plans, le niveau de prestations, les menuiseries… vous décidez selon vos envies et votre budget.Maisons France Confort vous offre, dans votre contrat de construction de maison individuelle, toutes les garanties. Faites maintenant le choix du 1er constructeur en Midi-Pyrénées pour un accompagnement de haute qualité à toutes les étapes de votre projet et pour une construction durable.Alors, pour toute information, étude personnalisée et gratuite de votre projet, c’est facile : contactez l’agence Maisons France Confort de Pamiers au (Numéro supprimé).Annonce proposée par un Agent Commercial Partenaire.
Calmont
TERRAIN ET MAISONDERNIERS LOTS . CALMONT Chez Construction Horizontale, réalisez votre projet de construction en toute sérénité! Nous vous accompagnons dans toutes les étapes de votre projet, de la recherche foncière à la remise des clefs de votre maison en passant par toutes les démarches administratives et financières. CALMONT ( sur un terrain de 500m² en lotissement, entièrement viabilisé, à 5 minutes à pieds du centre du village et proche de toutes les commodités, nous vous proposons cette maison de plain-pied de 83m² , elle se compose d’une pièce de vie de 40m² lumineuse et traversante, d’une salle de bain avec baignoire et/ou douche, de trois chambres avec placards intégrés et d’un système de PAC AIR/AIR réversible pour un confort optimal en toutes saisons! Projet 100% personnalisable selon vos souhaits et besoins. Le prix affiché comprend le prix du terrain + la maison hors frais annexes. Pour plus de renseignements et étude de projet n’hésitez pas à me contacter au (Numéro supprimé)
Calmont
TERRAINLot numéro 13 – Surface 387m² – SDP 150m² – La Belle Allée. 19 terrains à bâtir libres de constructeurs. Calmont, charmante commune de Haute-Garonne, vous accueille au coeur de la plaine de l’Ariège, entre nature préservée et dynamisme local. Avec ses écoles, ses commerces de proximité, et un riche tissu associatif, Calmont est un vrai bourg qui offre un cadre de vie idéal pour les familles en quête de sérénité et de convivialité.Le lotissement « La Belle Allée », composé de 19 lots de terrains à bâtir, libres de constructeur, est l’opportunité parfaite pour concrétiser votre projet de vie. Situé au centre du village, il allie le charme authentique de Calmont à la modernité des équipements de proximité. À seulement 15 km de l’axe Pamier/Toulouse, ce cadre paisible et verdoyant, vous permet de profiter pleinement de la tranquillité de la campagne tout en restant connecté aux grandes agglomérations.Faites le choix de la qualité de vie, devenez propriétaire à Calmont. PA 31100 24 T0001 du 08/08/2024 consultable en mairie de CALMONT
Calmont
TERRAIN ET MAISONA CALMONT, terrain rare de 400 m², Construction Horizontale vous propose ce beau projet de construction d’une MAISON INDIVIDUELLE de 89 m², proche de toutes les commodités et de l’A64. Profitez d’un secteur calme et agréable. Maison fonctionnelle, elle se compose d’un coin nuit et d’un coin jour pour une optimisation maximum des surfaces. Imaginez une belle cuisine ouverte avec ilot central donnant directement au salon séjour traversant : effet convivial assuré lors de soirées improvisées ! 3 belles chambres avec emplacements placards, un WC séparé et une grande salle de bain équipée. Cette version offre un très haut niveau de prestations en termes d’équipements et de personnalisations. Toutes nos maisons sont conformes à la RE 2020 et sont livrées avec une box domotique + gestion crépusculaire…. Mettez toutes les chances de votre côté pour accéder à la propriété avec plus d’enveloppe en bénéficiant de notre offre « Prêt PROCIVIS » : 30 000 € à taux zéro ! (Sous conditions d’éligibilité, voir conditions en agence). Garanties et assurances obligatoires incluses (voir détails en agence). Prix indicatif hors peintures, cuisine, sols des chambres et taxes diverses. Sur ce terrain, prévoir un assainissement autonome. Terrain sélectionné et vu pour vous sous réserve de disponibilité et au prix indiqué par notre partenaire foncier. Pour tous renseignements complémentaires et étude de projet, n’hésitez pas à contacter : Mme Imren SAHIN au (Numéro supprimé).
L’actualité immobilière à Mazères
27/11/2023
02/11/2023
30/10/2023
20/10/2023
16/10/2023
16/10/2023