Images
Description
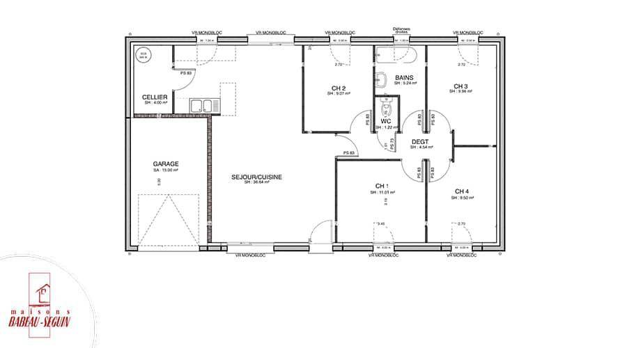
Sur ce terrain, nous vous proposons cette maison neuve : la Provencière Urban Serie, un modèle moderne qui s'adapte parfaitement aux terrains urbains. Avec une surface de 82 m², cette maison dispose de 3 chambres et d'une pièce de vie spacieuse.
Inspirée de l'architecture typique des maisons du sud de la France, la Provencière Urban Serie conserve tout le charme et le confort de la Provencière traditionnelle, tout en étant optimisée pour les terrains urbains. Avec une longueur de façade variant de 12 à 16 mètres, elle s'adapte à tous les terrains et permet de profiter des charmes de la Provencière où que vous souhaitiez faire construire.
Les caractéristiques principales de cette maison incluent un garage intégré, une dalle étage en béton et des combles aménagés, offrant ainsi un espace de vie supplémentaire. Les options les plus demandées par nos clients, telles que la charpente traditionnelle, les menuiseries en aluminium et l'enduit bi-ton, sont également disponibles pour personnaliser votre maison selon vos goûts.
Cette maison neuve est basse consommation et conforme à la réglementation environnementale RE2020, garantissant ainsi une performance énergétique optimale et un confort de vie inégalé.
Le constructeur Babeau-Seguin, reconnu pour offrir le meilleur rapport qualité/prix du marché, vous accompagne dans la réalisation de votre projet immobilier. Ne manquez pas cette opportunité unique de devenir propriétaire d'une maison alliant tradition et modernité, parfaitement adaptée aux terrains urbains.
Logement susceptibles de vous intéresser
Nous vous proposons de découvrir aussi cette sélection de logements situés à moins de 10km de Fontette et qui seraient susceptibles de vous intéresser.

Champignol-lez-Mondeville
TERRAIN ET MAISONSur ce terrain, nous vous proposons cette maison neuve : la Focus Tiny city. Idéale pour les petits budgets, cette maison de 74 m² est aussi bien équipée que l’ensemble de nos modèles. Conçue par Babeau-Seguin, constructeur offrant le meilleur rapport qualité/prix du marché, cette maison est une version abordable et compacte, parfaite pour une petite famille ou pour des personnes recherchant un logement confortable et fonctionnel.### Un espace de vie pratique et convivialEn entrant dans la maison, vous êtes accueilli dans un grand séjour lumineux, idéal pour y installer une salle à manger et un coin salon. La cuisine ouverte sur le séjour crée un espace de vie convivial et pratique. Un cellier attenant à la cuisine offre un espace de rangement supplémentaire pour vos provisions et produits ménagers.### Trois chambres confortables pour une petite familleLa Focus Tiny city dispose de trois chambres confortables, parfaites pour accueillir une petite famille. La maison comprend également une salle de bains équipée d’une baignoire et des WC séparés, assurant ainsi le confort de tous les occupants.### Une maison basse consommation conforme à la RE2020Cette maison neuve est conçue pour être basse consommation et est conforme aux normes strictes de la RE2020. Vous bénéficierez ainsi d’économies à la construction et à la consommation, tout en respectant l’environnement.### Options les plus demandéesPour répondre aux attentes des clients, la Focus Tiny city peut être équipée de domotique et d’un enduit bi-ton, ajoutant une touche de modernité et de personnalisation à votre future maison.En somme, la maison Focus Tiny city est une belle option pour ceux qui cherchent un logement fonctionnel et confortable à un prix abordable. Ne manquez pas cette opportunité de devenir propriétaire d’une maison neuve, écologique et économique.

Champignol-lez-Mondeville
TERRAINNous vous présentons un terrain d’exception de 906 m², idéalement situé dans le charmant lotissement de Champignol-lez-Mondeville. Ce terrain viabilisé, offrant une vue dégagée et sans vis-à-vis, est parfait pour réaliser votre rêve de construction d’une maison familiale. Profitez d’un cadre champêtre au calme, ensoleillé et arboré, garantissant un cadre de vie agréable et paisible, propice à l’épanouissement de vos projets. Offrez-vous une opportunité unique dans cette commune où la qualité de vie est au rendez-vous. Située dans le département de l’Aube, Champignol-lez-Mondeville séduit par son ambiance conviviale et ses nombreux atouts. À proximité, vous trouverez des écoles, des commerces et différents services qui répondront à tous vos besoins quotidiens. La région est également riche en attractions locales, vous permettant de bénéficier d’activités de plein air et de découvertes en toute saison. Profitez de la sérénité de la campagne tout en restant à quelques encablures des grandes agglomérations. Ce terrain vous offre ainsi un cadre de vie idéal, conjuguant tranquillité et accessibilité. N’attendez plus pour envisager ce terrain au potentiel exceptionnel. Une visite s’impose pour apprécier toutes les qualités et les avantages qu’il peut vous offrir. Saisissez cette opportunité d’achat unique et réalisez votre projet de vie dans cet environnement prisé.

Champignol-lez-Mondeville
TERRAIN ET MAISONSur ce terrain, nous vous proposons cette maison neuve, modèle Flavière, construite par Babeau-Seguin, le constructeur offrant le meilleur rapport qualité/prix du marché. Cette maison basse consommation, conforme à la RE2020, figure parmi les plus petits modèles de plain-pied actuellement disponibles sur le marché de la maison individuelle.Avec une surface de 69 m², cette maison compacte et fonctionnelle dispose de 4 pièces, dont 3 chambres, offrant ainsi un espace de vie confortable et optimisé. Le vaste séjour lumineux est idéal pour des moments de convivialité en famille ou entre amis.Le modèle Flavière intègre également un garage, répondant ainsi aux besoins de stationnement et de rangement de ses futurs occupants. Cette maison à prix réduit est une opportunité à ne pas manquer pour ceux qui recherchent une habitation moderne, économique et respectueuse de l’environnement.N’attendez plus pour découvrir cette maison neuve et basse consommation, parfaitement adaptée à vos besoins et à votre budget. Contactez-nous dès maintenant pour plus d’informations et pour organiser une visite du terrain.

Champignol-lez-Mondeville
TERRAINNous vous présentons une opportunité rare sur le marché : un terrain viabilisé de 1048 m², situé dans le charmant lotissement de Champignol-lez-Mondeville, dans le département de l’Aube (10200). Ce lot offre une superbe vue, sans vis-à-vis, vous permettant de construire la maison de vos rêves dans un cadre champêtre, baigné de lumière et de sécurité. La surface généreuse du terrain est idéale pour un projet de construction qui saura allier confort et harmonie avec l’environnement naturel. Située dans la paisible commune de Champignol-lez-Mondeville, cette localisation bénéficie d’un cadre de vie exceptionnel. À proximité, vous trouverez des écoles, garantissant ainsi un confort pour les familles, ainsi que des infrastructures qui favorisent un quotidien agréable. Les amateurs de nature apprécieront la quiétude de cet endroit arboré, offrant un ensoleillement optimal pour profiter des espaces extérieurs. Le village se distingue par sa proximité avec les commodités locales, tout en préservant un calme rural, faisant de cette zone un lieu de vie rêvé pour toute la famille. Ce terrain vous offre un potentiel imbattable et un cadre de vie paisible. Ne manquez pas cette occasion de réaliser votre projet de construction dans un environnement privilégié. Contactez-nous pour découvrir ce bien unique et envisager votre avenir à Champignol-lez-Mondeville.

Champignol-lez-Mondeville
TERRAINÀ vendre : terrain viabilisé de 1160 m² situé dans le charmant lotissement de Champignol-lez-Mondeville, un cadre exceptionnel pour la réalisation de votre projet de construction de maison. Ce terrain présente de nombreux atouts, notamment une belle surface libre de toute contrainte, vous permettant de créer le foyer de vos rêves dans un environnement paisible et verdoyant. Profitez d’une vue dégagée sans vis-à-vis, dans un cadre champêtre et ensoleillé, idéal pour les amoureux de la nature et les familles à la recherche de tranquillité. Située dans le département de l’Aube, Champignol-lez-Mondeville offre un cadre de vie agréable à proximité de toutes les commodités. Les écoles se trouvent à quelques pas, garantissant un accès facile pour les enfants. La région est réputée pour sa sécurité et son environnement arboré, propice aux promenades en plein air et à la détente. Avec une connexion rapide aux grandes voies de communication, vous bénéficiez également d’une douceur de vivre tout en étant à proximité des attractions locales, nécessaires à votre bien-être quotidien. Ne manquez pas cette opportunité unique d’investir dans un terrain au potentiel exceptionnel. Contactez-nous dès aujourd’hui pour découvrir ce bien rare et envisager de donner vie à votre projet immobilier à Champignol-lez-Mondeville.

Champignol-lez-Mondeville
TERRAIN ET MAISONSur ce terrain, nous vous proposons cette maison neuve, la Ménilière Sud, conçue par Babeau-Seguin, constructeur offrant le meilleur rapport qualité/prix du marché. Cette superbe maison traditionnelle du sud, avec ses galeries et ses tuiles canal, dispose d’une surface de 100 m² et comprend 3 chambres et 4 pièces.La Ménilière Sud est une maison basse consommation, conforme à la RE2020, garantissant des économies d’énergie et un confort optimal tout au long de l’année. Elle est équipée d’un garage intégré, et vous avez le choix entre un toit à 2 pans ou à 4 pans, selon vos préférences.Offrant beaucoup de cachet, la Ménilière Sud est facilement personnalisable pour répondre à vos besoins et à vos goûts. Son porche avant pratique vous évitera la panique de chercher vos clés les jours de pluie. Ce modèle est particulièrement apprécié pour son excellent rapport qualité/prix, ce qui en fait l’un des modèles sur-mesure les plus vendus.Ne manquez pas cette opportunité unique d’acquérir une maison neuve, économe en énergie et parfaitement adaptée à vos envies. Contactez-nous dès maintenant pour plus d’informations et pour découvrir toutes les possibilités de personnalisation de la Ménilière Sud.

Champignol-lez-Mondeville
TERRAINNous vous proposons un terrain exceptionnel de 1040 m², idéalement situé dans le charmant lotissement de Champignol-lez-Mondeville, dans le département de l’Aube. Ce terrain viabilisé offre une superbe vue dégagée et est entouré d’un environnement arboré, garantissant un cadre de vie paisible et agréable. Sa position privilégiée en fait un choix parfait pour un projet de construction de maison qui saura tirer parti de ses atouts uniques. Champignol-lez-Mondeville est une ville où cohabitent tranquillité et accessibilité. Les écoles situées à proximité favorisent un cadre de vie idéal pour les familles, tandis que le quartier sécurisé vous offre un véritable sentiment de sérénité. La région regorge de commodités locales, avec des commerces, des services et des attractions naturelles à découvrir, le tout dans une ambiance conviviale et accueillante. Ne manquez pas cette occasion rare d’acquérir un terrain à fort potentiel, promettant un cadre de vie de qualité et une excellente valorisation de votre investissement. Contactez-nous dès maintenant pour plus d’informations et pour visiter ce bien d’exception !

Champignol-lez-Mondeville
TERRAIN ET MAISONSur ce terrain, nous vous proposons cette maison neuve : l’Intimity L de la gamme Evasihome, un confort absolu. Parce qu’être parent n’est pas toujours facile quand la petite tribu remue dans la maison, et qu’on a tous besoin d’intimité et d’un lieu bien à soi, Babeau-Seguin propose une nouvelle gamme de maisons avec suite parentale, Evasihome. L’Intimity L va vous séduire, vous qui, après une longue journée, avez besoin de vous ressourcer dans votre espace privatif.Intimity L, parce que les parents aussi ont droit au meilleur?! Lorsqu’on construit une maison neuve, on pense avant tout au confort des enfants. Et si pour une fois cela changeait un peu?? Offrez-vous la chambre parentale que vous méritez?! Dotée d’un beau dressing et d’une salle d’eau, celle-ci est autonome, grâce à une porte-fenêtre donnant directement sur la terrasse bétonnée. Dans le reste de cette très belle maison en L, vous disposerez de trois chambres supplémentaires avec placards, un confortable espace de jour avec cuisine ouverte, un cellier et un garage intégré.Laissez-vous séduire par cette si belle maison où chaque membre de la famille trouvera sa place. Avec une surface de 124 m², cette demeure offre un espace de vie optimisé et lumineux pour que toute la famille s’épanouisse. Les caractéristiques principales incluent une verrière, des prises USB murales, une suite parentale, une terrasse bétonnée et un garage intégré. De plus, cette maison neuve est basse consommation et conforme à la RE2020, garantissant des économies d’énergie et un confort thermique optimal. Les options les plus demandées par nos clients, telles que l’enduit bi-ton et la domotique, sont également disponibles pour personnaliser votre maison selon vos envies.Babeau-Seguin, constructeur offrant le meilleur rapport qualité/prix du marché, vous invite à découvrir l’Intimity L. Vous êtes convaincus?? Alors n’attendez pas, venez à notre rencontre, nous évoquerons ensemble votre projet de construction?!

Champignol-lez-Mondeville
TERRAINNous vous proposons un magnifique terrain à vendre, d’une superficie généreuse, idéal pour un projet de construction de maison. Situé dans le charmant lotissement de Champignol-lez-Mondeville, ce terrain viabilisé se distingue par ses caractéristiques uniques : une vue dégagée sur la campagne, sans vis-à-vis, offrant un cadre champêtre et calme pour la réalisation de votre future résidence. Ce bien est idéalement situé dans le département de l’Aube, à proximité de toutes les commodités nécessaires à votre quotidien. Le village de Champignol-lez-Mondeville est réputé pour sa qualité de vie, offrant des écoles à proximité ainsi que diverses activités locales. Les paysages environnants ajoutent une touche de sérénité, faisant de cet emplacement un véritable havre de paix. De plus, vous bénéficierez de la tranquillité de la campagne tout en étant à une distance raisonnable des villes environnantes. Ne manquez pas cette opportunité d’acquérir un terrain au potentiel exceptionnel et idéalement situé. Contactez-nous dès maintenant pour plus d’informations et pour envisager la réalisation de votre projet de rêve sur ce terrain unique.
L’actualité immobilière à Fontette





