Images
Description
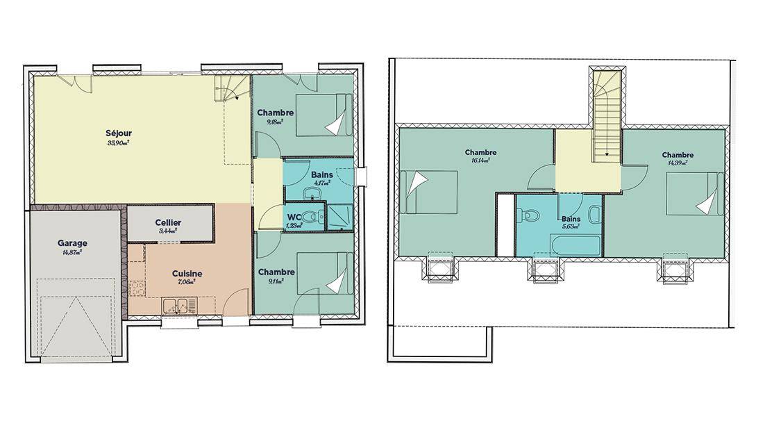
Sur ce terrain, nous vous proposons cette maison neuve : la Focus EVO, un modèle unique de 110 m² conçu par Babeau-Seguin, constructeur offrant le meilleur rapport qualité/prix du marché. Cette maison basse consommation est conforme à la norme RE2020, garantissant des performances énergétiques exceptionnelles.
La Focus EVO se distingue par son concept évolutif, alliant une maison neuve prête à vivre et une maison prête à finir. Livrée avec 73 m² habitables, elle est conçue pour évoluer avec vos besoins futurs. Grâce à ses combles aménageables, vous pouvez facilement augmenter votre surface habitable à 110 m², ajoutant ainsi deux chambres supplémentaires et une salle de bain, pour un total de 4 chambres et 2 salles de bains.
Les caractéristiques principales de cette maison incluent un garage intégré, un cellier, et des combles aménageables. Les options les plus demandées par nos clients, telles que la version Investisseur et les prises USB murales, sont également disponibles.
La Focus EVO est idéale pour tous ceux qui recherchent une maison complète à un prix compétitif. Elle comprend une grande pièce de jour traversante, 4 chambres, une salle de bain, et un garage de 15 m². Que vous soyez un jeune couple, un célibataire ou une famille en pleine expansion, cette maison saura s'adapter à vos besoins et à vos envies.
Ne manquez pas cette occasion unique de devenir propriétaire d'une maison évolutive, économe en énergie et conforme aux dernières normes environnementales. Contactez-nous dès aujourd'hui pour plus d'informations et pour planifier une visite.
Logement susceptibles de vous intéresser
Nous vous proposons de découvrir aussi cette sélection de logements situés à moins de 10km de Laines-aux-Bois et qui seraient susceptibles de vous intéresser.

Saint-Pouange
TERRAINA VENDRE Terrain constructible viabilisé de 1172 m2 – Secteur prisé proche Troyes.A 10 km du centre de Troyes – Accs autoroute à seulement 9 kmDans petit lotissement calme proche écoleContactez moi pour plus de renseignements ou organiser une visiteCette annonce référence 305585 vous est présentée par votre agent commercial BSK Immobilier SANDRA GUILLETAT (EI) immatriculé au RSAC de TROYES (10000) sous le numéro 82813668900027.Prix du bien : 138 000,00 €Les honoraires d’agence sont à la charge du vendeur.Les informations sur les risques auxquels ce bien est exposé sont disponibles sur le site Géorisques : www.georisques.gouv.fr

Montgueux
TERRAINMontgueux : terrain de 800 m² en venteIDÉALEMENT SITUÉ – VUE DÉGAGÉEÀ Montgueux (10300) à vendre à deux pas de Troyes, venez découvrir ce terrain de 800 m². Il profite d’une vue dégagée. Il est situé dans un quartier recherché. Une école élémentaire y est implantée. Niveau transports, il y a la gare Troyes à moins de 10 minutes en voiture. L’autoroute A5 et la nationale N77 sont accessibles à moins de 8 km. On trouve un tennis à proximité.Ce terrain est proposé à l’achat pour 55 000 €. Prenez contact avec Alexandra COGLIATI (tél : (Numéro supprimé)) pour tout renseignement sur le terrain.Annonce proposée par un Agent Commercial Partenaire.

Montgueux
TERRAIN ET MAISONMontgueux : maison F6 (106 m²) en venteIDÉALEMENT SITUÉE – MAISON 6 PIÈCES NEUVEEn vente à quelques kilomètres de Troyes, nous vous présentons cette maison de 6 pièces de 106 m² et de 800 m² de terrain avec vue dégagée idéalement située dans Montgueux (10300). Son intérieur comporte quatre chambres, une cuisine et deux salles de bains.Cette maison est de plain-pied. Elle est neuve.La maison se trouve dans un quartier prisé. Une école élémentaire y est implantée. Côté transports en commun, il y a la gare Troyes à moins de 10 minutes en voiture. L’autoroute A5 et la nationale N77 sont accessibles à moins de 8 km. On trouve un tennis dans les environs.Elle est à vendre pour la somme de 265 000 €.Prenez contact avec notre agence (COGLIATI Alexandra : (Numéro supprimé)) pour tout renseignement sur la maison, sur les démarches à suivre ou sur les modalités de vente. Maisons France Confort Troyes est là pour vous accompagner dans tous vos projets immobiliers.Annonce proposée par un Agent Commercial Partenaire.

Montgueux
TERRAIN ET MAISONMontgueux : maison F4 (81 m²) à vendreIDÉALEMENT SITUÉE – MAISON 4 PIÈCES NEUVEÀ vendre : à deux pas de Troyes, venez découvrir cette maison de 4 pièces de plain-pied de 81 m² et de 800 m² de terrain, idéalement située dans Montgueux (10300). Son intérieur comporte trois chambres, une cuisine et une salle de bains.La maison est neuve.Cette maison se situe dans un quartier recherché. On y trouve une école élémentaire. Côté transports, on trouve la gare Troyes à moins de 10 minutes en voiture. L’autoroute A5 et la nationale N77 sont accessibles à moins de 8 km. Il y a un tennis à proximité du bien.Elle est proposée à l’achat pour 220 000 €.N’hésitez pas à prendre contact avec Alexandra COGLIATI (tél : (Numéro supprimé)) pour plus d’informations sur la maison ou sur les modalités de vente. Donnez vie à vos projets immobiliers avec Maisons France Confort Troyes.Annonce proposée par un Agent Commercial Partenaire.

Macey
TERRAINDécouvrez ce magnifique terrain viabilisé de 714 m², idéalement situé dans un cadre champêtre. Ce dernier terrain disponible du lotissement représente une opportunité unique pour réaliser votre projet de construction de maison. Ce terrain en pente offrant une vue imprenable serait parfait pour la réalisation d’une maison sur sous sol. À proximité, vous trouverez toutes les commodités nécessaires au quotidien, école, ramassage scolaire. À noter qu’en tant que constructeur, nous ne sommes pas mandatés pour réaliser la vente de ce terrain.

Macey
TERRAIN ET MAISONSur ce terrain, nous vous proposons cette maison neuve, la Sommière, conçue par Babeau-Seguin, constructeur offrant le meilleur rapport qualité/prix du marché. Avec une surface de 107 m², cette maison moderne en L se distingue par son design élégant et ses nombreuses options de personnalisation.La Sommière dispose de 4 chambres spacieuses et de 4 pièces, offrant un espace de vie confortable et fonctionnel pour toute la famille. Vous avez la possibilité de choisir entre un toit à 2 pans ou à 4 pans, selon vos préférences esthétiques et architecturales. De plus, cette maison peut être équipée d’un garage ou d’un sous-sol, selon vos besoins spécifiques.Cette maison neuve est basse consommation et conforme à la RE2020, garantissant une performance énergétique optimale et des économies sur vos factures d’énergie. La Sommière est disponible en plus de 10 versions, allant d’une surface de 78 m² à 148 m², ce qui en fait la maison plain-pied la plus déclinée de toute notre gamme.Avec ou sans garage intégré, avec ou sans galerie, la Sommière s’adapte parfaitement aux besoins et aux attentes de chacun. Nous lui décernons sans hésitation le prix de la maison sur mesure !Ne manquez pas cette opportunité unique de faire construire une maison qui répondra à toutes vos attentes et vous offrira un cadre de vie exceptionnel. Contactez-nous dès maintenant pour plus d’informations et pour découvrir toutes les options disponibles pour personnaliser votre future maison Sommière.

Montgueux
TERRAINDécouvrez ce terrain exceptionnel de 1030 m² situé à Montgueux. Ce terrain, non viabilisé, représente une belle opportunitée unique pour réaliser votre projet de construction de maison. Profitez d’une superficie spacieuse offrant une superbe vue, idéale pour concevoir un cadre de vie serein et agréable, tout en étant à proximité des accès autoroutiers pour faciliter vos déplacements. Les écoles, commerces et services de santé sont facilement accessibles, accès autoroute Torvilliers en 10 min , 1h30 de Paris. Ne manquez pas cette occasion d’acquérir un terrain d’exception qui répond à vos aspirations de construction. Pour plus d’informations, n’hésitez pas à nous contacter. À noter qu’en tant que constructeur, nous ne sommes pas mandatés pour réaliser la vente de ce terrain.

Montgueux
TERRAIN ET MAISONSur ce terrain, nous vous proposons cette maison neuve, la Provencière, conçue par Babeau-Seguin, constructeur offrant le meilleur rapport qualité/prix du marché. Inspirée par le charme de la Provence, cette maison de 134 m² allie élégance et fonctionnalité.La Provencière se distingue par son architecture typiquement provençale avec sa tour et son plan en L. Elle est disponible avec une toiture à 2 pans ou 4 pans, selon vos préférences. La maison comprend 4 chambres spacieuses et 4 pièces, offrant un espace de vie confortable et bien agencé.Les caractéristiques principales de cette maison incluent une dalle étage en béton, une avancée en tour et une galerie, ajoutant une touche de prestige et de charme à l’ensemble. Les options les plus demandées par nos clients, telles que l’enduit bi-ton et les menuiseries en aluminium, sont également disponibles pour personnaliser votre maison selon vos goûts.Cette maison neuve est basse consommation et conforme à la réglementation environnementale RE2020, garantissant une performance énergétique optimale et un respect de l’environnement.Prestigieuse et attachante, cette maison du sud vous fera sans doute craquer ! Idéale pour les terrains étroits, la Provencière conserve tous les avantages de la gamme, offrant un espace de vie harmonieux et fonctionnel.Ne manquez pas cette opportunité unique de devenir propriétaire d’une maison alliant tradition provençale et modernité, avec le meilleur rapport qualité/prix du marché. Contactez-nous dès aujourd’hui pour plus d’informations et pour planifier une visite.

Rosières-près-Troyes
TERRAIN ET MAISONSur ce terrain, nous vous proposons cette maison neuve : la Focus Family. Conçue par Babeau-Seguin, constructeur offrant le meilleur rapport qualité/prix du marché, cette maison familiale à tout petit prix est idéale pour ceux qui souhaitent allier confort et économies.Avec une surface habitable de 89 m², la Focus Family vous offre un espace généreux et bien agencé. Elle comprend 4 chambres, parfaites pour accueillir toute votre famille, ainsi qu’un grand séjour traversant avec cuisine ouverte, pour un total de 4 pièces. Vous apprécierez également le garage intégré, pratique pour stationner votre véhicule ou pour du rangement supplémentaire.L’enduit bi-ton de la façade apporte une touche moderne et élégante à cette maison. De plus, les options les plus demandées par nos clients, comme les menuiseries en aluminium, sont disponibles pour personnaliser votre future habitation selon vos goûts.La Focus Family est une maison basse consommation, conforme à la réglementation environnementale RE2020. Elle est équipée des dernières innovations technologiques pour garantir une isolation thermique et phonique optimale, tout en étant économique et respectueuse de l’environnement.Ne faites aucune concession sur la qualité avec cette maison low cost de luxe. Babeau-Seguin met tout son savoir-faire et son professionnalisme dans la construction de la gamme Focus, en utilisant les meilleurs matériaux et une charpente traditionnelle.N’attendez plus pour réaliser votre projet de maison familiale à petit prix avec la Focus Family, une maison spacieuse, écolo et accessible à tous les budgets.
L’actualité immobilière à Laines-aux-Bois





