Images
Description
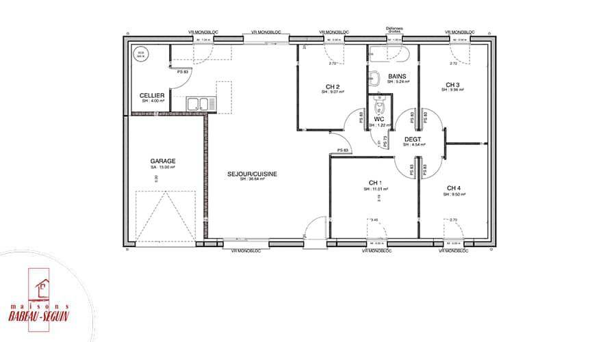
Sur ce terrain, nous vous proposons cette maison neuve : la Focus Family. Conçue par Babeau-Seguin, constructeur offrant le meilleur rapport qualité/prix du marché, cette maison familiale à tout petit prix est idéale pour ceux qui souhaitent allier confort et économies.
Avec une surface habitable de 89 m², la Focus Family vous offre un espace généreux et bien agencé. Elle comprend 4 chambres, parfaites pour accueillir toute votre famille, ainsi qu'un grand séjour traversant avec cuisine ouverte, pour un total de 4 pièces. Vous apprécierez également le garage intégré, pratique pour stationner votre véhicule ou pour du rangement supplémentaire.
L'enduit bi-ton de la façade apporte une touche moderne et élégante à cette maison. De plus, les options les plus demandées par nos clients, comme les menuiseries en aluminium, sont disponibles pour personnaliser votre future habitation selon vos goûts.
La Focus Family est une maison basse consommation, conforme à la réglementation environnementale RE2020. Elle est équipée des dernières innovations technologiques pour garantir une isolation thermique et phonique optimale, tout en étant économique et respectueuse de l'environnement.
Ne faites aucune concession sur la qualité avec cette maison low cost de luxe. Babeau-Seguin met tout son savoir-faire et son professionnalisme dans la construction de la gamme Focus, en utilisant les meilleurs matériaux et une charpente traditionnelle.
N'attendez plus pour réaliser votre projet de maison familiale à petit prix avec la Focus Family, une maison spacieuse, écolo et accessible à tous les budgets.
Logement susceptibles de vous intéresser
Nous vous proposons de découvrir aussi cette sélection de logements situés à moins de 10km de Marolles-sous-Lignières et qui seraient susceptibles de vous intéresser.

Lignières
TERRAIN ET MAISONSur ce terrain, nous vous proposons cette maison neuve : l’Intimity I de notre gamme Evasihome.Chez Babeau-Seguin, constructeur offrant le meilleur rapport qualité/prix du marché, nous voulons en faire toujours plus pour nos clients?! C’est pourquoi notre bureau d’étude a imaginé cette gamme de modèles tous dotés d’une suite parentale généreuse. Parce qu’en tant que parents, vous avez besoin d’un peu d’intimité et de tranquillité, même si vous adorez être avec votre petite famille?! Evasihome Intimity I répond à cette attente.Un joli pavillon où tout le monde se sent à l’aiseEvasihome Intimity I est un pavillon de plain-pied avec garage intégré, agrémenté d’une terrasse semi-couverte. La suite parentale comprend un beau dressing et une salle d’eau, pour un confort maximum. Une porte-fenêtre donne directement sur la terrasse, pour plus d’autonomie?! Disponible en trois dimensions, avec deux ou trois chambres, en plus de la suite parentale, toutes dotées de placards, pour la tribu. Une salle de bain avec w.c. séparés, une grande pièce de vie avec cuisine ouverte et un cellier complètent l’ensemble.Une maison aux dimensions adaptéesL’Intimity I vous est proposée dans trois dimensions : 95 m², 110 m² et 125 m² pour s’adapter aux besoins de votre famille. Craquez dès aujourd’hui pour ce merveilleux modèle et venez nous rendre visite en agence, nous vous dirons tout ce que vous voulez savoir sur votre future maison?! De plus, nous vous présenterons, si vous le souhaitez, un catalogue de terrains à bâtir afin de vous simplifier la vie.Quoi de mieux pour ce terrain que le modèle Intimity I de 94 m². L’objectif de cette maison est simple : allier une forme traditionnelle rassurante et un intérieur moderne et adapté aux exigences d’aujourd’hui, le tout avec un maximum d’équipements de série. Cette maison dispose de 3 chambres, une suite parentale avec dressing et salle de bain, et une terrasse couverte.Les caractéristiques principales de cette maison sont : une

Lignières
TERRAINSitué à Lignières, dans le département de l’Aube, ce terrain présente un cadre champêtre et paisible qui saura séduire tous ceux en quête d’un environnement calme et serein. Grâce à ses caractéristiques uniques, vous pourrez donner vie à votre projet immobilier dans un lieu où tranquillité rime avec qualité de vie. La commune de Lignières se distingue par son cadre naturel idyllique et ses nombreuses attractions locales. Profitez de la proximité des commodités essentielles tout en bénéficiant d’un environnement rural préservé, idéal pour les familles et les amoureux de la nature. Ne manquez pas cette occasion unique d’acquérir ce terrain. Contactez-nous pour plus d’informations et envisagez de transformer cette parcelle en votre futur chez-vous.

Lignières
TERRAINSitué à Lignières, dans le département de l’Aube, ce terrain présente un cadre champêtre et paisible qui saura séduire tous ceux en quête d’un environnement calme et serein. Grâce à ses caractéristiques uniques, vous pourrez donner vie à votre projet immobilier dans un lieu où tranquillité rime avec qualité de vie. La commune de Lignières se distingue par son cadre naturel idyllique et ses nombreuses attractions locales. Profitez de la proximité des commodités essentielles tout en bénéficiant d’un environnement rural préservé, idéal pour les familles et les amoureux de la nature. Ne manquez pas cette occasion unique d’acquérir ce terrain. Contactez-nous pour plus d’informations et envisagez de transformer cette parcelle en votre futur chez-vous.

Lignières
TERRAIN ET MAISONSur ce terrain, nous vous proposons cette maison neuve : la Focus EVO, un modèle unique de 110 m² conçu par Babeau-Seguin, constructeur offrant le meilleur rapport qualité/prix du marché. Cette maison basse consommation est conforme à la norme RE2020, garantissant des performances énergétiques exceptionnelles.La Focus EVO se distingue par son concept évolutif, alliant une maison neuve prête à vivre et une maison prête à finir. Livrée avec 73 m² habitables, elle est conçue pour évoluer avec vos besoins futurs. Grâce à ses combles aménageables, vous pouvez facilement augmenter votre surface habitable à 110 m², ajoutant ainsi deux chambres supplémentaires et une salle de bain, pour un total de 4 chambres et 2 salles de bains.Les caractéristiques principales de cette maison incluent un garage intégré, un cellier, et des combles aménageables. Les options les plus demandées par nos clients, telles que la version Investisseur et les prises USB murales, sont également disponibles.La Focus EVO est idéale pour tous ceux qui recherchent une maison complète à un prix compétitif. Elle comprend une grande pièce de jour traversante, 4 chambres, une salle de bain, et un garage de 15 m². Que vous soyez un jeune couple, un célibataire ou une famille en pleine expansion, cette maison saura s’adapter à vos besoins et à vos envies.Ne manquez pas cette occasion unique de devenir propriétaire d’une maison évolutive, économe en énergie et conforme aux dernières normes environnementales. Contactez-nous dès aujourd’hui pour plus d’informations et pour planifier une visite.

Marolles-sous-Lignières
TERRAINVous recherchez le terrain idéal pour construire la maison de vos rêves? Ne cherchez plus! Ce terrain de 1000m² à Marolles-sous-Lignières offre un emplacement parfait pour votre nouveau projet de vie. Avec son prix attractif de 12000€, c’est une opportunité à ne pas manquer. Situé dans le département de l’Aube, ce terrain bénéficie d’un emplacement idéal dans la charmante commune de Marolles-sous-Lignières. La région offre de nombreux attraits pour vivre une vie agréable et épanouissante. De magnifiques paysages avec une vue dégagée sur les collines environnantes, des promenades à pied ou à vélo dans la nature, la possibilité d’admirer une faune et une flore variées. De plus, le terrain est plat, ce qui facilitera grandement la construction de votre future maison. Vous pourrez également profiter de la tranquillité des lieux, grâce à son environnement calme. Ce terrain présente un énorme potentiel pour y construire la maison de vos rêves. Avec ses 1000m², vous pourrez laisser libre cours à votre imagination et créer l’espace de vie qui vous conviendra parfaitement. Ne manquez pas cette opportunité unique d’acquérir un terrain au prix attractif dans cette région pleine de charme.

Marolles-sous-Lignières
TERRAIN ET MAISONSur ce terrain, nous vous proposons cette maison neuve : la Focus Family. Conçue par Babeau-Seguin, constructeur offrant le meilleur rapport qualité/prix du marché, cette maison familiale à tout petit prix est idéale pour ceux qui souhaitent allier confort et économies.Avec une surface habitable de 89 m², la Focus Family vous offre un espace généreux et bien agencé. Elle comprend 4 chambres, parfaites pour accueillir toute votre famille, ainsi qu’un grand séjour traversant avec cuisine ouverte, pour un total de 4 pièces. Vous apprécierez également le garage intégré, pratique pour stationner votre véhicule ou pour du rangement supplémentaire.L’enduit bi-ton de la façade apporte une touche moderne et élégante à cette maison. De plus, les options les plus demandées par nos clients, comme les menuiseries en aluminium, sont disponibles pour personnaliser votre future habitation selon vos goûts.La Focus Family est une maison basse consommation, conforme à la réglementation environnementale RE2020. Elle est équipée des dernières innovations technologiques pour garantir une isolation thermique et phonique optimale, tout en étant économique et respectueuse de l’environnement.Ne faites aucune concession sur la qualité avec cette maison low cost de luxe. Babeau-Seguin met tout son savoir-faire et son professionnalisme dans la construction de la gamme Focus, en utilisant les meilleurs matériaux et une charpente traditionnelle.N’attendez plus pour réaliser votre projet de maison familiale à petit prix avec la Focus Family, une maison spacieuse, écolo et accessible à tous les budgets.
L’actualité immobilière à Marolles-sous-Lignières





