Maison à construire à Voué (10150)
Images
Description
Réalisez Votre projet de construction sur la commune de VOUE
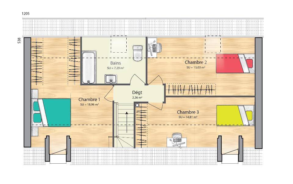
En vente à seulement 20 minutes de TROYES, Maisons France Confort vous présente à VOUE cette maison de 6 pièces de 105 m².
Cette maison se compose de 4 chambres, une cuisine 2 salle de bains et un garage. Cette maison est neuve.
Le terrain de la propriété s'étend sur 800 m².
Elle est proposée à l'achat pour 226000 €. Hors frais annexes
N'hésitez pas à prendre contact avec notre agence Sandrine BOUCHOUX : (Numéro supprimé) pour tout renseignement sur ce projet. Maisons France Confort TROYES est là pour vous accompagner dans tous vos projets immobiliers.
Annonce proposée par un Agent Commercial Partenaire.
Logement susceptibles de vous intéresser
Nous vous proposons de découvrir aussi cette sélection de logements situés à moins de 10km de Voué et qui seraient susceptibles de vous intéresser.
Voué
TERRAINTerrain constructible à VOUE 800 m² Opportunité 3 terrains constructibles de 800 m²Ne laissez pas passer cette opportunité de devenir propriétaire. Imaginez la maison de vos rêves sur ce terrain, entourée d’un magnifique jardin sécurisé pour vos enfants, offrant un espace paisible où ils pourront jouer en toute tranquillité. Si la construction de votre propre maison est dans vos projets, ce terrain constructible est actuellement disponible à l’achat grâce à notre partenaire foncier, sous réserve de disponibilité.Ne perdez pas de temps pour réaliser la maison de vos rêves et saisissez dès maintenant cette opportunité ! Contactez Sandrine BOUCHOUX au (Numéro supprimé) pour obtenir plus d’informations.Maisons France Confort de TROYES vous accompagne dans tous vos projets immobiliersAnnonce proposée par un Agent Commercial Partenaire.
Voué
TERRAIN ET MAISONRéalisez Votre projet de construction sur la commune de VOUEEn vente à seulement 20 minutes de TROYES, Maisons France Confort vous présente cette maison de 3 pièces de 71 m².Cette maison se compose de 2 chambres, une cuisine 1 salle de bains et un garage. Cette maison est neuve.Le terrain de la propriété s’étend sur 800 m².Elle est proposée à l’achat pour 187000 €. Hors frais annexesN’hésitez pas à prendre contact avec notre agence Sandrine BOUCHOUX : (Numéro supprimé) pour tout renseignement sur ce projet. Maisons France Confort TROYES est là pour vous accompagner dans tous vos projets immobiliers.Annonce proposée par un Agent Commercial Partenaire.
Voué
TERRAIN ET MAISONRéalisez Votre projet de construction sur la commune de VOUEEn vente à seulement 20 minutes de TROYES, Maisons France Confort vous présente cette maison de 4 pièces de 85 m².Cette maison se compose de 3 chambres, une cuisine 1 salle de bains et un garage. Cette maison est neuve.Le terrain de la propriété s’étend sur 800 m².Elle est proposée à l’achat pour 200000 €. Hors frais annexesN’hésitez pas à prendre contact avec notre agence Sandrine BOUCHOUX : (Numéro supprimé) pour tout renseignement sur ce projet. Maisons France Confort TROYES est là pour vous accompagner dans tous vos projets immobiliers.Annonce proposée par un Agent Commercial Partenaire.
Voué
TERRAIN ET MAISONRéalisez Votre projet de construction sur la commune de VOUEEn vente à seulement 20 minutes de TROYES, Maisons France Confort vous présente cette maison de 5 pièces de 10 m².Cette maison se compose de 4 chambres dont une suite parentale avec dressing et Sde, une cuisine 1 salle de bains et un garage. Cette maison est neuve.Le terrain de la propriété s’étend sur 800 m².Elle est proposée à l’achat pour 227000 €. Hors frais annexesN’hésitez pas à prendre contact avec notre agence Sandrine BOUCHOUX : (Numéro supprimé) pour tout renseignement sur ce projet. Maisons France Confort TROYES est là pour vous accompagner dans tous vos projets immobiliers.Annonce proposée par un Agent Commercial Partenaire.
Voué
TERRAIN ET MAISONRéalisez Votre projet de construction sur la commune de VOUEEn vente à seulement 20 minutes de TROYES, Maisons France Confort vous présente cette maison de 5 pièces de 90 m².Cette maison se compose de 4 chambres, une cuisine 1 salle de bains et un garage. Cette maison est neuve.Le terrain de la propriété s’étend sur 800 m².Elle est proposée à l’achat pour 229000 €. Hors frais annexesN’hésitez pas à prendre contact avec notre agence Sandrine BOUCHOUX : (Numéro supprimé) pour tout renseignement sur ce projet. Maisons France Confort TROYES est là pour vous accompagner dans tous vos projets immobiliers.Annonce proposée par un Agent Commercial Partenaire.
Vailly
TERRAINSur la commune de VAILLY : Belle opportunité :un terrain de 1027 m² en vente Il est proposé à l’achat pour 75000 €.Si la construction de votre propre maison est dans vos projets, ce terrain constructible est actuellement disponible à l’achat grâce à notre partenaire foncier, sous réserve de disponibilité. Ne perdez pas de temps pour réaliser la maison de vos rêves et saisissez dès maintenant cette opportunité ! N’hésitez pas à prendre contact avec notre agence Maisons France Confort de TROYES Mme Sandrine BOUCHOUX : (Numéro supprimé) pour tout renseignement Maisons France Confort de TROYES vous accompagne dans tous vos projets immobiliersAnnonce proposée par un Agent Commercial Partenaire.
Voué
TERRAINTerrain constructible VOUE 900 m² Opportunité 3 lotsTerrain Constructible à VOUE pour Votre Projet Immobilier Ne laissez pas passer cette opportunité de devenir propriétaire d’un terrain constructible. Imaginez la maison de vos rêves sur ce terrain, entourée d’un magnifique jardin sécurisé pour vos enfants, offrant un espace paisible où ils pourront jouer en toute tranquillité. Si la construction de votre propre maison est dans vos projets, ce terrain constructible est actuellement disponible à l’achat grâce à notre partenaire foncier, sous réserve de disponibilité. Ne perdez pas de temps pour réaliser la maison de vos rêves et saisissez dès maintenant cette opportunité ! Contactez Sandrine BOUCHOUX au (Numéro supprimé) pour obtenir plus d’informations.Maisons France Confort de TROYES vous accompagne dans tous vos projets immobiliersAnnonce proposée par un Agent Commercial Partenaire.
Vailly
TERRAIN ET MAISONRéalisez Votre projet de construction sur la commune de VAILLYEn vente à seulement 15 minutes de TROYES, Maisons France Confort vous présente à VAILLY cette maison de 4 pièces de 85 m².Cette maison se compose de 3 chambres, une cuisine 1 salle de bains et un garage. Cette maison est neuve.Le terrain de la propriété s’étend sur 1027 m².Elle est proposée à l’achat pour 235000 €. Hors frais annexesN’hésitez pas à prendre contact avec notre agence Sandrine BOUCHOUX : (Numéro supprimé) pour tout renseignement sur ce projet. Maisons France Confort TROYES est là pour vous accompagner dans tous vos projets immobiliers.Annonce proposée par un Agent Commercial Partenaire.
Vailly
TERRAIN ET MAISONRéalisez Votre projet de construction sur la commune de VAILLYEn vente à seulement 15 minutes de TROYES, Maisons France Confort vous présente à VAILLY cette maison de 5 pièces de 97 m².Cette maison se compose de 4 chambres, une cuisine 1 salle de bains et un garage. Cette maison est neuve.Le terrain de la propriété s’étend sur 1027 m².Elle est proposée à l’achat pour 259900 €. Hors frais annexesN’hésitez pas à prendre contact avec notre agence Sandrine BOUCHOUX : (Numéro supprimé) pour tout renseignement sur ce projet. Maisons France Confort TROYES est là pour vous accompagner dans tous vos projets immobiliers.Annonce proposée par un Agent Commercial Partenaire.
L’actualité immobilière à Voué
27/11/2023
02/11/2023
30/10/2023
20/10/2023
16/10/2023
16/10/2023