Maison à construire à Coursan (11110)
Images
Description
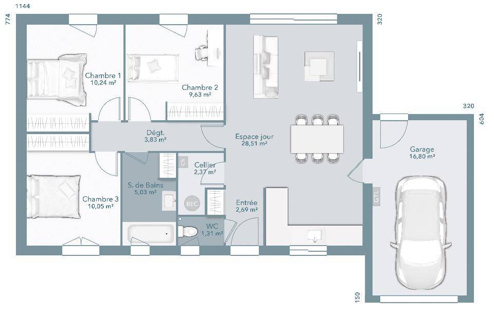
Maison T4 (73 m²) en vente à Coursan
MAISON 4 PIÈCES NEUVE - PROCHE DE BÉZIERS
En vente : à 14 km de la côte méditerranéenne et à deux pas de Béziers, nous vous proposons à Coursan (11110), cette maison de 4 pièces de plain-pied de 73 m² et de 300 m² de terrain.
Conçue de plain-pied, elle se divise en trois chambres, une cuisine et une salle de bains. La maison est neuve.
On trouve cinq établissements scolaires à moins de 10 minutes à pied. Côté transports, il y a la gare Coursan dans les environs. L'autoroute A9 est accessible à 7 km. On trouve deux tennis, quatre boulangeries, trois commerces, deux supermarchés, une supérette et un bureau de poste à quelques minutes à peine. Le marché Place et Halle anime les environs.
Son prix de vente est de 225 000 €.
N'hésitez pas à prendre contact avec Jeannine ESTADIEU ((Numéro supprimé)) pour toute information sur cette maison ou sur les modalités de vente. Donnez vie à vos projets immobiliers avec Maisons France Confort Narbonne.
Logement susceptibles de vous intéresser
Nous vous proposons de découvrir aussi cette sélection de logements situés à moins de 10km de Coursan et qui seraient susceptibles de vous intéresser.
Coursan
TERRAIN ET MAISONDécouvrez les charmes de LA LIBECCIO. Cette belle maison de plain-pied, qui saura vous séduire par son architecture en forme de L, son look tendance et son aménagement intérieur. Son espace de vie traversant et lumineux de 48 m² vous offre un accès direct sur votre future terrasse couverte de 12 m². La partie nuit est composée de 3 chambres avec de beaux rangements, d’une salle de bain et de l’autre côté de la Pièce à vivre, une belle suite parentale avec dressing et salle d’eau privative. Un grand garage de 22 m² vous donnera du confort de rangement tout en ayant la possibilité de garer votre voiture. OC RESIDENCES, constructeur de maisons individuelles depuis bientôt 40 ans, réalise votre rêve de maison.
Coursan
TERRAIN ET MAISONLe modèle Quatre Saisons est une maison à étage qui vous plaira par sa simplicité et son agencement pensé pour améliorer votre confort de vie. Au rez de chaussée, vous disposerez d’un espace vie de 39 m² communiquant sur un garage, d’une belle suite parentale indépendante de 17 m² et d’un coin rangement avec un WC indépendant. A l’étage, vous trouverez deux belles chambres avec une salle de bains. Cette maison est à construire dans le département du Tarn, l’Aude, l’Hérault, la Haute-Garonne ainsi que les Pyrénées Orientales par Oc résidences, votre constructeur sur mesure en Occitanie.
Coursan
TERRAIN ET MAISONLe modèle LITTORAL 83 est une maison à étage aux lignes sobres et épurées. Son Salon/Séjour de plus de 38 m² m² offre un bel espace de vie à toute la famille. Un cellier augmentera vos espaces de rangements. A l’étage, vous trouverez trois chambres avec placard et une salle de bains. Le modèle LITTORAL 83 est une maison familiale et coquette qui plaira par son agencement pensé pour votre confort de vie, par Oc résidences, votre constructeur sur mesure en Occitanie depuis 1983.
Coursan
TERRAIN ET MAISONDécouvrez le modèle Croix du sud, une maison au design unique. Son architecture et son aménagement intérieur enchanteront votre quotidien. Son porche d’entrée couvert vous donnera accès à un hall d’entrée avec WC et placard. Son Salon/Séjour de 56 m², ouvert sur le jardin par de nombreuses baies vitrées, vous procurera un sentiment de liberté et d’espace. Sa terrasse couverte agrémentera vos soirées et son garage de 17 m² en liaison avec un cellier amélioreront vos espaces de rangements. Le coin nuit vous offre trois belles chambres, dont une suite parentale de plus de 20 m² et une salle de bains conviviale. N’attendez plus et contactez nous pour construire votre projet de vie dans le Tarn, l’Aude, L’Hérault, la Haute-Garonne ainsi que les Pyrénées Orientales.
Coursan
TERRAIN ET MAISONNos architectes ont conçu ce modèle pour vous. Cette maison résolument contemporaine, saura vous séduire par son architecture innovante et sa terrasse couverte qui lui donnera un design unique. Elle possède trois espaces bien distincts avec un espace jour de 45 m² baignant de lumière grâce à ses 4 baies vitrées. Un espace nuit avec 2 belles chambres, et une salle de bains confortable et un troisième espace indépendant avec sa suite parentale de 23 m². Le modèle Lumière est à construire dans le département du Tarn, l’Aude, l’Hérault, la Haute-Garonne ainsi que les Pyrénées Orientales par Oc résidences, votre constructeur sur mesure en Occitanie.
Coursan
TERRAIN ET MAISONLa Rose des Vents 89 est une maison moderne, bien pensée, privilégiant le confort dans toute la maison. Elle dispose d’une surface de 89 m² habitable, de plain-pied, optimisée et composée d’un hall d’entrée avec WC et placards, d’un salon séjour de 41 m² qui bénéficie de larges baies vitrées pour un plein ensoleillement, et d’un coin nuit avec 3 grandes chambres et une belle SDB. Un Garage de 15 m² viendra agrémenter le confort de votre maison.Selon l’orientation du terrain et selon vos préférences, de nombreuses options et aménagements sont possibles. Laissez- vous séduire par son originalité et ses volumes et contactez nous pour construire votre projet de vie dans le Tarn, l’Aude, L’Hérault, la Haute-Garonne ainsi que les Pyrénées Orientales.
Narbonne
TERRAIN ET MAISONLaissez vous séduire par notre nouveau modèle, La SIROCCO. Cette villa, lumineuse et généreuse, vous séduira par son agencement et offrira d’agréables moments à toute votre famille. Sa grande pièce à vivre de 41 m², séparera votre suite parentale, d’un coin nuit aménagé avec deux autres chambres équipées de placard et d’une Salle de bain. Ses grandes ouvertures vous permettront de profiter des extérieurs avec vos amis et votre famille tout au long de l’année. La SIROCCO est à construire dans le département du Tarn, l’Aude, l’Hérault, la Haute-Garonne ainsi que les Pyrénées Orientales par Oc résidences, votre constructeur sur mesure en Occitanie.
Narbonne
TERRAIN ET MAISONOc résidences, constructeur de maisons individuelles vous propose cette maison neuve à construire dans le département du Tarn, l’Aude, l’Hérault, la Haute-Garonne ainsi que les Pyrénées Orientales. Le modèle Matinale, résolument contemporain et fonctionnel, se compose d’une grande pièce à vivre traversante de 43 m² avec cuisine ouverte. Le coté nuit s’articule autour de 3 grandes chambres avec placard, une grande Salle de Bains de 7,5 m² avec baignoire, double vasque et un grand espace douche. Son garage de 24 m² vous permettra de stationner votre voiture et de créer un espace de rangement pour votre quotidien. Oc Résidences est votre constructeur sur mesure en Occitanie.
Coursan
TERRAIN ET MAISONOc résidences, constructeur de maisons individuelles vous propose cette maison neuve à construire dans le département du Tarn, l’Aude, l’Hérault, la Haute-Garonne ainsi que les Pyrénées Orientales. Le modèle Matinale, résolument contemporain et fonctionnel, se compose d’une grande pièce à vivre traversante de 43 m² avec cuisine ouverte. Le coté nuit s’articule autour de 3 grandes chambres avec placard, une grande Salle de Bains de 7,5 m² avec baignoire, double vasque et un grand espace douche. Son garage de 24 m² vous permettra de stationner votre voiture et de créer un espace de rangement pour votre quotidien. Oc Résidences est votre constructeur sur mesure en Occitanie.
L’actualité immobilière à Coursan
27/11/2023
02/11/2023
30/10/2023
20/10/2023
16/10/2023
16/10/2023