Maison à construire à Fontiès-d'Aude (11800)
Images
Description
VENTE d'une maison F6 GARAGE (100 m²) à Fontiès-d'Aude
IDÉALEMENT SITUÉE - MAISON 6 PIÈCES NEUVE
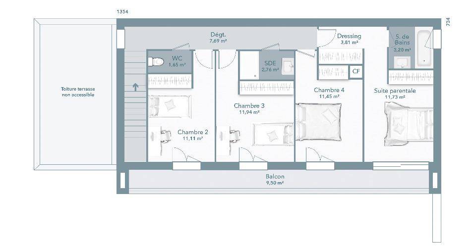
À vendre à deux pas de Carcassonne, nous sommes heureux de vous présenter cette maison de 6 pièces de 100 m² idéalement située dans Fontiès-d'Aude (11800). Elle dispose de quatre chambres, d'une cuisine et de deux salles de bains.
Profitez d'encore plus d'espace grâce à un balcon. Le terrain de la maison est de 2 700 m².
Cette maison possède 2 niveaux. Elle est neuve.
Cette maison est située dans un secteur convoité. Une école primaire y est implantée. Niveau transports, on trouve la gare Carcassonne à moins de 10 minutes en voiture. L'autoroute A61 est accessible à 3 km.
Elle est proposée à l'achat pour 346 867 €.
Contactez notre agence (Stéphane EMBID : (Numéro supprimé)) pour plus de renseignements sur la maison. Maisons France Confort Carcassonne est là pour vous accompagner dans tous vos projets immobiliers.
Logement susceptibles de vous intéresser
Nous vous proposons de découvrir aussi cette sélection de logements situés à moins de 10km de Fontiès-d'Aude et qui seraient susceptibles de vous intéresser.
Badens
TERRAIN ET MAISONBadens : maison de 4 pièces (89 m²) à vendreIDÉALEMENT SITUÉE – MAISON 4 PIÈCES NEUVEÀ vendre : localisée à quelques kilomètres de Carcassonne, idéalement située dans Badens (11800), notre agence Maisons France Confort Carcassonne est heureuse de vous présenter cette maison de 4 pièces de 89 m² avec vue dégagée. Conçue de plain-pied, elle est composée de trois chambres, d’une cuisine et d’une salle de bains.Le terrain du bien est de 1 000 m².Cette maison est de plain-pied. Elle est neuve.La maison se situe dans un secteur recherché. On y trouve une école primaire ainsi qu’une structure d’accueil pour les tout-petits. L’autoroute A61 est accessible à 8 km. On trouve un tennis, une boulangerie et un bureau de poste à proximité.Son prix de vente est de 199 900 €.Contactez Frédéric MAGERE ((Numéro supprimé)) pour obtenir de plus amples renseignements sur la maison, sur les démarches à suivre ou sur les modalités de vente.
Berriac
TERRAIN ET MAISONVENTE : maison F4 (89 m²) à CarcassonneEMPLACEMENT PRIVILÉGIÉ – MAISON 4 PIÈCES NEUVEEn vente bénéficiant d’un emplacement privilégié dans Carcassonne (11090), votre agence Maisons France Confort Carcassonne est ravie de vous présenter cette maison de 4 pièces de 89 m² avec vue sur bois.Cette maison est de plain-pied. Elle inclut trois chambres, une cuisine et une salle de bains. La maison est neuve.Le terrain de la propriété s’étend sur 850 m².Cette propriété est située dans un quartier attractif. Il y a tous les types d’écoles (maternelle, élémentaire et secondaire) à moins de 10 minutes en voiture, tout comme quatre crèches à moins de 10 minutes à pied. Côté transports, on trouve deux gares (Carcassonne et Couffoulens-Leuc) à moins de 10 minutes en voiture. L’autoroute A61 est accessible à 2 km. Il y a des tennis, des bassins de natation, trois bibliothèques, des commerces, des supermarchés, des boulangeries, des poissonneries et des bureaux de poste dans les environs.Cette maison est proposée à l’achat pour 190 900 €.Contactez notre constructeur (MAGERE Frédéric : (Numéro supprimé)) pour obtenir de plus amples informations sur la maison, sur les démarches à suivre ou sur les modalités de vente. Donnez vie à vos projets immobiliers avec Maisons France Confort Carcassonne.
Villefloure
TERRAINVENTE : terrain de 1 400 m² à VillefloureIDÉALEMENT SITUÉ – VUE DÉGAGÉEEn vente à deux pas de Carcassonne à Villefloure (11570), grand terrain. Il est prêt à accueillir votre projet de construction pour toute la famille. Ce terrain, exposé sud, profite d »une vue dégagée. Dans un secteur recherché, ce terrain idéalement situé est proche des écoles et des commerces. On trouve plusieurs écoles (maternelle, élémentaire, primaire et lycée) à moins de 10 minutes en voiture, tout comme une structure d »accueil pour les enfants en bas âge à moins de 10 minutes à pied. Côté transports en commun, il y a les gares Verzeille, Couffoulens-Leuc et Pomas à moins de 10 minutes en voiture. On trouve un accès à l »autoroute A61 à 9 km. On trouve deux bassins de natation, des tennis, une bibliothèque, des boulangeries, des commerces, deux supermarchés, des épiceries et deux supérettes à proximité.Son prix de vente est de 60 000 €. N »hésitez pas à prendre contact avec notre agence (Frédéric MAGERE : (Numéro supprimé)) pour toute question sur ce terrain. Maisons France Confort Carcassonne est là pour vous accompagner dans tous vos projets immobiliers.
Villefloure
TERRAIN ET MAISONVENTE : maison de 4 pièces (85 m²) à VillefloureIDÉALEMENT SITUÉE – VUE DÉGAGÉEEn vente à quelques kilomètres de Carcassonne, nous vous présentons cette maison de 4 pièces de 85 m² avec vue dégagée idéalement située dans Villefloure (11570). Elle comporte trois chambres, une cuisine et une salle de bains.Le terrain de la propriété s’étend sur 1 400 m².Il s’agit d’une maison de plain-pied. Elle est neuve.Cette maison se situe dans un quartier prisé. Plusieurs écoles (maternelle, élémentaire, primaire et lycée) sont implantées à moins de 10 minutes en voiture, tout comme une structure d’accueil pour la petite enfance à moins de 10 minutes à pied. Côté transports, on trouve trois gares (Verzeille, Couffoulens-Leuc et Pomas) à moins de 10 minutes en voiture. L’autoroute A61 est accessible à 9 km. Il y a deux bassins de natation, des tennis, une bibliothèque, des boulangeries, des commerces, deux supermarchés, des boucheries-charcuteries et trois bureaux de poste à proximité du bien.Son prix de vente est de 189 500 €.Contactez Frédéric MAGERE ((Numéro supprimé)) pour plus de renseignements sur la maison. Maisons France Confort Carcassonne est là pour vous accompagner à toutes les étapes de votre projet.
Villefloure
TERRAINVENTE : terrain de 1 820 m² à VillefloureIDÉALEMENT SITUÉ – VUE DÉGAGÉEEn vente à quelques kilomètres de Carcassonne à Villefloure (11570), grand terrain. Il profite d »une vue dégagée et est exposé au sud. Dans un quartier prisé, ce terrain idéalement situé est proche des écoles et des commerces. Plusieurs établissements scolaires (maternelle, élémentaire, primaire et lycée) sont implantés à moins de 10 minutes en voiture, tout comme une structure d »accueil pour les enfants en bas âge à moins de 10 minutes à pied. Côté transports, on trouve les gares Verzeille, Couffoulens-Leuc et Pomas à moins de 10 minutes en voiture. On trouve un accès à l »autoroute A61 à 9 km. Il y a deux bassins de natation, des tennis, une bibliothèque, des boulangeries, des commerces, deux supermarchés, trois bureaux de poste et deux supérettes dans les environs.Ce terrain est proposé à l »achat pour 54 690 €. N »hésitez pas à prendre contact avec Frédéric MAGERE ((Numéro supprimé)) pour tout renseignement sur le terrain ou sur les modalités de vente. Maisons France Confort Carcassonne vous accompagne à toutes les étapes de l »achat et dans tous vos projets immobiliers.
Villefloure
TERRAIN ET MAISONVENTE d’une maison T5 (90 m²) à VillefloureIDÉALEMENT SITUÉE – VUE DÉGAGÉEEn vente : située à 9 km de Carcassonne, nous vous proposons cette maison de 5 pièces de 90 m² et de 1 820 m² de terrain avec vue dégagée idéalement située dans Villefloure (11570).Cette maison est de plain-pied. Conçue de plain-pied, elle propose trois chambres, une cuisine et une salle de bains. Cette maison est neuve.La maison se trouve dans un quartier recherché. Plusieurs écoles (maternelle, élémentaire, primaire et lycée) sont implantées à moins de 10 minutes en voiture, tout comme une structure d’accueil pour les tout-petits à moins de 10 minutes à pied. Niveau transports, il y a les gares Verzeille, Couffoulens-Leuc et Pomas à moins de 10 minutes en voiture. Il y a un accès à l’autoroute A61 à 9 km. On trouve deux bassins de natation, des tennis, une bibliothèque, des boulangeries, des commerces, deux supermarchés, deux supérettes et trois bureaux de poste dans les environs.Elle est proposée à l’achat pour 186 000 €.N’hésitez pas à prendre contact avec notre agence (Frédéric MAGERE : (Numéro supprimé)) pour obtenir de plus amples informations sur la maison ou sur les modalités de vente. Maisons France Confort Carcassonne est là pour vous accompagner dans tous vos projets immobiliers.
Trèbes
TERRAINTerrain de 1 305 m² à vendre à TrèbesIDÉALEMENT SITUÉ – VUE DÉGAGÉEÀ 10 km de Carcassonne à Trèbes (11800), grand terrain. Il profite d’une vue dégagée et est exposé plein sud. Dans un secteur convoité, ce terrain idéalement situé est proche des commerces et des écoles. Cinq établissements scolaires sont implantés à moins de 10 minutes à pied. Niveau transports, on trouve la gare Carcassonne à moins de 10 minutes en voiture. L’autoroute A61 est accessible à 3 km. Il y a un tennis, quatre commerces, deux boulangeries, un supermarché, deux épiceries et deux boucheries-charcuteries à proximité.Ce terrain est proposé à l’achat pour 69 000 €. Contactez Frédéric MAGERE (tél : (Numéro supprimé)) pour toute information sur le terrain ou sur les démarches à suivre.
Trèbes
TERRAIN ET MAISONVENTE : maison T5 (100 m²) à TrèbesIDÉALEMENT SITUÉE – VUE DÉGAGÉEÀ quelques kilomètres de Carcassonne, nous vous présentons en vente, idéalement située dans Trèbes (11800), cette maison de 5 pièces de 100 m² et de 1 305 m² de terrain avec vue dégagée.Cette maison est de plain-pied. Son intérieur inclut quatre chambres, une cuisine et deux salles de bains. La maison est neuve.Cette maison se trouve dans un quartier prisé. Cinq établissements scolaires sont implantés à moins de 10 minutes à pied. Côté transports en commun, il y a la gare Carcassonne à moins de 10 minutes en voiture. Il y a un accès à l’autoroute A61 à 3 km. On trouve un tennis, quatre commerces, deux boulangeries, un supermarché, une poissonnerie et deux boucheries-charcuteries à proximité du logement.Elle est à vendre pour la somme de 249 000 €.Contactez Frédéric MAGERE (tél : (Numéro supprimé)) pour toute question sur la maison.
Carcassonne
TERRAINSitué à 5 minutes en voiture de la cité millénaire de Carcassonne, des galeries commerciales, découvrez cet endroit idéal ou bâtir votre maison. Si proche du centre-ville mais à la fois avec le réel sentiment d’être à la campagne.Terrain viabilisé et raccordable au tout à l’égout.
L’actualité immobilière à Fontiès-d'Aude
27/11/2023
02/11/2023
30/10/2023
20/10/2023
16/10/2023
16/10/2023