Maison à construire à Peyriac-Minervois (11160)
Images
Description
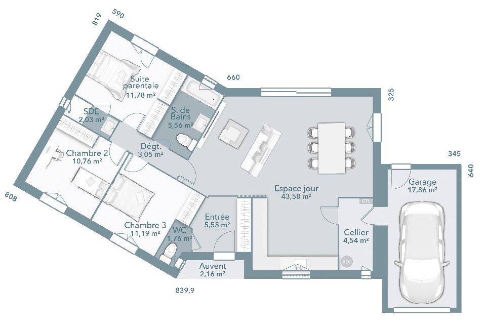
VENTE : maison F4 (100 m²) à Peyriac-Minervois
EMPLACEMENT PRIVILÉGIÉ - MAISON 4 PIÈCES NEUVE
À vendre : à 20 km de Carcassonne, nous vous proposons, bénéficiant d'un emplacement d'exception dans Peyriac-Minervois (11160), cette maison de 4 pièces de 100 m² et de 500 m² de terrain avec vue dégagée. Conçue de plain-pied, elle se divise en trois chambres, une cuisine et deux salles de bains.
Il s'agit d'une maison de plain-pied. Elle est neuve.
La maison se trouve dans un quartier convoité. L'École Primaire Lucien Milhau est implantée à moins de 10 minutes à pied. Il y a un accès à l'autoroute A61 à 16 km. On trouve une bibliothèque, un bassin de natation, deux commerces, une boulangerie, un supermarché et une boucherie-charcuterie dans les environs.
Elle est à vendre pour la somme de 209 880 €.
Prenez contact avec notre agence (EMBID Stéphane : (Numéro supprimé)) pour plus d'informations sur la maison.
Logement susceptibles de vous intéresser
Nous vous proposons de découvrir aussi cette sélection de logements situés à moins de 10km de Peyriac-Minervois et qui seraient susceptibles de vous intéresser.
Azille
TERRAIN ET MAISONDécouvrez les charmes de LA LIBECCIO. Cette belle maison de plain-pied, qui saura vous séduire par son architecture en forme de L, son look tendance et son aménagement intérieur. Son espace de vie traversant et lumineux de 48 m² vous offre un accès direct sur votre future terrasse couverte de 12 m². La partie nuit est composée de 3 chambres avec de beaux rangements, d’une salle de bain et de l’autre côté de la Pièce à vivre, une belle suite parentale avec dressing et salle d’eau privative. Un grand garage de 22 m² vous donnera du confort de rangement tout en ayant la possibilité de garer votre voiture. OC RESIDENCES, constructeur de maisons individuelles depuis bientôt 40 ans, réalise votre rêve de maison.
Azille
TERRAIN ET MAISONNos architectes ont conçu pour vous, le modèle Clair de lune. Son architecture et son aménagement intérieur enchanteront votre quotidien. Son porche d’entrée couvert vous donnera accès à un hall d’entrée avec WC et placard, qui s’ouvrira d’un côté sur un Salon/Séjour de 54 m² et de l’autre côté sur un coin nuit avec trois belles chambres et une Salle de Bains. Ces volumes orientés vers votre jardin vous donneront un sentiment de liberté et d’espace. A l’étage, vous disposerez d’une mezzanine ouverte sur le séjour ainsi que d’une suite parentale indépendante de 21 m². De plus, un garage vous donnera accès à votre intérieur par un cellier de 7 m². N’attendez-plus et contactez-nous pour construire votre nouveau projet de vie dans le Tarn, l’Aude, L’Hérault, la Haute-Garonne ainsi que les Pyrénées Orientales.
Azille
TERRAIN ET MAISONNotre modèle Arc en Ciel de 132 m² habitable est un concept de maison moderne et unique. Sa conception vous assurera des espaces de vie jour et nuit séparés. Son architecture vous offre au rez-de-chaussée 2 chambres, une salle de bains, une buanderie, un cellier, un auvent, un garage et un bureau ouvert donnant sur une lumineuse pièce de vie ouverte de 50 m². Pour accéder à l’étage, un escalier contemporain mènera directement à votre suite parentale agrémentée d’une loggia, ce qui vous permettra de vous évader et de profiter du point de vue. Ce pavillon est à construire par Oc Résidences dans le département du Tarn, l’Aude, l’Hérault, la Haute-Garonne ainsi que les Pyrénées Orientales. Oc résidences est votre constructeur sur mesure en Occitanie.
Azille
TERRAIN ET MAISONOc résidences, constructeur de maisons individuelles depuis 1983, vous propose une maison neuve à faire Construire en Occitanie. Cette maison vous offre au rez-de-chaussée un espace de vie de 51m² donnant sur une terrasse couverte, un bureau et une chambre parentale avec salle d’eau et dressing. Pour accéder à la tour, vous trouverez un escalier moderne qui donne accès sur 3 chambres et une salle d’eau. Cette villa possède 1 grand garage de 20 m², un auvent communiquant avec la cuisine par un cellier. Cette maison est à construire par Oc résidences, votre constructeur sur mesure du Tarn, l’Aude, l’Hérault, la Haute-Garonne ainsi que les Pyrénées Orientales.
Azille
TERRAIN ET MAISONEntrez dans la villa ETOILE, belle, design, lumineuse et sublimée par ses grands espaces et son aménagement intérieur unique. Ses façades sont rythmées et déstructurées avec de beaux volumes géométriques.L’ETOILE, c’est 161 m² d’intérieur que l’on cloisonne ou décloisonne afin que chacun s’épanouisse au gré des saisons et des humeurs…Elle se compose d’une belle et lumineuse pièce à vivre de 60 m², éclairée par sa baie vitrée de 6.00m. Vous bénéficierez deux volumes nuits distincts, avec d’un côté 4 chambres indépendantes avec sa SDB et de l’autre côté un coin parental de 24m² plus un espace bureau indépendant.Son garage de 37 m² vous permettra de garer votre voiture tout en profitant d’un bel espace atelier et de rangement supplémentaire.Cette villa unique est à construire par Oc Résidences, votre constructeur sur mesure du Tarn, l’Aude, l’Hérault, la Haute-Garonne ainsi que les Pyrénées Orientales.
Azille
TERRAIN ET MAISONOc Résidences, constructeur de maisons Individuelles, vous propose une maison neuve et moderne à construire en Midi Pyrénées et en Languedoc. Ce pavillon dispose d’un espace jour de 49 m² et d’un coin nuit indépendant avec quatre chambres, un WC indépendant et une salle de bains familiale. De grandes baies vitrées vous assurent la luminosité indispensable au confort de toute votre famille. Le garage agrémente votre confort et votre quotidien. Ce modèle Horizon a un design à couper le souffle !
Azille
TERRAINOc Résidences constructeur de maisons individuelles depuis 1983,vous propose avec son partenaire foncier sur la commune d’Azille ce petit lotissement » Le Petit Clos », une opération de seulement 2 lots idéalement implantée.Ce quartier résidentiel offre un cadre de vie paisible et lumineux, à quelques minutes du coeur du village, de ses commerces, de son école et de ses services de proximité.Nichée au coeur d’un environnement viticole typique du Sud, cette adresse conjugue calme, authenticité et douceur de vivre. Les terrains, livrés viabilisés (électricité, télécom et eau potable), assainissement autonome à prévoir., vous permettent de bâtir sans attendre la maison qui vous ressemble.Le Petit Clos à Azille, c’est l’opportunité rare d’un projet sur mesure dans un village au charme préservé, à deux pas du canal du Midi et des paysages emblématiques du Minervois.Pour plus d’informations n’hésitez pas à contacter Oc Résidences au (Numéro supprimé).
Azille
TERRAINOc Résidences constructeur de maisons individuelles depuis 1983,vous propose avec son partenaire foncier sur la commune d’Azille ce petit lotissement » Le Petit Clos », une opération de seulement 2 lots idéalement implantée.Ce quartier résidentiel offre un cadre de vie paisible et lumineux, à quelques minutes du coeur du village, de ses commerces, de son école et de ses services de proximité.Nichée au coeur d’un environnement viticole typique du Sud, cette adresse conjugue calme, authenticité et douceur de vivre. Les terrains, livrés viabilisés (électricité, télécom et eau potable), assainissement autonome à prévoir., vous permettent de bâtir sans attendre la maison qui vous ressemble.Le Petit Clos à Azille, c’est l’opportunité rare d’un projet sur mesure dans un village au charme préservé, à deux pas du canal du Midi et des paysages emblématiques du Minervois.Pour plus d’informations n’hésitez pas à contacter Oc Résidences au (Numéro supprimé).
Peyriac-Minervois
TERRAIN ET MAISONVENTE : maison F4 (100 m²) à Peyriac-MinervoisEMPLACEMENT PRIVILÉGIÉ – MAISON 4 PIÈCES NEUVEÀ vendre : à 20 km de Carcassonne, nous vous proposons, bénéficiant d’un emplacement d’exception dans Peyriac-Minervois (11160), cette maison de 4 pièces de 100 m² et de 500 m² de terrain avec vue dégagée. Conçue de plain-pied, elle se divise en trois chambres, une cuisine et deux salles de bains.Il s’agit d’une maison de plain-pied. Elle est neuve.La maison se trouve dans un quartier convoité. L’École Primaire Lucien Milhau est implantée à moins de 10 minutes à pied. Il y a un accès à l’autoroute A61 à 16 km. On trouve une bibliothèque, un bassin de natation, deux commerces, une boulangerie, un supermarché et une boucherie-charcuterie dans les environs.Elle est à vendre pour la somme de 209 880 €.Prenez contact avec notre agence (EMBID Stéphane : (Numéro supprimé)) pour plus d’informations sur la maison.
L’actualité immobilière à Peyriac-Minervois
27/11/2023
02/11/2023
30/10/2023
20/10/2023
16/10/2023
16/10/2023