Maison à construire à Saint-Laurent-de-la-Cabrerisse (11220)
Images
Description
Saint laurent de la Cabrerisse.
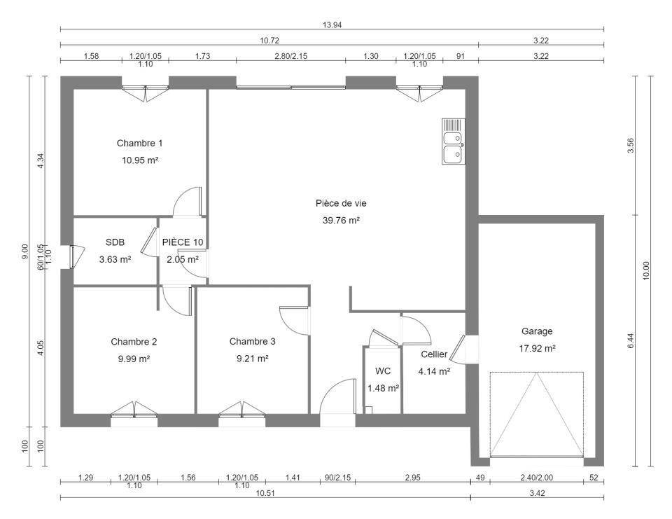
Nous construisons votre villa RE 2020 sur cette parcelle de 411m² située en lotissement.
Installez-vous dans une commune typique, nichée dans la nature, et offrant d'infinies possibilité d'activités extérieures avec, entre autres, une rivière invitant à la baignade.
Egalement sur place toutes les commodités du quotidien: maison de santé, pharmacie, école etc...
Lézignan-Corbières, son accès autoroute et son hôpital à 20 minutes, Narbonne à 30 minutes.
Contactez-nous au (Numéro supprimé) pour discuter de votre projet de construction.
Logement susceptibles de vous intéresser
Nous vous proposons de découvrir aussi cette sélection de logements situés à moins de 10km de Saint-Laurent-de-la-Cabrerisse et qui seraient susceptibles de vous intéresser.
Saint-Laurent-de-la-Cabrerisse
TERRAIN ET MAISONLe modèle Quatre Saisons est une maison à étage qui vous plaira par sa simplicité et son agencement pensé pour améliorer votre confort de vie. Au rez de chaussée, vous disposerez d’un espace vie de 39 m² communiquant sur un garage, d’une belle suite parentale indépendante de 17 m² et d’un coin rangement avec un WC indépendant. A l’étage, vous trouverez deux belles chambres avec une salle de bains. Cette maison est à construire dans le département du Tarn, l’Aude, l’Hérault, la Haute-Garonne ainsi que les Pyrénées Orientales par Oc résidences, votre constructeur sur mesure en Occitanie.
Saint-Laurent-de-la-Cabrerisse
TERRAIN ET MAISONDécouvrez le modèle Infini, une élégante maison conçue avec une architecture moderne, aux lignes sobres et épurées. Déclinez sa toiture à votre guise et en fonction de vos envies. Son aménagement intérieur saura répondre à votre mode de vie. Sa belle pièce à vivre traversante de 44 m² donnera sur votre extérieur par sa grande baie vitrée. A l’étage, le coté nuit s’articule autour de 3 grandes chambres avec placard et une belle salle de bains de 8 m² tout équipée. Le modèle Infini est une maison familiale et coquette qui plaira par son agencement pensé pour votre confort de vie, par Oc résidences, votre constructeur sur mesure en Occitanie.
Saint-Laurent-de-la-Cabrerisse
TERRAIN ET MAISOND’une architecture sobre et élégante, respectant les normes d’accessibilité cette maison est conçue de manière ingénieuse et fonctionnelle avec la particularité de pouvoir s’agrandir à moindre frais selon les besoins de la famille. Ces volumes sont optimisés pour que chaque membre de la famille puisse avoir son propre cocon. Les plus : Zone jour et zone nuit séparées – Salle d’eau avec douche et une vasque, Wc indépendant et un garage intégré. Le modèle ZEPHYR 71 est à construire dans le département du Tarn, l’Aude, l’Hérault, la Haute-Garonne ainsi que les Pyrénées Orientales par Oc résidences, votre constructeur sur mesure en Occitanie.
Saint-Laurent-de-la-Cabrerisse
TERRAIN ET MAISONCette jolie maison de plain-pied à construire n’attend plus que vous ! Découvrez le Point du Jour 85, une maison bien agencée avec un espace jour et nuit séparé et optimisé. La maison vous offre un espace de vie de 39 m² avec cellier, 3 chambres avec placard, sa salle de bain familiale et son WC indépendant. Vous pourrez notamment rajouter un garage de la surface souhaitée. Alors, n’attendez plus, et contactez nous, Oc résidences, votre constructeur sur mesure en Occitanie.
Saint-Laurent-de-la-Cabrerisse
TERRAINOc résidences Constructeur de Maison Individuelle vous propose avec son partenaire foncier, une parcelle de 412 m2 située sur la commune de Saint-Laurent-de-la-Cabrerisse . Ce terrain offre une opportunité unique de construire votre maison idéale dans un cadre tranquille. Prenez contact au plus vite avec l’équipe OC RESIDENCES NARBONNE AU (Numéro supprimé) pour la réalisation de votre projet de construction
Saint-Laurent-de-la-Cabrerisse
TERRAINOc résidences Constructeur de Maison Individuelle vous propose avec son partenaire foncier, une parcelle de 402 m2 située sur la commune de Saint-Laurent-de-la-Cabrerisse . Ce terrain offre une opportunité unique de construire votre maison idéale dans un cadre tranquille. Prenez contact au plus vite avec l’équipe OC RESIDENCES NARBONNE AU (Numéro supprimé) pour la réalisation de votre projet de construction
Saint-Laurent-de-la-Cabrerisse
TERRAIN ET MAISONLe modèle Rosée 72 m² de plain-pied, à l’esthétique sobre et épurée, est un incontournable chez OC Résidences. Vous serez abrité sous son porche d’entrée avant d’entrer dans une très belle pièce à vivre de 40 m², avec d’un côté, un garage intégré de 15 m² et de l’autre, un espace nuit séparé proposant 2 chambres et une salle de bains. Votre maison est à construire dans le département du Tarn, l’Aude, l’Hérault, la Haute-Garonne ainsi que les Pyrénées Orientales par Oc résidences, votre constructeur sur mesure en Occitanie.
Boutenac
TERRAINBoutenac : terrain de 430 m² en venteQUARTIER RECHERCHÉ – VUE PANORAMIQUEÀ Boutenac (11200) à vendre à 33 km de la côte méditerranéenne et à quelques kilomètres de Narbonne, donnez vie à la maison de vos rêves sur ce terrain de 430 m². Il profite d’une vue panoramique et est orienté plein sud. Dans un quartier prisé, le terrain dans un secteur attractif est proche des commerces et des écoles. On trouve une école primaire dans le quartier. Niveau transports, il y a la gare Lézignan-Corbières à moins de 10 minutes en voiture. Il y a un accès à l’autoroute A61 à 5 km. On trouve un tennis, une boucherie-charcuterie et une épicerie à quelques minutes.Ce terrain est proposé à l’achat pour 63 000 €. Contactez Frédéric MAGERE ((Numéro supprimé)) pour toute information sur le terrain, sur les modalités de vente ou sur les démarches à suivre. Maisons France Confort Carcassonne vous accompagne à toutes les étapes de l’achat et dans tous vos projets immobiliers.
Boutenac
TERRAIN ET MAISONVENTE : maison de 4 pièces (89 m²) à BoutenacQUARTIER RECHERCHÉ – VUE PANORAMIQUEÀ 33 km de la mer Méditerranée et à deux pas de Narbonne, notre agence Maisons France Confort Carcassonne est ravie de vous présenter cette maison de 4 pièces de 89 m² avec vue panoramique à vendre nichée dans un quartier prisé de Boutenac (11200). Elle propose trois chambres, une cuisine et une salle de bains.Le terrain de la propriété est de 430 m².Cette maison est de plain-pied. Elle est neuve.La maison est située dans un secteur attractif. On y trouve une école primaire. Côté transports en commun, on trouve la gare Lézignan-Corbières à moins de 10 minutes en voiture. Il y a un accès à l’autoroute A61 à 5 km. Il y a un tennis, une épicerie et une boucherie-charcuterie à quelques minutes à peine.Son prix de vente est de 193 900 €.Prenez contact avec Frédéric MAGERE (tél : (Numéro supprimé)) pour plus d’informations sur la maison.
L’actualité immobilière à Saint-Laurent-de-la-Cabrerisse
27/11/2023
02/11/2023
30/10/2023
20/10/2023
16/10/2023
16/10/2023