Maison à construire à Saint-Nazaire-d'Aude (11120)
Images
Description
Saint-Nazaire-d'Aude : maison de 5 pièces (103 m²) à vendre
MAISON 5 PIÈCES NEUVE - PROCHE DE BÉZIERS
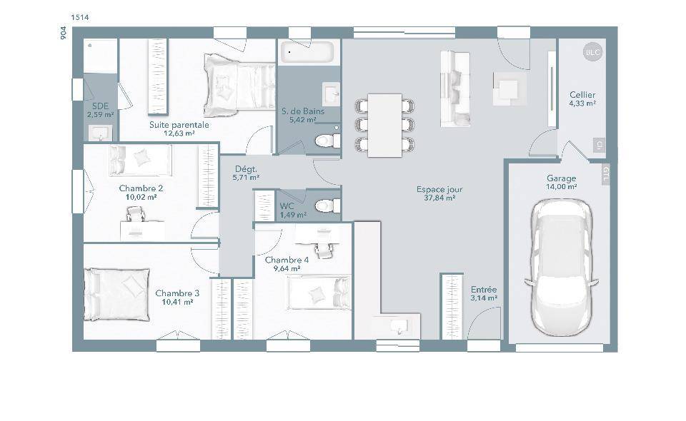
À 29 km de la côte méditerranéenne et à 30 km de Béziers, nous sommes ravis de vous présenter cette maison de 5 pièces de plain-pied de 103 m² et de 441 m² de terrain à Saint-Nazaire-d'Aude (11120).
Son intérieur inclut quatre chambres, une cuisine et deux salles de bains. La maison est neuve.
L'École Primaire René Piquemal est implantée à moins de 10 minutes à pied. Les autoroutes A9 et A61 sont accessibles à moins de 16 km. On trouve un tennis, une boulangerie, une épicerie et un bureau de poste dans les environs.
Elle est proposée à l'achat pour 311 000 €.
Contactez Jeannine ESTADIEU (tél : (Numéro supprimé)) pour plus de renseignements sur cette maison. Maisons France Confort Narbonne est là pour vous accompagner à toutes les étapes de l'achat.
Logement susceptibles de vous intéresser
Nous vous proposons de découvrir aussi cette sélection de logements situés à moins de 10km de Saint-Nazaire-d'Aude et qui seraient susceptibles de vous intéresser.
Sallèles-d'Aude
TERRAIN ET MAISONNos architectes ont conçu ce modèle pour vous. Cette maison résolument contemporaine, saura vous séduire par son architecture innovante et sa terrasse couverte qui lui donnera un design unique. Elle possède trois espaces bien distincts avec un espace jour de 45 m² baignant de lumière grâce à ses 4 baies vitrées. Un espace nuit avec 2 belles chambres, et une salle de bains confortable et un troisième espace indépendant avec sa suite parentale de 23 m². Le modèle Lumière est à construire dans le département du Tarn, l’Aude, l’Hérault, la Haute-Garonne ainsi que les Pyrénées Orientales par Oc résidences, votre constructeur sur mesure en Occitanie.
Sallèles-d'Aude
TERRAIN ET MAISONOc résidences, constructeur de maisons individuelles vous propose cette maison neuve à construire dans le département du Tarn, l’Aude, l’Hérault, la Haute-Garonne ainsi que les Pyrénées Orientales. Le modèle Matinale, résolument contemporain et fonctionnel, se compose d’une grande pièce à vivre traversante de 43 m² avec cuisine ouverte. Le coté nuit s’articule autour de 3 grandes chambres avec placard, une grande Salle de Bains de 7,5 m² avec baignoire, double vasque et un grand espace douche. Son garage de 24 m² vous permettra de stationner votre voiture et de créer un espace de rangement pour votre quotidien. Oc Résidences est votre constructeur sur mesure en Occitanie.
Sallèles-d'Aude
TERRAINOc résidences Constructeur de Maison Individuelle, vous propose avec son partenaire foncier un lotissement de 36 parcelles, livrées viabilisées en EAU, EDF et Telecom.A seulement 10 Narbonne, n’hésitez plus et profitez de calme de la campagne de ce lotissement pour y construire la maison de vos rêves.Pour plus de renseignements n’hésitez pas à nous contacter au (Numéro supprimé).
Ornaisons
TERRAIN ET MAISONLa Rose des Vents 89 est une maison moderne, bien pensée, privilégiant le confort dans toute la maison. Elle dispose d’une surface de 89 m² habitable, de plain-pied, optimisée et composée d’un hall d’entrée avec WC et placards, d’un salon séjour de 41 m² qui bénéficie de larges baies vitrées pour un plein ensoleillement, et d’un coin nuit avec 3 grandes chambres et une belle SDB. Un Garage de 15 m² viendra agrémenter le confort de votre maison.Selon l’orientation du terrain et selon vos préférences, de nombreuses options et aménagements sont possibles. Laissez- vous séduire par son originalité et ses volumes et contactez nous pour construire votre projet de vie dans le Tarn, l’Aude, L’Hérault, la Haute-Garonne ainsi que les Pyrénées Orientales.
Sallèles-d'Aude
TERRAIN ET MAISONCette jolie maison de plain-pied à construire n’attend plus que vous ! Découvrez le Point du Jour 85, une maison bien agencée avec un espace jour et nuit séparé et optimisé. La maison vous offre un espace de vie de 39 m² avec cellier, 3 chambres avec placard, sa salle de bain familiale et son WC indépendant. Vous pourrez notamment rajouter un garage de la surface souhaitée. Alors, n’attendez plus, et contactez nous, Oc résidences, votre constructeur sur mesure en Occitanie.
Sallèles-d'Aude
TERRAIN ET MAISONLaissez vous séduire par notre nouveau modèle, La SIROCCO. Cette villa, lumineuse et généreuse, vous séduira par son agencement et offrira d’agréables moments à toute votre famille. Sa grande pièce à vivre de 41 m², séparera votre suite parentale, d’un coin nuit aménagé avec deux autres chambres équipées de placard et d’une Salle de bain. Ses grandes ouvertures vous permettront de profiter des extérieurs avec vos amis et votre famille tout au long de l’année. La SIROCCO est à construire dans le département du Tarn, l’Aude, l’Hérault, la Haute-Garonne ainsi que les Pyrénées Orientales par Oc résidences, votre constructeur sur mesure en Occitanie.
Ornaisons
TERRAINOc résidences Constructeur de maison Individuelle depuis 1983. Vous propose avec son partenaire Foncier, sur la commune de Ornaisons, situé à 6 kms de la sortie d’autoroute de Lézignan et moins de 15 kms de Narbonne, au centre du village, dans un environnement particulièrement calme, des terrains à bâtir viabilisés.Pour plus d’informations n’hésitez pas à nous contacter au (Numéro supprimé).
Sallèles-d'Aude
TERRAIN ET MAISONLe modèle ZEPHYR 87 m² est une maison aux lignes sobres et authentiques qui saura vous séduire par son aménagement intérieur conçu pour optimiser votre confort. Ce pavillon vous offre trois chambres, une salle de bains, un bel espace vie de plus de 41 m² et un garage de 14 m², facilement transformable en une quatrième chambre. Cette maison sera répondre aux normes accessibilité. Votre projet de vie est à construire dans le département du Tarn, l’Aude, l’Hérault, la Haute-Garonne ainsi que les Pyrénées Orientales par Oc résidences, votre constructeur sur mesure en Occitanie.
Sallèles-d'Aude
TERRAIN ET MAISONLa Rose des Vents 89 est une maison moderne, bien pensée, privilégiant le confort dans toute la maison. Elle dispose d’une surface de 89 m² habitable, de plain-pied, optimisée et composée d’un hall d’entrée avec WC et placards, d’un salon séjour de 41 m² qui bénéficie de larges baies vitrées pour un plein ensoleillement, et d’un coin nuit avec 3 grandes chambres et une belle SDB. Un Garage de 15 m² viendra agrémenter le confort de votre maison.Selon l’orientation du terrain et selon vos préférences, de nombreuses options et aménagements sont possibles. Laissez- vous séduire par son originalité et ses volumes et contactez nous pour construire votre projet de vie dans le Tarn, l’Aude, L’Hérault, la Haute-Garonne ainsi que les Pyrénées Orientales.
L’actualité immobilière à Saint-Nazaire-d'Aude
27/11/2023
02/11/2023
30/10/2023
20/10/2023
16/10/2023
16/10/2023