Maison à construire à Villepinte (11150)
Images
Description
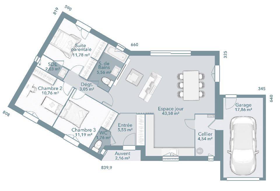
VENTE d'une maison T4 (100 m²) à Villepinte
EMPLACEMENT PRIVILÉGIÉ - MAISON 4 PIÈCES NEUVE
En vente : à deux pas de Carcassonne, découvrez cette maison de 4 pièces de 100 m² et de 1 000 m² de terrain avec vue dégagée bénéficiant d'un emplacement privilégié dans Villepinte (11150).
Cette maison est de plain-pied. Conçue de plain-pied, elle est composée de trois chambres, d'une cuisine et de deux salles de bains. La maison est neuve.
La maison se situe dans un secteur convoité. Il y a l'École Primaire Max Savy à moins de 10 minutes à pied. Niveau transports, on trouve la gare Bram à moins de 10 minutes en voiture. L'autoroute A61 est accessible à 5 km. Il y a un tennis, une bibliothèque, une boulangerie et un bureau de poste à proximité de la maison.
Elle est proposée à l'achat pour 245 900 €.
Prenez contact avec notre agence (MAGERE Frédéric : (Numéro supprimé)) pour toute question sur la propriété ou sur les démarches à suivre. Maisons France Confort Carcassonne est là pour vous accompagner dans tous vos projets immobiliers.
Logement susceptibles de vous intéresser
Nous vous proposons de découvrir aussi cette sélection de logements situés à moins de 10km de Villepinte et qui seraient susceptibles de vous intéresser.
Raissac-sur-Lampy
TERRAIN ET MAISONMaison T3 (85 m²) à vendre à Raissac-sur-LampyIDÉALEMENT SITUÉE – VUE DÉGAGÉEÀ vendre : située à deux pas de Carcassonne, nous sommes heureux de vous présenter cette maison de 3 pièces de 85 m² avec vue dégagée idéalement située dans Raissac-sur-Lampy (11170). Conçue de plain-pied, elle se divise en trois chambres, une cuisine et une salle de bains.Le terrain de la propriété s’étend sur 440 m².Cette maison est de plain-pied. Elle est neuve.Cette propriété se trouve dans un quartier prisé. Niveau transports, il y a la gare Bram à moins de 10 minutes en voiture. On trouve un accès à l’autoroute A61 à 7 km. On trouve une bibliothèque et un tennis à proximité.Son prix de vente est de 167 500 €.Contactez Frédéric MAGERE (tél : (Numéro supprimé)) pour plus de renseignements sur la maison. Maisons France Confort Carcassonne vous accompagne à toutes les étapes de votre projet et dans toutes vos démarches.
Sainte-Eulalie
TERRAINVENTE d’un terrain de 470 m² à Sainte-EulalieEMPLACEMENT PRIVILÉGIÉ – VUE SANS VIS-À-VISÀ vendre à 12 km de Carcassonne à Sainte-Eulalie (11170), terrain de 470 m². Réalisez-y votre projet immobilier. Ce terrain, sans vis-à-vis, bénéficie d’une exposition sud. Dans un secteur recherché, ce terrain bénéficiant d’un emplacement d’exception est proche des écoles et des commerces. Il y a l’École Élémentaire l’Estagnol à moins de 10 minutes à pied. Niveau transports en commun, on trouve la gare Bram à moins de 10 minutes en voiture. Il y a un accès à l’autoroute A61 à 9 km.Ce terrain est à vendre pour la somme de 48 000 €. Contactez notre agence (EMBID Stéphane : (Numéro supprimé)) pour obtenir de plus amples informations sur le terrain ou sur les démarches à suivre. Maisons France Confort Carcassonne vous accompagne à toutes les étapes de l’achat et dans tous vos projets immobiliers.
Sainte-Eulalie
TERRAIN ET MAISONVENTE d’une maison F4 (85 m²) à Sainte-EulalieEMPLACEMENT PRIVILÉGIÉ – MAISON 4 PIÈCES NEUVEÀ vendre à 12 km de Carcassonne, bénéficiant d’un emplacement privilégié dans Sainte-Eulalie (11170), laissez vous charmer par cette maison de 4 pièces de 85 m² sans vis-à-vis. Son intérieur propose trois chambres, une cuisine et une salle de bains.Le terrain du bien s’étend sur 470 m².Il s’agit d’une maison de plain-pied. Elle est neuve.Cette maison se trouve dans un quartier convoité. Il y a l’École Élémentaire l’Estagnol à moins de 10 minutes à pied. Niveau transports, on trouve la gare Bram à moins de 10 minutes en voiture. Il y a un accès à l’autoroute A61 à 9 km.Son prix de vente est de 185 100 €.Contactez Stéphane EMBID (tél : (Numéro supprimé)) pour toute question sur la maison, sur les modalités de vente ou sur les démarches à suivre.
Villepinte
TERRAINVENTE : terrain de 1 000 m² à VillepinteEMPLACEMENT PRIVILÉGIÉ – VUE DÉGAGÉEGrand terrain à vendre à quelques kilomètres de Carcassonne. De 1 000 m², ce terrain se situe bénéficiant d »un emplacement d »exception dans Villepinte (11150). Il profite d »une vue dégagée et est orienté plein sud. Dans un quartier recherché, ce terrain est proche des commerces et des écoles. L »École Primaire Max Savy se trouve à moins de 10 minutes à pied. Côté transports, il y a la gare Bram à moins de 10 minutes en voiture. L »autoroute A61 est accessible à 5 km. On trouve un tennis, une bibliothèque, une boulangerie et un bureau de poste dans les environs.Son prix de vente est de 59 000 €. Contactez Frédéric MAGERE ((Numéro supprimé)) pour toute information sur le terrain ou sur les démarches à suivre.
Villepinte
TERRAIN ET MAISONVENTE d’une maison T4 (100 m²) à VillepinteEMPLACEMENT PRIVILÉGIÉ – MAISON 4 PIÈCES NEUVEEn vente : à deux pas de Carcassonne, découvrez cette maison de 4 pièces de 100 m² et de 1 000 m² de terrain avec vue dégagée bénéficiant d’un emplacement privilégié dans Villepinte (11150).Cette maison est de plain-pied. Conçue de plain-pied, elle est composée de trois chambres, d’une cuisine et de deux salles de bains. La maison est neuve.La maison se situe dans un secteur convoité. Il y a l’École Primaire Max Savy à moins de 10 minutes à pied. Niveau transports, on trouve la gare Bram à moins de 10 minutes en voiture. L’autoroute A61 est accessible à 5 km. Il y a un tennis, une bibliothèque, une boulangerie et un bureau de poste à proximité de la maison.Elle est proposée à l’achat pour 245 900 €.Prenez contact avec notre agence (MAGERE Frédéric : (Numéro supprimé)) pour toute question sur la propriété ou sur les démarches à suivre. Maisons France Confort Carcassonne est là pour vous accompagner dans tous vos projets immobiliers.
Sainte-Eulalie
TERRAINTerrain de 535 m² en vente à Sainte-EulalieQUARTIER RECHERCHÉ – VUE SANS VIS-À-VISÀ Sainte-Eulalie (11170) à quelques kilomètres de Carcassonne, donnez vie à la maison de vos rêves sur ce terrain de 535 m². Ce terrain, sans vis-à-vis, est orienté au sud. Dans un quartier prisé, ce terrain dans un secteur recherché est proche des écoles et des commerces. L’École Élémentaire l’Estagnol est implantée à moins de 10 minutes à pied. Côté transports en commun, on trouve la gare Bram à moins de 10 minutes en voiture. Il y a un accès à l’autoroute A61 à 9 km.Ce terrain est proposé à l’achat pour 54 500 €. Contactez notre agence (EMBID Stéphane : (Numéro supprimé)) pour toute information sur le terrain, sur les modalités de vente ou sur les démarches à suivre. Maisons France Confort Carcassonne est là pour vous accompagner à toutes les étapes de votre projet.
Sainte-Eulalie
TERRAIN ET MAISONSainte-Eulalie : maison de 5 pièces (95 m²) à vendreQUARTIER RECHERCHÉ – VUE SANS VIS-À-VISÀ deux pas de Carcassonne, Maisons France Confort Carcassonne vous présente en vente, dans un quartier prisé de Sainte-Eulalie (11170), cette maison de 5 pièces de 95 m² et de 535 m² de terrain sans vis-à-vis. Elle inclut quatre chambres, une cuisine et une salle de bains.C’est une maison de plain-pied. Elle est neuve.La maison se situe dans un secteur attractif. Il y a l’École Élémentaire l’Estagnol à moins de 10 minutes à pied. Côté transports en commun, on trouve la gare Bram à moins de 10 minutes en voiture. On trouve un accès à l’autoroute A61 à 9 km.Elle est proposée à l’achat pour 200 400 €.Prenez contact avec notre agence (Stéphane EMBID : (Numéro supprimé)) pour toute question sur la maison, sur les modalités de vente ou sur les démarches à suivre. Maisons France Confort Carcassonne vous accompagne dans tous vos projets immobiliers et à toutes les étapes de l’achat.
Sainte-Eulalie
TERRAIN ET MAISONVENTE : maison T4 (70 m²) à Sainte-EulalieEMPLACEMENT PRIVILÉGIÉ – MAISON 4 PIÈCES NEUVEEn vente : située à quelques kilomètres de Carcassonne, Maisons France Confort Carcassonne vous propose, bénéficiant d’un emplacement privilégié dans Sainte-Eulalie (11170), cette maison de 4 pièces de plain-pied de 70 m² et de 470 m² de terrain.Son intérieur se divise en trois chambres, une cuisine et une salle de bains. La maison est neuve.Cette propriété est située dans un secteur attractif. L’École Élémentaire l’Estagnol est implantée à moins de 10 minutes à pied. Côté transports en commun, on trouve la gare Bram à moins de 10 minutes en voiture. On trouve un accès à l’autoroute A61 à 9 km.Elle est proposée à l’achat pour 170 800 €.Prenez contact avec notre agence (EMBID Stéphane : (Numéro supprimé)) pour toute question sur la maison, sur les modalités de vente ou sur les démarches à suivre. Maisons France Confort Carcassonne est là pour vous accompagner à toutes les étapes de l’achat.
Raissac-sur-Lampy
TERRAINVENTE : terrain de 440 m² à Raissac-sur-LampyIDÉALEMENT SITUÉ – VUE DÉGAGÉEÀ Raissac-sur-Lampy (11170) à 17 km de Carcassonne, donnez vie à votre résidence principale ou secondaire sur ce terrain de 440 m². Ce terrain, avec une exposition sud, profite d »une vue dégagée. Il se situe dans un secteur attractif. Niveau transports en commun, on trouve la gare Bram à moins de 10 minutes en voiture. On trouve un accès à l »autoroute A61 à 7 km. Il y a une bibliothèque et un tennis à proximité.Ce terrain est proposé à l »achat pour 39 000 €. Contactez Frédéric MAGERE ((Numéro supprimé)) pour tout renseignement sur le terrain. Donnez vie à vos projets immobiliers avec Maisons France Confort Carcassonne.
L’actualité immobilière à Villepinte
27/11/2023
02/11/2023
30/10/2023
20/10/2023
16/10/2023
16/10/2023