Maison à construire à Allauch (13190)
Images
Description
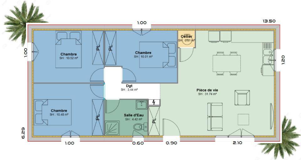
Maison de 4 pièces (71 m²) en vente à Allauch
Emplacement privilégié - À Allauch (13190), maison neuve en vente de 4 pièces, 71 m² et 454 m² de terrain. Son intérieur dispose de trois chambres, d'une cuisine et d'une salle de bains.
À dix minutes : gares, établissements scolaires, bibliothèque, boucherie-charcuterie et épicerie. Autoroutes à 9 km. Mer Méditerranée à 17 km.
Le prix de vente de cette maison de 4 pièces est de 435 600 €.
N'hésitez pas à prendre contact avec notre agence (Lucas ROCHETTE : (Numéro supprimé)) pour obtenir de plus amples renseignements sur la maison de plain-pied, sur les démarches à suivre ou sur les modalités de vente. Azur & Constructions Cabriès vous accompagne à toutes les étapes de votre projet et dans tous vos projets immobiliers.
Logement susceptibles de vous intéresser
Nous vous proposons de découvrir aussi cette sélection de logements situés à moins de 10km de Allauch et qui seraient susceptibles de vous intéresser.
Allauch
TERRAINAzur et Constructions Lucas ROCHETTE au (Numéro supprimé) vous présente cette très belle opportunité située sur la commune de ALLAUCH. Ce terrain d’une surface de 454M² viabilisé vous permettra d’édifier la maison de vos rêves. Le prix du terrain est de 310 000€ hors frais de notaire ni d’éventuelles adaptations au sol.Vu avec notre partenaire foncier.Concept clé en main et rencontrant depuis plus de 28 ans un franc succès, la formule terrain + maison fait partie de L’ADN de la société Azur et Constructions. Spécialiste de la construction de maisons individuelles fondé en 1994 à Martigues, l’entreprise familiale met à la disposition de toute sa clientèle un large choix d’annonces immobilières de terrain + modèle de maison, de plain-pied, à étage, avec ou sans garage, de style contemporain ou plus traditionnel. uvrant sur une grande partie du territoire de la région Provence-Alpes-Côte d’Azur, la société couvre le département du Vaucluse, des Hautes-Alpes, des Alpes-de-Haute-Provence, des Bouches-du-Rhône et du Gard, département de la région voisine.Pour découvrir l’ensemble des annonces de terrain + maisons proposées par l’entreprise immobilière, la clientèle de la société Azur et Constructions peut consulter le catalogue disponible en ligne, via le site internet de l’entreprise. Ils ont ainsi la possibilité d’effectuer des recherches en précisant la commune, avec possibilité de s’en éloigner de plus ou moins 5 kilomètres minimum et jusqu’à 100 kilomètres. La société de construction immobilière propose également à ses clients de venir lui rendre visite dans l’une de ses 4 agences situées respectivement à Manosque, à Martigues, à Salon de Provence et à Plan de Campagne sur la commune de Cabriès. Les collaborateurs de chaque agence se feront un plaisir de vous présenter en détail les annonces de terrain + maisons disponibles et de répondre à toutes vos questions.
Allauch
TERRAINAzur et Constructions Lucas ROCHETTE au (Numéro supprimé) vous présente cette très belle opportunité située sur la commune de ALLAUCH. Ce terrain d’une surface de 419M² viabilisé vous permettra d’édifier la maison de vos rêves. Le prix du terrain est de 320 000€ hors frais de notaire ni d’éventuelles adaptations au sol.Vu avec notre partenaire foncier.Concept clé en main et rencontrant depuis plus de 28 ans un franc succès, la formule terrain + maison fait partie de L’ADN de la société Azur et Constructions. Spécialiste de la construction de maisons individuelles fondé en 1994 à Martigues, l’entreprise familiale met à la disposition de toute sa clientèle un large choix d’annonces immobilières de terrain + modèle de maison, de plain-pied, à étage, avec ou sans garage, de style contemporain ou plus traditionnel. uvrant sur une grande partie du territoire de la région Provence-Alpes-Côte d’Azur, la société couvre le département du Vaucluse, des Hautes-Alpes, des Alpes-de-Haute-Provence, des Bouches-du-Rhône et du Gard, département de la région voisine.Pour découvrir l’ensemble des annonces de terrain + maisons proposées par l’entreprise immobilière, la clientèle de la société Azur et Constructions peut consulter le catalogue disponible en ligne, via le site internet de l’entreprise. Ils ont ainsi la possibilité d’effectuer des recherches en précisant la commune, avec possibilité de s’en éloigner de plus ou moins 5 kilomètres minimum et jusqu’à 100 kilomètres. La société de construction immobilière propose également à ses clients de venir lui rendre visite dans l’une de ses 4 agences situées respectivement à Manosque, à Martigues, à Salon de Provence et à Plan de Campagne sur la commune de Cabriès. Les collaborateurs de chaque agence se feront un plaisir de vous présenter en détail les annonces de terrain + maisons disponibles et de répondre à toutes vos questions.
Allauch
TERRAIN ET MAISONVENTE d’une maison de 5 pièces (106 m²) à AllauchEmplacement privilégié – À découvrir à Allauch (13190) : maison neuve 5 pièces à vendre, 2 niveaux, 106 m² sur 419 m² de terrain. Elle se divise en quatre chambres, une cuisine et une salle de bains.Proche gares, établissements scolaires, bibliothèque, épicerie et boucherie-charcuterie. Accès autoroutes à 9 km. Mer Méditerranée à 17 km.Cette maison de 5 pièces est à vendre pour la somme de 497 000 €.N’hésitez pas à prendre contact avec Lucas ROCHETTE ((Numéro supprimé)) pour tout renseignement sur la maison, sur les démarches à suivre ou sur les modalités de vente.
Allauch
TERRAIN ET MAISONMaison de 4 pièces (71 m²) en vente à AllauchEmplacement privilégié – À Allauch (13190), maison neuve en vente de 4 pièces, 71 m² et 454 m² de terrain. Son intérieur dispose de trois chambres, d’une cuisine et d’une salle de bains.À dix minutes : gares, établissements scolaires, bibliothèque, boucherie-charcuterie et épicerie. Autoroutes à 9 km. Mer Méditerranée à 17 km.Le prix de vente de cette maison de 4 pièces est de 435 600 €.N’hésitez pas à prendre contact avec notre agence (Lucas ROCHETTE : (Numéro supprimé)) pour obtenir de plus amples renseignements sur la maison de plain-pied, sur les démarches à suivre ou sur les modalités de vente. Azur & Constructions Cabriès vous accompagne à toutes les étapes de votre projet et dans tous vos projets immobiliers.
Gréasque
TERRAIN ET MAISONGréasque : maison de 5 pièces (76 m²) à vendreEmplacement privilégié – En vente à Gréasque (13850) : maison neuve 5 pièces de 76 m² sur un terrain de 610 m². Elle dispose de trois chambres, d’une cuisine et d’une salle de bains.À dix minutes : gares (Gardanne et Simiane-Collongue), établissements scolaires, tennis, bibliothèque, boulangeries, commerces, supermarché, boucherie-charcuterie et bureau de poste. Accès autoroutes A8 et A52 à 7 km. Mer Méditerranée à 23 km. Marseille à 18 km.Cette maison de 5 pièces est proposée à l’achat pour 452 500 €.N’hésitez pas à prendre contact avec notre agence (Lucas ROCHETTE : (Numéro supprimé)) pour obtenir de plus amples informations sur la maison ou sur les démarches à suivre. Azur & Constructions Cabriès est là pour vous accompagner à toutes les étapes de l’achat.
Saint-Savournin
TERRAIN ET MAISONMaison de 5 pièces (76 m²) à vendre à Saint-SavourninIdéalement située – En vente à Saint-Savournin (13119) : maison neuve 5 pièces de 76 m² sur un terrain de 506 m². Son intérieur compte trois chambres, une cuisine et une salle de bains.À proximité : gares (Gardanne et Simiane-Collongue), écoles, bibliothèque, commerces, supermarché, boulangerie, épicerie et boucherie-charcuterie. Autoroutes A52 et A8 accessibles à 9 km. Mer Méditerranée à 20 km. Marseille à 16 km.Cette maison de 5 pièces est à vendre pour la somme de 392 000 €.Prenez contact avec Lucas ROCHETTE (tél : (Numéro supprimé)) pour toute question sur la maison, sur les démarches à suivre ou sur les modalités de vente. Azur & Constructions Cabriès vous accompagne à toutes les étapes de votre projet et dans tous vos projets immobiliers.
Gréasque
TERRAIN ET MAISONVENTE d’une maison F5 (76 m²) à GréasqueEmplacement privilégié – À Gréasque (13850), maison neuve en vente de 5 pièces, 2 niveaux, 76 m² de surface sur 430 m² de terrain. Elle dispose de trois chambres, d’une cuisine et d’une salle de bains.À proximité : gares (Gardanne et Simiane-Collongue), établissements scolaires, tennis, bibliothèque, boulangeries, commerces, supermarché, bureau de poste et boucherie-charcuterie. Accès autoroutes A8 et A52 à 7 km. Mer Méditerranée à 23 km. Marseille à 18 km.Cette maison de 5 pièces est proposée à l’achat pour 377 500 €.Contactez notre agence (Lucas ROCHETTE : (Numéro supprimé)) pour obtenir de plus amples informations sur la maison. Azur & Constructions Cabriès est là pour vous accompagner dans tous vos projets immobiliers.
Gréasque
TERRAINAzur et Constructions Lucas ROCHETTE au (Numéro supprimé) vous présente cette très belle opportunité située sur la commune de GREASQUE. Ce terrain d’une surface de 560M² viabilisé vous permettra d’édifier la maison de vos rêves. Le prix du terrain est de 295000€ hors frais de notaire ni d’éventuelles adaptations au sol.Vu avec notre partenaire foncier.Concept clé en main et rencontrant depuis plus de 28 ans un franc succès, la formule terrain + maison fait partie de L’ADN de la société Azur et Constructions. Spécialiste de la construction de maisons individuelles fondé en 1994 à Martigues, l’entreprise familiale met à la disposition de toute sa clientèle un large choix d’annonces immobilières de terrain + modèle de maison, de plain-pied, à étage, avec ou sans garage, de style contemporain ou plus traditionnel. uvrant sur une grande partie du territoire de la région Provence-Alpes-Côte d’Azur, la société couvre le département du Vaucluse, des Hautes-Alpes, des Alpes-de-Haute-Provence, des Bouches-du-Rhône et du Gard, département de la région voisine.Pour découvrir l’ensemble des annonces de terrain + maisons proposées par l’entreprise immobilière, la clientèle de la société Azur et Constructions peut consulter le catalogue disponible en ligne, via le site internet de l’entreprise. Ils ont ainsi la possibilité d’effectuer des recherches en précisant la commune, avec possibilité de s’en éloigner de plus ou moins 5 kilomètres minimum et jusqu’à 100 kilomètres. La société de construction immobilière propose également à ses clients de venir lui rendre visite dans l’une de ses 4 agences situées respectivement à Manosque, à Martigues, à Salon de Provence et à Plan de Campagne sur la commune de Cabriès. Les collaborateurs de chaque agence se feront un plaisir de vous présenter en détail les annonces de terrain + maisons disponibles et de répondre à toutes vos questions.
Gréasque
TERRAINAzur et Constructions Lucas ROCHETTE au (Numéro supprimé) vous présente cette très belle opportunité située sur la commune de GREASQUE. Ce terrain d’une surface de 610M² viabilisé vous permettra d’édifier la maison de vos rêves. Le prix du terrain est de 305000€ hors frais de notaire ni d’éventuelles adaptations au sol.Vu avec notre partenaire foncier.Concept clé en main et rencontrant depuis plus de 28 ans un franc succès, la formule terrain + maison fait partie de L’ADN de la société Azur et Constructions. Spécialiste de la construction de maisons individuelles fondé en 1994 à Martigues, l’entreprise familiale met à la disposition de toute sa clientèle un large choix d’annonces immobilières de terrain + modèle de maison, de plain-pied, à étage, avec ou sans garage, de style contemporain ou plus traditionnel. uvrant sur une grande partie du territoire de la région Provence-Alpes-Côte d’Azur, la société couvre le département du Vaucluse, des Hautes-Alpes, des Alpes-de-Haute-Provence, des Bouches-du-Rhône et du Gard, département de la région voisine.Pour découvrir l’ensemble des annonces de terrain + maisons proposées par l’entreprise immobilière, la clientèle de la société Azur et Constructions peut consulter le catalogue disponible en ligne, via le site internet de l’entreprise. Ils ont ainsi la possibilité d’effectuer des recherches en précisant la commune, avec possibilité de s’en éloigner de plus ou moins 5 kilomètres minimum et jusqu’à 100 kilomètres. La société de construction immobilière propose également à ses clients de venir lui rendre visite dans l’une de ses 4 agences situées respectivement à Manosque, à Martigues, à Salon de Provence et à Plan de Campagne sur la commune de Cabriès. Les collaborateurs de chaque agence se feront un plaisir de vous présenter en détail les annonces de terrain + maisons disponibles et de répondre à toutes vos questions.
L’actualité immobilière à Allauch
27/11/2023
02/11/2023
30/10/2023
20/10/2023
16/10/2023
16/10/2023