Maison à construire à Alleins (13980)
Images
Description
🏡 À VENDRE - TERRAIN + PROJET DE CONSTRUCTION - ALLEINS (13980)
📍 Emplacement idéal | 🌳 Environnement paisible | 🏠 Maison neuve personnalisable
Vous rêvez de construire votre maison dans un cadre naturel tout en restant proche des commodités ?
Ne cherchez plus !
📐 Terrain constructible de 440 m², situé dans un quartier résidentiel recherché, à proximité immédiate du centre village, des écoles, commerces, mairie, ect.
🛠️ Projet de construction sur mesure : Plain pied ou Etage autorisé
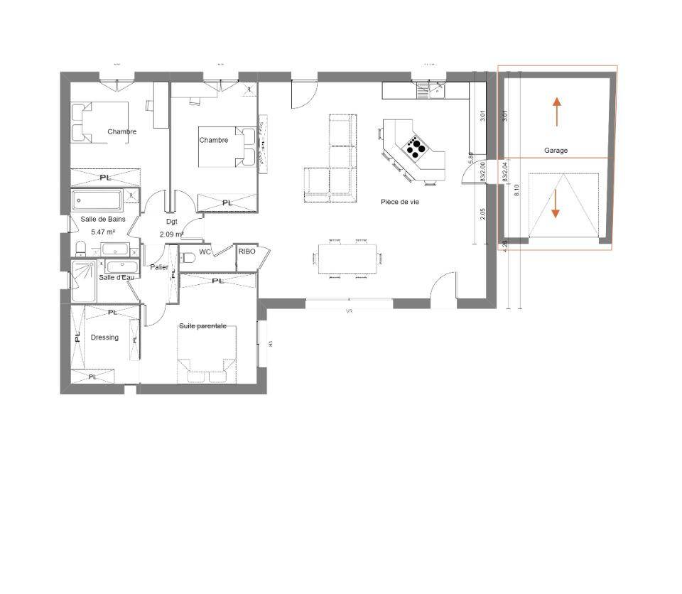
Exemple: Maison individuelle de 90 m², composée de :
Grande pièce de vie lumineuse
Cuisine ouverte
3 chambres
Salle de bains moderne
Garage / Terrasse (selon plans) Prix sur demande
🏗️ Construction réalisée par un constructeur local reconnu, Dommage Ouvrage comprise, ainsi que les garanties décennales et aux normes RE2020 en vigueur.
✅ Les + :
Quartier calme et familial
Vue dégagée / orientation optimale
Possibilité de personnaliser les plans
Frais de notaire en sus
Éligible au PTZ (Prêt à Taux Zéro)*
💰 Prix global (terrain + maison) à partir de : 328605€
Tarif donné à titre indicatif, selon modèle et prestations choisies
📞 Contactez nous dès aujourd'hui au (Numéro supprimé) ou (Numéro supprimé) pour plus d'informations, une étude gratuite de votre projet ou une visite du terrain !
Logement susceptibles de vous intéresser
Nous vous proposons de découvrir aussi cette sélection de logements situés à moins de 10km de Alleins et qui seraient susceptibles de vous intéresser.
Charleval
TERRAINBienvenue à Charleval, au cœur de la Provence, où une opportunité unique s’offre à vous. Idéalement situé à quelques pas des commerces et des écoles, ce terrain constructible de 639 m² bénéficie d’un cadre de vie privilégié. Non viabilisé, il offre une emprise au sol de 30 %, vous laissant la liberté de concevoir une maison sur mesure, avec la possibilité d’y ajouter une piscine pour un confort optimal.Ne manquez pas cette occasion rare de bâtir la maison de vos rêves dans l’un des secteurs les plus prisés de la région. Contactez-moi dès aujourd’hui pour plus d’informations et pour concrétiser votre projet immobilier.Ce terrain libre constructeur vous permet de donner vie à votre projet sans contrainte, dans un environnement paisible et verdoyant.Une étude géotechnique G1 a déjà été réalisée, garantissant une base solide pour votre construction.Cette annonce référence 220236 vous est présentée par votre agent commercial BSK Immobilier YANNICK BRUNET (EI) immatriculé au RSAC de SALON-DE-PROVENCE (13300) sous le numéro 9(Numéro supprimé)015.Prix du bien : 159 000,00 €Les honoraires d’agence sont à la charge du vendeur.Les informations sur les risques auxquels ce bien est exposé sont disponibles sur le site Géorisques : www.georisques.gouv.fr
Cheval-Blanc
TERRAINA Cheval Blanc (84460).Un terrain simple, bien situé et sans mauvaise surprise à un prix trés accessible pour le secteur!Idéalement situé au sein d’un environnement résidentiel neuf!Le terrain est entièrement viabilisé.Rare à ce prix! Direct propriétaire!David DESTRIAN (Numéro supprimé)!Azur & Constructions Salon-de-ProvenceGroupe HEXAOM
Alleins
TERRAIN– Terrain boisé avec piscine à Alleins – 950 m² – 235 000 €Sublime terrain arboré de 950 m² situé sur les hauteurs d’Alleins, dans un quartier résidentiel calme, sans vis-à-vis ni nuisance, à seulement quelques minutes du centre du village.Environnement exceptionnel avec grands chênes et piscine déjà en place.Terrain viabilisé, prêt à bâtir.Prix : 235 000 euros (hors frais de notaire)Terrain proposé par notre partenaire foncier, sous réserve de disponibilité.Terrain de 950m² avec piscine à ce prix ? Une opportunité rarissime sur Alleins.David DESTRIAN Azur & Constructions Salon-de-ProvenceGroupe HEXAOM(Numéro supprimé)
Mallemort
TERRAINMallemort : terrain de 417 m² en venteProche d’Aix-en-Provence – À vendre : projetez-vous sur ce terrain de 345 m² à Mallemort (13370).Proche gare (Lamanon), établissements scolaires, commerce. Accès autoroute A7 à 9 km. Mer Méditerranée à 26 km.Il est à vendre pour la somme de 174 000 €. N’hésitez pas à prendre contact avec notre agence (DEROCH Daniel : (Numéro supprimé)) pour tout renseignement sur le terrain ou sur les modalités de vente. Faites de vos projets immobiliers une réalité avec Azur & Constructions Salon-de-Provence.
Sénas
TERRAINTerrain de 386 m² en vente à SénasEn centre-ville – Proche des commodités, en vente : terrain de 386 m², orienté au sud à Sénas (13560).À dix minutes : gares (Sénas, Lamanon et Orgon), École Primaire Jean Moulin 2, crèche, bibliothèque, commerces et supermarché. Autoroute A7 à 1 km. Mer Méditerranée à 23 km. Avignon à 30 km.Il est proposé à l’achat pour 137 000 €. Contactez Daniel DEROCH (tél : (Numéro supprimé)) pour toute question sur le terrain. Azur & Constructions Salon-de-Provence est là pour vous accompagner dans tous vos projets immobiliers.Concept clé en main et rencontrant depuis plus de 30 ans un franc succès, la formule terrain + maison fait partie de L’ADN de la société Azur et Constructions. Spécialiste de la construction de maisons individuelles fondé en 1994 à Martigues, l’entreprise familiale met à la disposition de toute sa clientèle un large choix d’annonces immobilières de terrain + modèle de maison, de plain-pied, à étage, avec ou sans garage, de style contemporain ou plus traditionnel. uvrant sur une grande partie du territoire de la région Provence-Alpes-Côte d’Azur, la société couvre le département du Vaucluse, des Hautes-Alpes, des Alpes-de-Haute-Provence, des Bouches-du-Rhône et du Gard, département de la région voisine.Pour découvrir l’ensemble des annonces de terrain + maison proposées par l’entreprise immobilière, la clientèle de la société Azur et Constructions peut consulter le catalogue disponible en ligne, via le site internet de l’entreprise. Ils ont ainsi la possibilité d’effectuer des recherches en précisant la commune, avec possibilité de s’en éloigner de plus ou moins 5 kilomètres minimum et jusqu’à 100 kilomètres. La société de construction immobilière propose également à ses clients de venir lui rendre visite dans l’une de ses 4 agences situées respectivement à Manosque, à Martigues, à Salon de Provence et à Plan de Campagne sur la commune de Cabriès. Les collaborateurs de chaque agence se feront un plaisir de vous pr
Sénas
TERRAINTerrain de 350 m² à vendre PROCHE D’AVIGNONÀ Sénas (13560) à 23 km de la mer Méditerranée et à deux pas d’Avignon, donnez vie à votre résidence principale ou secondaire sur ce terrain de 403 m². Il est exposé au sud. On trouve l’École Primaire Jean Moulin 2 à moins de 10 minutes à pied et une crèche. Niveau transports en commun, il y a les gares Sénas, Lamanon et Orgon à moins de 10 minutes en voiture. L’autoroute A7 est accessible à 1 km. On trouve une bibliothèque, trois commerces et un supermarché dans les environs.Il est proposé à l’achat pour 154 900 €. Prenez contact avec notre agence (DEROCH Daniel : (Numéro supprimé)) pour toute question sur ce terrain ou sur les démarches à suivre. Azur & Constructions Salon de Provence, est là pour vous accompagner dans tous vos projets immobiliers.Concept clé en main et rencontrant depuis plus de 30 ans un franc succès, la formule terrain + maison fait partie de L’ADN de la société Azur et Constructions. Spécialiste de la construction de maisons individuelles fondé en 1994 à Martigues, l’entreprise familiale met à la disposition de toute sa clientèle un large choix d’annonces immobilières de terrain + modèle de maison, de plain-pied, à étage, avec ou sans garage, de style contemporain ou plus traditionnel. uvrant sur une grande partie du territoire de la région Provence-Alpes-Côte d’Azur, la société couvre le département du Vaucluse, des Hautes-Alpes, des Alpes-de-Haute-Provence, des Bouches-du-Rhône et du Gard, département de la région voisine.Pour découvrir l’ensemble des annonces de terrain + maison proposées par l’entreprise immobilière, la clientèle de la société Azur et Constructions peut consulter le catalogue disponible en ligne, via le site internet de l’entreprise. Ils ont ainsi la possibilité d’effectuer des recherches en précisant la commune, avec possibilité de s’en éloigner de plus ou moins 5 kilomètres minimum et jusqu’à 100 kilomètres. La société de construction immobilière propose également à ses
Alleins
TERRAINVENTE : maison T4 (88 m²) à AlleinsQuartier recherché – À Alleins (13980), maison neuve à vendre de 4 pièces, 88 m² et 407 m² de terrain. Elle propose trois chambres, une cuisine et une salle de bains.Proche gares (Lamanon, Sénas et Salon-de-Provence), écoles, crèche, tennis, bibliothèque, boulangeries, commerces, bureau de poste et supérette. Autoroutes A7 et A54 accessibles à 10 km. Mer Méditerranée à 23 km. Aix-en-Provence à 27 km.Cette maison de 4 pièces est proposée à l’achat pour 346 900 €.Prenez contact avec notre agence (DEROCH Daniel : (Numéro supprimé)) pour obtenir de plus amples renseignements sur la maison de plain-pied.
Cheval-Blanc
TERRAIN ET MAISONÀ Cheval-Blanc (84460)Une opportunité rare dans le secteur, alliant emplacement de qualité, cadre de vie calme et prix maîtrisé.Sur un terrain plat, bien situé et sans mauvaise surprise, nous vous proposons un projet clé en main à un prix très attractif pour le secteur : 298 500 € seulement (terrain + maison) !Le projet :Maison de plain-pied type Castellanaise88 m² habitables parfaitement optimisés3 chambres lumineusesUne belle pièce de vie avec cuisine ouverteSalle de bains moderneGarage intégré de 15 m²Et si vous avez une autre idée en tête ?Ce terrain peut accueillir votre maison sur-mesure : plans personnalisables, accompagnement complet, liberté totale.Pourquoi choisir Azur & Constructions ?Parce que vous bénéficiez de toutes les garanties et de l’expertise d’une filiale du groupe HEXAOM, n°1 français de la maison individuelle.Sérénité, fiabilité, accompagnement premium.Contactez-nous aujourd’hui pour une étude gratuite de votre projet.Ce que vous imaginez, nous le construisons.David DESTRIAN (Numéro supprimé)!Azur & Constructions Salon-de-ProvenceGroupe HEXAOM
Pélissanne
TERRAIN ET MAISONÀ Pélissanne (13330)Maison neuve 88m² + terrain 648m² + garage intégré 15m² = 328 500 €Prestations personnalisables – Normes RE2020Quartier résidentiel calme (Haut Taulet), proche écoles et commoditésPrix global : 328 500 € TTC (terrain + maison + garage)Et si vous avez une autre idée en tête ?Ce terrain peut accueillir votre maison sur-mesure : plans personnalisables, accompagnement complet, liberté totale.Pourquoi choisir Azur & Constructions ?Parce que vous bénéficiez de toutes les garanties et de l’expertise d’une filiale du groupe HEXAOM, n°1 français de la maison individuelle.Sérénité, fiabilité, accompagnement premium.Contactez-nous aujourd’hui pour une étude gratuite de votre projet.Ce que vous imaginez, nous le construisons.David DESTRIAN (Numéro supprimé)!Azur & Constructions Salon-de-ProvenceGroupe HEXAOM
L’actualité immobilière à Alleins
27/11/2023
02/11/2023
30/10/2023
20/10/2023
16/10/2023
16/10/2023