Maison à construire à Cabriès (13480)
Images
Description
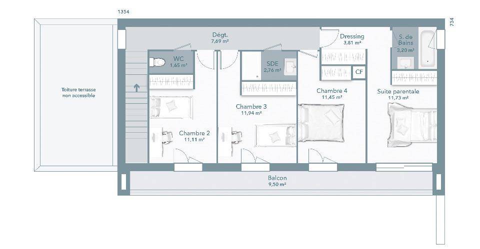
Cabriès : maison T6 (120 m²) à vendre
IDÉALEMENT SITUÉE - MAISON 6 PIÈCES NEUVE
À vendre sur le littoral méditerranéen et à deux pas de Marseille, votre agence Maisons France Confort Bouc-Bel-Air est ravie de vous proposer cette maison de 6 pièces de 120 m² idéalement située dans Cabriès (13480).
Il s'agit d'une maison de 2 niveaux. Son intérieur comporte quatre chambres, une cuisine et deux salles de bains. Cette maison est neuve.
Le terrain du bien est de 970 m².
Cette maison est située dans un secteur attractif. Il y a l'école élémentaire Montessori Internationale de Cabries à moins de 10 minutes à pied. Niveau transports en commun, on trouve neuf gares à moins de 10 minutes en voiture. Des autoroutes sont accessibles à moins de 9 km. Il y a une bibliothèque, un bassin de natation et un tennis à proximité du logement.
Elle est à vendre pour la somme de 880 000 €.
Contactez notre agence (Alix : (Numéro supprimé)) pour tout renseignement sur la maison ou sur les démarches à suivre.
Annonce proposée par un Agent Commercial Partenaire.
Logement susceptibles de vous intéresser
Nous vous proposons de découvrir aussi cette sélection de logements situés à moins de 10km de Cabriès et qui seraient susceptibles de vous intéresser.
Les Pennes-Mirabeau
TERRAINVENTE : maison F4 (93 m²) aux Pennes-MirabeauEmplacement privilégié – À découvrir aux Pennes-Mirabeau (13170) : maison neuve 4 pièces en vente. Surface de 93 m² sur 450 m² de terrain. Son intérieur est composé de trois chambres, d’une cuisine et d’une salle de bains.À dix minutes : gares, écoles, tennis, bibliothèque, bassin de natation, boulangeries, commerces, boucheries-charcuteries, bureau de poste et poissonneries. Autoroute A7 accessible à 1 km. Mer Méditerranée à 5 km.Cette maison de 4 pièces est proposée à l’achat pour 395 900 €.N’hésitez pas à prendre contact avec notre agence (Anthony ANGELI : (Numéro supprimé)) pour plus d’informations sur la maison. Azur & Constructions Cabriès est là pour vous accompagner dans tous vos projets immobiliers.
Les Pennes-Mirabeau
TERRAIN ET MAISONVENTE : maison F4 (93 m²) aux Pennes-MirabeauEmplacement privilégié – À découvrir aux Pennes-Mirabeau (13170) : maison neuve 4 pièces en vente. Surface de 93 m² sur 450 m² de terrain. Son intérieur est composé de trois chambres, d’une cuisine et d’une salle de bains.À dix minutes : gares, écoles, tennis, bibliothèque, bassin de natation, boulangeries, commerces, boucheries-charcuteries, bureau de poste et poissonneries. Autoroute A7 accessible à 1 km. Mer Méditerranée à 5 km.Cette maison de 4 pièces est proposée à l’achat pour 395 900 €.N’hésitez pas à prendre contact avec notre agence (Anthony ANGELI : (Numéro supprimé)) pour plus d’informations sur la maison. Azur & Constructions Cabriès est là pour vous accompagner dans tous vos projets immobiliers.
Les Pennes-Mirabeau
TERRAINCalme absolu, proche commoditéPrix : 280000 €.Sur ce terrain de 493 m² à LES PENNES-MIRABEAU, VILLAS PRISME vous propose de réaliser votre projet de construction de maison individuelle.Avec VILLAS PRISME, vous pouvez personnaliser votre projet de maison sur mesure :- Plan et distribution- Système de chauffage au choix- Prestations et équipements selon vos souhaits : carrelages, faïence, menuiseries, salles de bains…- Mode constructif et matériaux selon les normes en vigueur Demandez une étude gratuite et personnalisée de votre projet de construction sur ce terrain à LES PENNES-MIRABEAU ! Prix hors frais de notaire. Terrain sélectionné et vu pour vous sous réserve de disponibilité et au prix indiqué par notre partenaire foncier. Non mandaté pour la vente du terrain. Visuels non contractuels.Cette annonce a été créée et diffusée avec le logiciel VITAHOME.
Bouc-Bel-Air
TERRAIN ET MAISONProjet de Construction de Maison Contemporaine de 100m2 à Bouc Bel AirDécouvrez ce projet d’exception, situé dans un cadre idyllique à Bouc Bel Air. Cette maison contemporaine de plus de 100m², au design moderne et épuré, se distingue par ses grandes ouvertures qui inondent les espaces de lumière naturelle. Architecture contemporaine avec des lignes élégantes et des finitions haut de gamme. Surface habitable 100m² conçue pour optimiser chaque espace et offrir un maximum de confort. Maison très lumineuse grâce à ses vastes baies vitrées et à une orientation sud. Espaces fonctionnels et personnalisables : cuisine ouverte, grande pièce de vie, suite parentale, chambres spacieuses. Terrain spacieux dans un environnement calme et verdoyant, parfait pour la vie en extérieur.Située dans un secteur prisé de Bouc Bel Air , cette propriété combine la proximité du centre-ville avec un cadre serein et naturel. Un véritable havre de paix à deux pas des commodités.Ce projet est une opportunité unique pour construire une maison alliant modernité, luminosité et confort, dans un des secteurs les plus recherchés de la région.Ne laissez pas passer cette occasion !Contactez nous dès aujourd’hui pour plus de détails ou pour organiser une visite du terrain et discuter des possibilités qu’offre ce projet.demandez ALIX : (Numéro supprimé)Votre maison contemporaine lumineuse à Bouc Bel Air vous attend !Annonce proposée par un Agent Commercial Partenaire.
Cabriès
TERRAIN ET MAISONMaison de 5 pièces (136 m²) à vendre à CabrièsIDÉALEMENT SITUÉE – MAISON 5 PIÈCES NEUVEEn vente : localisée sur le littoral méditerranéen et à deux pas de Marseille, nous vous présentons cette maison de 5 pièces de 136 m² idéalement située dans Cabriès (13480). Elle compte cinq chambres, une cuisine et deux salles de bains.Le terrain de cette maison est de 1 100 m².C’est une maison de 2 niveaux. Elle est neuve.La maison est située dans un quartier convoité. L’école élémentaire Montessori Internationale de Cabries se trouve à moins de 10 minutes à pied. Niveau transports en commun, il y a neuf gares à moins de 10 minutes en voiture. Des autoroutes sont accessibles à moins de 9 km. On trouve une bibliothèque, un bassin de natation et un tennis à quelques minutes.Son prix de vente est de 650 000 €.N’hésitez pas à prendre contact avec notre agence au (Numéro supprimé) pour toute question sur la propriété, sur les modalités de vente ou sur les démarches à suivre.Annonce proposée par un Agent Commercial Partenaire.
Cabriès
TERRAINNous vous proposons un magnifique terrain constructible de 970 m² idéalement situé à Cabries, dans un environnement calme et recherché.Points forts : Emplacement privilégié : Proche des commodités, des écoles, et des axes principaux tout en offrant un cadre paisible. Excellente orientation :Orienté plein sud Profitez d’une exposition optimale pour des espaces de vie lumineux et agréables. Potentiel de construction : Terrain idéal pour réaliser votre projet immobilier (maison individuelle, villa contemporaine…). Terrain borné, viabilisé Accès facileCe terrain rare à Cabries est une opportunité à ne pas manquer pour construire la maison de vos rêves.APPELEZ ALIX AU (Numéro supprimé)Annonce proposée par un Agent Commercial Partenaire.
Cabriès
TERRAIN ET MAISONCabriès : maison de 6 pièces (140 m²) en venteIDÉALEMENT SITUÉE – MAISON 6 PIÈCES NEUVEEn vente sur le littoral méditerranéen et à deux pas de Marseille, idéalement située dans Cabriès (13480), nous vous proposons cette maison de 6 pièces de 140 m² et de 970 m² de terrain. Son intérieur est composé de quatre chambres, d’une cuisine et de deux salles de bains.C’est une maison de 2 niveaux. Elle est neuve.Cette maison se situe dans un secteur convoité. L’école élémentaire Montessori Internationale de Cabries se trouve à moins de 10 minutes à pied. Niveau transports en commun, il y a neuf gares à moins de 10 minutes en voiture. Des autoroutes sont accessibles à moins de 9 km. On trouve une bibliothèque, un bassin de natation et un tennis à quelques minutes du bien.Elle est à vendre pour la somme de 840 000 €.Prenez contact avec Alix ((Numéro supprimé)) pour plus de renseignements sur le bien.Annonce proposée par un Agent Commercial Partenaire.
Cabriès
TERRAIN ET MAISONCabriès : maison T6 (120 m²) à vendreIDÉALEMENT SITUÉE – MAISON 6 PIÈCES NEUVEÀ vendre sur le littoral méditerranéen et à deux pas de Marseille, votre agence Maisons France Confort Bouc-Bel-Air est ravie de vous proposer cette maison de 6 pièces de 120 m² idéalement située dans Cabriès (13480).Il s’agit d’une maison de 2 niveaux. Son intérieur comporte quatre chambres, une cuisine et deux salles de bains. Cette maison est neuve.Le terrain du bien est de 970 m².Cette maison est située dans un secteur attractif. Il y a l’école élémentaire Montessori Internationale de Cabries à moins de 10 minutes à pied. Niveau transports en commun, on trouve neuf gares à moins de 10 minutes en voiture. Des autoroutes sont accessibles à moins de 9 km. Il y a une bibliothèque, un bassin de natation et un tennis à proximité du logement.Elle est à vendre pour la somme de 880 000 €.Contactez notre agence (Alix : (Numéro supprimé)) pour tout renseignement sur la maison ou sur les démarches à suivre.Annonce proposée par un Agent Commercial Partenaire.
Cabriès
TERRAIN ET MAISONMaison F6 (130 m²) en vente à CabrièsIDÉALEMENT SITUÉE – MAISON 6 PIÈCES NEUVESur le littoral méditerranéen et à 18 km de Marseille, en vente idéalement située dans Cabriès (13480), Maisons France Confort Bouc-Bel-Air vous présente cette maison de 6 pièces de 130 m².C’est une maison de 2 niveaux. Elle comporte quatre chambres, une cuisine et trois salles de bains. Cette maison est neuve.Le terrain du bien s’étend sur 970 m².La maison est située dans un quartier attractif. On trouve l’école élémentaire Montessori Internationale de Cabries à moins de 10 minutes à pied. Côté transports, il y a neuf gares à moins de 10 minutes en voiture. Des autoroutes sont accessibles à moins de 9 km. On trouve une bibliothèque, un bassin de natation et un tennis dans les environs.Elle est à vendre pour la somme de 770 000 €.Prenez contact avec Alix : (Numéro supprimé) pour toute information sur la maison ou sur les modalités de vente.Annonce proposée par un Agent Commercial Partenaire.
L’actualité immobilière à Cabriès
27/11/2023
02/11/2023
30/10/2023
20/10/2023
16/10/2023
16/10/2023