Maison à construire à Fos-sur-Mer (13270)
Images
Description
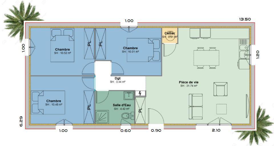
VENTE d'une maison F4 (71 m²) à Fos-sur-Mer
Quartier recherché - À découvrir à Fos-sur-Mer (13270) : maison neuve 4 pièces en vente. Surface de 71 m² et 300 m² de terrain. Son intérieur inclut trois chambres, une cuisine et une salle de bains.
À proximité : gares, établissements scolaires, crèches, marchés, tennis, bassins de natation, ports de plaisance, bowling, bibliothèques, supermarchés, commerces, boulangeries, supérettes et poissonneries. Accès nationales N568 et N569 à 3 km. Mer Méditerranée à 5 km. Arles à 22 km.
Cette maison de 4 pièces est proposée à l'achat pour 259 900 €.
Contactez Anthony ANGELI ((Numéro supprimé)) pour tout renseignement sur la maison.
Logement susceptibles de vous intéresser
Nous vous proposons de découvrir aussi cette sélection de logements situés à moins de 10km de Fos-sur-Mer et qui seraient susceptibles de vous intéresser.
Port-de-Bouc
TERRAINViabilisé, bien situé, calmePrix : 191520 €.Sur ce terrain de 732 m² à PORT-DE-BOUC, VILLAS PRISME vous propose de réaliser votre projet de construction de maison individuelle.Avec VILLAS PRISME, vous pouvez personnaliser votre projet de maison sur mesure :- Plan et distribution- Système de chauffage au choix- Prestations et équipements selon vos souhaits : carrelages, faïence, menuiseries, salles de bains…- Mode constructif et matériaux selon les normes en vigueur Demandez une étude gratuite et personnalisée de votre projet de construction sur ce terrain à PORT-DE-BOUC ! Prix hors frais de notaire. Terrain sélectionné et vu pour vous sous réserve de disponibilité et au prix indiqué par notre partenaire foncier. Non mandaté pour la vente du terrain. Visuels non contractuels.Cette annonce a été créée et diffusée avec le logiciel VITAHOME.
Fos-sur-Mer
TERRAINNotre Agence Maisons France Confort Cabriès à Expobat Plan de Campagne est heureuse de vous présenter avec ses Partenaires Fonciers ce terrain de 380 m². Il y a des établissements scolaires de tous types (de la maternelle au lycée) à moins de 10 minutes en voiture, tout comme quatre structures d’accueil pour les enfants en bas âge à moins de 10 minutes à pied. Côté transports, on trouve quatre gares à moins de 10 minutes en voiture.Les nationales N568 et N569 sont accessibles à moins de 3 km. Son prix de vente est de 145 000 €. Contactez notre agence (Jean Luc ASCIONE Tel: (Numéro supprimé)/(Numéro supprimé)) pour plus d’informations sur ce terrain et sur les modalités de vente. Maisons France Confort Cabriès vous accompagne dans toutes vos démarches et dans tous vos projets immobiliers.
Fos-sur-Mer
TERRAIN ET MAISONVotre Maisons France Confort Cabriès à Expobat Plan de Campagne vous présente cette maison de 4 pièces de plain-pied de 64 m² et de 380 m² de terrain.Son intérieur compte trois chambres, une cuisine et une salle de bains. La maison est neuve.On trouve des écoles (de la maternelle au lycée) à moins de 10 minutes en voiture, tout comme quatre structures d’accueil pour les enfants en bas âge à moins de 10 minutes à pied. Niveau transports en commun, il y a quatre gares à moins de 10 minutes en voiture. Les nationales N568 et N569 sont accessibles à moins de 3 km. Son prix de vente est de 275 000 €.N’hésitez pas à prendre contact avec notre agence (Jean Luc ASCIONE Tel : (Numéro supprimé)/(Numéro supprimé)) pour toute information sur cette maison ou sur les démarches à suivre. Maisons France Confort Cabriès vous accompagne dans tous vos projets immobiliers et à toutes les étapes de l’achat.
Fos-sur-Mer
TERRAIN ET MAISONNotre Agence Maisons France Confort Cabriès à Plan de Campagne vous présentent cette Maisons de 98m2 composée de 4 Chambres et d’une SDB, d’un Toilette et d’un belle Espace Séjour Cuisine sur ce Terrain de 380m2 se situant à Fos-sur-Mer (13270). PROCHE de MARSEILLE.Il est exposé au sud. Des établissements scolaires du primaire et du secondaire sont implantés à moins de 10 minutes en voiture.Niveau transports en commun, on trouve quatre gares à moins de 10 minutes en voiture. Ce Projet terrain+ Maison est à vendre pour la somme de 330 000 €. N’hésitez pas à prendre contact avec Maisons France Confort Cabriès à Plan de Campagne Jean- Luc ASCIONE Tél : (Numéro supprimé)/(Numéro supprimé) pour plus d’informations sur le terrain, sur les modalités de vente ou sur les démarches à suivre
Fos-sur-Mer
TERRAIN ET MAISONNotre Agence Maisons France Confort Cabriès à Plan de Campagne vous proposons à Fos-sur-Mer (13270), cette maison de 6 pièces de 112 m². Elle offre quatre chambres, une cuisine et deux salles de bains.Le terrain de la propriété est de 380 m².Il s’agit d’une maison de 2 niveaux. Elle est neuve.Des écoles de tous niveaux se trouvent à moins de 10 minutes en voiture, tout comme quatre crèches à moins de 10 minutes à pied. Niveau transports en commun.il y a quatre gares à moins de 10 minutes en voiture. Ce Projet Terrain+ Maison est à vendre pour la somme de 375 000 €.N’hésitez pas à prendre contact avec notre agence Maisons France Confort Cabriès à Plan de Campagne (ASCIONE Jean Luc Tel: (Numéro supprimé)/(Numéro supprimé)) pour obtenir de plus amples informations sur ce bien. Maisons France Confort Cabriès est là pour vous accompagner dans toutes vos démarches.
Fos-sur-Mer
TERRAINVENTE : terrain de 400 m² à Fos-sur-MerEmplacement privilégié – À Fos-sur-Mer (13270) : réalisez votre projet sur ce terrain en vente de 400 m², exposé au sud.À dix minutes : gares, établissements scolaires, crèches, marchés, tennis, bassins de natation, ports de plaisance, bowling, bibliothèques, supermarchés, commerces, boulangeries, bureaux de poste et supérettes. Accès nationales N568 et N569 à 3 km. Mer Méditerranée à 5 km. Arles à 22 km.Il est à vendre pour la somme de 147 500 €. Prenez contact avec Anthony ANGELI (tél : (Numéro supprimé)) pour toute question sur le terrain, sur les modalités de vente et sur les démarches à suivre. Azur & Constructions Cabriès vous accompagne dans tous vos projets immobiliers et à toutes les étapes de votre projet.
Fos-sur-Mer
TERRAIN ET MAISONVENTE d’une maison de 4 pièces (93 m²) à Fos-sur-MerEmplacement privilégié – Maison neuve 4 pièces à vendre à Fos-sur-Mer (13270) avec une surface de 93 m² sur un terrain de 400 m². Elle est composée de trois chambres, d’une cuisine et d’une salle de bains.Proche gares, établissements scolaires, crèches, marchés, tennis, bassins de natation, ports de plaisance, bowling, bibliothèques, supermarchés, commerces, boulangeries, poissonneries et supérettes. Nationales N568 et N569 accessibles à 3 km. Mer Méditerranée à 5 km. Arles à 22 km.Cette maison de 4 pièces est proposée à l’achat pour 289 890 €.Prenez contact avec Anthony ANGELI ((Numéro supprimé)) pour plus d’informations sur la maison ou sur les démarches à suivre. Concrétisez vos projets immobiliers avec Azur & Constructions Cabriès.
Fos-sur-Mer
TERRAIN ET MAISONVENTE d’une maison F4 (71 m²) à Fos-sur-MerQuartier recherché – À découvrir à Fos-sur-Mer (13270) : maison neuve 4 pièces en vente. Surface de 71 m² et 300 m² de terrain. Son intérieur inclut trois chambres, une cuisine et une salle de bains.À proximité : gares, établissements scolaires, crèches, marchés, tennis, bassins de natation, ports de plaisance, bowling, bibliothèques, supermarchés, commerces, boulangeries, supérettes et poissonneries. Accès nationales N568 et N569 à 3 km. Mer Méditerranée à 5 km. Arles à 22 km.Cette maison de 4 pièces est proposée à l’achat pour 259 900 €.Contactez Anthony ANGELI ((Numéro supprimé)) pour tout renseignement sur la maison.
Fos-sur-Mer
TERRAINFos-sur-Mer : terrain de 300 m² à vendreQuartier recherché – Donnez vie à votre projet sur ce terrain orienté au sud de 300 m² en vente à Fos-sur-Mer (13270).À dix minutes : gares, établissements scolaires, crèches, marchés, tennis, bassins de natation, ports de plaisance, bowling, bibliothèques, supermarchés, commerces, boulangeries, épiceries et poissonneries. Accès nationales N568 et N569 à 3 km. Mer Méditerranée à 5 km. Arles à 22 km.Il est à vendre pour la somme de 130 000 €. N’hésitez pas à prendre contact avec notre agence (Anthony ANGELI : (Numéro supprimé)) pour toute question sur le terrain.
L’actualité immobilière à Fos-sur-Mer
27/11/2023
02/11/2023
30/10/2023
20/10/2023
16/10/2023
16/10/2023