Maison à construire à Jouques (13490)
Images
Description
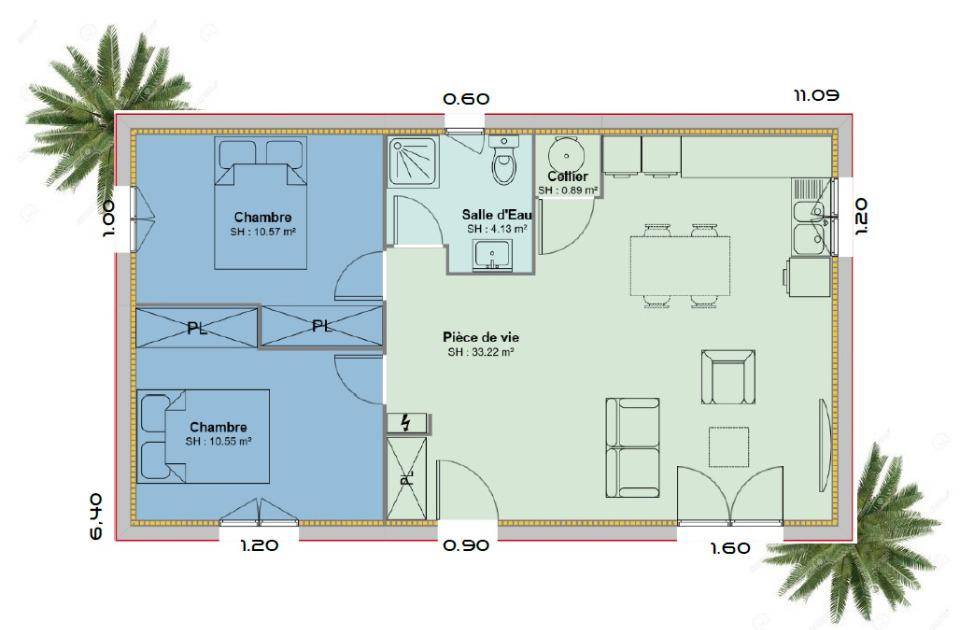
Jouques : maison de 3 pièces (59 m²) à vendre
Emplacement privilégié - À vendre à Jouques (13490) : maison neuve 3 pièces de 59 m² sur un terrain de 804 m². Son intérieur propose deux chambres, une cuisine et une salle de bains.
Proche gare (Meyrargues), écoles, tennis, commerces, boulangeries, épicerie, boucheries-charcuteries et bureau de poste. Marché Place des Anciens Comb le dimanche matin. Autoroutes A51 et A8 et nationale N296 accessibles à 18 km. Mer Méditerranée à 45 km. Aix-en-Provence à 24 km.
Le prix de vente de cette maison de 3 pièces est de 309 890 €.
Contactez notre agence (Anthony ANGELI : (Numéro supprimé)) pour plus de renseignements sur la maison ou sur les modalités de vente.
Logement susceptibles de vous intéresser
Nous vous proposons de découvrir aussi cette sélection de logements situés à moins de 10km de Jouques et qui seraient susceptibles de vous intéresser.
Peyrolles-en-Provence
TERRAINVotre Agence Maisons France Confort à Cabriès Plan de Campagne vous présente avec ses Partenaires Fonciers à 25 minutes d’Aix-en-Provence sur la Commune de Peyrolles-en-Provence (13860) ce magnifique terrain plat de 360 m² entièrement viabilisé. Il est prêt à accueillir votre projet immobilier pour toute la famille. Très Proche du Collège Jean Jaurès et de l’École Maternelle Peyrolles. Côté transports en commun, il y a les gares Meyrargues et Pertuis à moins de 10 minutes en voiture. Il y a un accès à l’autoroute A51 à 5 minutes .Il est proposé à l’achat pour 162 000 €. Contactez notre Agence Maisons France Confort Cabriès à Expobat Plan de Campagne Jean Luc ASCIONE (Tel: (Numéro supprimé)/(Numéro supprimé)) pour toute question sur ce terrain. Maisons France Confort Cabriès est là pour vous accompagner dans tous vos projets immobiliers.
Peyrolles-en-Provence
TERRAIN ET MAISONNotre agence Maisons France Confort Cabriès à Expobat Plan de Campagne est ravie de vous proposer cette maison de 5 pièces de 77 m² sur la commune de Peyrolles-en-Provence (13860).Il s’agit d’une maison de 2 niveaux. Elle compte trois chambres, une cuisine et une salle de bains. Le terrain de la propriété s’étend sur 360 m².Le Collège Jean Jaurès et l’École Maternelle Peyrolles sont implantés à Proximité. Côté transports, il y a les gares Meyrargues et Pertuis à moins de 10 minutes en voiture. On trouve un accès à l’autoroute A51 à 7 km. Ce Projet Terrain + Maison est à vendre pour la somme de 305 000 €.N’hésitez pas à prendre contact avec Jean Luc ASCIONE (tél : (Numéro supprimé)/(Numéro supprimé)) pour toute question sur cette maison ou sur les modalités de vente.
Peyrolles-en-Provence
TERRAIN ET MAISONNotre Agence Maisons France Confort Cabriès à Expobat Plan de Campagne sommes ravis de vous présenter à Peyrolles-en-Provence (13860) située à 25 Minutes d’Aix-en-Provence Cette maison de 6 pièces de 115 m² et de 360 m² de terrain. Son intérieur inclut quatre chambres, une cuisine et deux salles de bains.Il s’agit d’une maison de 2 niveaux. Il y a le Collège Jean Jaurès et l’École Maternelle Peyrolles à Proximité. Côté transports, on trouve deux gares (Meyrargues et Pertuis) à moins de 10 minutes en voiture.Son prix de vente est de 395 000 €.Contactez Jean Luc ASCIONE (Tel: (Numéro supprimé)/(Numéro supprimé)) pour obtenir de plus amples renseignements sur ce bien, sur les modalités de vente ou sur les démarches à suivre. Maisons France Confort Cabriès est là pour vous accompagner à toutes les étapes de votre projet.
Peyrolles-en-Provence
TERRAIN ET MAISONNotre agence Maisons France Confort Cabriès à Expobat Plan de Campagne est ravie de vous proposer cette maison de 5 pièces de 90 m² sur la commune de Peyrolles-en-Provence (13860).Il s’agit d’une maison de 2 niveaux. Elle compte trois chambres, une cuisine et une salle de bains. Le terrain de la propriété s’étend sur 360 m².Le Collège Jean Jaurès et l’École Maternelle Peyrolles sont implantés à Proximité. Côté transports, il y a les gares Meyrargues et Pertuis à moins de 10 minutes en voiture. On trouve un accès à l’autoroute A51 à 7 km. Ce Projet Terrain + Maison est à vendre pour la somme de 420 000 €.N’hésitez pas à prendre contact avec Jean Luc ASCIONE (tél : (Numéro supprimé)/(Numéro supprimé)) pour toute question sur cette maison ou sur les modalités de vente.
Rians
TERRAINST MARTIN, 10 mn de Rians, 15 mn de St Maximin, 20 mn de Cadarache, 46 mn Aix en Pce.Magnifique environnement campagne pour ce terrain de 1330 m², constructible 250 m², viabilisé, raccordé au tout à l’égout. Libre constructeur. Au calme, accès facile. A VOIR. Prix: 119000 euros
Jouques
TERRAIN ET MAISONA JOUQUES sur un terrain de 642 m², VILLAS PRISME vous propose de réaliser votre projet de construction de maison individuelle d'une surface de 95 m² habitables avec 3 chambres.Avec VILLAS PRISME, vous pouvez personnaliser votre projet de maison sur mesure :- Plan et distribution- Système de chauffage au choix- Prestations et équipements selon vos souhaits : carrelages, faïence, menuiseries, salles de bains…- Mode constructif et matériaux selon les normes en vigueur Informations du terrain : Je vous invite a découvrir rapidement cette petite pépite dans le beau village de Jouques. Le terrain est issu d'un petit lotissement de 3 lots. A l'abri des regards, bordé par un joli muret en pierres sèches, vous serez séduits par son environnement. La surface de plancher autorisée est de 200m2, pour une emprise au sol de 120m2. Le terrain est vendu viabilisé, avec le raccordement au tout à l'égout. Coup de coeur assuré !Demandez une étude gratuite et personnalisée de votre projet de construction !Contactez Nathalie MENAGER au (Numéro supprimé) (Villas Prisme – Show-room de Vitrolles).Prix avec assurance dommages-ouvrage comprise, hors VRD, terrain viabilisé, frais de notaire non compris, frais divers non compris. Terrain sélectionné et vu pour vous sous réserve de disponibilité et au prix indiqué par notre partenaire foncier. Non mandaté pour la vente du terrain. Visuels non contractuels.Cette annonce a été créée et diffusée avec le logiciel VITAHOME.
Peyrolles-en-Provence
TERRAINDans ce tout nouveau lotissement dont les travaux sont en cours d'achèvement, je vous propose en autres, ce terrain vendu entièrement viabilisé d'environ 387m2. A proximité de toutes les commodités et des différents axes principaux, vous apprécierez sont emplacement idéal.Prix : 162000 €.Sur ce terrain de 387 m² à PEYROLLES-EN-PROVENCE, VILLAS PRISME vous propose de réaliser votre projet de construction de maison individuelle.Avec VILLAS PRISME, vous pouvez personnaliser votre projet de maison sur mesure :- Plan et distribution- Système de chauffage au choix- Prestations et équipements selon vos souhaits : carrelages, faïence, menuiseries, salles de bains…- Mode constructif et matériaux selon les normes en vigueur Demandez une étude gratuite et personnalisée de votre projet de construction sur ce terrain à PEYROLLES-EN-PROVENCE ! Prix hors frais de notaire. Terrain sélectionné et vu pour vous sous réserve de disponibilité et au prix indiqué par notre partenaire foncier. Non mandaté pour la vente du terrain. Visuels non contractuels.Cette annonce a été créée et diffusée avec le logiciel VITAHOME.
Peyrolles-en-Provence
TERRAINNotre Agence Maisons France Confort Cabriès à Expobat Plan de Campagne est heureuse de vous présenter avec ses Partenaires Fonciers à Peyrolles-en-Provence (13860) à quelques kilomètres d’Aix-en-Provence, ce terrain de 350 m². Le lotissement est terminé et prêt à construire.Il y a l’École Élémentaire Toussaint Barthomeuf, le Collège Jean Jaurès et l’École Maternelle Peyrolles dans la commune. Niveau transports, on trouve deux gares (Meyrargues et Pertuis) à moins de 10 minutes en voiture. L’autoroute A51 est accessible à 7 km. Il est à vendre pour la somme de 152 000 €. Contactez notre agence (ASCIONE Jean Luc Tel: (Numéro supprimé)/(Numéro supprimé)) pour tout renseignement sur le terrain, sur les démarches à suivre ou sur les modalités de vente. Donnez vie à vos projets immobiliers avec Maisons France Confort Cabriès.
Peyrolles-en-Provence
TERRAINVenez découvrir ce tout nouveau lotissement dont les travaux sont pratiquement terminés, à l'entrée du très beau village de Peyrolles en Provence. Les familles sauront y trouver une vie paisible à proximité des écoles, crèche et des transports. Quelques lots restent à la vente. L'occasion de bien choisir l'écrin de votre future villas Prisme. Chaque lot est vendu entièrement viabilisé avec une surface de plancher maximale de 200m2.Prix : 162000 €.Sur ce terrain de 327 m² à PEYROLLES-EN-PROVENCE, VILLAS PRISME vous propose de réaliser votre projet de construction de maison individuelle.Avec VILLAS PRISME, vous pouvez personnaliser votre projet de maison sur mesure :- Plan et distribution- Système de chauffage au choix- Prestations et équipements selon vos souhaits : carrelages, faïence, menuiseries, salles de bains…- Mode constructif et matériaux selon les normes en vigueur Demandez une étude gratuite et personnalisée de votre projet de construction sur ce terrain à PEYROLLES-EN-PROVENCE ! Prix hors frais de notaire. Terrain sélectionné et vu pour vous sous réserve de disponibilité et au prix indiqué par notre partenaire foncier. Non mandaté pour la vente du terrain. Visuels non contractuels.Cette annonce a été créée et diffusée avec le logiciel VITAHOME.
L’actualité immobilière à Jouques
27/11/2023
02/11/2023
30/10/2023
20/10/2023
16/10/2023
16/10/2023