Maison 100 m² avec terrain à LA BARBEN (13)
Images
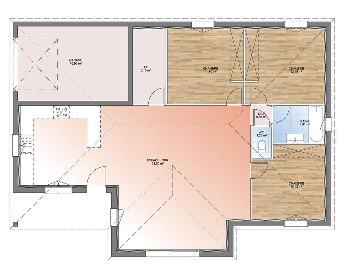
Description
A LA BARBEN sur un terrain de 775 m², VILLAS PRISME vous propose de réaliser votre projet de construction de maison individuelle d'une surface de 100 m² habitables avec 3 chambres.
Avec VILLAS PRISME, vous pouvez personnaliser votre projet de maison sur mesure :
- Plan et distribution
- Système de chauffage au choix
- Prestations et équipements selon vos souhaits : carrelages, faïence, menuiseries, salles de bains...
- Mode constructif et matériaux selon les normes en vigueur
Informations du terrain : PLAT - EXPOSE SUD - PROCHE ECOLE - VIABILITES EN BORDURE - PLAIN PIED OBLIGATOIRE - PROXIMITE IMMEDIATE VILLAGE
Demandez une étude gratuite et personnalisée de votre projet de construction !
Contactez Sylvie OGET au (Numéro supprimé) (Villas Prisme - Agence de Salon-de-Provence).
Prix avec assurance dommages-ouvrage comprise, hors VRD, terrain non viabilisé, frais de notaire non compris, frais divers non compris. Terrain sélectionné et vu pour vous sous réserve de disponibilité et au prix indiqué par notre partenaire foncier. Non mandaté pour la vente du terrain. Visuels non contractuels.
Cette annonce a été créée et diffusée avec le logiciel VITAHOME.
Logement susceptibles de vous intéresser
Nous vous proposons de découvrir aussi cette sélection de logements situés à moins de 10km de La Barben et qui seraient susceptibles de vous intéresser.
La Fare-les-Oliviers
TERRAINLa Fare-les-Oliviers : terrain de 620 m² en venteQuartier recherché – À deux pas des écoles et commerces, terrain exposé au sud de 620 m² en vente à La Fare-les-Oliviers (13580).À dix minutes : gare (Rognac), écoles, bibliothèque, tennis, commerces, boulangerie, boucheries-charcuteries, bureau de poste et épicerie. Autoroute A7 accessible à 3 km. Mer Méditerranée à 7 km. Aix-en-Provence à 15 km.Il est à vendre pour la somme de 280 000 €. Contactez notre agence (GIMENEZ Pierre :(Numéro supprimé) pour obtenir de plus amples informations sur le terrain ou sur les démarches à suivre. Faites de vos projets immobiliers une réalité avec Azur & Constructions Martigues.
La Fare-les-Oliviers
TERRAIN ET MAISONMaison F4 (100 m²) à vendre à La Fare-les-OliviersQuartier recherché – À découvrir à La Fare-les-Oliviers (13580) : maison neuve 4 pièces à vendre. 2 niveaux, surface de 100 m² sur 620 m² de terrain. Son intérieur se divise en trois chambres, une cuisine et une salle de bains.Proche gare (Rognac), écoles, bibliothèque, tennis, commerces, boulangerie, boucheries-charcuteries, épicerie et bureau de poste. Accès autoroute A7 à 3 km. Mer Méditerranée à 7 km. Aix-en-Provence à 15 km.Le prix de vente de cette maison de 4 pièces est de 435 000 €.HFNContactez Pierre GIMENEZ (tél : (Numéro supprimé)) pour toute question sur la maison, sur les démarches à suivre ou sur les modalités de vente.
Pélissanne
TERRAIN ET MAISONÀ Pélissanne (13330)Maison neuve 88m² + terrain 648m² + garage intégré 15m² = 328 500 €Prestations personnalisables – Normes RE2020Quartier résidentiel calme (Haut Taulet), proche écoles et commoditésPrix global : 328 500 € TTC (terrain + maison + garage)Et si vous avez une autre idée en tête ?Ce terrain peut accueillir votre maison sur-mesure : plans personnalisables, accompagnement complet, liberté totale.Pourquoi choisir Azur & Constructions ?Parce que vous bénéficiez de toutes les garanties et de l’expertise d’une filiale du groupe HEXAOM, n°1 français de la maison individuelle.Sérénité, fiabilité, accompagnement premium.Contactez-nous aujourd’hui pour une étude gratuite de votre projet.Ce que vous imaginez, nous le construisons.David DESTRIAN (Numéro supprimé)!Azur & Constructions Salon-de-ProvenceGroupe HEXAOM
Pélissanne
TERRAIN ET MAISONÀ Pélissanne (13330)Maison neuve 115m² + terrain 648m² + garage 18m² = 368 500 €Prestations personnalisables – Normes RE2020Quartier résidentiel calme (Haut Taulet), proche écoles et commoditésPrix global : 368 500 € TTC (terrain + maison + garage)Et si vous avez une autre idée en tête ?Ce terrain peut accueillir votre maison sur-mesure : plans personnalisables, accompagnement complet, liberté totale.Pourquoi choisir Azur & Constructions ?Parce que vous bénéficiez de toutes les garanties et de l’expertise d’une filiale du groupe HEXAOM, n°1 français de la maison individuelle.Sérénité, fiabilité, accompagnement premium.Contactez-nous aujourd’hui pour une étude gratuite de votre projet.Ce que vous imaginez, nous le construisons.David DESTRIAN (Numéro supprimé)!Azur & Constructions Salon-de-ProvenceGroupe HEXAOM
Pélissanne
TERRAIN ET MAISONÀ Pélissanne (13330)Maison neuve 130m² + terrain 648m² + garage 18m² = 408 500 €Prestations personnalisables – Normes RE2020Quartier résidentiel calme (Haut Taulet), proche écoles et commoditésPrix global : 408 500 € TTC (terrain + maison + garage)Et si vous avez une autre idée en tête ?Ce terrain peut accueillir votre maison sur-mesure : plans personnalisables, accompagnement complet, liberté totale.Pourquoi choisir Azur & Constructions ?Parce que vous bénéficiez de toutes les garanties et de l’expertise d’une filiale du groupe HEXAOM, n°1 français de la maison individuelle.Sérénité, fiabilité, accompagnement premium.Contactez-nous aujourd’hui pour une étude gratuite de votre projet.Ce que vous imaginez, nous le construisons.David DESTRIAN (Numéro supprimé)!Azur & Constructions Salon-de-ProvenceGroupe HEXAOM
La Barben
TERRAIN ET MAISONA LA BARBEN sur un terrain de 775 m², VILLAS PRISME vous propose de réaliser votre projet de construction de maison individuelle d'une surface de 100 m² habitables avec 3 chambres.Avec VILLAS PRISME, vous pouvez personnaliser votre projet de maison sur mesure :- Plan et distribution- Système de chauffage au choix- Prestations et équipements selon vos souhaits : carrelages, faïence, menuiseries, salles de bains…- Mode constructif et matériaux selon les normes en vigueur Informations du terrain : PLAT – EXPOSE SUD – PROCHE ECOLE – VIABILITES EN BORDURE – PLAIN PIED OBLIGATOIRE – PROXIMITE IMMEDIATE VILLAGEDemandez une étude gratuite et personnalisée de votre projet de construction !Contactez Sylvie OGET au (Numéro supprimé) (Villas Prisme – Agence de Salon-de-Provence).Prix avec assurance dommages-ouvrage comprise, hors VRD, terrain non viabilisé, frais de notaire non compris, frais divers non compris. Terrain sélectionné et vu pour vous sous réserve de disponibilité et au prix indiqué par notre partenaire foncier. Non mandaté pour la vente du terrain. Visuels non contractuels.Cette annonce a été créée et diffusée avec le logiciel VITAHOME.
Pélissanne
TERRAIN ET MAISONA PELISSANNE sur un terrain de 936 m², VILLAS PRISME vous propose de réaliser votre projet de construction de maison individuelle d'une surface de 110 m² habitables avec 4 chambres.Avec VILLAS PRISME, vous pouvez personnaliser votre projet de maison sur mesure :- Plan et distribution- Système de chauffage au choix- Prestations et équipements selon vos souhaits : carrelages, faïence, menuiseries, salles de bains…- Mode constructif et matériaux selon les normes en vigueur Informations du terrain : EXPOSE SUD – SECTEUR RESIDENTIEL RECHERCHE – CALME – VIABILISEDemandez une étude gratuite et personnalisée de votre projet de construction !Contactez Sylvie OGET au (Numéro supprimé) (Villas Prisme – Agence de Salon-de-Provence).Prix avec assurance dommages-ouvrage comprise, hors VRD, terrain viabilisé, frais de notaire non compris, frais divers non compris. Terrain sélectionné et vu pour vous sous réserve de disponibilité et au prix indiqué par notre partenaire foncier. Non mandaté pour la vente du terrain. Visuels non contractuels.Cette annonce a été créée et diffusée avec le logiciel VITAHOME.
Pélissanne
TERRAIN ET MAISONA PELISSANNE sur un terrain de 736 m², VILLAS PRISME vous propose de réaliser votre projet de construction de maison individuelle d'une surface de 90 m² habitables avec 3 chambres.Avec VILLAS PRISME, vous pouvez personnaliser votre projet de maison sur mesure :- Plan et distribution- Système de chauffage au choix- Prestations et équipements selon vos souhaits : carrelages, faïence, menuiseries, salles de bains…- Mode constructif et matériaux selon les normes en vigueur Informations du terrain : Calme – Viabilisé – Secteur très demandé -Demandez une étude gratuite et personnalisée de votre projet de construction !Contactez Sylvie OGET au (Numéro supprimé) (Villas Prisme – Agence de Salon-de-Provence).Prix avec assurance dommages-ouvrage comprise, hors VRD, terrain viabilisé, frais de notaire non compris, frais divers non compris. Terrain sélectionné et vu pour vous sous réserve de disponibilité et au prix indiqué par notre partenaire foncier. Non mandaté pour la vente du terrain. Visuels non contractuels.Cette annonce a été créée et diffusée avec le logiciel VITAHOME.
Lambesc
TERRAIN ET MAISONDans un cadre résidentiel recherché, découvrez cette maison neuve de 158 m² au design résolument moderne. Pensée pour offrir un confort optimal au quotidien, elle conjugue esthétisme, performance énergétique et équipements haut de gamme.Conforme à la norme RE 2020, cette maison est équipée de panneaux solaires, d’un chauffage gainable performant et bénéficie d’un DPE A, vous garantissant une consommation énergétique maîtrisée.Son agencement harmonieux met à l’honneur les volumes, avec une belle pièce de vie traversante, une suite parentale indépendante, un coin nuit pour les enfants et un bureau, idéal pour le télétravail.Parfaite pour une famille à la recherche d’espace, de lumière et d’économies d’énergie.Contactez-nous au (Numéro supprimé).Frais de notaire non compris.Cette annonce a été créée et diffusée avec le logiciel VITAHOME.
L’actualité immobilière à La Barben
27/11/2023
02/11/2023
30/10/2023
20/10/2023
16/10/2023
16/10/2023