Maison à construire à Carro (13500)
Images
Description
Emplacement privilégié sur Martigues CARRO Rareté sur ce secteur !!
Maisons France Confort Cabriès et son partenaire foncier ont sélectionné pour vous cette magnifique parcelle de terrain plane de 498m2 ensoleillé, parfaite pour accueillir votre future maison.
Sur le secteur très recherché de Carro, offrez-vous un cadre de vie exceptionnel au coeur du charmant petit village de pécheur à proximité immédiate de tout .. Mer, nature, école, arrêt de bus, toutes commodités à 500 mètres.
Ce terrain offre la possibilité d'accueillir une maison de plain pied ou à étage jusqu'à 200 m2 habitable.
Parce que notre métier est de construire la maison qui vous ressemble !!!
Exemple de projet ( modifiable selon vos envies, optimisé et adapté à votre budget )
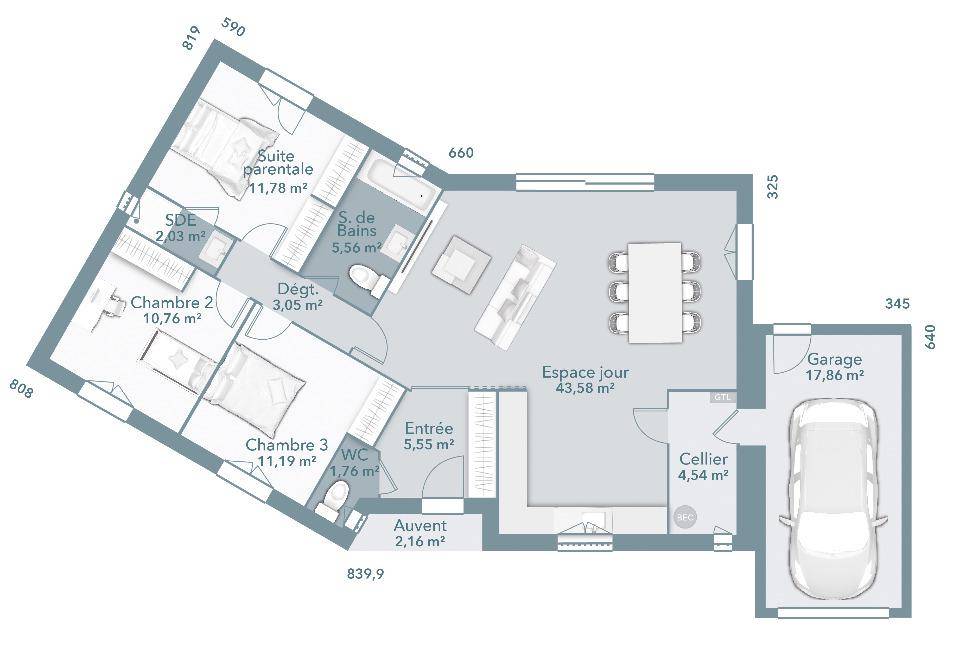
Villa T4 de plain pied conçue en forme de V pour offrir à la fois confort, modernité et intimité.
Avec ses 88 m2 habitables, ce modèle allie volumes généreux, fonctionnalité et finitions de qualités.
° Spacieux séjour cuisine de plus de 42m2 avec large baie vitrée donnant sur le jardin
° Trois grandes chambres avec placard
° Une confortable SDB
° Un WC séparé
Son prix : Terrain + Maison = 449 000 euros HORS FRAIS HORS GARAGE ET HORS TAXES
Mr Geoffrey BITANGA vous accompagne du choix du terrain, à la conception et réalisation de votre future habitation, selon vos envies et votre budget.
Joignable au (Numéro supprimé)_ (Numéro supprimé)
Logement susceptibles de vous intéresser
Nous vous proposons de découvrir aussi cette sélection de logements situés à moins de 10km de Martigues et qui seraient susceptibles de vous intéresser.
Port-de-Bouc
TERRAINMaison de 5 pièces (90 m²) en vente à Port-de-BoucEmplacement privilégié – À vendre à Port-de-Bouc (13110) : maison neuve 5 pièces de 90 m² et de 645 m² de terrain. Son intérieur est composé de trois chambres, d’une cuisine et d’une salle de bains.Proche gares, établissements scolaires, bibliothèque et commerces. Autoroute A55 et nationales N568 et N569 accessibles à 7 km. Mer Méditerranée à 173 m. Arles à 31 km.Cette maison de 5 pièces est à vendre pour la somme de 345 900 €.Contactez Anthony ANGELI ((Numéro supprimé)) pour toute information sur la maison.
Martigues
TERRAIN ET MAISONEmplacement privilégié sur Martigues CARRO Rareté sur ce secteur !! Maisons France Confort Cabriès et son partenaire foncier ont sélectionné pour vous cette magnifique parcelle de terrain plane de 498m2 ensoleillé, parfaite pour accueillir votre future maison.Sur le secteur très recherché de Carro, offrez-vous un cadre de vie exceptionnel au coeur du charmant petit village de pécheur à proximité immédiate de tout .. Mer, nature, école, arrêt de bus, toutes commodités à 500 mètres.Ce terrain offre la possibilité d’accueillir une maison de plain pied ou à étage jusqu’à 200 m2 habitable. Parce que notre métier est de construire la maison qui vous ressemble !!!Exemple de projet ( modifiable selon vos envies, optimisé et adapté à votre budget ) Découvrez cette élégante maison de style Bastide T6 de 125 m2 plus garage conçue pour offrir confort, luminosité et espaces généreux. Les atouts de cette bastide : ° Suite parentale au rez-de-chaussée avec sa salle d’eau privative et son espace dressing ° Grande pièce de vie traversante offrant un vaste salon séjour et une cuisine ouverte° Cellier attenant, pratique pour le rangement° Un garage communicant A l’étage : ° Quatre spacieuses chambres avec placard ° SDB et WC séparé Son prix : Terrain + Maison = 545 000 euros HORS FRAIS ET HORS TAXES Mr Geoffrey BITANGA vous accompagne du choix du terrain, à la conception et réalisation de votre future habitation, selon vos envies et votre budget.Joignable au (Numéro supprimé)_ (Numéro supprimé)
Martigues
TERRAIN ET MAISONMaison F4 (71 m²) à vendre à MartiguesEmplacement privilégié – Maison neuve 4 pièces à vendre à Martigues (13500) avec une surface de 71 m² sur un terrain de 350 m². Conçue de plain-pied, elle offre trois chambres, une cuisine et une salle de bains.À dix minutes : gares, établissements scolaires, crèches, marchés, bibliothèques, tennis, bassin de natation, ports de plaisance, boulangeries, commerces, supermarchés, supérettes et poissonneries. Autoroute A55 et nationale N568 accessibles à 6 km. Mer Méditerranée à 3 km.Le prix de vente de cette maison de 4 pièces est de 272 890 €.N’hésitez pas à prendre contact avec notre agence (Anthony ANGELI : (Numéro supprimé)) pour toute question sur la maison ou sur les modalités de vente. Azur & Constructions Cabriès vous accompagne à toutes les étapes de votre projet et dans tous vos projets immobiliers.
Martigues
TERRAIN ET MAISONNouveauté sur Martigues !! Maisons France Confort Cabriès et son partenaire foncier ont sélectionné pour vous cette magnifique de terrain plane, viabilisé et ensoleillé, parfaite pour accueillir votre future maison.Sur le secteur très recherché de Martigues Jonquières, calme et résidentiel à proximité immédiate de tout .. Centre ville, écoles, collègue, transport, axes autoroutiers .. Ce terrain piscinable offre la possibilité d’accueillir une maison de plain pied ou à étage jusqu’à 210m2 habitable. Parce que notre métier est de construire la maison qui vous ressemble !!!Exemple de projet ( modifiable selon vos envies, optimisé et adapté à votre budget ) Sur cette parcelle de 580 m², nous avons imaginé de construire un modèle de maison T4 de plain pied d’une surface habitable de 64 m² idéalement optimisée, comprenant une entrée avec placard, un agréable séjour/ cuisine ouvert sur jardin. Coté nuit, trois belles chambres ainsi qu’une SDB et WC séparés. Son prix : Terrain + Maison = 390 000 euros HORS FRAIS ET HORS TAXES Pour tous renseignements complémentaires ou pour une étude personnalisée, Mr Geoffrey BITANGA est joignable au (Numéro supprimé) /(Numéro supprimé)
Sausset-les-Pins
TERRAIN ET MAISONVENTE d’une maison de 4 pièces (100 m²) à Sausset-les-PinsGare Sausset-les-Pins – En vente, bénéficiant d’un emplacement privilégié dans Sausset-les-Pins (13960) : maison neuve 4 pièces de 100 m² et de 455 m² de terrain. Elle dispose de trois chambres, d’une cuisine et d’une salle de bains.À dix minutes : gare (Sausset-les-Pins), écoles, port de plaisance, tennis, commerces, supermarché, boulangeries, boucheries-charcuteries et bureau de poste. Marché Avenue Audibert le dimanche matin. Autoroute A55 accessible à 7 km. Mer Méditerranée à 2 km. Marseille à 24 km.Cette maison de 4 pièces est proposée à l’achat pour 545 890 €.Contactez Anthony ANGELI (tél : (Numéro supprimé)) pour toute information sur la maison. Azur & Constructions Cabriès est là pour vous accompagner à toutes les étapes de l’achat.
Martigues
TERRAIN ET MAISONMaison de 5 pièces (107 m²) à vendre à MartiguesIdéalement située – À découvrir à Martigues (13500) : maison neuve 5 pièces en vente, 2 niveaux, 107 m² de surface et 490 m² de terrain. Elle dispose de trois chambres, d’une cuisine et d’une salle de bains.Proche gares, établissements scolaires, crèches, marchés, bibliothèques, tennis, bassin de natation, ports de plaisance, boulangeries, commerces, supermarchés, épiceries et poissonneries. Autoroute A55 et nationale N568 à 6 km. Mer Méditerranée à 3 km.Le prix de vente de cette maison de 5 pièces est de 398 890 €.N’hésitez pas à prendre contact avec Anthony ANGELI ((Numéro supprimé)) pour toute information sur la maison ou sur les démarches à suivre. Azur & Constructions Cabriès vous accompagne à toutes les étapes de votre projet et dans tous vos projets immobiliers.
Martigues
TERRAIN ET MAISONNouveauté sur Martigues !! Sur le secteur très recherché de Martigues Jonquières, calme et résidentiel à proximité immédiate de tout .. Centre ville, écoles, collègue, transport, axes autoroutiers .. Ce terrain piscinable offre la possibilité d’accueillir une maison de plain pied ou à étage jusqu’à 210m2 habitable. Maisons France Confort Cabriès et son partenaire foncier ont sélectionné pour vous cette magnifique parcelle de terrain plane et ensoleillé d’une superficie de 580 m2, parfaite pour accueillir votre future maison.Viabilité en bordure Parce que notre métier est de construire la maison qui vous ressemble !!!Exemple de projet ( modifiable selon vos envies, optimisé et adapté à votre budget ) Villa T5 de plain pied conçue en forme de V pour offrir à la fois confort, modernité et intimité. Avec ses 110 m2 habitables, ce modèle allie volumes généreux, fonctionnalité et finitions de qualités.° Spacieux séjour cuisine avec large baie vitrée donnant sur le jardin ° Une buanderie pour le coté pratique ° 4 grandes chambres de 13m2 en moyenne avec placard ° Une confortable SDB ° Un WC séparé Son prix : Terrain + Maison = 455 000 euros HORS FRAIS HORS GARAGE ET HORS TAXES Mr Geoffrey BITANGA vous accompagne du choix du terrain, à la conception et réalisation de votre future habitation, selon vos envies et votre budget.Joignable au (Numéro supprimé)_ (Numéro supprimé)
Port-de-Bouc
TERRAIN ET MAISONMaison de 5 pièces (90 m²) en vente à Port-de-BoucEmplacement privilégié – À vendre à Port-de-Bouc (13110) : maison neuve 5 pièces de 90 m² et de 645 m² de terrain. Son intérieur est composé de trois chambres, d’une cuisine et d’une salle de bains.Proche gares, établissements scolaires, bibliothèque et commerces. Autoroute A55 et nationales N568 et N569 accessibles à 7 km. Mer Méditerranée à 173 m. Arles à 31 km.Cette maison de 5 pièces est à vendre pour la somme de 345 900 €.Contactez Anthony ANGELI ((Numéro supprimé)) pour toute information sur la maison.
Martigues
TERRAIN ET MAISONEmplacement privilégié sur Martigues CARRO Rareté sur ce secteur !! Maisons France Confort Cabriès et son partenaire foncier ont sélectionné pour vous cette magnifique parcelle de terrain plane de 498m2 ensoleillé, parfaite pour accueillir votre future maison.Sur le secteur très recherché de Carro, offrez-vous un cadre de vie exceptionnel au coeur du charmant petit village de pécheur à proximité immédiate de tout .. Mer, nature, école, arrêt de bus, toutes commodités à 500 mètres.Ce terrain offre la possibilité d’accueillir une maison de plain pied ou à étage jusqu’à 200 m2 habitable. Parce que notre métier est de construire la maison qui vous ressemble !!!Exemple de projet ( modifiable selon vos envies, optimisé et adapté à votre budget ) Villa T4 de plain pied conçue en forme de V pour offrir à la fois confort, modernité et intimité. Avec ses 88 m2 habitables, ce modèle allie volumes généreux, fonctionnalité et finitions de qualités.° Spacieux séjour cuisine de plus de 42m2 avec large baie vitrée donnant sur le jardin ° Trois grandes chambres avec placard ° Une confortable SDB ° Un WC séparé Son prix : Terrain + Maison = 449 000 euros HORS FRAIS HORS GARAGE ET HORS TAXES Mr Geoffrey BITANGA vous accompagne du choix du terrain, à la conception et réalisation de votre future habitation, selon vos envies et votre budget.Joignable au (Numéro supprimé)_ (Numéro supprimé)
L’actualité immobilière à Martigues
27/11/2023
02/11/2023
30/10/2023
20/10/2023
16/10/2023
16/10/2023