Maison à construire à Mas-Blanc-des-Alpilles (13103)
Images
Description
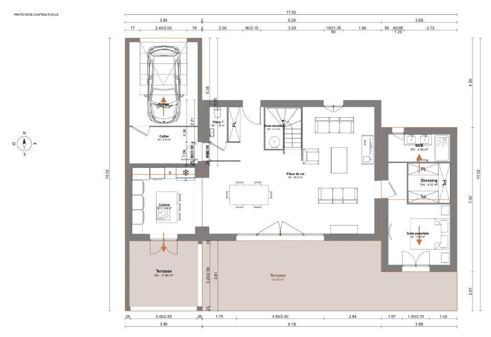
Maison France Confort et ses partenaires fonciers vous proposent ce magnifique projet de construction sur la commune très recherchée de Mas-Blanc-des-Alpilles, à seulement 5 minutes de Saint-Rémy-de-Provence.
Profitez d'un terrain plat de 1500 m², idéalement situé à proximité immédiate des écoles, commerces et lycées, ainsi que des villages de Saint-Étienne-du-Grès et Maussane-les-Alpilles.
Vous rejoindrez la gare TGV d'Avignon en moins de 30 minutes, et bénéficierez d'un emplacement privilégié entre Arles, Avignon et Salon-de-Provence.
Exemple de réalisation possible Terrain Maison :
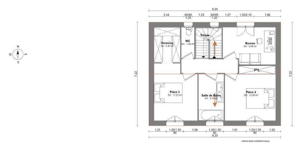
Une villa contemporaine de 4 chambres, dont une suite parentale au rez-de-chaussée, avec :
Une grande pièce de vie lumineuse de 64 m² incluant une cuisine ouverte,
De larges baies vitrées donnant sur le futur jardin,
Un garage et un cellier attenant,
Des prestations de qualité et une construction conforme aux normes RE2020.
Prix à partir de 748 000 € (hors frais de notaire, taxes et viabilisation).
Nous disposons également de nombreuses opportunités sur les secteurs de Saint-Rémy-de-Provence, Fontvieille, Saint-Martin-de-Crau et bien d'autres communes environnantes.
Ce projet est 100 % personnalisable selon vos envies et votre mode de vie.
Nos équipes vous accompagnent de la conception à la remise des clés, en passant par toutes les démarches administratives.
Contactez-nous dès aujourd'hui au (Numéro supprimé) ou auprès de notre agence de Salon-de-Provence pour convenir d'un premier échange et programmer une visite du terrain.
Logement susceptibles de vous intéresser
Nous vous proposons de découvrir aussi cette sélection de logements situés à moins de 10km de Mas-Blanc-des-Alpilles et qui seraient susceptibles de vous intéresser.
Saint-Étienne-du-Grès
TERRAINVENTE d’un terrain de 438 m² à Saint-Étienne-du-GrèsEmplacement privilégié – Concrétisez votre projet sur ce terrain en vente de 438 m², orienté au sud à Saint-Étienne-du-Grès (13103).À dix minutes : gares (Tarascon et Beaucaire), écoles, tennis, bibliothèque, commerce et poissonneries. Autoroutes et nationales à 20 km. Mer Méditerranée à 23 km. Avignon à 19 km.Il est à vendre pour la somme de 147 000 €. Contactez Daniel DEROCH ((Numéro supprimé)) pour toute question sur le terrain.Vu avec notre partenaire foncier« Concept clé en main et rencontrant depuis plus de 30 ans un franc succès, la formule terrain + maison fait partie de L’ADN de la société Azur et Constructions. Spécialiste de la construction de maisons individuelles fondé en 1994 à Martigues, l’entreprise familiale met à la disposition de toute sa clientèle un large choix d’annonces immobilières de terrain + modèle de maison, de plain-pied, à étage, avec ou sans garage, de style contemporain ou plus traditionnel. uvrant sur une grande partie du territoire de la région Provence-Alpes-Côte d’Azur, la société couvre le département du Vaucluse, des Hautes-Alpes, des Alpes-de-Haute-Provence, des Bouches-du-Rhône et du Gard, département de la région voisine.Pour découvrir l’ensemble des annonces de terrain + maison proposées par l’entreprise immobilière, la clientèle de la société Azur et Constructions peut consulter le catalogue disponible en ligne, via le site internet de l’entreprise. Ils ont ainsi la possibilité d’effectuer des recherches en précisant la commune, avec possibilité de s’en éloigner de plus ou moins 5 kilomètres minimum et jusqu’à 100 kilomètres. La société de construction immobilière propose également à ses clients de venir lui rendre visite dans l’une de ses 4 agences situées respectivement à Manosque, à Martigues, à Salon de Provence et à Plan de Campagne sur la commune de Cabriès. Les collaborateurs de chaque agence se feront un plaisir de vous présenter en détail les annonces de
Fontvieille
TERRAINVENTE d’un terrain de 600 m² à FontvieilleQuartier recherché – Proche écoles et commerces, en vente à Fontvieille (13990) : terrain de 600 m², orienté au sud.À proximité : gare (Arles), École Élémentaire Yvan Audouard, bassin de natation, boulangeries, commerces, supermarché, boucheries-charcuteries et bureau de poste. Marché Allée des Pins hebdomadaire. Accès nationales N113 et N572 à 10 km. Mer Méditerranée à 17 km. Avignon à 26 km.Il est à vendre pour la somme de 255 000 €. Contactez notre agence (DEROCH Daniel : (Numéro supprimé)) pour toute information sur le terrain, sur les modalités de vente ou sur les démarches à suivre. Donnez vie à vos projets immobiliers avec Azur & Constructions .Concept clé en main et rencontrant depuis plus de 30 ans un franc succès, la formule terrain + maison fait partie de L’ADN de la société Azur et Constructions. Spécialiste de la construction de maisons individuelles fondé en 1994 à Martigues, l’entreprise familiale met à la disposition de toute sa clientèle un large choix d’annonces immobilières de terrain + modèle de maison, de plain-pied, à étage, avec ou sans garage, de style contemporain ou plus traditionnel. uvrant sur une grande partie du territoire de la région Provence-Alpes-Côte d’Azur, la société couvre le département du Vaucluse, des Hautes-Alpes, des Alpes-de-Haute-Provence, des Bouches-du-Rhône et du Gard, département de la région voisine.Pour découvrir l’ensemble des annonces de terrain + maison proposées par l’entreprise immobilière, la clientèle de la société Azur et Constructions peut consulter le catalogue disponible en ligne, via le site internet de l’entreprise. Ils ont ainsi la possibilité d’effectuer des recherches en précisant la commune, avec possibilité de s’en éloigner de plus ou moins 5 kilomètres minimum et jusqu’à 100 kilomètres. La société de construction immobilière propose également à ses clients de venir lui rendre visite dans l’une de ses 3 agences situées respectivement à Martigues, à
Maussane-les-Alpilles
TERRAIN ET MAISONAu rez-de-chaussée, vous profiterez d’une grande pièce de vie lumineuse, idéale pour les moments conviviaux en famille ou entre amis. La cuisine ouverte et fonctionnelle, est accompagnée d’un cellier.À l’étage, la maison dispose de 4 chambres spacieuses, dont une suite parentale avec salle d'eau privative. Une deuxième salle de bain complète cet étage, parfait pour le confort de toute la famille.Située dans un quartier tranquille, cette maison bénéficie d’une orientation idéale. L’environnement verdoyant vous permettra de vous ressourcer tout en étant proche des commodités locales.Contactez-nous au (Numéro supprimé).Frais de notaire non compris.Cette annonce a été créée et diffusée avec le logiciel VITAHOME.
Maussane-les-Alpilles
TERRAIN ET MAISONDécouvrez cette maison de charme, idéale pour ceux qui recherchent espace, luminosité et confort. Au rez-de-chaussée, grande pièce de vie ouverte, cuisine moderne et cellier attenant pour plus de praticité. Le garage intégré vous offrira un espace de stationnement, tout en ajoutant une possibilité de rangement supplémentaire.À l'étage, la maison se compose de 4 chambres, dont une suite parentale avec salle d'eau privative. Une deuxième salle de bain complète cet étage.Située dans un environnement calme, à proximité des commodités, elle répondra parfaitement à vos besoins au quotidien.Contactez-nous au (Numéro supprimé).Frais de notaire non compris.Cette annonce a été créée et diffusée avec le logiciel VITAHOME.
Maillane
TERRAIN ET MAISONSituée dans un quartier résidentiel recherché, cette maison de plain-pied offre un cadre de vie paisible et fonctionnel, idéal pour une famille.Les atouts du bien :Surface habitable de 101m²Terrain clos et arboré, sans vis-à-visExposition idéale pour une belle luminosité intérieureEspace jour :Grande pièce de vie traversante avec cuisine ouverteAccès direct à la terrasse et au jardinCellier attenant à la cuisineGarage intégré avec accès intérieurEspace nuit :4 chambres confortablesSalle de bains indépendanteConfort et performance :Maison classée DPE A – Faibles consommations énergétiquesTrès bonne isolation thermique et phoniqueMatériaux durables et finitions soignéesProche des écoles, commerces, services et transports, cette maison combine parfaitement confort de vie et efficacité énergétique. Bien rare à la vente.Contactez-nous au (Numéro supprimé).Frais de notaire non compris.Cette annonce a été créée et diffusée avec le logiciel VITAHOME.
Maillane
TERRAIN ET MAISONLaissez-vous séduire par cette maison à l’architecture soignée, pensée pour allier volume, lumière naturelle et qualité de vie. Dès l’entrée, vous découvrirez un vaste espace de vie baigné de lumière, où la cuisine ouverte, moderne et fonctionnelle, s’intègre parfaitement. Un cellier attenant vient compléter cet espace avec une touche de praticité bienvenue. Le garage intégré, quant à lui, offre non seulement un stationnement sécurisé, mais aussi un bel espace de rangement.À l’étage, l’espace nuit propose 3 chambres confortables, dont une belle suite parentale avec sa salle d’eau privative. Une seconde salle de bains vient parfaire l’aménagement, idéale pour répondre aux besoins de toute la famille.Nichée dans un quartier paisible tout en restant proche des écoles, commerces et services, cette maison offre un cadre de vie agréable et pratique au quotidien. Elle conviendra parfaitement aux familles en quête d’un lieu à la fois chaleureux, moderne et bien situé.Contactez-nous au (Numéro supprimé).Frais de notaire non compris.Cette annonce a été créée et diffusée avec le logiciel VITAHOME.
Mas-Blanc-des-Alpilles
TERRAINMaison France Confort et ses partenaires fonciers vous proposent ce magnifique projet de construction sur la commune très recherchée de Mas-Blanc-des-Alpilles, à seulement 5 minutes de Saint-Rémy-de-Provence.Profitez d’un terrain plat de 1500 m², idéalement situé à proximité immédiate des écoles, commerces et lycées, ainsi que des villages de Saint-Étienne-du-Grès et Maussane-les-Alpilles.Vous rejoindrez la gare TGV d’Avignon en moins de 30 minutes, et bénéficierez d’un emplacement privilégié entre Arles, Avignon et Salon-de-Provence.Exemple de réalisation possible Terrain Maison :Une villa contemporaine de 4 chambres, dont une suite parentale au rez-de-chaussée, avec :Une grande pièce de vie lumineuse de 64 m² incluant une cuisine ouverte,De larges baies vitrées donnant sur le futur jardin,Un garage et un cellier attenant,Des prestations de qualité et une construction conforme aux normes RE2020.Prix à partir de 748 000 € (hors frais de notaire, taxes et viabilisation).Nous disposons également de nombreuses opportunités sur les secteurs de Saint-Rémy-de-Provence, Fontvieille, Saint-Martin-de-Crau et bien d’autres communes environnantes.Ce projet est 100 % personnalisable selon vos envies et votre mode de vie.Nos équipes vous accompagnent de la conception à la remise des clés, en passant par toutes les démarches administratives.Contactez-nous dès aujourd’hui au (Numéro supprimé) ou auprès de notre agence de Salon-de-Provence pour convenir d’un premier échange et programmer une visite du terrain.
Mas-Blanc-des-Alpilles
TERRAIN ET MAISONMaison France Confort et ses partenaires fonciers vous proposent ce magnifique projet de construction sur la commune très recherchée de Mas-Blanc-des-Alpilles, à seulement 5 minutes de Saint-Rémy-de-Provence.Profitez d’un terrain plat de 1500 m², idéalement situé à proximité immédiate des écoles, commerces et lycées, ainsi que des villages de Saint-Étienne-du-Grès et Maussane-les-Alpilles.Vous rejoindrez la gare TGV d’Avignon en moins de 30 minutes, et bénéficierez d’un emplacement privilégié entre Arles, Avignon et Salon-de-Provence.Exemple de réalisation possible Terrain Maison :Une villa contemporaine de 4 chambres, dont une suite parentale au rez-de-chaussée, avec :Une grande pièce de vie lumineuse de 64 m² incluant une cuisine ouverte,De larges baies vitrées donnant sur le futur jardin,Un garage et un cellier attenant,Des prestations de qualité et une construction conforme aux normes RE2020.Prix à partir de 748 000 € (hors frais de notaire, taxes et viabilisation).Nous disposons également de nombreuses opportunités sur les secteurs de Saint-Rémy-de-Provence, Fontvieille, Saint-Martin-de-Crau et bien d’autres communes environnantes.Ce projet est 100 % personnalisable selon vos envies et votre mode de vie.Nos équipes vous accompagnent de la conception à la remise des clés, en passant par toutes les démarches administratives.Contactez-nous dès aujourd’hui au (Numéro supprimé) ou auprès de notre agence de Salon-de-Provence pour convenir d’un premier échange et programmer une visite du terrain.
Mas-Blanc-des-Alpilles
TERRAIN ET MAISONFrance Confort et ses partenaires fonciers vous proposent sur la commune de Mas Blanc sur un terrain plat de 1500 m², idéalement situé à seulement 5 minutes du centre de Saint-Rémy-de-Provence et de ses nombreux commerces, écoles et lycées.À proximité immédiate également de Saint-Étienne-du-Grès et à 30 minutes des gares TGV d’Avignon, Arles et Salon-de-Provence.Exemple de réalisation possible :Villa exposée plein sud avec vue dégagée4 chambres, dont une suite parentaleGrande pièce de vie de 44 m²Garage inclusÀ partir de 628 OOO€ (hors frais de notaire, taxes et viabilités).Nous disposons également de nombreuses opportunités sur les secteurs de Saint-Rémy-de-Provence, Fontvieille, Maussane Les Alpilles , Saint-Martin-de-Crau et bien d’autres communes.Un projet 100 % personnalisable : nous vous accompagnons de la conception jusqu’à la remise des clés, en passant par toutes les démarches administratives.Contactez-nous dès aujourd’hui au (Numéro supprimé) pour convenir d’un premier échange téléphonique, d’un rendez-vous à notre agence de Salon-de-Provence, et programmer directement une visite de terrain.
L’actualité immobilière à Mas-Blanc-des-Alpilles
27/11/2023
02/11/2023
30/10/2023
20/10/2023
16/10/2023
16/10/2023