Terrain à vendre

Maison à construire à Plan-d'Orgon (13750)

290000 €
78 m²
Plan-d'Orgon
Bouches-du-Rhône (13)
TERRAIN ET MAISON
Réf externe: 3524249
Annonce publiée le 5 novembre 2025

Images

Description

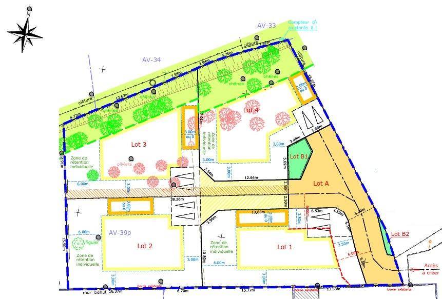
Dernière opportunité, ! Maisons France Confort Agence du Pontet, vous propose ce magnifique terrain plat entièrement viabilisé de 403M²

Avec son exposition sud, vous bénéficierez d'un cadre arboré dans un secteur très recherché.
Vous pourrez profiter d'une maison allant jusqu'à 120 M² (garage en option) à proximité de toutes les commodités : écoles, commerces, services, transports, à 5mn de Cavaillon.
Villes à proximités :Cheval blanc, Mollégès
Elaboration de votre projet sur mesure dans notre agence : Maisons France Confort Le Pontet avec étude financière possible.
Faite confiance au premier constructeur national pour vous accompagner en toute sérénité dans vos démarches.
Contactez M FINCK Walter au : (Numéro supprimé)

CONTACTER

Logement susceptibles de vous intéresser

151 000 € 222 €/m²
679 m²

Noves

TERRAIN

A VENDRE – Commune de NOVES – Marie Line et Emmanuel vous présentent un TERRAIN A BATIR. Parcelle de 679 m², emprise au sol de 30% – Libre constructeur. A visiter rapidement!Pour visiter et vous accompagner dans votre projet, contactez Marie Line URVOY, au (Numéro supprimé) ou au (Numéro supprimé)Selon l’article L.561.5 du Code Monétaire et Financier, pour l’organisation de la visite, la présentation d’une pièce d’identité vous sera demandée.Prix de vente de: 151000 euros honoraires inclus – 140 000 euros honoraires exclus – honoraires de 11000 euros à la charge des acquéreurs.Cette présente annonce a été rédigée sous la responsabilité éditoriale de Marie Line URVOY agissant sous le statut d’agent commercial immatriculé au RSAC TARASCON 434 911 863 auprès de SAS PROPRIETES PRIVEES, au capital de 44 920 euros, ZAC LE CHÊNE FERRÉ – 44 ALLÉE DES CINQ CONTINENTS 44120 VERTOU; SIRET 487 624 777 00040, RCS Nantes. Carte Professionnelle Transactions sur immeubles et fonds de commerce (T) et Gestion immobilière (G) n° CPI 4401 2016 000 010 388 délivrée par la CCI Nantes – Saint Nazaire. Compte séquestre n(Numéro supprimé)67 BPA SAINT-SEBASTIEN-SUR-LOIRE (44230). Garantie GALIAN-SMABTP – 89 rue de la Boétie, 75008 Paris – n°28137 J pour 2 000 000 euros pour T et 120 000 euros pour G. Assurance responsabilité civile professionnelle par GALIAN-SMABTP n° de police 28137.JMandat réf : 421487. – Le professionnel garantit et sécurise votre projet immobilier. (7.86 % honoraires TTC à la charge de l’acquéreur.) Marie Line URVOY (EI) Agent Commercial – Numéro RSAC : TARASCON 434 911 863 – .

L’actualité immobilière à Plan-d'Orgon

Image du post Pourquoi acheter un terrain en lotissement ? 27/11/2023
Lire l’article
Pourquoi acheter un terrain en lotissement ?
Image du post Vendre son terrain à un promoteur : comment procéder ? 02/11/2023
Lire l’article
Vendre son terrain à un promoteur : comment procéder ?
Image du post Diviser le terrain de sa maison pour le vendre : pourquoi et comment ? 30/10/2023
Lire l’article
Diviser le terrain de sa maison pour le vendre : pourquoi et comment ?
Image du post Acheter un terrain viabilisé : quels avantages ? 20/10/2023
Lire l’article
Acheter un terrain viabilisé : quels avantages ?
Image du post Les 7 étapes incontournables pour bien vendre votre terrain constructible 16/10/2023
Lire l’article
Les 7 étapes incontournables pour bien vendre votre terrain constructible
Image du post 5 points clés à vérifier pour l’achat d’un terrain constructible  16/10/2023
Lire l’article
5 points clés à vérifier pour l’achat d’un terrain constructible