Maison à construire à Sénas (13560)
Images
Description
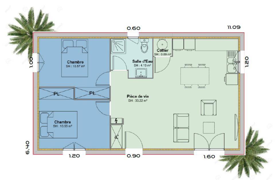
Sénas : maison T3 (59 m²) à vendre
Quartier recherché - À Sénas (13560), maison neuve à vendre de 3 pièces, 59 m² sur 388 m² de terrain. Son intérieur comporte deux chambres, une cuisine et une salle de bains.
À dix minutes : gares (Sénas, Lamanon et Orgon), École Primaire Jean Moulin 2, crèche, bibliothèque, commerces et supermarché. Autoroute A7 à 1 km. Mer Méditerranée à 23 km. Avignon à 30 km.
Cette maison de 3 pièces est proposée à l'achat pour 241 890 €.
Contactez Anthony ANGELI ((Numéro supprimé)) pour plus d'informations sur la maison ou sur les modalités de vente. Azur & Constructions Cabriès est là pour vous accompagner dans toutes vos démarches.
Logement susceptibles de vous intéresser
Nous vous proposons de découvrir aussi cette sélection de logements situés à moins de 10km de Sénas et qui seraient susceptibles de vous intéresser.
Alleins
TERRAINAlleins(13980) nouveau, Maisons France Confort et son partenaire foncier vous propose cette parcelle constructible de 408 m² situé dans un petit lotissement et il est entièrement viabilisé. Belle parcelle rectangulaire pouvant accueillir villa étage ou plain pied dans un environnement résidentiel.Ce projet vous permettra de construire votre villa à proximité de toutes les commodités pour votre famille: école primaire, équipements sportifs, centre commercial et axe autoroutier .Ce terrain au prix de 180 000 €, vous offrant une constructibilité jusqu’à 170 m² d’emprise au sol.Contactez dès à présent votre conseiller commercial de Maisons France Confort qui vous guidera sur l’étude personnalisée de votre projet de construction : au (Numéro supprimé) ou (Numéro supprimé) (Agence Salon de Provence). Nous proposons aussi des terrains sur Mouriès 13890, Maussane-les-Alpilles 13520, Eyguières 13430, Salon de Provence 13300, Sénas 13560, Mallemort 13370, Pélissanne 13330 et de nombreuses autres villes et villages.
Alleins
TERRAIN ET MAISONAlleins(13980) nouveau, Maisons France Confort et son partenaire foncier vous propose cette parcelle constructible de 407 m² situé dans un petit lotissement et il est entièrement viabilisé. Maison de plain pied de 100 m², elle comporte trois chambres, une cuisine, un grand séjour et deux salles de bains, un garage en option.Ce projet vous permettra de construire votre villa à proximité de toutes les commodités pour votre famille: école primaire, équipements sportifs, centre commercial et axe routier. A 15 mn de Salon de Provence et 35km d’Aix en Provence.Projet maison + terrain à partir de 330 800 €, hors frais et adaptations. Contactez notre agence au (Numéro supprimé) ou (Numéro supprimé) pour toute question sur la maison ou sur les démarches à suivre. Donnez vie à vos projets immobiliers avec Maisons France Confort Salon-de-Provence. Nous proposons aussi des projets de construction sur Mouriès 13890, Maussane-les-Alpilles 13520, Eyguières 13430, Salon de Provence 13300, Sénas 13560, Mallemort 13370, Pélissanne 13330 et de nombreuses autres villes et villages.
Alleins
TERRAIN ET MAISONAlleins(13980) nouveau, Maisons France Confort et son partenaire foncier vous propose cette parcelle constructible de 407 m² situé dans un petit lotissement et il est entièrement viabilisé.Cette maison à étage de 120 m², elle comporte trois chambres à l’étage et une suite parentale en rdc, une cuisine, un grand séjour et deux salles de bains, un garage en option.Ce projet vous permettra de construire votre villa à proximité de toutes les commodités pour votre famille: école primaire, équipements sportifs, centre commercial et axe routier. A 15 mn de Salon de Provence et 35 km d’Aix en Provence.Projet maison + terrain à partir de 395 990 €, hors frais et adaptations. Contactez notre agence au (Numéro supprimé) ou (Numéro supprimé) pour toute question sur la maison ou sur les démarches à suivre. Donnez vie à vos projets immobiliers avec Maisons France Confort Salon-de-Provence. Nous proposons aussi des projets de construction sur Mouriès 13890, Maussane-les-Alpilles 13520, Eyguières 13430, Salon de Provence 13300, Sénas 13560, Mallemort 13370, Pélissanne 13330 et de nombreuses autres villes et villages.
Alleins
TERRAIN ET MAISONA ALLEINS sur un terrain de 950 m², VILLAS PRISME vous propose de réaliser votre projet de construction de maison individuelle d'une surface de 110 m² habitables avec 4 chambres.Avec VILLAS PRISME, vous pouvez personnaliser votre projet de maison sur mesure :- Plan et distribution- Système de chauffage au choix- Prestations et équipements selon vos souhaits : carrelages, faïence, menuiseries, salles de bains…- Mode constructif et matériaux selon les normes en vigueur Informations du terrain : PLAT – CALME – VIABILISE – PISCINE EXISTANTEDemandez une étude gratuite et personnalisée de votre projet de construction !Contactez Sylvie OGET au (Numéro supprimé) (Villas Prisme – Agence de Salon-de-Provence).Prix avec assurance dommages-ouvrage comprise, hors VRD, terrain viabilisé, frais de notaire non compris, frais divers non compris. Terrain sélectionné et vu pour vous sous réserve de disponibilité et au prix indiqué par notre partenaire foncier. Non mandaté pour la vente du terrain. Visuels non contractuels.Cette annonce a été créée et diffusée avec le logiciel VITAHOME.
Sénas
TERRAIN ET MAISONA SENAS sur un terrain de 467 m², VILLAS PRISME vous propose de réaliser votre projet de construction de maison individuelle d'une surface de 95 m² habitables avec 3 chambres.Avec VILLAS PRISME, vous pouvez personnaliser votre projet de maison sur mesure :- Plan et distribution- Système de chauffage au choix- Prestations et équipements selon vos souhaits : carrelages, faïence, menuiseries, salles de bains…- Mode constructif et matériaux selon les normes en vigueur Informations du terrain : PLAT – EXPOSE PLEIN SUD – VIABILISE – SECTEUR RESIDENTIELDemandez une étude gratuite et personnalisée de votre projet de construction !Contactez Sylvie OGET au (Numéro supprimé) (Villas Prisme – Agence de Salon-de-Provence).Prix avec assurance dommages-ouvrage comprise, hors VRD, terrain viabilisé, frais de notaire non compris, frais divers non compris. Terrain sélectionné et vu pour vous sous réserve de disponibilité et au prix indiqué par notre partenaire foncier. Non mandaté pour la vente du terrain. Visuels non contractuels.Cette annonce a été créée et diffusée avec le logiciel VITAHOME.
Alleins
TERRAIN ET MAISONA ALLEINS sur un terrain de 407 m², VILLAS PRISME vous propose de réaliser votre projet de construction de maison individuelle d'une surface de 95 m² habitables avec 3 chambres.Avec VILLAS PRISME, vous pouvez personnaliser votre projet de maison sur mesure :- Plan et distribution- Système de chauffage au choix- Prestations et équipements selon vos souhaits : carrelages, faïence, menuiseries, salles de bains…- Mode constructif et matériaux selon les normes en vigueur Informations du terrain : Terrain plat et viabilisé dans secteur recherché très calme. EnsoleilléDemandez une étude gratuite et personnalisée de votre projet de construction !Contactez Sylvie OGET au (Numéro supprimé) (Villas Prisme – Agence de Salon-de-Provence).Prix avec assurance dommages-ouvrage comprise, hors VRD, terrain viabilisé, frais de notaire non compris, frais divers non compris. Terrain sélectionné et vu pour vous sous réserve de disponibilité et au prix indiqué par notre partenaire foncier. Non mandaté pour la vente du terrain. Visuels non contractuels.Cette annonce a été créée et diffusée avec le logiciel VITAHOME.
Alleins
TERRAINPLAT – CALME – VIABILISE – PISCINE EXISTANTEPrix : 235000 €.Sur ce terrain de 950 m² à ALLEINS, VILLAS PRISME vous propose de réaliser votre projet de construction de maison individuelle.Avec VILLAS PRISME, vous pouvez personnaliser votre projet de maison sur mesure :- Plan et distribution- Système de chauffage au choix- Prestations et équipements selon vos souhaits : carrelages, faïence, menuiseries, salles de bains…- Mode constructif et matériaux selon les normes en vigueur Demandez une étude gratuite et personnalisée de votre projet de construction sur ce terrain à ALLEINS ! Prix hors frais de notaire. Terrain sélectionné et vu pour vous sous réserve de disponibilité et au prix indiqué par notre partenaire foncier. Non mandaté pour la vente du terrain. Visuels non contractuels.Cette annonce a été créée et diffusée avec le logiciel VITAHOME.
Sénas
TERRAINMyproject-immo by efficity, l’Agence qui estime votre bien en ligne, vous propose sur la commune de Sénas ce terrain constructible plat, ensoleillé, libre choix constructeur, viabilités à proximité. Ce terrain à bâtir de 637 m² se compose d’un chemin d’accès et d’une zone d’environ 520m² pour l’implantation de votre maison. Ce terrain dispose de 50% d’emprise au sol, il est située en zone UD du Plu de Sénas, il pourra accueillir votre maison individuelle de plain-pied ou avec un étage. Les informations sur les risques auxquels ce bien est exposé sont disponibles sur le site Georisque : georisques. gouv. fr Marie Libra – EI – est Agent Commercial mandataire en immobilier, immatriculé au Registre Spécial des Agents Commerciaux du Tribunal de Commerce de Tarascon sous le n(Numéro supprimé).Siège social du mandant : effiCity, 48 avenue de Villiers – 75017 PARIS – Société par Actions Simplifiée, société au capital de 132 373,05 euros, immatriculée au RCS Paris 497 617 746 et titulaire de la Carte professionnelle CPI 7501 2015 000 002 025 – CCI Paris IDF – Caisse de Garantie : GALIAN Assurances 89 rue de la Boétie 75008 Paris
Sénas
TERRAINMyproject-immo by efficity, l’Agence qui estime votre bien en ligne, vous propose sur la commune de Sénas ce terrain constructible plat, ensoleillé, libre choix constructeur, viabilités à proximité. Ce terrain à bâtir de 744 m² se décompose d’un chemin d’accès et d’une zone d’environ 580m² pour l’implantation de votre maison. Ce terrain dispose de 50% d’emprise au sol, il est située en zone UD du Plu de Sénas, il pourra accueillir votre maison individuelle de plain-pied ou avec un étage. Les informations sur les risques auxquels ce bien est exposé sont disponibles sur le site Georisque : georisques. gouv. fr Marie Libra – EI – est Agent Commercial mandataire en immobilier, immatriculé au Registre Spécial des Agents Commerciaux du Tribunal de Commerce de Tarascon sous le n(Numéro supprimé).Siège social du mandant : effiCity, 48 avenue de Villiers – 75017 PARIS – Société par Actions Simplifiée, société au capital de 132 373,05 euros, immatriculée au RCS Paris 497 617 746 et titulaire de la Carte professionnelle CPI 7501 2015 000 002 025 – CCI Paris IDF – Caisse de Garantie : GALIAN Assurances 89 rue de la Boétie 75008 Paris
L’actualité immobilière à Sénas
27/11/2023
02/11/2023
30/10/2023
20/10/2023
16/10/2023
16/10/2023