Maison à construire à Sénas (13560)
Images
Description
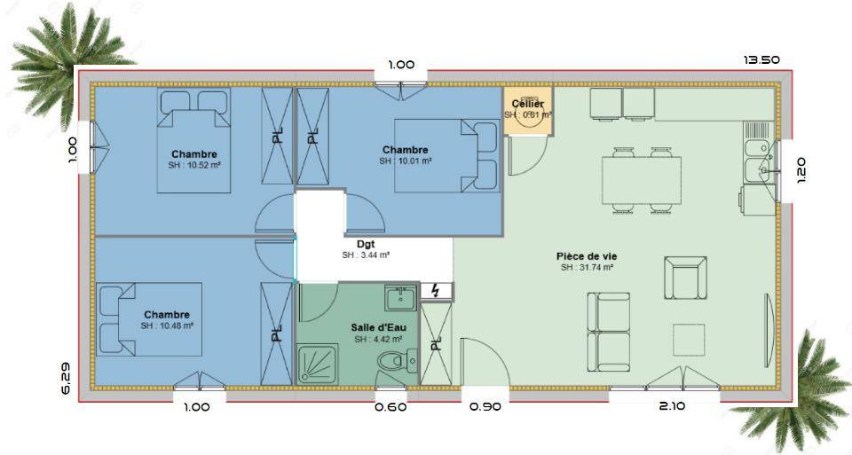
VENTE : maison de 4 pièces (71 m²) à Sénas
Emplacement privilégié - À découvrir à Sénas (13560) : maison neuve 4 pièces en vente. Surface de 71 m² et 447 m² de terrain. Conçue de plain-pied, elle compte trois chambres, une cuisine et une salle de bains.
À proximité : gares (Sénas, Lamanon et Orgon), École Primaire Jean Moulin 2, crèche, bibliothèque, commerces et supermarché. Accès autoroute A7 à 1 km. Mer Méditerranée à 23 km. Avignon à 30 km.
Le prix de vente de cette maison de 4 pièces est de 268 890 €.
Prenez contact avec Anthony ANGELI ((Numéro supprimé)) pour toute information sur la maison.
Logement susceptibles de vous intéresser
Nous vous proposons de découvrir aussi cette sélection de logements situés à moins de 10km de Sénas et qui seraient susceptibles de vous intéresser.
Sénas
TERRAINBonjour Mr Gimenez Pierre azur et construction vous prose en exclusivité 5 lots à bâtir sur la commune de Senas.Viabilisé !! Accompagnement complet personnalisé au (Numéro supprimé) – Lot 6 / 388m2 pour 137 000€,- Lot 4 / 447m2 pour 158 000€,- Lot 3 / 447m2 pour 154 000€,- Lot 2 / 444m2 pour 151 000€,- Lot 1 / 447m2 pour 148 000€,
Sénas
TERRAIN ET MAISONVENTE d’une maison de 5 pièces (76 m²) à SénasQuartier recherché – À Sénas (13560), maison neuve en vente de 5 pièces, 2 niveaux, 76 m² de surface et 350 m² de terrain. Elle inclut trois chambres, une cuisine et une salle de bains.À proximité : gares (Sénas, Lamanon et Orgon), École Primaire Jean Moulin 2, crèche, bibliothèque, commerces et supermarché. Autoroute A7 accessible à 1 km. Mer Méditerranée à 23 km. Avignon à 30 km.Cette maison de 5 pièces est à vendre pour la somme de 292 960 €.FRAIS DE NOTAIRES INCLUS N’hésitez pas à prendre contact avec notre agence (GIMENEZ Pierre : O(Numéro supprimé) pour plus de renseignements sur la maison. Azur & Constructions Martigues vous accompagne dans tous vos projets immobiliers et à toutes les étapes de votre projet.
Sénas
TERRAIN ET MAISONSénas : maison de 4 pièces (71 m²) à vendreQuartier recherché – Maison neuve 4 pièces en vente à Sénas (13560) avec une surface de 71 m² et de 350 m² de terrain. Son intérieur comporte trois chambres, une cuisine et une salle de bains.Proche gares (Sénas, Lamanon et Orgon), École Primaire Jean Moulin 2, crèche, bibliothèque, commerces et supermarché. Autoroute A7 accessible à 1 km. Mer Méditerranée à 23 km. Avignon à 30 km.Le prix de vente de cette maison de 4 pièces est de 265 960 €. FRAIS DE NOTAIRE INCLUS §Contactez notre agence (Pierre GIMENEZ (Numéro supprimé) pour plus de renseignements sur la maison, sur les modalités de vente ou sur les démarches à suivre. Concrétisez vos projets immobiliers avec Azur & Constructions Martigues.
Alleins
TERRAINAlleins(13980) nouveau, Maisons France Confort et son partenaire foncier vous propose cette parcelle constructible de 408 m² situé dans un petit lotissement et il est entièrement viabilisé. Belle parcelle rectangulaire pouvant accueillir villa étage ou plain pied dans un environnement résidentiel.Ce projet vous permettra de construire votre villa à proximité de toutes les commodités pour votre famille: école primaire, équipements sportifs, centre commercial et axe autoroutier .Ce terrain au prix de 180 000 €, vous offrant une constructibilité jusqu’à 170 m² d’emprise au sol.Contactez dès à présent votre conseiller commercial de Maisons France Confort qui vous guidera sur l’étude personnalisée de votre projet de construction : au (Numéro supprimé) ou (Numéro supprimé) (Agence Salon de Provence). Nous proposons aussi des terrains sur Mouriès 13890, Maussane-les-Alpilles 13520, Eyguières 13430, Salon de Provence 13300, Sénas 13560, Mallemort 13370, Pélissanne 13330 et de nombreuses autres villes et villages.
Alleins
TERRAIN ET MAISONAlleins(13980) nouveau, Maisons France Confort et son partenaire foncier vous propose cette parcelle constructible de 407 m² situé dans un petit lotissement et il est entièrement viabilisé. Maison de plain pied de 100 m², elle comporte trois chambres, une cuisine, un grand séjour et deux salles de bains, un garage en option.Ce projet vous permettra de construire votre villa à proximité de toutes les commodités pour votre famille: école primaire, équipements sportifs, centre commercial et axe routier. A 15 mn de Salon de Provence et 35km d’Aix en Provence.Projet maison + terrain à partir de 330 800 €, hors frais et adaptations. Contactez notre agence au (Numéro supprimé) ou (Numéro supprimé) pour toute question sur la maison ou sur les démarches à suivre. Donnez vie à vos projets immobiliers avec Maisons France Confort Salon-de-Provence. Nous proposons aussi des projets de construction sur Mouriès 13890, Maussane-les-Alpilles 13520, Eyguières 13430, Salon de Provence 13300, Sénas 13560, Mallemort 13370, Pélissanne 13330 et de nombreuses autres villes et villages.
Alleins
TERRAIN ET MAISONAlleins(13980) nouveau, Maisons France Confort et son partenaire foncier vous propose cette parcelle constructible de 407 m² situé dans un petit lotissement et il est entièrement viabilisé.Cette maison à étage de 120 m², elle comporte trois chambres à l’étage et une suite parentale en rdc, une cuisine, un grand séjour et deux salles de bains, un garage en option.Ce projet vous permettra de construire votre villa à proximité de toutes les commodités pour votre famille: école primaire, équipements sportifs, centre commercial et axe routier. A 15 mn de Salon de Provence et 35 km d’Aix en Provence.Projet maison + terrain à partir de 395 990 €, hors frais et adaptations. Contactez notre agence au (Numéro supprimé) ou (Numéro supprimé) pour toute question sur la maison ou sur les démarches à suivre. Donnez vie à vos projets immobiliers avec Maisons France Confort Salon-de-Provence. Nous proposons aussi des projets de construction sur Mouriès 13890, Maussane-les-Alpilles 13520, Eyguières 13430, Salon de Provence 13300, Sénas 13560, Mallemort 13370, Pélissanne 13330 et de nombreuses autres villes et villages.
Alleins
TERRAIN ET MAISONA ALLEINS sur un terrain de 950 m², VILLAS PRISME vous propose de réaliser votre projet de construction de maison individuelle d'une surface de 110 m² habitables avec 4 chambres.Avec VILLAS PRISME, vous pouvez personnaliser votre projet de maison sur mesure :- Plan et distribution- Système de chauffage au choix- Prestations et équipements selon vos souhaits : carrelages, faïence, menuiseries, salles de bains…- Mode constructif et matériaux selon les normes en vigueur Informations du terrain : PLAT – CALME – VIABILISE – PISCINE EXISTANTEDemandez une étude gratuite et personnalisée de votre projet de construction !Contactez Sylvie OGET au (Numéro supprimé) (Villas Prisme – Agence de Salon-de-Provence).Prix avec assurance dommages-ouvrage comprise, hors VRD, terrain viabilisé, frais de notaire non compris, frais divers non compris. Terrain sélectionné et vu pour vous sous réserve de disponibilité et au prix indiqué par notre partenaire foncier. Non mandaté pour la vente du terrain. Visuels non contractuels.Cette annonce a été créée et diffusée avec le logiciel VITAHOME.
Sénas
TERRAIN ET MAISONA SENAS sur un terrain de 467 m², VILLAS PRISME vous propose de réaliser votre projet de construction de maison individuelle d'une surface de 95 m² habitables avec 3 chambres.Avec VILLAS PRISME, vous pouvez personnaliser votre projet de maison sur mesure :- Plan et distribution- Système de chauffage au choix- Prestations et équipements selon vos souhaits : carrelages, faïence, menuiseries, salles de bains…- Mode constructif et matériaux selon les normes en vigueur Informations du terrain : PLAT – EXPOSE PLEIN SUD – VIABILISE – SECTEUR RESIDENTIELDemandez une étude gratuite et personnalisée de votre projet de construction !Contactez Sylvie OGET au (Numéro supprimé) (Villas Prisme – Agence de Salon-de-Provence).Prix avec assurance dommages-ouvrage comprise, hors VRD, terrain viabilisé, frais de notaire non compris, frais divers non compris. Terrain sélectionné et vu pour vous sous réserve de disponibilité et au prix indiqué par notre partenaire foncier. Non mandaté pour la vente du terrain. Visuels non contractuels.Cette annonce a été créée et diffusée avec le logiciel VITAHOME.
Alleins
TERRAIN ET MAISONA ALLEINS sur un terrain de 407 m², VILLAS PRISME vous propose de réaliser votre projet de construction de maison individuelle d'une surface de 95 m² habitables avec 3 chambres.Avec VILLAS PRISME, vous pouvez personnaliser votre projet de maison sur mesure :- Plan et distribution- Système de chauffage au choix- Prestations et équipements selon vos souhaits : carrelages, faïence, menuiseries, salles de bains…- Mode constructif et matériaux selon les normes en vigueur Informations du terrain : Terrain plat et viabilisé dans secteur recherché très calme. EnsoleilléDemandez une étude gratuite et personnalisée de votre projet de construction !Contactez Sylvie OGET au (Numéro supprimé) (Villas Prisme – Agence de Salon-de-Provence).Prix avec assurance dommages-ouvrage comprise, hors VRD, terrain viabilisé, frais de notaire non compris, frais divers non compris. Terrain sélectionné et vu pour vous sous réserve de disponibilité et au prix indiqué par notre partenaire foncier. Non mandaté pour la vente du terrain. Visuels non contractuels.Cette annonce a été créée et diffusée avec le logiciel VITAHOME.
L’actualité immobilière à Sénas
27/11/2023
02/11/2023
30/10/2023
20/10/2023
16/10/2023
16/10/2023