Maison à construire à Ventabren (13122)
Images
Description
Votre agence Maisons France Confort Cabriès à Expobat Plan de Campagne est heureuse de vous présenter cette maison de 6 pièces de 130 m² et de 1 050 m² de terrain.
C'est une maison de 2 niveaux.
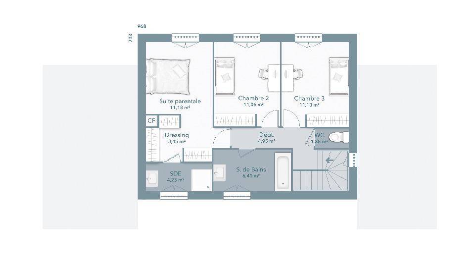
Son intérieur offre quatre chambres, une cuisine et trois salles de bains. Cette maison est neuve.
Il y a des écoles maternelles et élémentaires à moins de 10 minutes à pied et deux structures d'accueil pour les tout-petits. Niveau transports en commun, on trouve les gares Rognac et Aix-en-Provence TGV à moins de 10 minutes en voiture. Les autoroutes A7, A8 et A51 sont accessibles à moins de 10 km.
Ce Projet Terrain + Maison à vendre pour la somme de 650 000 €.
Prenez contact avec Jean Luc ASCIONE (Tel: (Numéro supprimé)/(Numéro supprimé)) pour tout renseignement sur cette maison.
Logement susceptibles de vous intéresser
Nous vous proposons de découvrir aussi cette sélection de logements situés à moins de 10km de Ventabren et qui seraient susceptibles de vous intéresser.
Ventabren
TERRAIN ET MAISONÀ la recherche d'une maison familiale moderne ? Ce bien saura vous séduire avec son architecture optimisée et ses prestations de qualité :- 3 chambres confortables et lumineuses,- Une pièce de vie de 50 m² avec cuisine ouverte, idéale pour recevoir,- Un garage accolé + un cellier pour plus de rangement,- Salle de bains moderne, WC séparé.Cette maison neuve, économe en énergie (DPE A, conforme RE2020), allie praticité, performance thermique et esthétique.Contactez-nous au (Numéro supprimé).Frais de notaire non compris.Cette annonce a été créée et diffusée avec le logiciel VITAHOME.
La Fare-les-Oliviers
TERRAIN ET MAISONCette maison de plain-pied à l'architecture régionale et en classe énergétique A saura vous séduire par son agencement fonctionnel et ses prestations de qualité. Elle se compose de quatre chambres, d’une salle de bain et d’une vaste pièce de vie lumineuse avec une cuisine ouverte, parfaite pour partager des moments conviviaux.Équipé d’un chauffage gainable, cette maison assure un confort thermique optimal en toutes saisons.Le garage attenant offre un espace pratique pour stationner votre véhicule.Proche des commodités, cette maison allie modernité et efficacité énergétique. Une opportunité à ne pas manquer !Contactez-nous au (Numéro supprimé).Frais de notaire non compris.Cette annonce a été créée et diffusée avec le logiciel VITAHOME.
La Fare-les-Oliviers
TERRAIN ET MAISONEnvie d’un chez-vous spacieux, lumineux et parfaitement conçu ? Cette maison neuve de plain-pied avec garage combine à merveille confort, modernité et fonctionnalité.Avec 88 m² habitables, elle offre une grande pièce de vie ouverte de près de 40 m², idéale pour recevoir, cuisiner ou se détendre en famille. La disposition fluide permet une vraie séparation entre les espaces jour et nuit, pour plus de tranquillité au quotidien.Côté nuit, vous profitez de trois vraies chambres, d’une salle de bains équipée d’une baignoire, de toilettes séparées et d’un cellier pour le rangement.Bien pensée dans les moindres détails, cette maison offre un agencement optimisé, des volumes agréables et un excellent confort thermique (DPE A). Tout est là pour s’installer sans travaux, sans compromis.Contactez-nous au (Numéro supprimé).Frais de notaire non compris.Cette annonce a été créée et diffusée avec le logiciel VITAHOME.
La Fare-les-Oliviers
TERRAIN ET MAISONSituée dans un quartier résidentiel recherché, cette maison de plain-pied offre un cadre de vie paisible et fonctionnel, idéal pour une famille.Les atouts du bien :- Surface habitable d’environ 90 m²- Terrain clos et arboré , sans vis-à-vis- Exposition idéale pour une belle luminosité intérieureEspace jour :- Grande pièce de vie traversante avec cuisine ouverte- Accès direct à la terrasse et au jardin- Cellier attenant à la cuisine- Garage intégré avec accès intérieurEspace nuit :- 3 chambres confortables- Salle de bains indépendanteConfort et performance :- Maison classée DPE A – Faibles consommations énergétiques- Très bonne isolation thermique et phonique- Matériaux durables et finitions soignéesProche des écoles, commerces, services et transports, cette maison combine parfaitement confort de vie et efficacité énergétique. Bien rare à la vente.Contactez-nous au (Numéro supprimé).Frais de notaire non compris.Cette annonce a été créée et diffusée avec le logiciel VITAHOME.
Éguilles
TERRAIN ET MAISONDécouvrez cette maison de charme, idéale pour ceux qui recherchent espace, luminosité et confort. Au rez-de-chaussée, grande pièce de vie ouverte, cuisine moderne et cellier attenant pour plus de praticité. Le garage intégré vous offrira un espace de stationnement, tout en ajoutant une possibilité de rangement supplémentaire.À l'étage, la maison se compose de 4 chambres, dont une suite parentale avec salle d'eau privative. Une deuxième salle de bain complète cet étage.Située dans un environnement calme, à proximité des commodités, elle répondra parfaitement à vos besoins au quotidien.Contactez-nous au (Numéro supprimé).Frais de notaire non compris.Cette annonce a été créée et diffusée avec le logiciel VITAHOME.
Éguilles
TERRAIN ET MAISONCette maison à étage de 115 m² offre un espace de vie fonctionnel. Au rez-de-chaussée, une grande pièce de vie avec cuisine ouverte, un cellier attenant à la cuisine et un garage intégré viennent compléter l'espace jour.À l’étage, vous trouverez 3 chambre spacieuse, ainsi qu’une suite parentale avec salle d'eau privative, offrant confort et intimité. Une seconde salle de bain complète cet étage, idéale pour les membres de la famille ou les invités.Située dans un quartier proche des commodités, cette maison sera parfaite pour ceux qui recherchent un cadre de vie agréable.Contactez-nous au (Numéro supprimé).Frais de notaire non compris.Cette annonce a été créée et diffusée avec le logiciel VITAHOME.
Saint-Cannat
TERRAINOpportunité exceptionnelle SAINT-CANNATTERRAIN 610M-m2Sur ce magnifique terrain de 610 m², idéalement situé à Saint Cannat Maison de Manon Callas/ Cabriès vous propose de concrétiser votre projet de construction de maison individuelle sur-mesure.Ce terrain à SAINT-CANNAT au prix de 310000€ vous offrira un cadre de vie paisible pour toute la famille, À proximité des commodités et au coeur du villageDemandez dés à présent une étude gratuite et personnalisée pour faire de ce projet une réalité.Maison de Manon Callas/Cabries Eve MARTINI attends votre appel au (Numéro supprimé) ((Numéro supprimé))Annonce proposée par un Agent Commercial Partenaire.
Saint-Cannat
TERRAIN ET MAISONMaison de 5 pièces (120m²) à vendre à Saint-CannatEmplacement privilégié – À Saint-Cannat (13760), maison neuve en vente de 5 pièces, 118 m² de surface sur 610m² de terrain. Conçue de plain-pied, elle propose quatre chambres, une cuisine et trois salles de bains.À dix minutes : écoles, bassin de natation, tennis, bibliothèque, commerces, Autoroute Aix-en-Provence à 11 km.Cette maison + terrain de 5 pièces est proposée à l’achat pour 545000 €. (prix estimatif) Prenez contact avec Eve MARTINI (Numéro supprimé) ((Numéro supprimé)) pour toute information sur la maison, sur les démarches à suivre ou sur les modalités de vente.Annonce proposée par un Agent Commercial Partenaire.
Saint-Cannat
TERRAINRARE TERRAIN SAINT-CANNAT 720m2Maisons de Manon Calas/Cabriès, propose en exclusivité ce magnifique terrain à bâtir d’une surface constructible de 720 m².L’emprise au sol autorisée est de 40 %, permettant la construction d’une maison de plus de 250 m², avec sa piscine orientée plein sud. Ce terrain offre ainsi une belle opportunité de réaliser un projet immobilier spacieux, tout en étant proche de toutes les commodités.Le terrain, entièrement clôturé et viabilisé en bordure, est proposé au prix de 286000 €. Il représente un atout pour tout acquéreur souhaitant réaliser un projet immobilier de qualité.Contact et AccompagnementsPour toute information complémentaire, Ève MARTINI (Numéro supprimé) ((Numéro supprimé)) se tient à votre disposition pour vous accompagner dans toutes les démarches liées à votre projet. Annonce proposée par un Agent Commercial Partenaire.
L’actualité immobilière à Ventabren
27/11/2023
02/11/2023
30/10/2023
20/10/2023
16/10/2023
16/10/2023