Maison à construire à Ventabren (13122)
Images
Description
🌞 Construisez une maison qui vous ressemble..
✨ MAISONS FRANCE CONFORT Cabriès et son partenaire foncier vous proposent une belle opportunité de construction sur la commune de Ventabren.✨
🌿Cette parcelle de 1061 m² offre un cadre verdoyant et authentique, sublimé par la présence de superbes oliviers qui lui confèrent tout son charme.
Elle profite d'un environnement privilégié et d'une proximité immédiate avec les commodités essentielles telles que les commerces, les écoles et les transports. Ce terrain est vendu entièrement viabilisé.
Vous profiterez d'un cadre de vie alliant tranquillité, sécurité et qualité de vie.
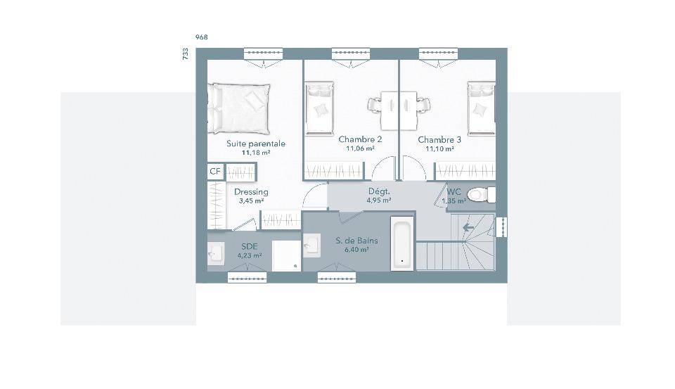
Et si votre projet prenait la forme d'une maison traditionnelle, chaleureuse et lumineuse, pensée pour le bien-être de la famille un séjour convivial baigné de lumière, 4 chambres confortables pour chacun..
💰Exemple de ce projet : Terrain + Maison de 120 m² habitable à demi étage et hors garage = 596 000 €*
*(Hors frais et taxes)
Chaque détail peut être adapté selon vos envies : surfaces, agencement, finitions, style architectural... Votre maison, votre personnalité.
Faites confiance à nos équipes de professionnels pour concevoir un projet clé en main, personnalisé et harmonieux, du premier croquis à la remise des clés.
Contactez nous dès aujourd'hui pour convenir d'un rendez-vous, visiter le terrain et échanger sur votre futur projet de construction.
📞 Virginia COSTA : (Numéro supprimé)/(Numéro supprimé)
Logement susceptibles de vous intéresser
Nous vous proposons de découvrir aussi cette sélection de logements situés à moins de 10km de Ventabren et qui seraient susceptibles de vous intéresser.
La Fare-les-Oliviers
TERRAIN ET MAISONConfort moderne, espace et luminosité : cette maison neuve clé en main a tout pour vous séduire !Avec ses 88 m² de plain-pied, elle offre un cadre de vie idéal pour une famille à la recherche de confort et de praticité. Le cœur de la maison ? Un superbe séjour de près de 40 m², baigné de lumière, parfait pour recevoir, se détendre ou partager des moments en famille.Côté nuit, chacun trouve son espace grâce à 3 chambres bien agencées, une salle de bains avec baignoire, des WC séparés et un cellier fonctionnel pour simplifier le quotidien.Grand garage pour plus de rangement !Maison économe en énergie (DPE A), agencement optimisé, volumes généreux, prestations modernes… il ne manque plus que vos valises !Contactez-nous au (Numéro supprimé).Frais de notaire non compris.Cette annonce a été créée et diffusée avec le logiciel VITAHOME.
Éguilles
TERRAINA quelques minutes du centre ville, beau terrain constructible de 1 800 m² environ permettant la construction de deux villas mitoyennes.Annonce publiée par Laurent Boulay (EI) votre agent commercial en immobilier LMDimmobilier à Marseille, 13007 immatriculé au RSAC de sous le n(Numéro supprimé) . Consultez nos tarifs sur le site LMDimmobilier.Les informations sur les risques auxquels ce bien est exposé sont disponibles sur le site Géorisques : www.georisques.gouv.fr.
Aix-en-Provence
TERRAINPrix : 2690000 €.Sur ce terrain de 320 m² à AIX-EN-PROVENCE, VILLAS PRISME vous propose de réaliser votre projet de construction de maison individuelle.Avec VILLAS PRISME, vous pouvez personnaliser votre projet de maison sur mesure :- Plan et distribution- Système de chauffage au choix- Prestations et équipements selon vos souhaits : carrelages, faïence, menuiseries, salles de bains…- Mode constructif et matériaux selon les normes en vigueur Demandez une étude gratuite et personnalisée de votre projet de construction sur ce terrain à AIX-EN-PROVENCE ! Prix hors frais de notaire. Terrain sélectionné et vu pour vous sous réserve de disponibilité et au prix indiqué par notre partenaire foncier. Non mandaté pour la vente du terrain. Visuels non contractuels.Cette annonce a été créée et diffusée avec le logiciel VITAHOME.
Aix-en-Provence
TERRAINPrix : 598000 €.Sur ce terrain de 900 m² à AIX-EN-PROVENCE, VILLAS PRISME vous propose de réaliser votre projet de construction de maison individuelle.Avec VILLAS PRISME, vous pouvez personnaliser votre projet de maison sur mesure :- Plan et distribution- Système de chauffage au choix- Prestations et équipements selon vos souhaits : carrelages, faïence, menuiseries, salles de bains…- Mode constructif et matériaux selon les normes en vigueur Demandez une étude gratuite et personnalisée de votre projet de construction sur ce terrain à AIX-EN-PROVENCE ! Prix hors frais de notaire. Terrain sélectionné et vu pour vous sous réserve de disponibilité et au prix indiqué par notre partenaire foncier. Non mandaté pour la vente du terrain. Visuels non contractuels.Cette annonce a été créée et diffusée avec le logiciel VITAHOME.
La Fare-les-Oliviers
TERRAIN ET MAISONVous rêvez d’une maison à votre image dans un cadre paisible ?✨ MAISONS FRANCE CONFORT Cabriès et son partenaire foncier vous proposent une belle opportunité de construction sur la commune de La Fare les Oliviers.✨Située dans un lotissement résidentiel et calme, cette parcelle de 406 m² bénéficie d’un droit à bâtir de 202,50 m². Elle profite d’un environnement privilégié et d’une proximité immédiate avec les commodités essentielles telles que les commerces, les écoles et les transports. Ce terrain est vendu entièrement viabilisé.Vous profiterez d’un cadre de vie alliant tranquillité, sécurité et qualité de vie.Et si votre projet prenait la forme d’une maison contemporaine et lumineuse, pensée pour le bien-être de la famille un grand séjour convivial baigné de lumière, 4 chambres confortables pour chacun, et un garage intégré pour plus de praticité💰Exemple de ce projet : Terrain + Maison de 116 m² habitable + garage intégré de 15 m² = 621 000 €**(Hors frais et taxes)Chaque détail peut être adapté selon vos envies : surfaces, agencement, finitions, style architectural… Votre maison, votre personnalité.Faites confiance à nos équipes de professionnels pour concevoir un projet clé en main, personnalisé et harmonieux, du premier croquis à la remise des clésContactez nous dès aujourd’hui pour convenir d’un rendez-vous, visiter le terrain et échanger sur votre futur projet de construction.📞 Virginia COSTA : (Numéro supprimé)/(Numéro supprimé)
La Fare-les-Oliviers
TERRAINVous rêvez d’une maison à votre image dans un cadre paisible ?✨ MAISONS FRANCE CONFORT Cabriès et son partenaire foncier vous proposent une belle opportunité de construction sur la commune de La Fare les Oliviers.✨Située dans un lotissement résidentiel et calme, cette parcelle de 406 m² bénéficie d’un droit à bâtir de 202,50 m². Elle profite d’un environnement privilégié et d’une proximité immédiate avec les commodités essentielles telles que les commerces, les écoles et les transports. Ce terrain est vendu entièrement viabilisé.Vous profiterez d’un cadre de vie alliant tranquillité, sécurité et qualité de vie.Et si votre projet prenait la forme d’une maison contemporaine et lumineuse, pensée pour le bien-être de la famille un grand séjour convivial baigné de lumière, 3 chambres confortables pour chacun, et un garage attenant pour plus de praticité💰Exemple de ce projet : Terrain + Maison de 95 m² habitable + Garage attenant de 18 m² = 578 000 €**(Hors frais et taxes)Chaque détail peut être adapté selon vos envies : surfaces, agencement, finitions, style architectural… Votre maison, votre personnalité.Faites confiance à nos équipes de professionnels pour concevoir un projet clé en main, personnalisé et harmonieux, du premier croquis à la remise des clésContactez nous dès aujourd’hui pour convenir d’un rendez-vous, visiter le terrain et échanger sur votre futur projet de construction.📞 Virginia COSTA : (Numéro supprimé)/(Numéro supprimé)
Ventabren
TERRAIN ET MAISON🏡Vous rêvez d’une maison à votre image dans un cadre paisible ?✨ MAISONS FRANCE CONFORT Cabriès et son partenaire foncier vous proposent une belle opportunité de construction sur la commune de Ventabren.✨🌿Cette parcelle de 1061 m² offre un cadre verdoyant et authentique, sublimé par la présence de superbes oliviers qui lui confèrent tout son charme. Elle profite d’un environnement privilégié et d’une proximité immédiate avec les commodités essentielles telles que les commerces, les écoles et les transports. Ce terrain est vendu entièrement viabilisé.Vous profiterez d’un cadre de vie alliant tranquillité, sécurité et qualité de vie.Et si votre projet prenait la forme d’une maison contemporaine et lumineuse, pensée pour le bien-être de la famille un grand séjour convivial baigné de lumière, 3 chambres confortables pour chacun..💰Exemple de ce projet : Terrain + Maison de 90 m² habitable de Plain Pied hors garage = 518 000 €**(Hors frais et taxes)Chaque détail peut être adapté selon vos envies : surfaces, agencement, finitions, style architectural… Votre maison, votre personnalité.Faites confiance à nos équipes de professionnels pour concevoir un projet clé en main, personnalisé et harmonieux, du premier croquis à la remise des clésContactez nous dès aujourd’hui pour convenir d’un rendez-vous, visiter le terrain et échanger sur votre futur projet de construction.📞 Virginia COSTA : (Numéro supprimé)/(Numéro supprimé)
Ventabren
TERRAINPrix : 298000 €.Sur ce terrain de 2000 m² à VENTABREN, VILLAS PRISME vous propose de réaliser votre projet de construction de maison individuelle.Avec VILLAS PRISME, vous pouvez personnaliser votre projet de maison sur mesure :- Plan et distribution- Système de chauffage au choix- Prestations et équipements selon vos souhaits : carrelages, faïence, menuiseries, salles de bains…- Mode constructif et matériaux selon les normes en vigueur Demandez une étude gratuite et personnalisée de votre projet de construction sur ce terrain à VENTABREN ! Prix hors frais de notaire. Terrain sélectionné et vu pour vous sous réserve de disponibilité et au prix indiqué par notre partenaire foncier. Non mandaté pour la vente du terrain. Visuels non contractuels.Cette annonce a été créée et diffusée avec le logiciel VITAHOME.
Velaux
TERRAIN ET MAISONVotre Agence Maisons France Confort Cabriès à Plan de Campagne est heureuse de vous présenter à Velaux (13880), cette maison de 5 pièces de 98 m² et de 420 m² de terrain. Son intérieur comporte quatre chambres, une cuisine et une salle de bains.Il s’agit d’une maison de 2 niveaux. On trouve l’École Élémentaire Jean Giono, l’École Maternelle Jean Giono et le Collège Roquepertuse à moins de 10 minutes à pied et deux crèches. Côté transports, il y a les gares Rognac, Aix-en-Provence TGV et Vitrolles Aéroport Marseille Provence à moins de 10 minutes en voiture. Le prix de vente de ce Projet Terrain+ Maison est de 420 000 €.Contactez notre Agence Maisons France Confort à Plan de Campagne.Jean Luc ASCIONE (Tel:(Numéro supprimé)/(Numéro supprimé)) pour toute information sur la maison ou sur les démarches à suivre. Maisons France Confort Cabriès vous accompagne à toutes les étapes de votre projet et dans tous vos projets immobiliers.
L’actualité immobilière à Ventabren
27/11/2023
02/11/2023
30/10/2023
20/10/2023
16/10/2023
16/10/2023