Maison à construire à Auberville (14640)
Images
Description
VENTE : maison T6 (115 m²) à Auberville
À vendre : localisée à 2 km de la Manche et à quelques kilomètres du Havre, à Auberville (14640), découvrez cette maison de 6 pièces de 115 m².
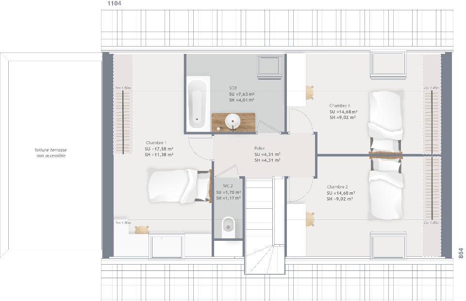
C'est une maison de 2 niveaux. Son intérieur se divise en quatre chambres, une cuisine et deux salles de bains. Cette maison est neuve.
Le terrain de la propriété s'étend sur 933 m².
Il y a des écoles de tous niveaux à moins de 10 minutes en voiture, tout comme une crèche à moins de 10 minutes à pied. Niveau transports en commun, on trouve cinq gares à moins de 10 minutes en voiture. Il y a un accès à l'autoroute A13 à 9 km. Il y a des bassins de natation, des tennis, quatre bibliothèques, trois ports de plaisance, un bowling, des commerces, des boulangeries, des supermarchés, des boucheries-charcuteries et des épiceries à proximité. 3 marchés animent les environs.
Elle est proposée à l'achat pour 426 800 €.
Contactez Aurélien LEMONNIER (tél : (Numéro supprimé)) pour toute question sur le bien et sur les démarches à suivre. Maisons France Confort Deauville vous accompagne à toutes les étapes de l'achat et dans tous vos projets immobiliers.
Logement susceptibles de vous intéresser
Nous vous proposons de découvrir aussi cette sélection de logements situés à moins de 10km de Auberville et qui seraient susceptibles de vous intéresser.
Dozulé
TERRAINVENTE : terrain de 5 000 m² à Douville-en-AugeIDÉALEMENT SITUÉ À Douville-en-Auge (14430), découvrez ce terrain de 5 000 m². Des établissements scolaires de tous niveaux (de la maternelle au lycée) sont implantés à moins de 10 minutes en voiture, tout comme une structure d’accueil pour les tout-petits à moins de 10 minutes à pied. Côté transports, il y a cinq gares à moins de 10 minutes en voiture. L’autoroute A13 est accessible à 5 km. On trouve quatre bibliothèques, des tennis, deux ports de plaisance, trois bassins de natation, des commerces, des supermarchés, des boulangeries, des épiceries et des supérettes à proximité. 2 marchés animent les environs.Il est proposé à l’achat pour 269 000 €. N’hésitez pas à prendre contact avec notre agence (Angélique CUVILLIERS : (Numéro supprimé)) pour plus d’informations sur le terrain, sur les démarches à suivre et sur les modalités de vente. EXTRACO Construction Rénovation Pont-l’Évêque est là pour vous accompagner dans tous vos projets immobiliers.
Douville-en-Auge
TERRAINDouville-en-Auge : terrain de 2 500 m² à vendreEn vente à Douville-en-Auge (14430), grand terrain. Il est prêt à accueillir la maison de vos rêves pour toute la famille. Ce terrain est proche des écoles et des commerces. Il y a des écoles de tous niveaux (de la maternelle au lycée) à moins de 10 minutes en voiture, tout comme une crèche à moins de 10 minutes à pied. Côté transports en commun, on trouve cinq gares à moins de 10 minutes en voiture. On trouve un accès à l’autoroute A13 à 5 km. Il y a quatre bibliothèques, des tennis, deux ports de plaisance, trois bassins de natation, des commerces, des supermarchés, des boulangeries, des bureaux de poste et des supérettes à proximité. Enfin, 2 marchés animent le quartier.Il est à vendre pour la somme de 135 000 €. Contactez notre agence (Angélique CUVILLIERS : (Numéro supprimé)) pour obtenir de plus amples renseignements sur ce terrain ou sur les démarches à suivre. EXTRACO Construction Rénovation Pont-l’Évêque vous accompagne à toutes les étapes de l’achat et dans tous vos projets immobiliers.
Dozulé
TERRAIN ET MAISONOSSATURE BOIS VENTE : maison de 5 pièces (113 m²) à Douville-en-AugeIDÉALEMENT SITUÉE – MAISON 5 PIÈCES NEUVEEn vente : EXTRACO Construction Rénovation Pont-l’Évêque vous présente cette maison de 5 pièces de plain-pied de 113 m² idéalement située dans Douville-en-Auge (14430). Elle offre quatre chambres, une cuisine et deux salles de bains.Le terrain du bien s’étend sur 5 000 m².Cette maison est neuve.La maison se situe dans un secteur attractif. On trouve des établissements scolaires (de la maternelle au lycée) à moins de 10 minutes en voiture, tout comme une crèche à moins de 10 minutes à pied. Niveau transports, il y a cinq gares à moins de 10 minutes en voiture. L’autoroute A13 est accessible à 5 km. On trouve quatre bibliothèques, des tennis, deux ports de plaisance, trois bassins de natation, des commerces, des supermarchés, des boulangeries, des bureaux de poste et des boucheries-charcuteries à quelques minutes. Enfin, 2 marchés animent les environs.Son prix de vente est de 486 700 €.Contactez Angélique CUVILLIERS ((Numéro supprimé)) pour obtenir de plus amples renseignements sur le bien, sur les modalités de vente et sur les démarches à suivre.EXTRACO Construction Rénovation Pont-l’Évêque vous accompagne dans tous vos projets immobiliers et à toutes les étapes de votre projet.
Dozulé
TERRAIN ET MAISONVENTE d’une maison de 6 pièces (132 m²) à Douville-en-AugeIDÉALEMENT SITUÉE – MAISON 6 PIÈCES NEUVEEXTRACO Construction Rénovation Pont-l’Évêque vous propose cette maison de 6 pièces de 132 m² idéalement située dans Douville-en-Auge (14430). Son intérieur est composé de cinq chambres, d’une cuisine et de deux salles de bains.Le terrain de la propriété s’étend sur 5 000 m².Cette maison comporte 2 niveaux. Elle est neuve.La maison est située dans un quartier recherché. Tous les types d’établissements scolaires (maternelle, élémentaire et secondaire) sont implantés à moins de 10 minutes en voiture, tout comme une structure d’accueil pour la petite enfance à moins de 10 minutes à pied. Côté transports, on trouve cinq gares à moins de 10 minutes en voiture. On trouve un accès à l’autoroute A13 à 5 km. Il y a quatre bibliothèques, des tennis, deux ports de plaisance, trois bassins de natation, des commerces, des supermarchés, des boulangeries, des bureaux de poste et des boucheries-charcuteries à proximité. Enfin, 2 marchés animent le quartier.Son prix de vente est de 489 000 €.Prenez contact avec Angélique CUVILLIERS ((Numéro supprimé)) pour toute question sur la maison.
Dozulé
TERRAIN ET MAISONMaison F4 (137 m²) en vente à Douville-en-AugeIDÉALEMENT SITUÉE – MAISON 4 PIÈCES NEUVEDécouvrez, idéalement située dans Douville-en-Auge (14430), cette maison de 4 pièces de plain-pied de 137 m² et de 5 000 m² de terrain. Son intérieur offre trois chambres, une cuisine et deux salles de bains.La maison est neuve.Cette maison se trouve dans un quartier attractif. Des écoles (de la maternelle au lycée) sont implantées à moins de 10 minutes en voiture, tout comme une structure d’accueil pour les enfants en bas âge à moins de 10 minutes à pied. Côté transports, on trouve cinq gares à moins de 10 minutes en voiture. On trouve un accès à l’autoroute A13 à 5 km. Il y a quatre bibliothèques, des tennis, deux ports de plaisance, trois bassins de natation, des commerces, des supermarchés, des boulangeries, des poissonneries et des bureaux de poste à proximité du logement. 2 marchés animent les environs.Son prix de vente est de 549 900 €.Contactez Angélique CUVILLIERS ((Numéro supprimé)) pour toute question sur la maison ou sur les modalités de vente. Concrétisez vos projets immobiliers avec EXTRACO Construction Rénovation Pont-l’Évêque.
Dozulé
TERRAIN ET MAISONDouville-en-Auge : maison de 4 pièces (98 m²) à vendreIDÉALEMENT SITUÉE – MAISON 4 PIÈCES NEUVEÀ vendre : nous sommes ravis de vous présenter, idéalement située dans Douville-en-Auge (14430), cette maison de 4 pièces de plain-pied de 98 m² et de 5 000 m² de terrain. Son intérieur offre trois chambres, une cuisine et une salle de bains.La maison est neuve.Cette maison se situe dans un secteur recherché. Des établissements scolaires de tous niveaux (de la maternelle au lycée) se trouvent à moins de 10 minutes en voiture, tout comme une structure d’accueil pour les tout-petits à moins de 10 minutes à pied. Niveau transports en commun, il y a cinq gares à moins de 10 minutes en voiture. On trouve un accès à l’autoroute A13 à 5 km. On trouve quatre bibliothèques, des tennis, deux ports de plaisance, trois bassins de natation, des commerces, des supermarchés, des boulangeries, des poissonneries et des boucheries-charcuteries dans les environs. 2 marchés animent le quartier.Son prix de vente est de 434 500 €.N’hésitez pas à prendre contact avec Angélique CUVILLIERS ((Numéro supprimé)) pour plus de renseignements sur la maison, sur les modalités de vente ou sur les démarches à suivre.EXTRACO Construction Rénovation Pont-l’Évêque vous accompagne à toutes les étapes de l’achat et dans tous vos projets immobiliers.
Douville-en-Auge
TERRAIN ET MAISONOSSATURE BOIS VENTE d’une maison F5 (104 m²) à Douville-en-AugeMAISON 5 PIÈCES NEUVEÀ vendre : EXTRACO Construction Rénovation Pont-l’Évêque vous présente cette maison de 5 pièces de plain-pied de 104 m² à Douville-en-Auge (14430). Elle est composée de quatre chambres, d’une cuisine et de deux salles de bains.Le terrain du bien s’étend sur 2 500 m².Cette maison est neuve.Des écoles (de la maternelle au lycée) sont implantées à moins de 10 minutes en voiture, tout comme une crèche à moins de 10 minutes à pied. Niveau transports en commun, on trouve cinq gares à moins de 10 minutes en voiture. L’autoroute A13 est accessible à 5 km. Il y a quatre bibliothèques, des tennis, deux ports de plaisance, trois bassins de natation, des commerces, des supermarchés, des boulangeries, des boucheries-charcuteries et des bureaux de poste à quelques minutes à peine. 2 marchés animent le quartier.Elle est proposée à l’achat pour 325 000 €.Prenez contact avec Angélique CUVILLIERS (tél : (Numéro supprimé)) pour toute information sur la maison, sur les démarches à suivre et sur les modalités de vente. EXTRACO Construction Rénovation Pont-l’Évêque est là pour vous accompagner à toutes les étapes de l’achat.
Douville-en-Auge
TERRAIN ET MAISONVENTE : maison de 4 pièces (98 m²) à Douville-en-AugeMAISON 4 PIÈCES NEUVENous vous présentons cette maison de 4 pièces de plain-pied de 98 m² à vendre à Douville-en-Auge (14430). Son intérieur propose trois chambres, une cuisine et une salle de bains.Le terrain du bien s’étend sur 2 500 m².Cette maison est neuve.On trouve des écoles de tous types (de la maternelle au lycée) à moins de 10 minutes en voiture, tout comme une structure d’accueil pour la petite enfance à moins de 10 minutes à pied. Niveau transports en commun, il y a cinq gares à moins de 10 minutes en voiture. On trouve un accès à l’autoroute A13 à 5 km. On trouve quatre bibliothèques, des tennis, deux ports de plaisance, trois bassins de natation, des commerces, des supermarchés, des boulangeries, des poissonneries et des épiceries dans les environs. 2 marchés animent le quartier.Elle est proposée à l’achat pour 298 700 €.Contactez Angélique CUVILLIERS (tél : (Numéro supprimé)) pour obtenir de plus amples informations sur cette propriété, sur les modalités de vente ou sur les démarches à suivre.EXTRACO Construction Rénovation Pont-l’Évêque vous accompagne dans tous vos projets immobiliers et dans toutes vos démarches.
Douville-en-Auge
TERRAIN ET MAISONMaison de 6 pièces (132 m²) à vendre à Douville-en-AugeMAISON 6 PIÈCES NEUVE Ayez le coup de coeur pour cette maison de 6 pièces de 132 m² à Douville-en-Auge (14430).Il s’agit d’une maison de 2 niveaux. Son intérieur est composé de cinq chambres, d’une cuisine et de deux salles de bains. Cette maison est neuve.Le terrain du bien est de 2 500 m².Des établissements scolaires (de la maternelle au lycée) sont implantés à moins de 10 minutes en voiture, tout comme une crèche à moins de 10 minutes à pied. Niveau transports, on trouve cinq gares à moins de 10 minutes en voiture. L’autoroute A13 est accessible à 5 km. Il y a quatre bibliothèques, des tennis, deux ports de plaisance, trois bassins de natation, des commerces, des supermarchés, des boulangeries, des épiceries et des poissonneries à proximité de la maison. Enfin, 2 marchés animent les environs.Elle est proposée à l’achat pour 354 600 €.N’hésitez pas à prendre contact avec notre agence (CUVILLIERS Angélique : (Numéro supprimé)) pour toute question sur la propriété ou sur les démarches à suivre.
L’actualité immobilière à Auberville
27/11/2023
02/11/2023
30/10/2023
20/10/2023
16/10/2023
16/10/2023