Maison à construire à Bazenville (14480)
Images
Description
Creully : maison de 7 pièces (120 m²) en vente
IDÉALEMENT SITUÉE - MAISON 7 PIÈCES NEUVE
En vente : localisée à 8 km de la Manche et à deux pas de Caen, idéalement située dans Creully (14480), laissez vous charmer par cette maison de 7 pièces de 120 m².
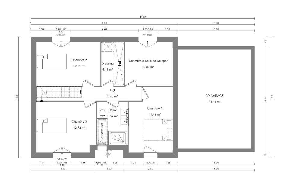
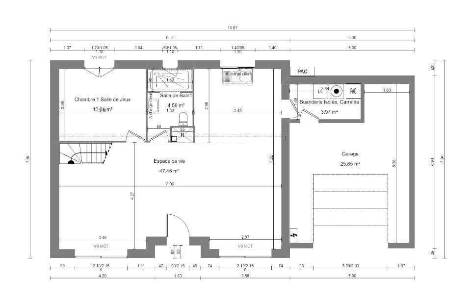
Il s'agit d'une maison de 2 niveaux. Son intérieur dispose de cinq chambres, d'une cuisine et de deux salles de bains. Cette maison est neuve.
Le terrain du bien s'étend sur 440 m².
La maison se situe dans un secteur attractif. Des établissements scolaires du primaire et du secondaire sont implantés à moins de 10 minutes à pied, tout comme, comme l'Institut Agricole Privé Lemonnier-Site de Saint Gabriel Brécy ou le Collège Jean de la Varende. Côté transports en commun, il y a les gares Audrieu et Bretteville-Norrey à moins de 10 minutes en voiture. Il y a un accès à la nationale N13 à 7 km. On trouve une bibliothèque, deux boulangeries, quatre commerces, une supérette et un bureau de poste à quelques minutes à peine.
Elle est à vendre pour la somme de 271 000 €.
Prenez contact avec Emilie HUE (tél : (Numéro supprimé)) pour plus d'informations sur la maison, sur les modalités de vente ou sur les démarches à suivre. Donnez vie à vos projets immobiliers avec Maisons France Confort Bayeux.
Annonce proposée par un Agent Commercial Partenaire.
Logement susceptibles de vous intéresser
Nous vous proposons de découvrir aussi cette sélection de logements situés à moins de 10km de Bazenville et qui seraient susceptibles de vous intéresser.
Carcagny
TERRAIN ET MAISONVENTE : maison F5 (85 m²) à Saint-Manvieu-NorreyIdéalement située – À découvrir à Saint-Manvieu-Norrey (14740) : maison neuve 5 pièces à vendre. 2 niveaux, surface de 85 m² sur 321 m² de terrain. Son intérieur inclut trois chambres, une cuisine et une salle de bains.À dix minutes : gares (Bretteville-Norrey, Saint-Germain-en-Laye Bel-Air-Fourqueux T13 et Audrieu), établissements scolaires, boulangerie, commerce et supermarché. Autoroute A84 et nationales N13 et N814 accessibles à 6 km. Caen à 9 km.Cette maison de 5 pièces est proposée à l’achat pour 217 000 €.N’hésitez pas à prendre contact avec notre agence (Emilie HUE : (Numéro supprimé)) pour toute question sur la maison ou sur les démarches à suivre. Maisons France Confort Bayeux vous accompagne dans tous vos projets immobiliers et dans toutes vos démarches.Annonce proposée par un Agent Commercial Partenaire.
Moulins-en-Bessin
TERRAIN ET MAISONMaison T5 (85 m²) à vendre à Saint-Manvieu-NorreyIdéalement située – Maison neuve 5 pièces à vendre à Saint-Manvieu-Norrey (14740) avec 2 niveaux, une surface de 85 m² sur un terrain de 321 m². Son intérieur comporte trois chambres, une cuisine et une salle de bains.À proximité : gares (Bretteville-Norrey, Saint-Germain-en-Laye Bel-Air-Fourqueux T13 et Audrieu), établissements scolaires, boulangerie, commerce et supermarché. Autoroute A84 et nationales N13 et N814 à 6 km. Caen à 9 km.Cette maison de 5 pièces est proposée à l’achat pour 217 000 €.Prenez contact avec Emilie HUE (tél : (Numéro supprimé)) pour obtenir de plus amples informations sur la maison. Donnez vie à vos projets immobiliers avec Maisons France Confort Bayeux.Annonce proposée par un Agent Commercial Partenaire.
Vaux-sur-Seulles
TERRAIN ET MAISONVENTE d’une maison de 6 pièces (91 m²) à BayeuxMAISON 6 PIÈCES NEUVE – PROCHE DE CAENÀ vendre à 9 km de la Manche et à 26 km de Caen, Maisons France Confort Bayeux vous propose cette maison de 6 pièces de 91 m² à Bayeux (14400). Son intérieur est composé de quatre chambres, d’une cuisine et d’une salle de bains.Le terrain du bien est de 301 m².C’est une maison de 2 niveaux. Elle est neuve.Des établissements scolaires de tous types sont implantés à moins de 10 minutes à pied, tout comme une crèche. Niveau transports en commun, on trouve la gare Bayeux à quelques pas du bien. La nationale N13 est accessible à 3 km. Il y a une bibliothèque, des commerces, des boulangeries, un supermarché, un bureau de poste et une supérette à proximité. Enfin, 2 marchés animent le quartier.Son prix de vente est de 221 000 €.Contactez Emilie HUE ((Numéro supprimé)) pour toute information sur cette maison ou sur les modalités de vente.Annonce proposée par un Agent Commercial Partenaire.
Vienne-en-Bessin
TERRAIN ET MAISONVENTE d’une maison F6 (91 m²) à BayeuxMAISON 6 PIÈCES NEUVE – PROCHE DE CAENEn vente : à 9 km de la Manche et à quelques kilomètres de Caen, à Bayeux (14400), nous vous proposons cette maison de 6 pièces de 91 m² et de 301 m² de terrain.Cette maison possède 2 niveaux. Elle se divise en quatre chambres, une cuisine et une salle de bains. La maison est neuve.Il y a des écoles (de la maternelle au lycée) à moins de 10 minutes à pied, tout comme une crèche. Côté transports, on trouve la gare Bayeux à quelques pas de la maison. La nationale N13 est accessible à 3 km. Il y a une bibliothèque, des commerces, des boulangeries, un supermarché, trois épiceries et un bureau de poste à proximité du bien. 2 marchés animent le quartier.Elle est à vendre pour la somme de 221 000 €.Prenez contact avec Emilie HUE (tél : (Numéro supprimé)) pour obtenir de plus amples informations sur le bien ou sur les démarches à suivre.Annonce proposée par un Agent Commercial Partenaire.
Carcagny
TERRAIN ET MAISONVENTE : maison T5 (95 m²) à Saint-Manvieu-NorreyIdéalement située – À découvrir à Saint-Manvieu-Norrey (14740) : maison neuve 5 pièces à vendre, 95 m² de surface sur 321 m² de terrain. Son intérieur propose trois chambres, une cuisine et deux salles de bains.À dix minutes : gares (Bretteville-Norrey, Saint-Germain-en-Laye Bel-Air-Fourqueux T13 et Audrieu), établissements scolaires, boulangerie, commerce et supermarché. Autoroute A84 et nationales N13 et N814 à 6 km. Caen à 9 km.Le prix de vente de cette maison de 5 pièces est de 227 000 €.Contactez Emilie HUE (tél : (Numéro supprimé)) pour plus d’informations sur la maison de plain-pied.Annonce proposée par un Agent Commercial Partenaire.
Carcagny
TERRAIN ET MAISONVENTE d’une maison T6 (140 m²) à Saint-Manvieu-NorreyIdéalement située – À Saint-Manvieu-Norrey (14740), maison neuve à vendre de 6 pièces, 2 niveaux, 140 m² sur 321 m² de terrain. Son intérieur compte quatre chambres, une cuisine et deux salles de bains.À proximité : gares (Bretteville-Norrey, Saint-Germain-en-Laye Bel-Air-Fourqueux T13 et Audrieu), établissements scolaires, boulangerie, commerce et supermarché. Autoroute A84 et nationales N13 et N814 accessibles à 6 km. Caen à 9 km.Cette maison de 6 pièces est proposée à l’achat pour 302 000 €.Contactez notre agence (Emilie HUE : (Numéro supprimé)) pour toute question sur la maison, sur les modalités de vente ou sur les démarches à suivre.Annonce proposée par un Agent Commercial Partenaire.
Carcagny
TERRAIN ET MAISONMaison de 7 pièces (124 m²) à vendre à Saint-Manvieu-NorreyIdéalement située – À découvrir à Saint-Manvieu-Norrey (14740) : maison neuve 7 pièces en vente. 2 niveaux, surface de 124 m² et 321 m² de terrain. Son intérieur compte cinq chambres, une cuisine et trois salles de bains.À proximité : gares (Bretteville-Norrey, Saint-Germain-en-Laye Bel-Air-Fourqueux T13 et Audrieu), établissements scolaires, boulangerie, commerce et supermarché. Autoroute A84 et nationales N13 et N814 accessibles à 6 km. Caen à 9 km.Le prix de vente de cette maison de 7 pièces est de 262 000 €.N’hésitez pas à prendre contact avec notre agence (Emilie HUE : (Numéro supprimé)) pour plus de renseignements sur la maison, sur les démarches à suivre ou sur les modalités de vente. Concrétisez vos projets immobiliers avec Maisons France Confort Bayeux.Annonce proposée par un Agent Commercial Partenaire.
Carcagny
TERRAIN ET MAISONSaint-Manvieu-Norrey : maison T7 (120 m²) à vendreIDÉALEMENT SITUÉE – MAISON 7 PIÈCES NEUVEÀ vendre à 18 km de la Manche et à quelques kilomètres de Caen, notre agence Maisons France Confort Bayeux est ravie de vous présenter, idéalement située dans Saint-Manvieu-Norrey (14740), cette maison de 7 pièces de 120 m². Elle se divise en cinq chambres, une cuisine et deux salles de bains.Le terrain de la propriété est de 321 m².C’est une maison de 2 niveaux. Elle est neuve.La maison est située dans un secteur recherché. Quatre établissements scolaires sont implantés à moins de 10 minutes à pied. Niveau transports en commun, il y a les gares Bretteville-Norrey, Saint-Germain-en-Laye Bel-Air-Fourqueux T13 et Audrieu à moins de 10 minutes en voiture. L’autoroute A84 et les nationales N13 et N814 sont accessibles à moins de 6 km. On trouve une boulangerie, un commerce et un supermarché à quelques minutes à peine.Elle est à vendre pour la somme de 272 000 €.Prenez contact avec Emilie HUE ((Numéro supprimé)) pour toute question sur la maison.Annonce proposée par un Agent Commercial Partenaire.
Moulins-en-Bessin
TERRAIN ET MAISONVENTE : maison T6 (130 m²) à Saint-Manvieu-NorreyIdéalement située – À Saint-Manvieu-Norrey (14740), maison neuve en vente de 6 pièces, 2 niveaux, 130 m² et 321 m² de terrain. Elle est composée de quatre chambres, d’une cuisine et de deux salles de bains.À dix minutes : gares (Bretteville-Norrey, Saint-Germain-en-Laye Bel-Air-Fourqueux T13 et Audrieu), établissements scolaires, boulangerie, commerce et supermarché. Autoroute A84 et nationales N13 et N814 à 6 km. Caen à 9 km.Le prix de vente de cette maison de 6 pièces est de 352 000 €.N’hésitez pas à prendre contact avec notre agence (Emilie HUE : (Numéro supprimé)) pour plus d’informations sur la maison ou sur les démarches à suivre. Maisons France Confort Bayeux vous accompagne dans tous vos projets immobiliers et à toutes les étapes de l’achat.Annonce proposée par un Agent Commercial Partenaire.
L’actualité immobilière à Bazenville
27/11/2023
02/11/2023
30/10/2023
20/10/2023
16/10/2023
16/10/2023