Maison à construire à Bazenville (14480)
Images
Description
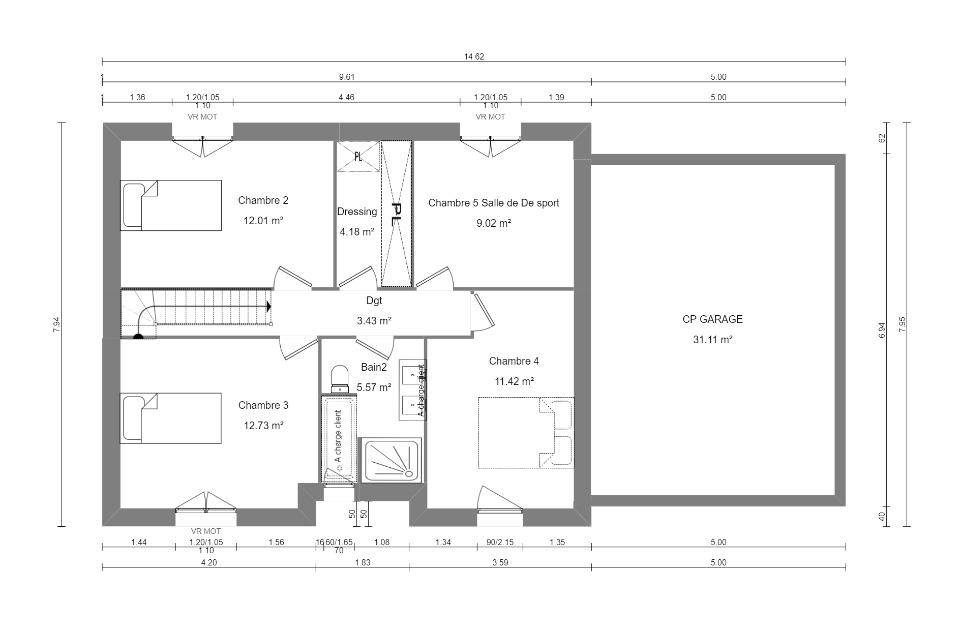
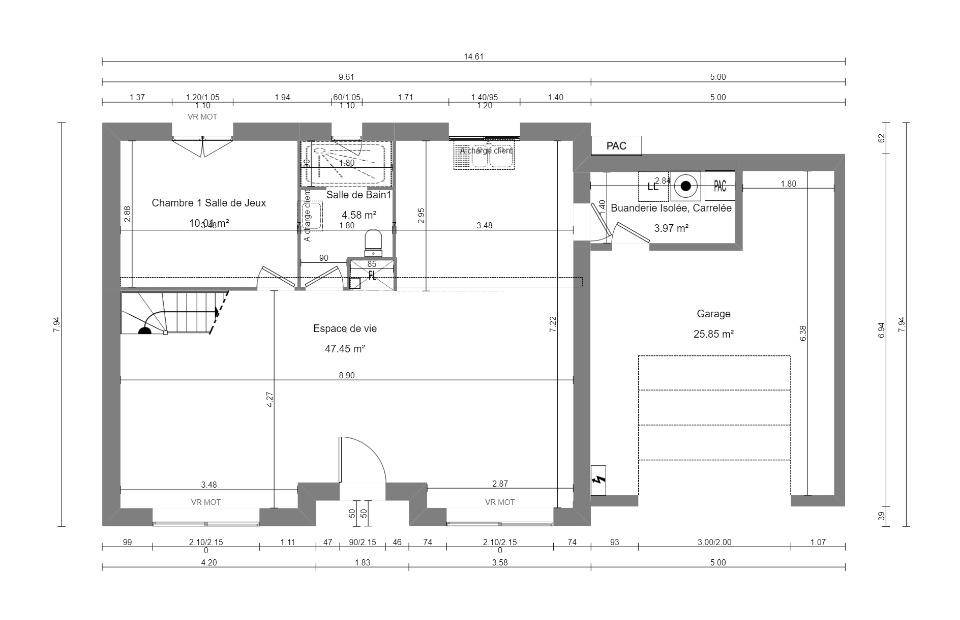
Maison F7 (120 m²) en vente à Creully
IDÉALEMENT SITUÉE - MAISON 7 PIÈCES NEUVE
En vente : située à 8 km de la Manche et à 17 km de Caen, idéalement située dans Creully (14480), nous vous présentons cette maison de 7 pièces de 120 m² et de 445 m² de terrain. Elle propose cinq chambres, une cuisine et deux salles de bains.
Cette maison comporte 2 niveaux. Elle est neuve.
Cette maison est située dans un secteur convoité. Il y a des écoles (de la maternelle au lycée) à moins de 10 minutes à pied et, parmi lesquelles l'Institut Agricole Privé Lemonnier-Site de Saint Gabriel Brécy et le Collège Jean de la Varende. Côté transports en commun, on trouve les gares Audrieu et Bretteville-Norrey à moins de 10 minutes en voiture. La nationale N13 est accessible à 7 km. Il y a une bibliothèque, deux boulangeries, quatre commerces, un bureau de poste et une supérette à proximité.
Elle est à vendre pour la somme de 275 000 €.
N'hésitez pas à prendre contact avec Emilie HUE (tél : (Numéro supprimé)) pour toute question sur la maison ou sur les démarches à suivre.
Annonce proposée par un Agent Commercial Partenaire.
Logement susceptibles de vous intéresser
Nous vous proposons de découvrir aussi cette sélection de logements situés à moins de 10km de Bazenville et qui seraient susceptibles de vous intéresser.
Carcagny
TERRAIN ET MAISONVENTE : maison F5 (85 m²) à Saint-Manvieu-NorreyIdéalement située – À découvrir à Saint-Manvieu-Norrey (14740) : maison neuve 5 pièces à vendre. 2 niveaux, surface de 85 m² sur 321 m² de terrain. Son intérieur inclut trois chambres, une cuisine et une salle de bains.À dix minutes : gares (Bretteville-Norrey, Saint-Germain-en-Laye Bel-Air-Fourqueux T13 et Audrieu), établissements scolaires, boulangerie, commerce et supermarché. Autoroute A84 et nationales N13 et N814 accessibles à 6 km. Caen à 9 km.Cette maison de 5 pièces est proposée à l’achat pour 217 000 €.N’hésitez pas à prendre contact avec notre agence (Emilie HUE : (Numéro supprimé)) pour toute question sur la maison ou sur les démarches à suivre. Maisons France Confort Bayeux vous accompagne dans tous vos projets immobiliers et dans toutes vos démarches.Annonce proposée par un Agent Commercial Partenaire.
Moulins-en-Bessin
TERRAIN ET MAISONMaison T5 (85 m²) à vendre à Saint-Manvieu-NorreyIdéalement située – Maison neuve 5 pièces à vendre à Saint-Manvieu-Norrey (14740) avec 2 niveaux, une surface de 85 m² sur un terrain de 321 m². Son intérieur comporte trois chambres, une cuisine et une salle de bains.À proximité : gares (Bretteville-Norrey, Saint-Germain-en-Laye Bel-Air-Fourqueux T13 et Audrieu), établissements scolaires, boulangerie, commerce et supermarché. Autoroute A84 et nationales N13 et N814 à 6 km. Caen à 9 km.Cette maison de 5 pièces est proposée à l’achat pour 217 000 €.Prenez contact avec Emilie HUE (tél : (Numéro supprimé)) pour obtenir de plus amples informations sur la maison. Donnez vie à vos projets immobiliers avec Maisons France Confort Bayeux.Annonce proposée par un Agent Commercial Partenaire.
Vaux-sur-Seulles
TERRAIN ET MAISONVENTE d’une maison de 6 pièces (91 m²) à BayeuxMAISON 6 PIÈCES NEUVE – PROCHE DE CAENÀ vendre à 9 km de la Manche et à 26 km de Caen, Maisons France Confort Bayeux vous propose cette maison de 6 pièces de 91 m² à Bayeux (14400). Son intérieur est composé de quatre chambres, d’une cuisine et d’une salle de bains.Le terrain du bien est de 301 m².C’est une maison de 2 niveaux. Elle est neuve.Des établissements scolaires de tous types sont implantés à moins de 10 minutes à pied, tout comme une crèche. Niveau transports en commun, on trouve la gare Bayeux à quelques pas du bien. La nationale N13 est accessible à 3 km. Il y a une bibliothèque, des commerces, des boulangeries, un supermarché, un bureau de poste et une supérette à proximité. Enfin, 2 marchés animent le quartier.Son prix de vente est de 221 000 €.Contactez Emilie HUE ((Numéro supprimé)) pour toute information sur cette maison ou sur les modalités de vente.Annonce proposée par un Agent Commercial Partenaire.
Vienne-en-Bessin
TERRAIN ET MAISONVENTE d’une maison F6 (91 m²) à BayeuxMAISON 6 PIÈCES NEUVE – PROCHE DE CAENEn vente : à 9 km de la Manche et à quelques kilomètres de Caen, à Bayeux (14400), nous vous proposons cette maison de 6 pièces de 91 m² et de 301 m² de terrain.Cette maison possède 2 niveaux. Elle se divise en quatre chambres, une cuisine et une salle de bains. La maison est neuve.Il y a des écoles (de la maternelle au lycée) à moins de 10 minutes à pied, tout comme une crèche. Côté transports, on trouve la gare Bayeux à quelques pas de la maison. La nationale N13 est accessible à 3 km. Il y a une bibliothèque, des commerces, des boulangeries, un supermarché, trois épiceries et un bureau de poste à proximité du bien. 2 marchés animent le quartier.Elle est à vendre pour la somme de 221 000 €.Prenez contact avec Emilie HUE (tél : (Numéro supprimé)) pour obtenir de plus amples informations sur le bien ou sur les démarches à suivre.Annonce proposée par un Agent Commercial Partenaire.
Carcagny
TERRAIN ET MAISONVENTE : maison T5 (95 m²) à Saint-Manvieu-NorreyIdéalement située – À découvrir à Saint-Manvieu-Norrey (14740) : maison neuve 5 pièces à vendre, 95 m² de surface sur 321 m² de terrain. Son intérieur propose trois chambres, une cuisine et deux salles de bains.À dix minutes : gares (Bretteville-Norrey, Saint-Germain-en-Laye Bel-Air-Fourqueux T13 et Audrieu), établissements scolaires, boulangerie, commerce et supermarché. Autoroute A84 et nationales N13 et N814 à 6 km. Caen à 9 km.Le prix de vente de cette maison de 5 pièces est de 227 000 €.Contactez Emilie HUE (tél : (Numéro supprimé)) pour plus d’informations sur la maison de plain-pied.Annonce proposée par un Agent Commercial Partenaire.
Carcagny
TERRAIN ET MAISONVENTE d’une maison T6 (140 m²) à Saint-Manvieu-NorreyIdéalement située – À Saint-Manvieu-Norrey (14740), maison neuve à vendre de 6 pièces, 2 niveaux, 140 m² sur 321 m² de terrain. Son intérieur compte quatre chambres, une cuisine et deux salles de bains.À proximité : gares (Bretteville-Norrey, Saint-Germain-en-Laye Bel-Air-Fourqueux T13 et Audrieu), établissements scolaires, boulangerie, commerce et supermarché. Autoroute A84 et nationales N13 et N814 accessibles à 6 km. Caen à 9 km.Cette maison de 6 pièces est proposée à l’achat pour 302 000 €.Contactez notre agence (Emilie HUE : (Numéro supprimé)) pour toute question sur la maison, sur les modalités de vente ou sur les démarches à suivre.Annonce proposée par un Agent Commercial Partenaire.
Carcagny
TERRAIN ET MAISONMaison de 7 pièces (124 m²) à vendre à Saint-Manvieu-NorreyIdéalement située – À découvrir à Saint-Manvieu-Norrey (14740) : maison neuve 7 pièces en vente. 2 niveaux, surface de 124 m² et 321 m² de terrain. Son intérieur compte cinq chambres, une cuisine et trois salles de bains.À proximité : gares (Bretteville-Norrey, Saint-Germain-en-Laye Bel-Air-Fourqueux T13 et Audrieu), établissements scolaires, boulangerie, commerce et supermarché. Autoroute A84 et nationales N13 et N814 accessibles à 6 km. Caen à 9 km.Le prix de vente de cette maison de 7 pièces est de 262 000 €.N’hésitez pas à prendre contact avec notre agence (Emilie HUE : (Numéro supprimé)) pour plus de renseignements sur la maison, sur les démarches à suivre ou sur les modalités de vente. Concrétisez vos projets immobiliers avec Maisons France Confort Bayeux.Annonce proposée par un Agent Commercial Partenaire.
Carcagny
TERRAIN ET MAISONSaint-Manvieu-Norrey : maison T7 (120 m²) à vendreIDÉALEMENT SITUÉE – MAISON 7 PIÈCES NEUVEÀ vendre à 18 km de la Manche et à quelques kilomètres de Caen, notre agence Maisons France Confort Bayeux est ravie de vous présenter, idéalement située dans Saint-Manvieu-Norrey (14740), cette maison de 7 pièces de 120 m². Elle se divise en cinq chambres, une cuisine et deux salles de bains.Le terrain de la propriété est de 321 m².C’est une maison de 2 niveaux. Elle est neuve.La maison est située dans un secteur recherché. Quatre établissements scolaires sont implantés à moins de 10 minutes à pied. Niveau transports en commun, il y a les gares Bretteville-Norrey, Saint-Germain-en-Laye Bel-Air-Fourqueux T13 et Audrieu à moins de 10 minutes en voiture. L’autoroute A84 et les nationales N13 et N814 sont accessibles à moins de 6 km. On trouve une boulangerie, un commerce et un supermarché à quelques minutes à peine.Elle est à vendre pour la somme de 272 000 €.Prenez contact avec Emilie HUE ((Numéro supprimé)) pour toute question sur la maison.Annonce proposée par un Agent Commercial Partenaire.
Moulins-en-Bessin
TERRAIN ET MAISONVENTE : maison T6 (130 m²) à Saint-Manvieu-NorreyIdéalement située – À Saint-Manvieu-Norrey (14740), maison neuve en vente de 6 pièces, 2 niveaux, 130 m² et 321 m² de terrain. Elle est composée de quatre chambres, d’une cuisine et de deux salles de bains.À dix minutes : gares (Bretteville-Norrey, Saint-Germain-en-Laye Bel-Air-Fourqueux T13 et Audrieu), établissements scolaires, boulangerie, commerce et supermarché. Autoroute A84 et nationales N13 et N814 à 6 km. Caen à 9 km.Le prix de vente de cette maison de 6 pièces est de 352 000 €.N’hésitez pas à prendre contact avec notre agence (Emilie HUE : (Numéro supprimé)) pour plus d’informations sur la maison ou sur les démarches à suivre. Maisons France Confort Bayeux vous accompagne dans tous vos projets immobiliers et à toutes les étapes de l’achat.Annonce proposée par un Agent Commercial Partenaire.
L’actualité immobilière à Bazenville
27/11/2023
02/11/2023
30/10/2023
20/10/2023
16/10/2023
16/10/2023