Maison à construire à Beuvillers (14100)
Images
Description
VENTE d'une maison de 6 pièces (89 m²) à Beuvillers
MAISON 6 PIÈCES NEUVE
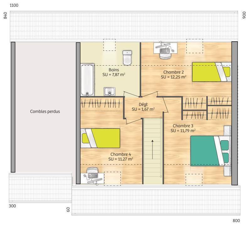
En vente : située à 3 kilomètres de Lisieux, ayez le coup de coeur pour à Beuvillers (14100), cette maison de 6 pièces de 89 m² et de 420 m² de terrain. Elle inclut quatre chambres, une cuisine et une salle de bains.
Il s'agit d'une maison de 2 niveaux. Elle est neuve.
Cette maison à construire est proche des commerces et des écoles. La commune est desservie par les transport scolaires et le réseau de bus NOMAD.
Elle est à vendre pour la somme de 210 900 €.
Contactez notre agence (UCENDO Sophie : (Numéro supprimé)) pour plus d'informations sur cette maison, sur les modalités de vente ou sur les démarches à suivre. Maisons Balency Caen est là pour vous accompagner à toutes les étapes de votre projet.
Logement susceptibles de vous intéresser
Nous vous proposons de découvrir aussi cette sélection de logements situés à moins de 10km de Beuvillers et qui seraient susceptibles de vous intéresser.
Lisieux
TERRAINMAISONS FRANCE CONFORT VOUS PROPOSE DE CONSTRUIRE SUR LE LOTISEMENT DE LA FERRONIERE A MOYAUXSITUER A 20 MIN DE PONT L’EVEQUE ET DE BEUZEVILLE ET A SEULEMENT 14 MIN DE LISIEUX ET THIBERVILLE.AUX PORTES DU ZOO DE CERZASUR UNE PARCELLE DE 402M² AU PRIX DE 50 000€POUR UNE VISITE DE TERRAIN ET POUR UNE ETUDE DE VOTRE FUTUR MAISON, PRENEZ RENDEZ-VOUS AU (Numéro supprimé) ANGELIQUE
Lisieux
TERRAIN ET MAISONMaisons France Confort Lisieux vous propose de construire cette maison de plain pied de 78m².Il se compose d’une entrée avec placard, une belle pièce de vie lumineuseDans l’espace nuit, 3 chambres et une salle de bain.Un accès au garage depuis la maison. Belles prestations :- carrelage 45*45- menuiserie encastrer à la maçonnerie – volet roulant électrique somfy- système de chauffage très économiquePour une étude de construction, merci de prendre rdv avec Mme Vaudry Angélique (Numéro supprimé)
Le Pré-d'Auge
TERRAINVENTE d’un terrain de 1 732 m² au Pré-d’AugeIDÉALEMENT SITUÉAu Pré-d’Auge (14340), projetez la maison de vos rêves sur ce terrain de 1 732 m². Il y a des écoles de tous types (de la maternelle au lycée) à moins de 10 minutes en voiture. Niveau transports, on trouve les gares Le Grand Jardin et Lisieux dans un rayon de 10 km. Il y a des tennis, un bassin de natation, des bibliothèques, un bowling, des commerces, des boulangeries, des supermarchés, deux supérettes et des boucheries-charcuteries dans les environs. Enfin, le marché Place de la République anime le quartier tous les samedis.Il est à vendre pour la somme de 65 000 €. Contactez notre agence (CUVILLIERS Angélique : (Numéro supprimé)) pour toute information sur ce terrain, sur les modalités de vente ou sur les démarches à suivre. EXTRACO Construction Rénovation Pont-l’Évêque est là pour vous accompagner dans tous vos projets immobiliers.
Saint-Martin-de-Mailloc
TERRAINSaint-Martin-de-Mailloc : terrain de 1 534 m² à vendreIDÉALEMENT SITUÉ – VUE DÉGAGÉEÀ Saint-Martin-de-Mailloc (14100), grand terrain. Il profite d’une vue dégagée. On trouve une école élémentaire dans le quartier. Niveau transports en commun, il y a les gares Lisieux et Le Grand Jardin à moins de 10 minutes en voiture. On trouve un accès à l’autoroute A28 à 12 km. On trouve un tennis à quelques minutes à peine.Ce terrain est proposé à l’achat pour 70 000 €. Prenez contact avec Angélique CUVILLIERS ((Numéro supprimé)) pour toute information sur ce terrain. Donnez vie à vos projets immobiliers avec EXTRACO Construction Rénovation Pont-l’Évêque.
Le Pré-d'Auge
TERRAIN ET MAISONOSSATURE BOIS VENTE d’une maison de 5 pièces (113 m²) au Pré-d’AugeIDÉALEMENT SITUÉE – MAISON 5 PIÈCES NEUVEVotre agence EXTRACO Construction Rénovation Pont-l’Évêque est ravie de vous proposer cette maison de 5 pièces de plain-pied de 113 m² et de 1 732 m² de terrain idéalement située dans Le Pré-d’Auge (14340).Conçue de plain-pied, elle est composée de quatre chambres, d’une cuisine et de deux salles de bains. La maison est neuve.Cette maison est située dans un secteur recherché. Des écoles de tous niveaux (de la maternelle au lycée) se trouvent à moins de 10 minutes en voiture. Niveau transports en commun, il y a deux gares (Le Grand Jardin et Lisieux) à proximité. On trouve des tennis, un bassin de natation, des bibliothèques, un bowling, des commerces, des boulangeries, des supermarchés, des épiceries et deux poissonneries dans les environs. Enfin, le marché Place de la République a lieu tous les samedis.Son prix de vente est de 279 800 €.N’hésitez pas à prendre contact avec notre constructeur (Angélique CUVILLIERS : (Numéro supprimé)) pour tout renseignement sur la maison ou sur les démarches à suivre. EXTRACO Construction Rénovation Pont-l’Évêque est là pour vous accompagner à toutes les étapes de votre projet.
Le Pré-d'Auge
TERRAIN ET MAISONVENTE d’une maison de 5 pièces (105 m²) au Pré-d’AugeIDÉALEMENT SITUÉE – MAISON 5 PIÈCES NEUVEEn vente : idéalement située dans Le Pré-d’Auge (14340), ayez le coup de coeur pour cette maison de 5 pièces de 105 m² et de 1 732 m² de terrain. Elle se divise en quatre chambres, une cuisine et deux salles de bains.Il s’agit d’une maison de 2 niveaux. Elle est neuve.Cette maison est située dans un quartier convoité. Il y a tous les types d’établissements scolaires à moins de 10 minutes en voiture. Niveau transports en commun, on trouve deux gares (Le Grand Jardin et Lisieux) dans un rayon de 10 km. Il y a des tennis, un bassin de natation, des bibliothèques, un bowling, des commerces, des boulangeries, des supermarchés, deux supérettes et des épiceries dans les environs. Enfin, le marché Place de la République a lieu chaque samedi.Elle est proposée à l’achat pour 239 700 €.Contactez Angélique CUVILLIERS (tél : (Numéro supprimé)) pour tout renseignement sur la maison, sur les démarches à suivre ou sur les modalités de vente. EXTRACO Construction Rénovation Pont-l’Évêque est là pour vous accompagner dans tous vos projets immobiliers.
Le Pré-d'Auge
TERRAIN ET MAISONMaison de 4 pièces (98 m²) en vente au Pré-d’AugeIDÉALEMENT SITUÉE – MAISON 4 PIÈCES NEUVEEn vente idéalement située dans Le Pré-d’Auge (14340), votre agence EXTRACO Construction Rénovation Pont-l’Évêque est ravie de vous proposer cette maison de 4 pièces de plain-pied de 98 m².Elle est composée de trois chambres, d’une cuisine et d’une salle de bains. La maison est neuve.Le terrain de la propriété s’étend sur 1 732 m².Cette maison se trouve dans un secteur recherché. Il y a des établissements scolaires de tous types à moins de 10 minutes en voiture. Niveau transports en commun, on trouve les gares Le Grand Jardin et Lisieux à proximité. Il y a des tennis, un bassin de natation, des bibliothèques, un bowling, des commerces, des boulangeries, des supermarchés, quatre bureaux de poste et deux supérettes à quelques minutes de la maison. Ne manquez pas le marché Place de la République chaque samedi.Elle est à vendre pour la somme de 229 900 €.Prenez contact avec Angélique CUVILLIERS ((Numéro supprimé)) pour toute question sur la propriété.
Le Pré-d'Auge
TERRAIN ET MAISONMaison F4 (137 m²) à vendre au Pré-d’AugeIDÉALEMENT SITUÉE – MAISON 4 PIÈCES NEUVEÀ vendre : idéalement située dans Le Pré-d’Auge (14340), notre agence EXTRACO Construction Rénovation Pont-l’Évêque est ravie de vous proposer cette maison de 4 pièces de plain-pied de 137 m² et de 1 732 m² de terrain.Elle offre trois chambres, une cuisine et deux salles de bains. Cette maison est neuve.Cette maison est située dans un secteur convoité. On trouve des établissements scolaires de tous niveaux à moins de 10 minutes en voiture. Niveau transports, il y a deux gares (Le Grand Jardin et Lisieux) dans un rayon de 10 km. On trouve des tennis, un bassin de natation, des bibliothèques, un bowling, des commerces, des boulangeries, des supermarchés, des boucheries-charcuteries et quatre bureaux de poste dans les environs. Enfin, le marché Place de la République a lieu tous les samedis.Son prix de vente est de 349 900 €.Contactez notre agence (Angélique CUVILLIERS : (Numéro supprimé)) pour tout renseignement sur la maison.
Saint-Martin-de-Mailloc
TERRAIN ET MAISONOSSATURE BOIS VENTE d’une maison T5 (104 m²) à Saint-Martin-de-MaillocIDÉALEMENT SITUÉE – MAISON 5 PIÈCES NEUVEvenez découvrir cette maison de 5 pièces de plain-pied de 104 m², idéalement située dans Saint-Martin-de-Mailloc (14100).Son intérieur inclut quatre chambres, une cuisine et deux salles de bains. La maison est neuve.Le terrain du bien s’étend sur 1 534 m².La propriété est située dans un quartier convoité. Une école élémentaire y est implantée. Niveau transports, il y a les gares Lisieux et Le Grand Jardin à moins de 10 minutes en voiture. L’autoroute A28 est accessible à 12 km. On trouve un tennis dans les environs.Son prix de vente est de 267 800 €.Contactez Angélique CUVILLIERS ((Numéro supprimé)) pour obtenir de plus amples informations sur la maison.
L’actualité immobilière à Beuvillers
27/11/2023
02/11/2023
30/10/2023
20/10/2023
16/10/2023
16/10/2023