Maison à construire à Caumont-l'Éventé (14240)
Images
Description
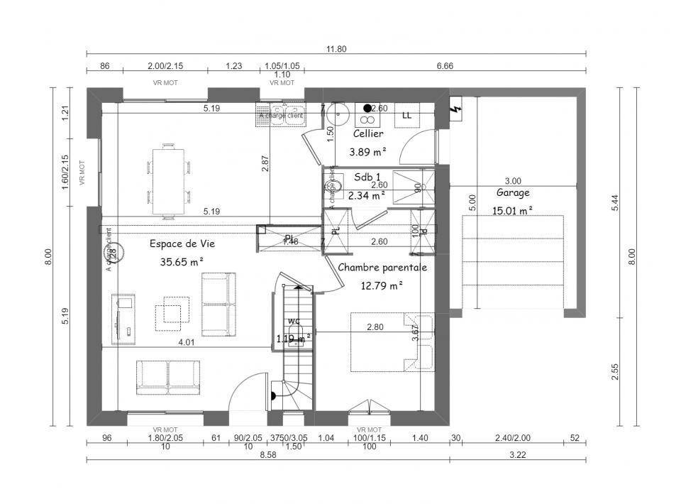
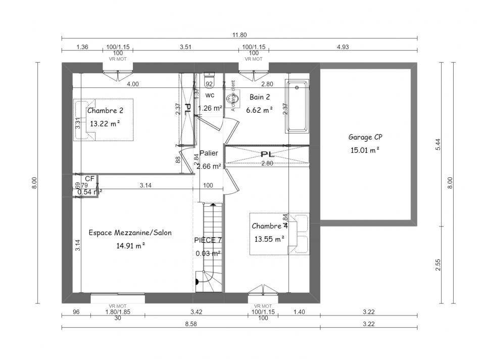
Caumont-l'Éventé : maison T6 (110 m²) à vendre
IDÉALEMENT SITUÉE - MAISON 6 PIÈCES NEUVE
En vente : à 30 km de la Manche, notre agence Maisons France Confort Bayeux est ravie de vous proposer cette maison de 6 pièces de 110 m² idéalement située dans Caumont-l'Éventé (14240).
Cette maison possède 2 niveaux. Elle propose quatre chambres, une cuisine et deux salles de bains. Cette maison est neuve.
Le terrain du bien s'étend sur 350 m².
La maison se situe dans un quartier attractif. Il y a deux établissements scolaires à moins de 10 minutes à pied et dont le Collège les Sources d'Aure. L'autoroute A84 est accessible à 6 km. On trouve un tennis, une bibliothèque, trois commerces, deux boulangeries, deux supermarchés, deux boucheries-charcuteries et un bureau de poste à proximité.
Elle est proposée à l'achat pour 191 700 €.
Contactez notre constructeur (Emilie HUE : (Numéro supprimé)) pour plus d'informations sur la maison.
Annonce proposée par un Agent Commercial Partenaire.
Logement susceptibles de vous intéresser
Nous vous proposons de découvrir aussi cette sélection de logements situés à moins de 10km de Caumont-sur-Aure et qui seraient susceptibles de vous intéresser.
Caumont-sur-Aure
TERRAINVENTE d’un terrain de 350 m² à Caumont-l’ÉventéIdéalement situé – Proche écoles et commerces, à Caumont-l’Éventé (14240) : terrain à vendre de 350 m².Proche école divers Collège les Sources d’Aure, tennis, bibliothèque, commerces, boulangeries, supermarchés, bureau de poste et boucheries-charcuteries. Accès autoroute A84 à 6 km. Manche à 30 km.Son prix de vente est de 26 700 €. N’hésitez pas à prendre contact avec Emilie HUE ((Numéro supprimé)) pour obtenir de plus amples renseignements sur le terrain ou sur les modalités de vente. Concrétisez vos projets immobiliers avec Maisons France Confort Bayeux.Annonce proposée par un Agent Commercial Partenaire.
Caumont-sur-Aure
TERRAIN ET MAISONVENTE : maison de 5 pièces (110 m²) à Caumont-l’ÉventéIDÉALEMENT SITUÉE – MAISON 5 PIÈCES NEUVEÀ vendre : située à 30 km de la Manche, nous sommes heureux de vous proposer cette maison de 5 pièces de plain-pied de 110 m², idéalement située dans Caumont-l’Éventé (14240). Son intérieur se divise en trois chambres, une cuisine et deux salles de bains.Le terrain de la propriété s’étend sur 350 m².Cette maison est neuve.Cette maison est située dans un quartier attractif. On trouve deux établissements scolaires à moins de 10 minutes à pied et dont le Collège les Sources d’Aure. L’autoroute A84 est accessible à 6 km. Il y a un tennis, une bibliothèque, trois commerces, deux boulangeries, deux supermarchés, deux boucheries-charcuteries et un bureau de poste dans les environs.Elle est proposée à l’achat pour 226 700 €.Contactez Emilie HUE (tél : (Numéro supprimé)) pour tout renseignement sur la maison, sur les modalités de vente ou sur les démarches à suivre.Annonce proposée par un Agent Commercial Partenaire.
Caumont-sur-Aure
TERRAIN ET MAISONVENTE : maison de 5 pièces (110 m²) à Caumont-l’ÉventéIDÉALEMENT SITUÉE – MAISON 5 PIÈCES NEUVEEn vente : à 30 km de la Manche, idéalement située dans Caumont-l’Éventé (14240), laissez vous charmer par cette maison de 5 pièces de plain-pied de 110 m².Son intérieur inclut trois chambres, une cuisine et une salle de bains. Cette maison est neuve.Le terrain de la propriété s’étend sur 350 m².Cette propriété se situe dans un secteur convoité. Deux établissements scolaires se trouvent à moins de 10 minutes à pied, tout comme, parmi lesquels le Collège les Sources d’Aure. Il y a un accès à l’autoroute A84 à 6 km. Il y a un tennis, une bibliothèque, trois commerces, deux boulangeries, deux supermarchés, deux boucheries-charcuteries et un bureau de poste dans les environs.Son prix de vente est de 226 700 €.Contactez Emilie HUE (tél : (Numéro supprimé)) pour toute question sur la maison ou sur les modalités de vente. Faites de vos projets immobiliers une réalité avec Maisons France Confort Bayeux.Annonce proposée par un Agent Commercial Partenaire.
Caumont-sur-Aure
TERRAIN ET MAISONVENTE d’une maison T5 (85 m²) à Caumont-l’ÉventéIDÉALEMENT SITUÉE – MAISON 5 PIÈCES NEUVEÀ vendre : à 30 km de la Manche, nous vous présentons cette maison de 5 pièces de plain-pied de 85 m², idéalement située dans Caumont-l’Éventé (14240).Conçue de plain-pied, elle dispose de trois chambres, d’une cuisine et d’une salle de bains. Cette maison est neuve.Le terrain du bien s’étend sur 350 m².Cette maison est située dans un quartier attractif. On trouve deux établissements scolaires à moins de 10 minutes à pied et, comme le Collège les Sources d’Aure. L’autoroute A84 est accessible à 6 km. Il y a un tennis, une bibliothèque, trois commerces, deux boulangeries, deux supermarchés, deux boucheries-charcuteries et un bureau de poste à proximité.Elle est proposée à l’achat pour 171 700 €.Contactez notre agence (Emilie HUE : (Numéro supprimé)) pour toute question sur la maison ou sur les modalités de vente. Donnez vie à vos projets immobiliers avec Maisons France Confort Bayeux.Annonce proposée par un Agent Commercial Partenaire.
Caumont-sur-Aure
TERRAIN ET MAISONVENTE : maison T5 (95 m²) à Caumont-l’ÉventéIDÉALEMENT SITUÉE – MAISON 5 PIÈCES NEUVEEn vente : localisée à 30 km de la Manche, idéalement située dans Caumont-l’Éventé (14240), nous vous présentons cette maison de 5 pièces de plain-pied de 95 m² et de 350 m² de terrain.Son intérieur inclut trois chambres, une cuisine et deux salles de bains. La maison est neuve.La maison se situe dans un secteur convoité. Deux établissements scolaires sont implantés à moins de 10 minutes à pied, tout comme, comme le Collège les Sources d’Aure. Il y a un accès à l’autoroute A84 à 6 km. Il y a un tennis, une bibliothèque, trois commerces, deux boulangeries, deux supermarchés, un bureau de poste et deux boucheries-charcuteries à quelques minutes du bien.Elle est proposée à l’achat pour 181 700 €.Contactez notre agence (HUE Emilie : (Numéro supprimé)) pour tout renseignement sur la propriété.Annonce proposée par un Agent Commercial Partenaire.
Caumont-sur-Aure
TERRAIN ET MAISONMaison de 7 pièces (120 m²) en vente à Caumont-l’ÉventéIDÉALEMENT SITUÉE – MAISON 7 PIÈCES NEUVEEn vente : située à 30 km de la Manche, nous vous proposons, idéalement située dans Caumont-l’Éventé (14240), cette maison de 7 pièces de 120 m². Elle compte cinq chambres, une cuisine et deux salles de bains.Le terrain de cette maison est de 350 m².Cette maison comporte 2 niveaux. Elle est neuve.Cette maison est située dans un quartier recherché. Deux établissements scolaires sont implantés à moins de 10 minutes à pied, tout comme, comme le Collège les Sources d’Aure. L’autoroute A84 est accessible à 6 km. Il y a un tennis, une bibliothèque, trois commerces, deux boulangeries, deux supermarchés, deux boucheries-charcuteries et un bureau de poste dans les environs.Elle est à vendre pour la somme de 226 700 €.Prenez contact avec Emilie HUE ((Numéro supprimé)) pour toute question sur le bien et sur les démarches à suivre.Annonce proposée par un Agent Commercial Partenaire.
Caumont-sur-Aure
TERRAIN ET MAISONVENTE : maison de 6 pièces (140 m²) à Caumont-l’ÉventéIDÉALEMENT SITUÉE – MAISON 6 PIÈCES NEUVEÀ 30 km de la Manche, ayez le coup de coeur pour cette maison de 6 pièces de 140 m² à vendre idéalement située dans Caumont-l’Éventé (14240). Elle offre quatre chambres, une cuisine et deux salles de bains.Le terrain de la propriété est de 350 m².Cette maison compte 2 niveaux. Elle est neuve.Cette maison se trouve dans un quartier recherché. Il y a deux établissements scolaires à moins de 10 minutes à pied et, comme le Collège les Sources d’Aure. L’autoroute A84 est accessible à 6 km. On trouve un tennis, une bibliothèque, trois commerces, deux boulangeries, deux supermarchés, deux boucheries-charcuteries et un bureau de poste à quelques minutes de la maison.Elle est proposée à l’achat pour 256 700 €.Prenez contact avec notre agence (HUE Emilie : (Numéro supprimé)) pour obtenir de plus amples renseignements sur la maison ou sur les démarches à suivre. Donnez vie à vos projets immobiliers avec Maisons France Confort Bayeux.Annonce proposée par un Agent Commercial Partenaire.
Caumont-sur-Aure
TERRAIN ET MAISONVENTE : maison T6 (130 m²) à Caumont-l’ÉventéIDÉALEMENT SITUÉE – MAISON 6 PIÈCES NEUVEÀ 30 km de la Manche, laissez vous charmer par cette maison de 6 pièces de 130 m² en vente idéalement située dans Caumont-l’Éventé (14240).Cette maison comporte 2 niveaux. Elle inclut quatre chambres, une cuisine et deux salles de bains. Cette maison est neuve.Le terrain du bien est de 350 m².La maison se situe dans un secteur prisé. Deux établissements scolaires sont implantés à moins de 10 minutes à pied, tout comme, parmi lesquels le Collège les Sources d’Aure. L’autoroute A84 est accessible à 6 km. Il y a un tennis, une bibliothèque, trois commerces, deux boulangeries, deux supermarchés, deux boucheries-charcuteries et un bureau de poste à proximité du logement.Elle est proposée à l’achat pour 306 700 €.N’hésitez pas à prendre contact avec notre agence (HUE Emilie : (Numéro supprimé)) pour tout renseignement sur la maison. Faites de vos projets immobiliers une réalité avec Maisons France Confort Bayeux.Annonce proposée par un Agent Commercial Partenaire.
Caumont-sur-Aure
TERRAIN ET MAISONCaumont-l’Éventé : maison T6 (110 m²) à vendreIDÉALEMENT SITUÉE – MAISON 6 PIÈCES NEUVEEn vente : à 30 km de la Manche, notre agence Maisons France Confort Bayeux est ravie de vous proposer cette maison de 6 pièces de 110 m² idéalement située dans Caumont-l’Éventé (14240).Cette maison possède 2 niveaux. Elle propose quatre chambres, une cuisine et deux salles de bains. Cette maison est neuve.Le terrain du bien s’étend sur 350 m².La maison se situe dans un quartier attractif. Il y a deux établissements scolaires à moins de 10 minutes à pied et dont le Collège les Sources d’Aure. L’autoroute A84 est accessible à 6 km. On trouve un tennis, une bibliothèque, trois commerces, deux boulangeries, deux supermarchés, deux boucheries-charcuteries et un bureau de poste à proximité.Elle est proposée à l’achat pour 191 700 €.Contactez notre constructeur (Emilie HUE : (Numéro supprimé)) pour plus d’informations sur la maison.Annonce proposée par un Agent Commercial Partenaire.
L’actualité immobilière à Caumont-sur-Aure
27/11/2023
02/11/2023
30/10/2023
20/10/2023
16/10/2023
16/10/2023