Maison à construire à Cauvicourt (14190)
Images
Description
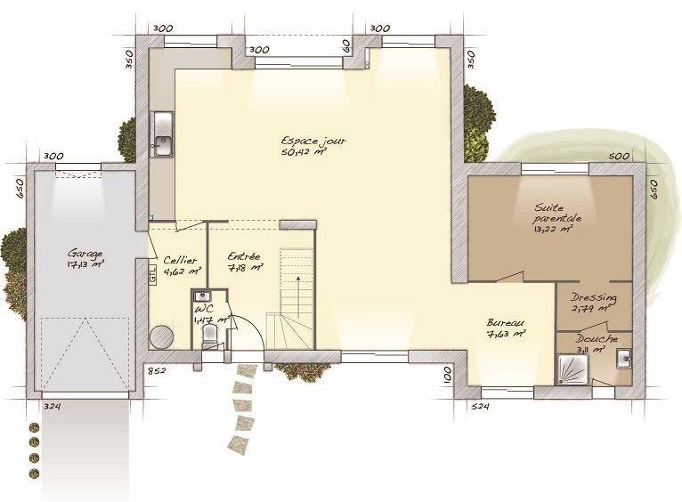
Maison F7 (125 m²) en vente à Cauvicourt
PROCHE DE CAEN - MAISON 7 PIÈCES NEUVE
En vente : localisée à seulement 17 km du centre-ville de Caen, Maisons Balency Caen vous propose à Cauvicourt (14190), cette maison de 7 pièces de 125 m². Son intérieur inclut cinq chambres, une cuisine et trois salles de bains.
Le terrain de la propriété est de 350 m².
Cette maison compte 2 niveaux. Elle est à construire.
Proche des commerces et des écoles.
Commune desservie par les transports scolaires.
Accès à la nationale N158 à 2 km.
Son prix de vente est de 387 900 €.
N'hésitez pas à prendre contact avec notre agence (Sophie UCENDO : (Numéro supprimé)) pour toute information sur la maison, sur les démarches à suivre et sur les modalités de vente. Maisons Balency Caen est là pour vous accompagner à toutes les étapes de votre projet.
Logement susceptibles de vous intéresser
Nous vous proposons de découvrir aussi cette sélection de logements situés à moins de 10km de Cauvicourt et qui seraient susceptibles de vous intéresser.
Frénouville
TERRAINFrénouville : terrain de 385 m² en venteIDÉALEMENT SITUÉ – VUE SANS VIS-À-VISÀ Frénouville (14630) à 16 km de la Manche et à deux pas de Caen, découvrez ce terrain de 385 m². Ce terrain, avec une exposition sud, profite d’une vue sans vis-à-vis. Dans un secteur recherché, le terrain idéalement situé est proche des écoles et des commerces. L’École Primaire Docteur Derrien se trouve à moins de 10 minutes à pied. Côté transports en commun, il y a les gares Frénouville-Cagny, Moult-Argences et Caen à moins de 10 minutes en voiture. L’autoroute A13 et les nationales N814 et N158 sont accessibles à moins de 6 km. On trouve un tennis, deux boulangeries et trois commerces dans les environs.Son prix de vente est de 81 500 €. N’hésitez pas à prendre contact avec notre agence (Kevin DUCHESNE : (Numéro supprimé)) pour obtenir de plus amples informations sur le terrain, sur les démarches à suivre ou sur les modalités de vente. Maisons France Confort Caen est là pour vous accompagner dans tous vos projets immobiliers.
Frénouville
TERRAIN ET MAISONFrénouville : maison de 6 pièces (100 m²) en venteIDÉALEMENT SITUÉE – VUE SANS VIS-À-VISÀ 16 km de la Manche et à quelques kilomètres de Caen, en vente idéalement située dans Frénouville (14630), nous sommes heureux de vous présenter cette maison de 6 pièces de 100 m² sans vis-à-vis.Cette maison comporte 2 niveaux. Elle dispose de quatre chambres, d’une cuisine et d’une salle de bains. La maison est neuve.Le terrain du bien s’étend sur 385 m².Cette maison se situe dans un quartier recherché. On trouve l’École Primaire Docteur Derrien à moins de 10 minutes à pied. Côté transports en commun, il y a trois gares (Frénouville-Cagny, Moult-Argences et Caen) à moins de 10 minutes en voiture. L’autoroute A13 et les nationales N814 et N158 sont accessibles à moins de 6 km. On trouve un tennis, deux boulangeries et trois commerces à quelques minutes.Elle est à vendre pour la somme de 289 000 €.N’hésitez pas à prendre contact avec notre agence (Kevin DUCHESNE : (Numéro supprimé)) pour obtenir de plus amples renseignements sur la maison ou sur les modalités de vente. Maisons France Confort Caen vous accompagne dans toutes vos démarches et à toutes les étapes de votre projet.
Frénouville
TERRAIN ET MAISONVENTE : maison de 5 pièces (89 m²) à FrénouvilleIDÉALEMENT SITUÉE – MAISON 5 PIÈCES NEUVEÀ vendre : à 16 km de la Manche et à quelques kilomètres de Caen, votre agence Maisons France Confort Caen est heureuse de vous proposer cette maison de 5 pièces de plain-pied de 89 m² idéalement située dans Frénouville (14630).Conçue de plain-pied, elle est composée de trois chambres, d’une cuisine et d’une salle de bains. La maison est neuve.Le terrain du bien s’étend sur 385 m².Ce bien est situé dans un quartier recherché. On trouve l’École Primaire Docteur Derrien à moins de 10 minutes à pied. Côté transports en commun, il y a les gares Frénouville-Cagny, Moult-Argences et Caen à moins de 10 minutes en voiture. L’autoroute A13 et les nationales N814 et N158 sont accessibles à moins de 6 km. On trouve un tennis, deux boulangeries et trois commerces à quelques minutes.Il est à vendre pour la somme de 289 000 €.Contactez Kevin DUCHESNE (tél : (Numéro supprimé)) pour plus d’informations sur la maison ou sur les démarches à suivre.
Frénouville
TERRAIN ET MAISONMaison de 3 pièces (60 m²) à vendre à FrénouvilleIDÉALEMENT SITUÉE – MAISON 3 PIÈCES NEUVEEn vente : à 16 km de la Manche et à quelques kilomètres de Caen, Maisons France Confort Caen vous présente cette maison de 3 pièces de plain-pied de 60 m² et de 385 m² de terrain, idéalement située dans Frénouville (14630). Son intérieur dispose d’une chambre, d’une cuisine et d’une salle de bains.La maison est neuve.Cette maison se situe dans un secteur convoité. Il y a l’École Primaire Docteur Derrien à moins de 10 minutes à pied. Niveau transports, on trouve les gares Frénouville-Cagny, Moult-Argences et Caen à moins de 10 minutes en voiture. L’autoroute A13 et les nationales N814 et N158 sont accessibles à moins de 6 km. Il y a un tennis, deux boulangeries et trois commerces à proximité de la maison.Son prix de vente est de 239 000 €.N’hésitez pas à prendre contact avec Kevin DUCHESNE (tél : (Numéro supprimé)) pour toute question sur le bien, sur les démarches à suivre ou sur les modalités de vente.
Frénouville
TERRAIN ET MAISONMaison de 5 pièces (96 m²) en vente à FrénouvilleIDÉALEMENT SITUÉE – MAISON 5 PIÈCES NEUVEÀ vendre : située à 16 km de la Manche et à quelques kilomètres de Caen, nous vous proposons, idéalement située dans Frénouville (14630), cette maison de 5 pièces de 96 m² et de 385 m² de terrain. Son intérieur compte quatre chambres, une cuisine et une salle de bains.C’est une maison de 2 niveaux. Elle est neuve.Cette maison se trouve dans un secteur recherché. Il y a l’École Primaire Docteur Derrien à moins de 10 minutes à pied. Côté transports, on trouve trois gares (Frénouville-Cagny, Moult-Argences et Caen) à moins de 10 minutes en voiture. L’autoroute A13 et les nationales N814 et N158 sont accessibles à moins de 6 km. Il y a un tennis, deux boulangeries et trois commerces à proximité.Elle est proposée à l’achat pour 252 000 €.N’hésitez pas à prendre contact avec notre agence (Kevin DUCHESNE : (Numéro supprimé)) pour toute information sur la maison ou sur les modalités de vente.
Frénouville
TERRAIN ET MAISONFrénouville : maison de 3 pièces (76 m²) à vendreIDÉALEMENT SITUÉE – MAISON 3 PIÈCES NEUVEÀ vendre : située à 16 km de la Manche et à quelques kilomètres de Caen, notre agence Maisons France Confort Caen est heureuse de vous proposer, idéalement située dans Frénouville (14630), cette maison de 3 pièces de plain-pied de 76 m². Elle inclut trois chambres, une cuisine et trois salles de bains.Le terrain de la propriété est de 385 m².La maison est neuve.Cette maison se trouve dans un quartier prisé. Il y a l’École Primaire Docteur Derrien à moins de 10 minutes à pied. Côté transports en commun, on trouve trois gares (Frénouville-Cagny, Moult-Argences et Caen) à moins de 10 minutes en voiture. L’autoroute A13 et les nationales N814 et N158 sont accessibles à moins de 6 km. Il y a un tennis, deux boulangeries et trois commerces à quelques minutes.Son prix de vente est de 242 000 €.Prenez contact avec notre constructeur (DUCHESNE Kevin : (Numéro supprimé)) pour tout renseignement sur la maison. Maisons France Confort Caen est là pour vous accompagner dans toutes vos démarches.
Barbery
TERRAINTerrain de 490 m² à vendre à BarberyIDÉALEMENT SITUÉ – PROCHE DE CAENÀ 33 km de la Manche et à 19 km de Caen à Barbery (14220), terrain de 490 m². Réalisez-y votre projet de construction. Ce terrain, avec une exposition sud, donne sur un espace vert. Il y a une école primaire dans le quartier. Il y a un accès à la nationale N158 à 7 km.Il est à vendre pour la somme de 63 000 €. Contactez notre agence (Kevin DUCHESNE : (Numéro supprimé)) pour obtenir de plus amples renseignements sur ce terrain ou sur les modalités de vente. Maisons France Confort Caen vous accompagne à toutes les étapes de votre projet et dans toutes vos démarches.
Barbery
TERRAIN ET MAISONBarbery : maison de 5 pièces (90 m²) à vendreIDÉALEMENT SITUÉE – MAISON 5 PIÈCES NEUVEÀ 33 km de la Manche et à 19 km de Caen, votre agence Maisons France Confort Caen est heureuse de vous présenter cette maison de 5 pièces de 90 m² avec vue sur espace vert idéalement située dans Barbery (14220). Son intérieur propose trois chambres, une cuisine et deux salles de bains.Le terrain de la propriété s’étend sur 490 m².C’est une maison de plain-pied. Elle est neuve.La maison se trouve dans un quartier attractif. On y trouve une école primaire. La nationale N158 est accessible à 7 km.Son prix de vente est de 252 000 €.Prenez contact avec Kevin DUCHESNE (tél : (Numéro supprimé)) pour toute information sur la maison et sur les modalités de vente.
Barbery
TERRAIN ET MAISONBarbery : maison de 3 pièces (76 m²) en venteIDÉALEMENT SITUÉE – MAISON 3 PIÈCES NEUVEEn vente : localisée à 33 km de la Manche et à deux pas de Caen, votre agence Maisons France Confort Caen est ravie de vous présenter cette maison de 3 pièces de plain-pied de 76 m², idéalement située dans Barbery (14220).Conçue de plain-pied, elle se divise en trois chambres, une cuisine et trois salles de bains. Cette maison est neuve.Le terrain de la propriété est de 490 m².La maison est située dans un secteur prisé. Une école primaire y est implantée. Il y a un accès à la nationale N158 à 7 km.Elle est proposée à l’achat pour 249 000 €.Prenez contact avec Kevin DUCHESNE ((Numéro supprimé)) pour toute information sur la maison.
L’actualité immobilière à Cauvicourt
27/11/2023
02/11/2023
30/10/2023
20/10/2023
16/10/2023
16/10/2023