Maison à construire à Condé-sur-Seulles (14400)
Images
Description
VENTE d'une maison de 7 pièces (120 m²) à Bayeux
IDÉALEMENT SITUÉE - MAISON 7 PIÈCES NEUVE
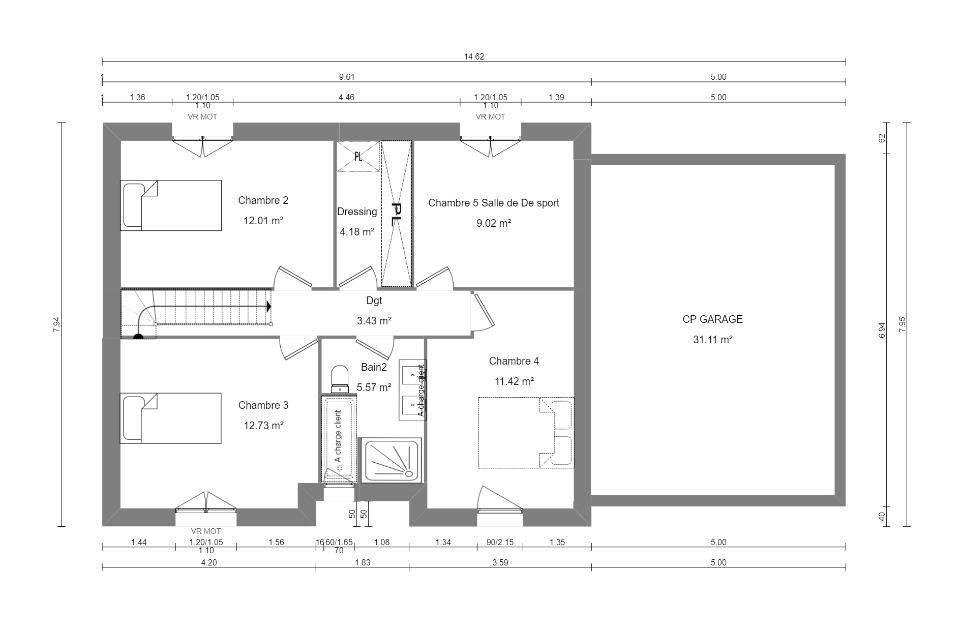
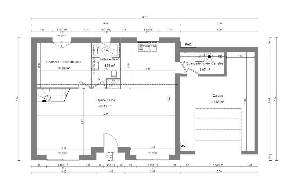
À 9 km de la Manche et à deux pas de Caen, nous sommes ravis de vous présenter cette maison de 7 pièces de 120 m² idéalement située dans Bayeux (14400). Son intérieur dispose de cinq chambres, d'une cuisine et de deux salles de bains.
Le terrain de la propriété est de 611 m².
Cette maison compte 2 niveaux. Elle est neuve.
Cette maison se trouve dans un quartier recherché. Il y a des établissements scolaires de tous types à moins de 10 minutes à pied, tout comme une crèche. Niveau transports en commun, on trouve la gare Bayeux dans un rayon de 1 km. On trouve un accès à la nationale N13 à 3 km. Il y a une bibliothèque, des commerces, des boulangeries, un supermarché, des boucheries-charcuteries et trois épiceries à proximité de la maison. Enfin, 2 marchés animent les environs.
Elle est proposée à l'achat pour 269 900 €.
Contactez notre agence (Emilie HUE : (Numéro supprimé)) pour tout renseignement sur la maison ou sur les modalités de vente.
Annonce proposée par un Agent Commercial Partenaire.
Logement susceptibles de vous intéresser
Nous vous proposons de découvrir aussi cette sélection de logements situés à moins de 10km de Condé-sur-Seulles et qui seraient susceptibles de vous intéresser.
Thue et Mue
TERRAIN ET MAISONSaint-Manvieu-Norrey : maison F7 (102 m²) à vendreIdéalement située – À Saint-Manvieu-Norrey (14740), maison neuve en vente de 7 pièces, 2 niveaux, 102 m² et 321 m² de terrain. Son intérieur dispose de cinq chambres, d’une cuisine et de deux salles de bains.À dix minutes : gares (Bretteville-Norrey, Saint-Germain-en-Laye Bel-Air-Fourqueux T13 et Audrieu), établissements scolaires, boulangerie, commerce et supermarché. Autoroute A84 et nationales N13 et N814 accessibles à 6 km. Caen à 9 km.Le prix de vente de cette maison de 7 pièces est de 242 000 €.N’hésitez pas à prendre contact avec Emilie HUE ((Numéro supprimé)) pour toute information sur la maison, sur les démarches à suivre ou sur les modalités de vente.Annonce proposée par un Agent Commercial Partenaire.
Thue et Mue
TERRAINVENTE d’un terrain de 212 m² à Saint-Manvieu-NorreyIdéalement situé – À quelques minutes des écoles et commerces, terrain de 212 m² en vente à Saint-Manvieu-Norrey (14740).À dix minutes : gares (Bretteville-Norrey, Saint-Germain-en-Laye Bel-Air-Fourqueux T13 et Audrieu), établissements scolaires, boulangerie, commerce et supermarché. Autoroute A84 et nationales N13 et N814 accessibles à 6 km. Proche Caen.Son prix de vente est de 49 000 €. Contactez Emilie HUE ((Numéro supprimé)) pour tout renseignement sur le terrain. Maisons France Confort Bayeux est là pour vous accompagner dans tous vos projets immobiliers.Annonce proposée par un Agent Commercial Partenaire.
Thue et Mue
TERRAIN ET MAISONVENTE : maison de 7 pièces (120 m²) à Saint-Manvieu-NorreyIdéalement située – À Saint-Manvieu-Norrey (14740), maison neuve à vendre de 7 pièces, 2 niveaux, 120 m² de surface sur 321 m² de terrain. Elle inclut cinq chambres, une cuisine et deux salles de bains.Proche gares (Bretteville-Norrey, Saint-Germain-en-Laye Bel-Air-Fourqueux T13 et Audrieu), établissements scolaires, boulangerie, commerce et supermarché. Autoroute A84 et nationales N13 et N814 à 6 km. Caen à 9 km.Cette maison de 7 pièces est à vendre pour la somme de 272 000 €.Contactez Emilie HUE (tél : (Numéro supprimé)) pour toute question sur la maison.Annonce proposée par un Agent Commercial Partenaire.
Thue et Mue
TERRAIN ET MAISONMaison T5 (110 m²) à vendre à Saint-Manvieu-NorreyIdéalement située – En vente à Saint-Manvieu-Norrey (14740) : maison neuve 5 pièces de 110 m² sur un terrain de 212 m². Elle est composée de trois chambres, d’une cuisine et d’une salle de bains.À dix minutes : gares (Bretteville-Norrey, Saint-Germain-en-Laye Bel-Air-Fourqueux T13 et Audrieu), établissements scolaires, boulangerie, commerce et supermarché. Autoroute A84 et nationales N13 et N814 accessibles à 6 km. Caen à 9 km.Cette maison de 5 pièces est à vendre pour la somme de 249 000 €.Contactez Emilie HUE (tél : (Numéro supprimé)) pour tout renseignement sur la maison ou sur les modalités de vente. Maisons France Confort Bayeux vous accompagne dans tous vos projets immobiliers et à toutes les étapes de votre projet.Annonce proposée par un Agent Commercial Partenaire.
Thue et Mue
TERRAIN ET MAISONVENTE : maison T5 (95 m²) à Saint-Manvieu-NorreyIdéalement située – En vente à Saint-Manvieu-Norrey (14740) : maison neuve 5 pièces de 95 m² et de 321 m² de terrain. Son intérieur compte trois chambres, une cuisine et deux salles de bains.À proximité : gares (Bretteville-Norrey, Saint-Germain-en-Laye Bel-Air-Fourqueux T13 et Audrieu), établissements scolaires, boulangerie, commerce et supermarché. Autoroute A84 et nationales N13 et N814 à 6 km. Caen à 9 km.Cette maison de 5 pièces est proposée à l’achat pour 227 000 €.Contactez notre agence (HUE Emilie : (Numéro supprimé)) pour tout renseignement sur la maison de plain-pied, sur les démarches à suivre ou sur les modalités de vente. Maisons France Confort Bayeux vous accompagne à toutes les étapes de l’achat et dans tous vos projets immobiliers.Annonce proposée par un Agent Commercial Partenaire.
Thue et Mue
TERRAIN ET MAISONVENTE d’une maison F7 (124 m²) à Saint-Manvieu-NorreyIdéalement située – À Saint-Manvieu-Norrey (14740), maison neuve en vente de 7 pièces, 2 niveaux, 124 m² et 321 m² de terrain. Elle offre cinq chambres, une cuisine et trois salles de bains.Proche gares (Bretteville-Norrey, Saint-Germain-en-Laye Bel-Air-Fourqueux T13 et Audrieu), établissements scolaires, boulangerie, commerce et supermarché. Accès autoroute A84 et nationales N13 et N814 à 6 km. Caen à 9 km.Cette maison de 7 pièces est à vendre pour la somme de 262 000 €.Prenez contact avec notre agence (Emilie HUE : (Numéro supprimé)) pour toute information sur la maison, sur les démarches à suivre ou sur les modalités de vente. Maisons France Confort Bayeux est là pour vous accompagner dans tous vos projets immobiliers.Annonce proposée par un Agent Commercial Partenaire.
Thue et Mue
TERRAIN ET MAISONMaison de 7 pièces (124 m²) à vendre à Saint-Manvieu-NorreyIdéalement située – À découvrir à Saint-Manvieu-Norrey (14740) : maison neuve 7 pièces à vendre. 2 niveaux, surface de 124 m² et 321 m² de terrain. Elle dispose de cinq chambres, d’une cuisine et de trois salles de bains.Proche gares (Bretteville-Norrey, Saint-Germain-en-Laye Bel-Air-Fourqueux T13 et Audrieu), établissements scolaires, boulangerie, commerce et supermarché. Autoroute A84 et nationales N13 et N814 accessibles à 6 km. Caen à 9 km.Cette maison de 7 pièces est proposée à l’achat pour 262 000 €.Contactez notre agence (Emilie HUE : (Numéro supprimé)) pour obtenir de plus amples informations sur la maison. Donnez vie à vos projets immobiliers avec Maisons France Confort Bayeux.Annonce proposée par un Agent Commercial Partenaire.
Thue et Mue
TERRAIN ET MAISONMaison de 5 pièces (85 m²) en vente à Saint-Manvieu-NorreyIdéalement située – Maison neuve 5 pièces à vendre à Saint-Manvieu-Norrey (14740) avec 2 niveaux, une surface de 85 m² et de 321 m² de terrain. Son intérieur propose trois chambres, une cuisine et une salle de bains.Proche gares (Bretteville-Norrey, Saint-Germain-en-Laye Bel-Air-Fourqueux T13 et Audrieu), établissements scolaires, boulangerie, commerce et supermarché. Autoroute A84 et nationales N13 et N814 accessibles à 6 km. Caen à 9 km.Le prix de vente de cette maison de 5 pièces est de 217 000 €.Contactez Emilie HUE ((Numéro supprimé)) pour plus d’informations sur la maison ou sur les modalités de vente.Annonce proposée par un Agent Commercial Partenaire.
Carcagny
TERRAIN ET MAISONVENTE : maison F5 (85 m²) à Saint-Manvieu-NorreyIdéalement située – À découvrir à Saint-Manvieu-Norrey (14740) : maison neuve 5 pièces à vendre. 2 niveaux, surface de 85 m² sur 321 m² de terrain. Son intérieur inclut trois chambres, une cuisine et une salle de bains.À dix minutes : gares (Bretteville-Norrey, Saint-Germain-en-Laye Bel-Air-Fourqueux T13 et Audrieu), établissements scolaires, boulangerie, commerce et supermarché. Autoroute A84 et nationales N13 et N814 accessibles à 6 km. Caen à 9 km.Cette maison de 5 pièces est proposée à l’achat pour 217 000 €.N’hésitez pas à prendre contact avec notre agence (Emilie HUE : (Numéro supprimé)) pour toute question sur la maison ou sur les démarches à suivre. Maisons France Confort Bayeux vous accompagne dans tous vos projets immobiliers et dans toutes vos démarches.Annonce proposée par un Agent Commercial Partenaire.
L’actualité immobilière à Condé-sur-Seulles
27/11/2023
02/11/2023
30/10/2023
20/10/2023
16/10/2023
16/10/2023