Maison à construire à Émiéville (14630)
Images
Description
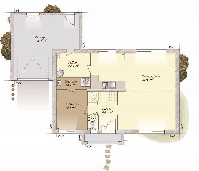
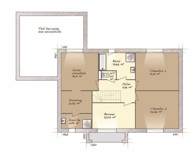
VENTE : maison T7 (160 m²) à Émiéville
MAISON 7 PIÈCES NEUVE - PROCHE DE CAEN
À vendre à 5 km de Troarn et 12 km du centre-ville de Caen, nous vous proposons cette maison de 7 pièces de 160 m² à Émiéville (14630).
Cette maison comporte 2 niveaux. Son intérieur inclut quatre chambres, une cuisine et deux salles de bains. Cette maison est à construire.
Le terrain du bien est de 570 m².
Proche des écoles, commerces et toutes commodités.
Commune desservie par les transports scolaires.
L'autoroute A13 et les nationales N814 et N158 sont accessibles à moins de 9 km.
Elle est à vendre pour la somme de 411 900 €.
Contactez notre agence (UCENDO Sophie : (Numéro supprimé)) pour tout renseignement sur cette maison. Faites de vos projets immobiliers une réalité avec Maisons Balency Caen.
Logement susceptibles de vous intéresser
Nous vous proposons de découvrir aussi cette sélection de logements situés à moins de 10km de Émiéville et qui seraient susceptibles de vous intéresser.
Giberville
TERRAIN ET MAISONMaison F5 (90 m²) en vente à GibervillePROCHE DE CAEN – MAISON 5 PIÈCES NEUVEÀ 5 km des plages de Merville Franceville et à 6 km de Caen, Maisons Balency Caen vous propose cette maison de 5 pièces de 90 m² en vente à Giberville (14730).Cette maison possède 2 niveaux. Elle inclut trois chambres, une cuisine et une salle de bains. Cette maison est neuve.Le terrain du bien est de 313 m².Le Collège Emile Zola est implanté à moins de 10 minutes à pied, tout comme une crèche. Niveau transports en commun, il y a deux gares (Caen et Frénouville-Cagny) à moins de 10 minutes en voiture. La commune est desservie par les bus de ville TWISTO. Il y a un accès à la nationale N814 à 1 km. On trouve une bibliothèque, deux boulangeries, deux commerces, un supermarché, un bureau de poste et une boucherie-charcuterie à quelques minutes.Son prix de vente est de 254 900 €.Contactez notre agence (UCENDO Sophie : (Numéro supprimé)) pour plus d’informations sur la maison ou sur les démarches à suivre.
Giberville
TERRAIN ET MAISONGiberville : maison de 5 pièces (90 m²) à vendreMAISON 5 PIÈCES NEUVE – PROCHE DE CAENEn vente à 15 km des plages de Merville Franceville et à 6 km de Caen, Maisons Balency Caen vous propose à Giberville (14730), cette maison de 5 pièces de plain-pied de 90 m².Conçue de plain-pied, elle se divise en trois chambres, une cuisine et une salle de bains. Cette maison est neuve.Le terrain de la propriété est de 313 m².Le Collège Emile Zola est implanté à moins de 10 minutes à pied, tout comme une crèche. Côté transports en commun, il y a deux gares (Caen et Frénouville-Cagny) à moins de 10 minutes en voiture. Il y a un accès à la nationale N814 à 1 km. La commune est desservie par les bus de ville TWISTO. On trouve une bibliothèque, deux boulangeries, deux commerces, un supermarché, une boucherie-charcuterie et un bureau de poste dans les environs.Elle est à vendre pour la somme de 226 900 €.Contactez notre agence (UCENDO Sophie : (Numéro supprimé)) pour plus de renseignements sur cette maison, sur les modalités de vente ou sur les démarches à suivre.
Giberville
TERRAIN ET MAISONVENTE : maison T4 (70 m²) à GibervillePROCHE DE CAEN – MAISON 4 PIÈCES NEUVEÀ vendre : située à 15 km des plages de Merville Franceville et à 6 km de Caen, nous sommes ravis de vous présenter à Giberville (14730), cette maison de 4 pièces de plain-pied de 70 m². Elle propose deux chambres, une cuisine et une salle de bains.Le terrain du bien s’étend sur 313 m².La maison est neuve.Le Collège Emile Zola se trouve à moins de 10 minutes à pied, tout comme une structure d’accueil pour les enfants en bas âge. Niveau transports en commun, il y a deux gares (Caen et Frénouville-Cagny) à moins de 10 minutes en voiture. La nationale N814 est accessible à 1 km. La commune est desservie par les bus de ville TWISTO. On trouve une bibliothèque, deux boulangeries, deux commerces, un supermarché, une boucherie-charcuterie et un bureau de poste dans les environs.Son prix de vente est de 221 900 €.Prenez contact avec Sophie UCENDO ((Numéro supprimé)) pour plus de renseignements sur cette maison ou sur les démarches à suivre.
Valambray
TERRAINTerrain de 264 m² à vendre à AiranPROCHE DE CAENTerrain de 264 m² à vendre à 19 km de Caen. Ce terrain se situe dans Airan (14370). L’École Primaire Edmone Robert est implantée à moins de 10 minutes à pied. Niveau transports en commun, il y a trois gares (Moult-Argences, Mézidon-Canon et Frénouville-Cagny) à moins de 10 minutes en voiture. L’autoroute A13 est accessible à 10 km. On trouve un tennis, une boulangerie et une boucherie-charcuterie à quelques minutes du bien.Son prix de vente est de 47 000 €. Prenez contact avec Céline VALLEE ((Numéro supprimé)) pour toute information sur ce terrain. Maisons France Confort Caen vous accompagne à toutes les étapes de votre projet et dans tous vos projets immobiliers.
Valambray
TERRAIN ET MAISONVENTE d’une maison T3 (60 m²) à AiranPROCHE DE CAEN – MAISON 3 PIÈCES NEUVEÀ deux pas de Caen, votre agence Maisons France Confort Caen est ravie de vous présenter cette maison de 3 pièces de plain-pied de 60 m² et de 264 m² de terrain à Airan (14370).Conçue de plain-pied, elle propose une chambre, une cuisine et une salle de bains. Cette maison est neuve.Il y a l’École Primaire Edmone Robert à moins de 10 minutes à pied. Niveau transports, on trouve trois gares (Moult-Argences, Mézidon-Canon et Frénouville-Cagny) à moins de 10 minutes en voiture. L’autoroute A13 est accessible à 10 km. Il y a un tennis, une boulangerie et une boucherie-charcuterie à proximité de la maison.Elle est proposée à l’achat pour 210 722 €.Prenez contact avec notre constructeur (Céline VALLEE : (Numéro supprimé)) pour tout renseignement sur la maison, sur les démarches à suivre ou sur les modalités de vente.
Valambray
TERRAIN ET MAISONMaison de 5 pièces (80 m²) à vendre à AiranPROCHE DE CAEN – MAISON 5 PIÈCES NEUVEÀ vendre : à 19 km de Caen, à Airan (14370), Maisons France Confort Caen vous propose cette maison de 5 pièces de plain-pied de 80 m² et de 264 m² de terrain.Conçue de plain-pied, elle inclut trois chambres, une cuisine et une salle de bains. Cette maison est neuve.L’École Primaire Edmone Robert est implantée à moins de 10 minutes à pied. Niveau transports, on trouve les gares Moult-Argences, Mézidon-Canon et Frénouville-Cagny à moins de 10 minutes en voiture. L’autoroute A13 est accessible à 10 km. Il y a un tennis, une boulangerie et une boucherie-charcuterie à quelques minutes du logement.Elle est à vendre pour la somme de 216 796 €.Contactez Céline VALLEE ((Numéro supprimé)) pour toute information sur cette maison.
Frénouville
TERRAINFrénouville : terrain de 385 m² en venteIDÉALEMENT SITUÉ – VUE SANS VIS-À-VISÀ Frénouville (14630) à 16 km de la Manche et à deux pas de Caen, découvrez ce terrain de 385 m². Ce terrain, avec une exposition sud, profite d’une vue sans vis-à-vis. Dans un secteur recherché, le terrain idéalement situé est proche des écoles et des commerces. L’École Primaire Docteur Derrien se trouve à moins de 10 minutes à pied. Côté transports en commun, il y a les gares Frénouville-Cagny, Moult-Argences et Caen à moins de 10 minutes en voiture. L’autoroute A13 et les nationales N814 et N158 sont accessibles à moins de 6 km. On trouve un tennis, deux boulangeries et trois commerces dans les environs.Son prix de vente est de 81 500 €. N’hésitez pas à prendre contact avec notre agence (Kevin DUCHESNE : (Numéro supprimé)) pour obtenir de plus amples informations sur le terrain, sur les démarches à suivre ou sur les modalités de vente. Maisons France Confort Caen est là pour vous accompagner dans tous vos projets immobiliers.
Frénouville
TERRAIN ET MAISONFrénouville : maison de 6 pièces (100 m²) en venteIDÉALEMENT SITUÉE – VUE SANS VIS-À-VISÀ 16 km de la Manche et à quelques kilomètres de Caen, en vente idéalement située dans Frénouville (14630), nous sommes heureux de vous présenter cette maison de 6 pièces de 100 m² sans vis-à-vis.Cette maison comporte 2 niveaux. Elle dispose de quatre chambres, d’une cuisine et d’une salle de bains. La maison est neuve.Le terrain du bien s’étend sur 385 m².Cette maison se situe dans un quartier recherché. On trouve l’École Primaire Docteur Derrien à moins de 10 minutes à pied. Côté transports en commun, il y a trois gares (Frénouville-Cagny, Moult-Argences et Caen) à moins de 10 minutes en voiture. L’autoroute A13 et les nationales N814 et N158 sont accessibles à moins de 6 km. On trouve un tennis, deux boulangeries et trois commerces à quelques minutes.Elle est à vendre pour la somme de 289 000 €.N’hésitez pas à prendre contact avec notre agence (Kevin DUCHESNE : (Numéro supprimé)) pour obtenir de plus amples renseignements sur la maison ou sur les modalités de vente. Maisons France Confort Caen vous accompagne dans toutes vos démarches et à toutes les étapes de votre projet.
Frénouville
TERRAIN ET MAISONVENTE : maison de 5 pièces (89 m²) à FrénouvilleIDÉALEMENT SITUÉE – MAISON 5 PIÈCES NEUVEÀ vendre : à 16 km de la Manche et à quelques kilomètres de Caen, votre agence Maisons France Confort Caen est heureuse de vous proposer cette maison de 5 pièces de plain-pied de 89 m² idéalement située dans Frénouville (14630).Conçue de plain-pied, elle est composée de trois chambres, d’une cuisine et d’une salle de bains. La maison est neuve.Le terrain du bien s’étend sur 385 m².Ce bien est situé dans un quartier recherché. On trouve l’École Primaire Docteur Derrien à moins de 10 minutes à pied. Côté transports en commun, il y a les gares Frénouville-Cagny, Moult-Argences et Caen à moins de 10 minutes en voiture. L’autoroute A13 et les nationales N814 et N158 sont accessibles à moins de 6 km. On trouve un tennis, deux boulangeries et trois commerces à quelques minutes.Il est à vendre pour la somme de 289 000 €.Contactez Kevin DUCHESNE (tél : (Numéro supprimé)) pour plus d’informations sur la maison ou sur les démarches à suivre.
L’actualité immobilière à Émiéville
27/11/2023
02/11/2023
30/10/2023
20/10/2023
16/10/2023
16/10/2023