Maison à construire à Évrecy (14210)
Images
Description
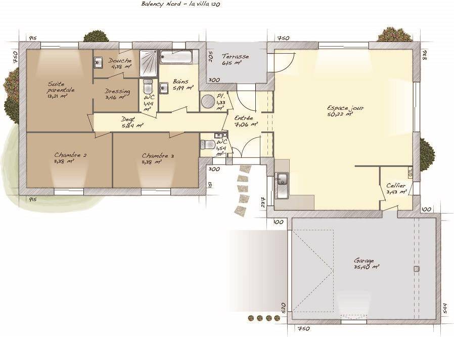
Maison T5 (120 m²) en vente à Évrecy
MAISON 5 PIÈCES NEUVE - PROCHE DE CAEN
À vendre : à 28 km de la mer et à 15 kilomètres seulement du centre-ville de Caen, à Évrecy (14210), découvrez cette maison de 5 pièces de plain-pied de 120 m².
Conçue de plain-pied, elle dispose de trois chambres, d'une cuisine et de deux salles de bains. La maison est neuve.
Le terrain du bien s'étend sur 520 m².
Trois établissements scolaires sont implantés à moins de 10 minutes à pied, parmi lesquels le Collège Paul Verlaine, tout comme une crèche. L'autoroute A84 et la nationale N814 sont accessibles à moins de 9 km. La commune est desservie par le réseau de bus NOMAD.
Il y a un gymnase omnisport, une bibliothèque, des commerces, deux boulangeries et un bureau de poste à quelques minutes à peine.
Elle est proposée à l'achat pour 366 900 €.
Contactez notre agence (UCENDO Sophie : (Numéro supprimé)) pour toute information sur cette maison, sur les démarches à suivre ou sur les modalités de vente. Concrétisez vos projets immobiliers avec Maisons Balency Caen.
Logement susceptibles de vous intéresser
Nous vous proposons de découvrir aussi cette sélection de logements situés à moins de 10km de Évrecy et qui seraient susceptibles de vous intéresser.
Mouen
TERRAINVENTE : terrain de 316 m² à MouenIDÉALEMENT SITUÉ – VUE SANS VIS-À-VISÀ Mouen (14790) en vente à 22 km de la Manche et à deux pas de Caen, découvrez ce terrain de 316 m². Ce terrain, sans vis-à-vis, est exposé plein sud. Il est situé dans un quartier prisé. Il y a l’École Élémentaire Pierre Herbet Mouen et l’École Maternelle Pierre Herbet Mouen à moins de 10 minutes à pied. Niveau transports en commun, on trouve deux gares (Bretteville-Norrey et Saint-Germain-en-Laye Bel-Air-Fourqueux T13) à moins de 10 minutes en voiture. L’autoroute A84 et les nationales N814 et N13 sont accessibles à moins de 6 km. Il y a une bibliothèque, une boulangerie et un commerce dans les environs.Son prix de vente est de 59 000 €. N’hésitez pas à prendre contact avec notre agence (Kevin DUCHESNE : (Numéro supprimé)) pour tout renseignement sur le terrain ou sur les démarches à suivre. Faites de vos projets immobiliers une réalité avec Maisons France Confort Caen.
Mouen
TERRAIN ET MAISONVENTE d’une maison T3 (76 m²) à MouenIDÉALEMENT SITUÉE – MAISON 3 PIÈCES NEUVEÀ 22 km de la Manche et à deux pas de Caen, en vente idéalement située dans Mouen (14790), Maisons France Confort Caen vous présente cette maison de 3 pièces de plain-pied de 76 m².Son intérieur inclut trois chambres, une cuisine et trois salles de bains. La maison est neuve.Le terrain de la propriété s’étend sur 316 m².Le bien est situé dans un secteur prisé. L’École Élémentaire Pierre Herbet Mouen et l’École Maternelle Pierre Herbet Mouen sont implantées à moins de 10 minutes à pied. Côté transports, on trouve deux gares (Bretteville-Norrey et Saint-Germain-en-Laye Bel-Air-Fourqueux T13) à moins de 10 minutes en voiture. L’autoroute A84 et les nationales N814 et N13 sont accessibles à moins de 6 km. Il y a une bibliothèque, une boulangerie et un commerce à proximité.Son prix de vente est de 229 000 €.Contactez Kevin DUCHESNE ((Numéro supprimé)) pour toute question sur la maison. Maisons France Confort Caen est là pour vous accompagner dans tous vos projets immobiliers.
Mouen
TERRAIN ET MAISONMaison de 4 pièces (82 m²) à vendre à MouenIDÉALEMENT SITUÉE – MAISON 4 PIÈCES NEUVEÀ vendre : à 22 km de la Manche et à deux pas de Caen, venez découvrir cette maison de 4 pièces de 82 m² et de 316 m² de terrain idéalement située dans Mouen (14790).C’est une maison de 2 niveaux. Elle inclut trois chambres, une cuisine et une salle de bains. Cette maison est neuve.La maison est située dans un secteur convoité. Il y a l’École Élémentaire Pierre Herbet Mouen et l’École Maternelle Pierre Herbet Mouen à moins de 10 minutes à pied. Côté transports en commun, on trouve deux gares (Bretteville-Norrey et Saint-Germain-en-Laye Bel-Air-Fourqueux T13) à moins de 10 minutes en voiture. L’autoroute A84 et les nationales N814 et N13 sont accessibles à moins de 6 km. Il y a une bibliothèque, une boulangerie et un commerce dans les environs.Son prix de vente est de 249 000 €.Contactez Kevin DUCHESNE (tél : (Numéro supprimé)) pour tout renseignement sur la propriété, sur les démarches à suivre ou sur les modalités de vente.
Mouen
TERRAIN ET MAISONMouen : maison F4 (70 m²) en venteIDÉALEMENT SITUÉE – MAISON 4 PIÈCES NEUVEÀ vendre : localisée à 22 km de la Manche et à deux pas de Caen, Maisons France Confort Caen vous propose cette maison de 4 pièces de plain-pied de 70 m² idéalement située dans Mouen (14790). Conçue de plain-pied, elle est composée de deux chambres, d’une cuisine et d’une salle de bains.Le terrain de la propriété est de 316 m².Cette maison est neuve.La maison se situe dans un secteur prisé. On trouve l’École Élémentaire Pierre Herbet Mouen et l’École Maternelle Pierre Herbet Mouen à moins de 10 minutes à pied. Niveau transports en commun, il y a deux gares (Bretteville-Norrey et Saint-Germain-en-Laye Bel-Air-Fourqueux T13) à moins de 10 minutes en voiture. L’autoroute A84 et les nationales N814 et N13 sont accessibles à moins de 6 km. On trouve une bibliothèque, une boulangerie et un commerce à proximité du bien.Elle est à vendre pour la somme de 239 000 €.Contactez notre agence (DUCHESNE Kevin : (Numéro supprimé)) pour toute question sur la maison, sur les démarches à suivre ou sur les modalités de vente. Faites de vos projets immobiliers une réalité avec Maisons France Confort Caen.
Mouen
TERRAIN ET MAISONVENTE d’une maison F3 (71 m²) à MouenIDÉALEMENT SITUÉE – MAISON 3 PIÈCES NEUVEEn vente à 22 km de la Manche et à 9 km de Caen, nous vous proposons cette maison de 3 pièces de plain-pied de 71 m² et de 316 m² de terrain idéalement située dans Mouen (14790). Conçue de plain-pied, elle propose deux chambres, une cuisine et une salle de bains.Cette maison est neuve.Cette propriété est située dans un quartier recherché. L’École Élémentaire Pierre Herbet Mouen et l’École Maternelle Pierre Herbet Mouen sont implantées à moins de 10 minutes à pied. Côté transports, on trouve deux gares (Bretteville-Norrey et Saint-Germain-en-Laye Bel-Air-Fourqueux T13) à moins de 10 minutes en voiture. L’autoroute A84 et les nationales N814 et N13 sont accessibles à moins de 6 km. Il y a une bibliothèque, une boulangerie et un commerce à quelques minutes.Son prix de vente est de 225 600 €.Contactez notre agence (Kevin DUCHESNE : (Numéro supprimé)) pour toute information sur la maison ou sur les modalités de vente. Concrétisez vos projets immobiliers avec Maisons France Confort Caen.
Val d'Arry
TERRAINNoyers-Bocage : terrain de 390 m² en venteIdéalement situé – À vendre à Noyers-Bocage (14210) : terrain de 390 m².À proximité : gare (Bretteville-Norrey), École Primaire Noyers Bocage, bibliothèque, boulangerie, boucherie-charcuterie et épicerie. Accès autoroute A84 à 1 km. Manche à 25 km. Caen à 17 km.Il est à vendre pour la somme de 66 400 €. N’hésitez pas à prendre contact avec Emilie HUE ((Numéro supprimé)) pour plus de renseignements sur le terrain.Annonce proposée par un Agent Commercial Partenaire.
Val d'Arry
TERRAIN ET MAISONVENTE d’une maison de 5 pièces (110 m²) à Noyers-BocageIDÉALEMENT SITUÉE – MAISON 5 PIÈCES NEUVEÀ vendre : localisée à 25 km de la Manche et à quelques kilomètres de Caen, notre agence Maisons France Confort Bayeux est heureuse de vous proposer cette maison de 5 pièces de plain-pied de 110 m² idéalement située dans Noyers-Bocage (14210). Son intérieur comporte trois chambres, une cuisine et deux salles de bains.Le terrain de la propriété s’étend sur 390 m².Cette maison est neuve.La maison se situe dans un secteur convoité. On trouve l’École Primaire Noyers Bocage à moins de 10 minutes à pied. Côté transports, il y a la gare Bretteville-Norrey à moins de 10 minutes en voiture. L’autoroute A84 est accessible à 1 km. On trouve une bibliothèque, une boulangerie, une boucherie-charcuterie et une épicerie à proximité.Elle est proposée à l’achat pour 266 400 €.Contactez notre constructeur (HUE Emilie : (Numéro supprimé)) pour toute question sur la maison ou sur les démarches à suivre. Concrétisez vos projets immobiliers avec Maisons France Confort Bayeux.Annonce proposée par un Agent Commercial Partenaire.
Val d'Arry
TERRAIN ET MAISONMaison de 5 pièces (110 m²) à vendre à Noyers-BocageIDÉALEMENT SITUÉE – MAISON 5 PIÈCES NEUVEEn vente à 25 km de la Manche et à quelques kilomètres de Caen, nous vous proposons cette maison de 5 pièces de plain-pied de 110 m² et de 390 m² de terrain, idéalement située dans Noyers-Bocage (14210). Elle propose trois chambres, une cuisine et une salle de bains.La maison est neuve.Cette maison se situe dans un quartier convoité. L’École Primaire Noyers Bocage se trouve à moins de 10 minutes à pied. Niveau transports en commun, il y a la gare Bretteville-Norrey à moins de 10 minutes en voiture. On trouve un accès à l’autoroute A84 à 1 km. On trouve une bibliothèque, une boulangerie, une épicerie et une boucherie-charcuterie à quelques minutes du bien.Elle est à vendre pour la somme de 266 400 €.N’hésitez pas à prendre contact avec Emilie HUE ((Numéro supprimé)) pour tout renseignement sur la maison, sur les démarches à suivre ou sur les modalités de vente. Concrétisez vos projets immobiliers avec Maisons France Confort Bayeux.Annonce proposée par un Agent Commercial Partenaire.
Val d'Arry
TERRAIN ET MAISONVENTE d’une maison T5 (85 m²) à Noyers-BocageIDÉALEMENT SITUÉE – MAISON 5 PIÈCES NEUVEÀ vendre : localisée à 25 km de la Manche et à 17 km de Caen, nous vous proposons cette maison de 5 pièces de plain-pied de 85 m² et de 390 m² de terrain idéalement située dans Noyers-Bocage (14210).Elle offre trois chambres, une cuisine et une salle de bains. La maison est neuve.Cette maison se situe dans un quartier prisé. Il y a l’École Primaire Noyers Bocage à moins de 10 minutes à pied. Niveau transports, on trouve la gare Bretteville-Norrey à moins de 10 minutes en voiture. L’autoroute A84 est accessible à 1 km. Il y a une bibliothèque, une boulangerie, une boucherie-charcuterie et une épicerie dans les environs.Elle est proposée à l’achat pour 211 400 €.Contactez notre agence (HUE Emilie : (Numéro supprimé)) pour plus d’informations sur la maison ou sur les modalités de vente. Concrétisez vos projets immobiliers avec Maisons France Confort Bayeux.Annonce proposée par un Agent Commercial Partenaire.
L’actualité immobilière à Évrecy
27/11/2023
02/11/2023
30/10/2023
20/10/2023
16/10/2023
16/10/2023