Maison à construire à Grandcamp-Maisy (14450)
Images
Description
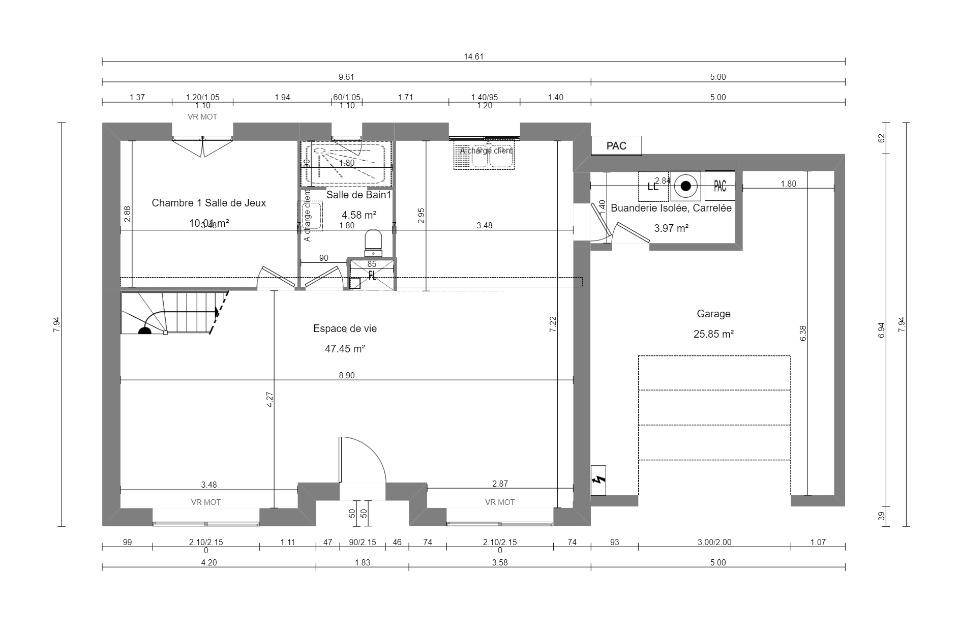
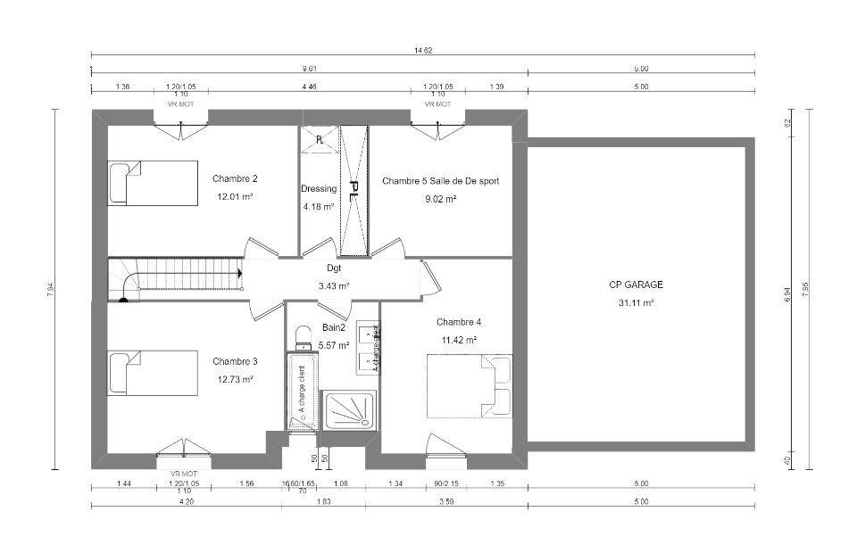
VENTE : maison de 7 pièces (120 m²) à Grandcamp-Maisy
MAISON 7 PIÈCES NEUVE
À vendre : située à 4 km de la Manche, à Grandcamp-Maisy (14450), notre agence Maisons France Confort Bayeux est ravie de vous proposer cette maison de 7 pièces de 120 m² et de 350 m² de terrain. Elle propose cinq chambres, une cuisine et deux salles de bains.
Il s'agit d'une maison de 2 niveaux. Elle est neuve.
Il y a l'École Primaire Jean Marion à moins de 10 minutes à pied. La nationale N13 est accessible à 6 km. On trouve un port de plaisance, deux tennis, des commerces, deux boulangeries, une poissonnerie, une boucherie-charcuterie et un bureau de poste à quelques minutes à peine.
Elle est à vendre pour la somme de 252 800 €.
N'hésitez pas à prendre contact avec notre agence (HUE Emilie : (Numéro supprimé)) pour plus de renseignements sur la maison, sur les modalités de vente ou sur les démarches à suivre. Maisons France Confort Bayeux vous accompagne dans tous vos projets immobiliers et à toutes les étapes de votre projet.
Annonce proposée par un Agent Commercial Partenaire.
Logement susceptibles de vous intéresser
Nous vous proposons de découvrir aussi cette sélection de logements situés à moins de 10km de Grandcamp-Maisy et qui seraient susceptibles de vous intéresser.
Longueville
TERRAIN ET MAISONVENTE : maison T5 (85 m²) à LonguevilleIDÉALEMENT SITUÉE – MAISON 5 PIÈCES NEUVEEn vente : à 7 km de la Manche, idéalement située dans Longueville (14230), nous sommes heureux de vous présenter cette maison de 5 pièces de plain-pied de 85 m².Conçue de plain-pied, elle inclut trois chambres, une cuisine et une salle de bains. Cette maison est neuve.Le terrain de la propriété est de 520 m².Cette maison se situe dans un secteur prisé. Il y a un accès à la nationale N13 à 1 km.Elle est à vendre pour la somme de 175 000 €.Contactez Emilie HUE ((Numéro supprimé)) pour toute question sur la propriété. Maisons France Confort Bayeux vous accompagne à toutes les étapes de l’achat et dans toutes vos démarches.Annonce proposée par un Agent Commercial Partenaire.
Longueville
TERRAIN ET MAISONVENTE d’une maison T5 (95 m²) à LonguevilleIDÉALEMENT SITUÉE – MAISON 5 PIÈCES NEUVEEn vente : située à 7 km de la Manche, Maisons France Confort Bayeux vous présente cette maison de 5 pièces de plain-pied de 95 m², idéalement située dans Longueville (14230).Elle offre trois chambres, une cuisine et deux salles de bains. Cette maison est neuve.Le terrain de la propriété est de 520 m².La propriété se situe dans un secteur prisé. La nationale N13 est accessible à 1 km.Elle est à vendre pour la somme de 185 000 €.N’hésitez pas à prendre contact avec notre agence (HUE Emilie : (Numéro supprimé)) pour tout renseignement sur la maison, sur les démarches à suivre ou sur les modalités de vente. Maisons France Confort Bayeux vous accompagne à toutes les étapes de votre projet et dans tous vos projets immobiliers.Annonce proposée par un Agent Commercial Partenaire.
Longueville
TERRAIN ET MAISONLongueville : maison de 7 pièces (120 m²) en venteIDÉALEMENT SITUÉE – MAISON 7 PIÈCES NEUVEÀ vendre : à 7 km de la Manche, découvrez cette maison de 7 pièces de 120 m² et de 520 m² de terrain idéalement située dans Longueville (14230). Elle compte cinq chambres, une cuisine et deux salles de bains.Il s’agit d’une maison de 2 niveaux. Elle est neuve.Ce bien se situe dans un secteur recherché. Il y a un accès à la nationale N13 à 1 km.Il est à vendre pour la somme de 230 000 €.Prenez contact avec Emilie HUE ((Numéro supprimé)) pour obtenir de plus amples informations sur la maison. Concrétisez vos projets immobiliers avec Maisons France Confort Bayeux.Annonce proposée par un Agent Commercial Partenaire.
Longueville
TERRAIN ET MAISONMaison de 6 pièces (140 m²) en vente à LonguevilleIDÉALEMENT SITUÉE – MAISON 6 PIÈCES NEUVEÀ vendre : située à 7 km de la Manche, Maisons France Confort Bayeux vous présente cette maison de 6 pièces de 140 m² idéalement située dans Longueville (14230).Cette maison comporte 2 niveaux. Son intérieur est composé de quatre chambres, d’une cuisine et de deux salles de bains. La maison est neuve.Le terrain de la propriété est de 520 m².Cette maison est située dans un secteur recherché. On trouve un accès à la nationale N13 à 1 km.Elle est proposée à l’achat pour 260 000 €.Contactez notre agence (HUE Emilie : (Numéro supprimé)) pour toute information sur la maison, sur les modalités de vente ou sur les démarches à suivre.Annonce proposée par un Agent Commercial Partenaire.
Longueville
TERRAIN ET MAISONLongueville : maison T6 (130 m²) à vendreIDÉALEMENT SITUÉE – MAISON 6 PIÈCES NEUVEEn vente : à 7 km de la Manche, Maisons France Confort Bayeux vous présente cette maison de 6 pièces de 130 m² et de 520 m² de terrain idéalement située dans Longueville (14230).C’est une maison de 2 niveaux. Son intérieur est composé de quatre chambres, d’une cuisine et de deux salles de bains. Cette maison est neuve.Cette maison se situe dans un quartier recherché. La nationale N13 est accessible à 1 km.Son prix de vente est de 310 000 €.Contactez notre agence (Emilie HUE : (Numéro supprimé)) pour obtenir de plus amples informations sur la maison. Maisons France Confort Bayeux vous accompagne à toutes les étapes de l’achat et dans tous vos projets immobiliers.Annonce proposée par un Agent Commercial Partenaire.
Longueville
TERRAIN ET MAISONVENTE : maison de 6 pièces (110 m²) à LonguevilleIDÉALEMENT SITUÉE – MAISON 6 PIÈCES NEUVEEn vente à 7 km de la Manche, idéalement située dans Longueville (14230), découvrez cette maison de 6 pièces de 110 m² et de 520 m² de terrain.Cette maison compte 2 niveaux. Elle propose quatre chambres, une cuisine et deux salles de bains. Cette maison est neuve.La maison se trouve dans un secteur convoité. La nationale N13 est accessible à 1 km.Elle est proposée à l’achat pour 195 000 €.N’hésitez pas à prendre contact avec notre agence (HUE Emilie : (Numéro supprimé)) pour toute question sur la propriété. Donnez vie à vos projets immobiliers avec Maisons France Confort Bayeux.Annonce proposée par un Agent Commercial Partenaire.
Longueville
TERRAIN ET MAISONLongueville : maison F5 (90 m²) à vendreIDÉALEMENT SITUÉE – MAISON 5 PIÈCES NEUVEEn vente : localisée à 7 km de la Manche, nous sommes heureux de vous présenter cette maison de 5 pièces de 90 m² idéalement située dans Longueville (14230).Il s’agit d’une maison de 2 niveaux. Son intérieur se divise en quatre chambres, une cuisine et deux salles de bains. Cette maison est neuve.Le terrain du bien s’étend sur 520 m².Cette maison se trouve dans un secteur attractif. On trouve un accès à la nationale N13 à 1 km.Son prix de vente est de 180 000 €.Contactez notre agence (Emilie HUE : (Numéro supprimé)) pour plus de renseignements sur la maison et sur les modalités de vente. Maisons France Confort Bayeux est là pour vous accompagner dans tous vos projets immobiliers.Annonce proposée par un Agent Commercial Partenaire.
Longueville
TERRAIN ET MAISONVENTE d’une maison F5 (85 m²) à LonguevilleIDÉALEMENT SITUÉE – MAISON 5 PIÈCES NEUVEÀ vendre : située à 7 km de la Manche, nous vous proposons, idéalement située dans Longueville (14230), cette maison de 5 pièces de 85 m².Cette maison comporte 2 niveaux. Son intérieur dispose de trois chambres, d’une cuisine et d’une salle de bains. Cette maison est neuve.Le terrain de la propriété s’étend sur 520 m².La maison se trouve dans un quartier recherché. La nationale N13 est accessible à 1 km.Elle est à vendre pour la somme de 175 000 €.Contactez notre agence (Emilie HUE : (Numéro supprimé)) pour toute information sur la propriété.Annonce proposée par un Agent Commercial Partenaire.
Longueville
TERRAINTerrain de 520 m² à vendre à LonguevilleIdéalement situé – Réalisez votre projet sur ce terrain de 520 m² en vente à Longueville (14230).Proche écoles. Accès nationale N13 à 1 km. Manche à 7 km.Il est proposé à l’achat pour 30 000 €. N’hésitez pas à prendre contact avec notre agence (Emilie HUE : (Numéro supprimé)) pour toute question sur le terrain, sur les modalités de vente et sur les démarches à suivre. Donnez vie à vos projets immobiliers avec Maisons France Confort Bayeux.Annonce proposée par un Agent Commercial Partenaire.
L’actualité immobilière à Grandcamp-Maisy
27/11/2023
02/11/2023
30/10/2023
20/10/2023
16/10/2023
16/10/2023