Maison à construire à Le Breuil-en-Auge (14130)
Images
Description
OSSATURE BOIS
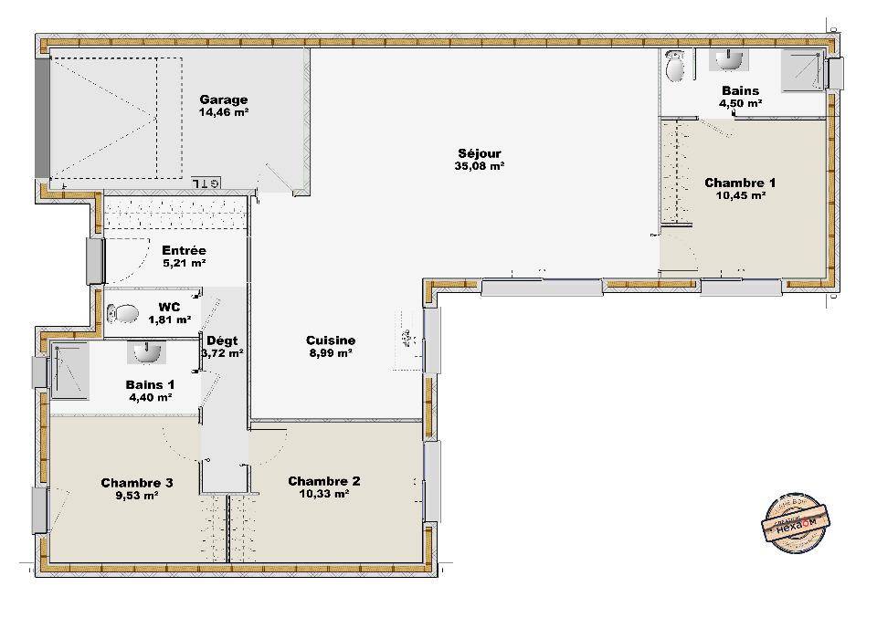
VENTE : maison de 4 pièces (94 m²) au Breuil-en-Auge
IDÉALEMENT SITUÉE - MAISON 4 PIÈCES NEUVE
À vendre idéalement située dans Le Breuil-en-Auge (14130), votre agence EXTRACO Construction Rénovation Pont-l'Évêque est heureuse de vous présenter cette maison de 4 pièces de plain-pied de 94 m². Conçue de plain-pied, elle se divise en trois chambres, une cuisine et deux salles de bains.
Le terrain de la propriété s'étend sur 848 m².
Cette maison est neuve.
La propriété est située dans un quartier recherché. Une école primaire y est implantée. Niveau transports, on trouve les gares Pont-l'Évêque, Le Grand Jardin et Lisieux à moins de 10 minutes en voiture. Les autoroutes A13 et A132 sont accessibles à moins de 8 km. Il y a une boulangerie et une épicerie dans les environs.
Elle est à vendre pour la somme de 296 800 €.
N'hésitez pas à prendre contact avec Angélique CUVILLIERS (tél : (Numéro supprimé)) pour tout renseignement sur la maison ou sur les démarches à suivre.
EXTRACO Construction Rénovation Pont-l'Évêque vous accompagne dans tous vos projets immobiliers et à toutes les étapes de votre projet.
Logement susceptibles de vous intéresser
Nous vous proposons de découvrir aussi cette sélection de logements situés à moins de 10km de Le Breuil-en-Auge et qui seraient susceptibles de vous intéresser.
Saint-Hymer
TERRAIN ET MAISONVENTE : maison de 5 pièces (105 m²) à Saint-HymerMAISON 5 PIÈCES NEUVE – PROCHE DU HAVREÀ vendre à 16 km de la Manche et à quelques kilomètres du Havre, nous sommes heureux de vous présenter cette maison de 5 pièces de plain-pied de 105 m² à Saint-Hymer (14130).Conçue de plain-pied, elle est composée de quatre chambres, d’une cuisine et d’une salle de bains. La maison est neuve.Le terrain du bien s’étend sur 664 m².Il y a plusieurs écoles (maternelle, élémentaire, primaire et collège) à moins de 10 minutes en voiture. Côté transports en commun, on trouve la gare Pont-l’Évêque à proximité. Les autoroutes A13 et A132 sont accessibles à moins de 5 km. Il y a trois bibliothèques, quatre tennis, des commerces, des boulangeries, quatre supermarchés, des épiceries et des boucheries-charcuteries dans les environs. Le marché Place Foch anime les environs tous les lundis matin.Elle est proposée à l’achat pour 236 000 €.Contactez Marion PAIN (tél : (Numéro supprimé)) pour toute question sur cette maison, sur les modalités de vente et sur les démarches à suivre. Faites de vos projets immobiliers une réalité avec Extraco construction rénovation Pont-l’Évêque.
Saint-Hymer
TERRAIN ET MAISONMaison de 6 pièces (118 m²) en vente à Saint-HymerQUARTIER RECHERCHÉ – MAISON 6 PIÈCES NEUVEEn vente : à 16 km de la Manche et à quelques kilomètres du Havre, dans un quartier prisé de Saint-Hymer (14130), notre agence Extraco construction rénovation Pont-l’Évêque est heureuse de vous proposer cette maison de 6 pièces de 118 m² et de 704 m² de terrain. Elle inclut quatre chambres, une cuisine et deux salles de bains.Cette maison comporte 2 niveaux. Elle est neuve.La maison est située dans un secteur recherché. Plusieurs établissements scolaires (maternelle, élémentaire, primaire et collège) se trouvent à moins de 10 minutes en voiture. Côté transports, il y a la gare Pont-l’Évêque dans un rayon de 10 km. Les autoroutes A13 et A132 sont accessibles à moins de 5 km. On trouve trois bibliothèques, quatre tennis, des commerces, des boulangeries, quatre supermarchés, un bureau de poste et des épiceries à proximité. Ne manquez pas le marché Place Foch chaque lundi matin.Elle est à vendre pour la somme de 321 000 €.Prenez contact avec Marion PAIN (tél : (Numéro supprimé)) pour toute information sur la maison, sur les démarches à suivre ou sur les modalités de vente. Extraco construction rénovation Pont-l’Évêque vous accompagne dans tous vos projets immobiliers et à toutes les étapes de votre projet.
Le Breuil-en-Auge
TERRAIN ET MAISONLe Breuil-en-Auge : maison F5 (105 m²) en venteMAISON 5 PIÈCES NEUVE – PROCHE DU HAVREEXTRACO Construction Rénovation Pont-l’Évêque vous présente cette maison de 5 pièces de 105 m² au Breuil-en-Auge (14130).C’est une maison de 2 niveaux. Son intérieur inclut quatre chambres, une cuisine et deux salles de bains. Cette maison est neuve.Le terrain de la propriété s’étend sur 501 m².Une école primaire est implantée dans le quartier. Niveau transports en commun, il y a trois gares (Pont-l’Évêque, Le Grand Jardin et Lisieux) à moins de 10 minutes en voiture. Les autoroutes A13 et A132 sont accessibles à moins de 8 km. On trouve une boulangerie et une épicerie dans les environs.Elle est à vendre pour la somme de 249 900 €.Contactez notre agence (Angélique CUVILLIERS : (Numéro supprimé)) pour obtenir de plus amples informations sur la maison, sur les démarches à suivre ou sur les modalités de vente.
Saint-Hymer
TERRAINVENTE : terrain de 664 m² à Saint-HymerPROCHE DU HAVREGrand terrain en vente à 16 km de la Manche et à quelques kilomètres du Havre. De 664 m², ce terrain se situe dans Saint-Hymer (14130). Ce terrain est proche des écoles et des commerces. Plusieurs écoles (maternelle, élémentaire, primaire et collège) sont implantées à moins de 10 minutes en voiture. Côté transports, il y a la gare Pont-l’Évêque à proximité. Les autoroutes A13 et A132 sont accessibles à moins de 5 km. On trouve trois bibliothèques, quatre tennis, des commerces, des boulangeries, quatre supermarchés, deux supérettes et des boucheries-charcuteries à quelques minutes. Le marché Place Foch anime les environs chaque lundi matin.Ce terrain est à vendre pour la somme de 86 000 €. Prenez contact avec notre agence (PAIN Marion : (Numéro supprimé)) pour obtenir de plus amples renseignements sur le terrain ou sur les démarches à suivre.
Saint-Hymer
TERRAIN ET MAISONVENTE d’une maison de 4 pièces (94 m²) à Saint-HymerMAISON 4 PIÈCES NEUVE – PROCHE DU HAVREÀ 16 km de la Manche et à deux pas du Havre, Extraco construction rénovation Pont-l’Évêque vous présente cette maison de 4 pièces de plain-pied de 94 m² et de 664 m² de terrain à Saint-Hymer (14130). Conçue de plain-pied, elle offre trois chambres, une cuisine et deux salles de bains.La maison est neuve.Il y a plusieurs écoles (maternelle, élémentaire, primaire et collège) à moins de 10 minutes en voiture. Niveau transports, on trouve la gare Pont-l’Évêque dans les environs. Les autoroutes A13 et A132 sont accessibles à moins de 5 km. Il y a trois bibliothèques, quatre tennis, des commerces, des boulangeries, quatre supermarchés, une poissonnerie et un bureau de poste à proximité du bien. Enfin, le marché Place Foch a lieu chaque lundi matin.Elle est à vendre pour la somme de 284 000 €.Contactez Marion PAIN (tél : (Numéro supprimé)) pour tout renseignement sur cette maison ou sur les démarches à suivre.
Saint-Hymer
TERRAIN ET MAISONVENTE d’une maison F6 (118 m²) à Saint-HymerMAISON 6 PIÈCES NEUVE – PROCHE DU HAVREÀ vendre : localisée à 16 km de la Manche et à deux pas du Havre, à Saint-Hymer (14130), votre agence Extraco construction rénovation Pont-l’Évêque est heureuse de vous présenter cette maison de 6 pièces de 118 m² et de 664 m² de terrain.C’est une maison de 2 niveaux. Son intérieur propose quatre chambres, une cuisine et deux salles de bains. La maison est neuve.Plusieurs établissements scolaires (maternelle, élémentaire, primaire et collège) sont implantés à moins de 10 minutes en voiture. Niveau transports, on trouve la gare Pont-l’Évêque dans un rayon de 10 km. Les autoroutes A13 et A132 sont accessibles à moins de 5 km. Il y a trois bibliothèques, quatre tennis, des commerces, des boulangeries, quatre supermarchés, des boucheries-charcuteries et des épiceries à quelques minutes de la maison. Le marché Place Foch a lieu tous les lundis matin.Elle est à vendre pour la somme de 322 000 €.N’hésitez pas à prendre contact avec Marion PAIN (tél : (Numéro supprimé)) pour tout renseignement sur le bien.
Saint-Hymer
TERRAIN ET MAISONMaison de 4 pièces (85 m²) en vente à Saint-HymerMAISON 4 PIÈCES NEUVE – PROCHE DU HAVREÀ vendre : à 16 km de la Manche et à quelques kilomètres du Havre, à Saint-Hymer (14130), Les Maisons Extraco Pont-l’Évêque vous propose cette maison de 4 pièces de plain-pied de 85 m². Elle se divise en trois chambres, une cuisine et une salle de bains.Le terrain du bien est de 664 m².La maison est neuve.Plusieurs établissements scolaires (maternelle, élémentaire, primaire et collège) sont implantés à moins de 10 minutes en voiture. Côté transports, on trouve la gare Pont-l’Évêque dans un rayon de 10 km. Les autoroutes A13 et A132 sont accessibles à moins de 5 km. Il y a trois bibliothèques, quatre tennis, des commerces, des boulangeries, quatre supermarchés, un bureau de poste et des boucheries-charcuteries dans les environs. Ne manquez pas le marché Place Foch chaque lundi matin.Elle est proposée à l’achat pour 247 000 €.N’hésitez pas à prendre contact avec notre agence (PAIN Marion : (Numéro supprimé)) pour obtenir de plus amples renseignements sur cette maison. Extraco construction rénovation Pont-l’Évêque vous accompagne à toutes les étapes de l’achat et dans toutes vos démarches.
Pont-l'Évêque
TERRAIN ET MAISONMaison de 5 pièces (105 m²) à vendre à Saint-Benoît-d’HébertotEMPLACEMENT PRIVILÉGIÉ – MAISON 5 PIÈCES NEUVEBénéficiant d’un emplacement d’exception dans Saint-Benoît-d’Hébertot (14130), nous vous proposons cette maison de 5 pièces de 105 m² et de 800 m² de terrain.Cette maison possède 2 niveaux. Son intérieur offre quatre chambres, une cuisine et deux salles de bains. Cette maison est neuve.La maison est située dans un quartier prisé. On y trouve une école primaire. Niveau transports, il y a la gare Pont-l’Évêque à moins de 10 minutes en voiture. Les autoroutes A13, A132 et A29 sont accessibles à moins de 7 km. On trouve deux commerces à quelques minutes du bien.Elle est proposée à l’achat pour 254 700 €.Contactez Angélique CUVILLIERS ((Numéro supprimé)) pour tout renseignement sur la maison, sur les modalités de vente ou sur les démarches à suivre. EXTRACO Construction Rénovation Pont-l’Évêque est là pour vous accompagner à toutes les étapes de l’achat.
Pont-l'Évêque
TERRAINVENTE : terrain de 800 m² à Saint-Benoît-d’HébertotEMPLACEMENT PRIVILÉGIÉ Grand terrain à vendre de 800 m², ce terrain se situe bénéficiant d’un emplacement d’exception dans Saint-Benoît-d’Hébertot (14130). Dans un quartier prisé, le terrain est proche des commerces et des écoles. Une école primaire est implantée dans le quartier. Côté transports, on trouve la gare Pont-l’Évêque à moins de 10 minutes en voiture. Les autoroutes A13, A132 et A29 sont accessibles à moins de 7 km. Il y a deux commerces à proximité.Ce terrain est proposé à l’achat pour 82 100 €. Contactez Angélique CUVILLIERS (tél : (Numéro supprimé)) pour toute information sur le terrain ou sur les modalités de vente.
L’actualité immobilière à Le Breuil-en-Auge
27/11/2023
02/11/2023
30/10/2023
20/10/2023
16/10/2023
16/10/2023