Maison à construire à Maisons (14400)
Images
Description
Bayeux : maison T6 (140 m²) à vendre
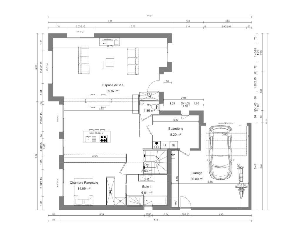
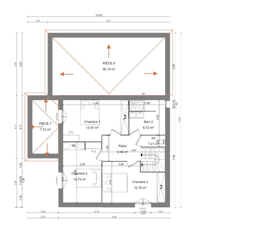
MAISON 6 PIÈCES NEUVE - PROCHE DE CAEN
À 9 km de la Manche et à quelques kilomètres de Caen, nous vous proposons cette maison de 6 pièces de 140 m² et de 301 m² de terrain en vente à Bayeux (14400).
C'est une maison de 2 niveaux. Son intérieur se divise en quatre chambres, une cuisine et deux salles de bains. La maison est neuve.
Des établissements scolaires de tous niveaux (de la maternelle au lycée) sont implantés à moins de 10 minutes à pied, tout comme une crèche. Niveau transports en commun, on trouve la gare Bayeux dans les alentours. On trouve un accès à la nationale N13 à 3 km. Il y a une bibliothèque, des commerces, des boulangeries, un supermarché, des boucheries-charcuteries et un bureau de poste à quelques minutes à peine. 2 marchés animent le quartier.
Elle est proposée à l'achat pour 286 000 €.
Prenez contact avec Emilie HUE (tél : (Numéro supprimé)) pour toute question sur ce bien, sur les démarches à suivre ou sur les modalités de vente. Maisons France Confort Bayeux vous accompagne dans tous vos projets immobiliers et dans toutes vos démarches.
Annonce proposée par un Agent Commercial Partenaire.
Logement susceptibles de vous intéresser
Nous vous proposons de découvrir aussi cette sélection de logements situés à moins de 10km de Maisons et qui seraient susceptibles de vous intéresser.
Bayeux
TERRAIN ET MAISONBayeux : maison de 5 pièces (110 m²) à vendrePROCHE DE CAEN – MAISON 5 PIÈCES NEUVEÀ 9 km de la Manche et à quelques kilomètres de Caen, nous sommes heureux de vous présenter cette maison de 5 pièces de plain-pied de 110 m² et de 303 m² de terrain à Bayeux (14400). Conçue de plain-pied, elle comporte trois chambres, une cuisine et deux salles de bains.La maison est neuve.On trouve des établissements scolaires de tous types à moins de 10 minutes à pied, tout comme une structure d’accueil pour les tout-petits. Niveau transports en commun, il y a la gare Bayeux dans un rayon de 1 km. La nationale N13 est accessible à 3 km. On trouve une bibliothèque, des commerces, des boulangeries, un supermarché, un bureau de poste et une supérette à proximité du bien. 2 marchés animent les environs.Elle est proposée à l’achat pour 256 000 €.N’hésitez pas à prendre contact avec notre agence (Emilie HUE : (Numéro supprimé)) pour tout renseignement sur cette maison. Faites de vos projets immobiliers une réalité avec Maisons France Confort Bayeux.Annonce proposée par un Agent Commercial Partenaire.
Bayeux
TERRAIN ET MAISONVENTE d’une maison de 5 pièces (110 m²) à BayeuxPROCHE DE CAEN – MAISON 5 PIÈCES NEUVEÀ 9 km de la Manche et à quelques kilomètres de Caen, en vente à Bayeux (14400), nous vous proposons cette maison de 5 pièces de plain-pied de 110 m² et de 303 m² de terrain.Conçue de plain-pied, elle offre trois chambres, une cuisine et une salle de bains. Cette maison est neuve.Il y a tous les types d’établissements scolaires (maternelle, élémentaire et secondaire) à moins de 10 minutes à pied, tout comme une structure d’accueil pour les enfants en bas âge. Côté transports, on trouve la gare Bayeux juste à côté. Il y a un accès à la nationale N13 à 3 km. Il y a une bibliothèque, des commerces, des boulangeries, un supermarché, un bureau de poste et trois épiceries dans les environs. Enfin, 2 marchés animent le quartier.Elle est proposée à l’achat pour 256 000 €.Contactez Emilie HUE (tél : (Numéro supprimé)) pour toute question sur la maison, sur les démarches à suivre ou sur les modalités de vente. Concrétisez vos projets immobiliers avec Maisons France Confort Bayeux.Annonce proposée par un Agent Commercial Partenaire.
Bayeux
TERRAIN ET MAISONBayeux : maison T5 (85 m²) à vendreMAISON 5 PIÈCES NEUVE – PROCHE DE CAENEn vente à 9 km de la Manche et à 26 km de Caen, nous vous présentons cette maison de 5 pièces de plain-pied de 85 m² et de 303 m² de terrain à Bayeux (14400).Conçue de plain-pied, elle compte trois chambres, une cuisine et une salle de bains. La maison est neuve.Des écoles de tous niveaux sont implantées à moins de 10 minutes à pied, tout comme une crèche. Niveau transports, on trouve la gare Bayeux juste à côté. On trouve un accès à la nationale N13 à 3 km. Il y a une bibliothèque, des commerces, des boulangeries, un supermarché, des boucheries-charcuteries et un bureau de poste dans les environs. Enfin, 2 marchés animent les environs.Son prix de vente est de 201 000 €.Prenez contact avec Emilie HUE ((Numéro supprimé)) pour toute information sur cette maison, sur les modalités de vente ou sur les démarches à suivre.Annonce proposée par un Agent Commercial Partenaire.
Bayeux
TERRAIN ET MAISONMaison T5 (95 m²) en vente à BayeuxPROCHE DE CAEN – MAISON 5 PIÈCES NEUVEEn vente à 9 km de la Manche et à quelques kilomètres de Caen, laissez vous charmer par cette maison de 5 pièces de plain-pied de 95 m² et de 303 m² de terrain à Bayeux (14400).Son intérieur comporte trois chambres, une cuisine et deux salles de bains. La maison est neuve.Il y a des écoles du primaire et du secondaire à moins de 10 minutes à pied, tout comme une crèche. Niveau transports, on trouve la gare Bayeux dans un rayon de 1 km. La nationale N13 est accessible à 3 km. Il y a une bibliothèque, des commerces, des boulangeries, un supermarché, une supérette et des boucheries-charcuteries à proximité du bien. Enfin, 2 marchés animent les environs.Elle est proposée à l’achat pour 211 000 €.Contactez Emilie HUE (tél : (Numéro supprimé)) pour toute question sur cette maison. Maisons France Confort Bayeux est là pour vous accompagner à toutes les étapes de votre projet.Annonce proposée par un Agent Commercial Partenaire.
Bayeux
TERRAIN ET MAISONVENTE : maison de 7 pièces (120 m²) à BayeuxPROCHE DE CAEN – MAISON 7 PIÈCES NEUVEÀ 9 km de la Manche et à deux pas de Caen, nous sommes heureux de vous proposer à vendre à Bayeux (14400), cette maison de 7 pièces de 120 m² et de 303 m² de terrain.Il s’agit d’une maison de 2 niveaux. Son intérieur est composé de cinq chambres, d’une cuisine et de deux salles de bains. Cette maison est neuve.Des établissements scolaires de tous niveaux (de la maternelle au lycée) se trouvent à moins de 10 minutes à pied, tout comme une structure d’accueil pour les enfants en bas âge. Niveau transports en commun, il y a la gare Bayeux à proximité. On trouve un accès à la nationale N13 à 3 km. On trouve une bibliothèque, des commerces, des boulangeries, un supermarché, un bureau de poste et une supérette dans les environs. 2 marchés animent les environs.Il est proposé à l’achat pour 256 000 €.Prenez contact avec notre agence (Emilie HUE : (Numéro supprimé)) pour tout renseignement sur la maison, sur les démarches à suivre ou sur les modalités de vente. Maisons France Confort Bayeux est là pour vous accompagner à toutes les étapes de l’achat.Annonce proposée par un Agent Commercial Partenaire.
Bayeux
TERRAIN ET MAISONVENTE d’une maison de 6 pièces (140 m²) à BayeuxMAISON 6 PIÈCES NEUVE – PROCHE DE CAENEn vente : localisée à 9 km de la Manche et à quelques kilomètres de Caen, à Bayeux (14400), nous vous proposons cette maison de 6 pièces de 140 m². Son intérieur est composé de quatre chambres, d’une cuisine et de deux salles de bains.Le terrain du bien s’étend sur 303 m².Cette maison possède 2 niveaux. Elle est neuve.Il y a des écoles de tous niveaux à moins de 10 minutes à pied, tout comme une structure d’accueil pour les enfants en bas âge. Niveau transports en commun, on trouve la gare Bayeux à proximité. La nationale N13 est accessible à 3 km. Il y a une bibliothèque, des commerces, des boulangeries, un supermarché, une supérette et trois épiceries dans les environs. Enfin, 2 marchés animent le quartier.Son prix de vente est de 286 000 €.Contactez notre agence (Emilie HUE : (Numéro supprimé)) pour plus de renseignements sur la maison et sur les modalités de vente.Annonce proposée par un Agent Commercial Partenaire.
Bayeux
TERRAIN ET MAISONBayeux : maison T6 (130 m²) en venteMAISON 6 PIÈCES NEUVE – PROCHE DE CAENÀ 9 km de la Manche et à deux pas de Caen, votre agence Maisons France Confort Bayeux est ravie de vous proposer cette maison de 6 pièces de 130 m² en vente à Bayeux (14400). Elle se divise en quatre chambres, une cuisine et deux salles de bains.Le terrain de cette maison est de 303 m².Cette maison compte 2 niveaux. Elle est neuve.Il y a des établissements scolaires (de la maternelle au lycée) à moins de 10 minutes à pied, tout comme une structure d’accueil pour les enfants en bas âge. Niveau transports, on trouve la gare Bayeux dans les alentours. Il y a un accès à la nationale N13 à 3 km. Il y a une bibliothèque, des commerces, des boulangeries, un supermarché, des boucheries-charcuteries et trois épiceries à proximité. 2 marchés animent le quartier.Son prix de vente est de 336 000 €.Contactez Emilie HUE (tél : (Numéro supprimé)) pour tout renseignement sur cette maison. Maisons France Confort Bayeux vous accompagne dans tous vos projets immobiliers et à toutes les étapes de votre projet.Annonce proposée par un Agent Commercial Partenaire.
Bayeux
TERRAIN ET MAISONVENTE : maison T6 (110 m²) à BayeuxPROCHE DE CAEN – MAISON 6 PIÈCES NEUVEEn vente à 9 km de la Manche et à quelques kilomètres de Caen, Maisons France Confort Bayeux vous propose à Bayeux (14400), cette maison de 6 pièces de 110 m² et de 303 m² de terrain. Son intérieur offre quatre chambres, une cuisine et deux salles de bains.Il s’agit d’une maison de 2 niveaux. Elle est neuve.On trouve des écoles de tous niveaux à moins de 10 minutes à pied, tout comme une crèche. Niveau transports, il y a la gare Bayeux dans un rayon de 1 km. Il y a un accès à la nationale N13 à 3 km. On trouve une bibliothèque, des commerces, des boulangeries, un supermarché, une supérette et un bureau de poste à quelques minutes de la maison. 2 marchés animent les environs.Elle est à vendre pour la somme de 221 000 €.Prenez contact avec Emilie HUE ((Numéro supprimé)) pour plus d’informations sur cette maison ou sur les modalités de vente.Annonce proposée par un Agent Commercial Partenaire.
Bayeux
TERRAIN ET MAISONMaison de 5 pièces (90 m²) à vendre à BayeuxMAISON 5 PIÈCES NEUVE – PROCHE DE CAENÀ vendre à 9 km de la Manche et à quelques kilomètres de Caen, à Bayeux (14400), nous vous proposons cette maison de 5 pièces de 90 m² et de 303 m² de terrain. Son intérieur propose quatre chambres, une cuisine et deux salles de bains.C’est une maison de 2 niveaux. Elle est neuve.Il y a des établissements scolaires du primaire et du secondaire à moins de 10 minutes à pied, tout comme une crèche. Niveau transports en commun, on trouve la gare Bayeux juste à côté. Il y a un accès à la nationale N13 à 3 km. Il y a une bibliothèque, des commerces, des boulangeries, un supermarché, une supérette et des boucheries-charcuteries dans les environs. 2 marchés animent le quartier.Son prix de vente est de 206 000 €.Prenez contact avec notre agence (HUE Emilie : (Numéro supprimé)) pour tout renseignement sur la maison, sur les modalités de vente ou sur les démarches à suivre.Annonce proposée par un Agent Commercial Partenaire.
L’actualité immobilière à Maisons
27/11/2023
02/11/2023