Maison à construire à Moult-Chicheboville (14370)
Images
Description
OSSATURE BOIS
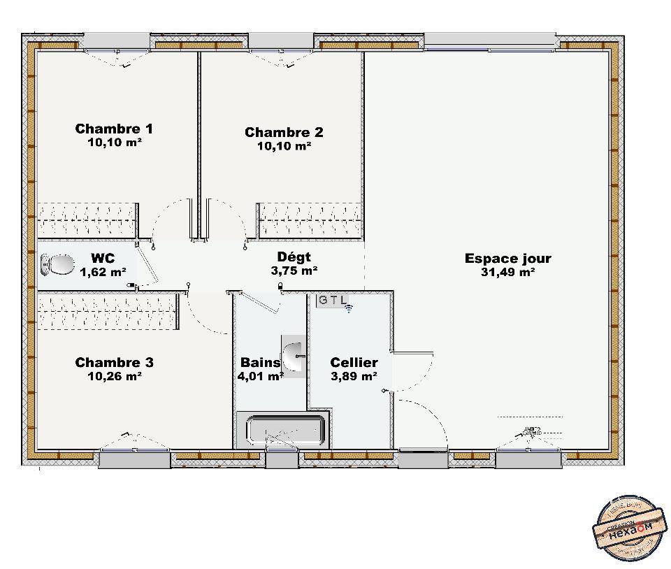
VENTE d'une maison de 4 pièces (75 m²) à Moult-Chicheboville
IDÉALEMENT SITUÉE - MAISON 4 PIÈCES NEUVE
À vendre : localisée à 17 km de Caen, nous vous présentons, idéalement située dans Moult-Chicheboville (14370), cette maison de 4 pièces de plain-pied de 75 m² et de 377 m² de terrain. Elle dispose de trois chambres, d'une cuisine et d'une salle de bains.
La maison est neuve.
Cette propriété se trouve dans un secteur prisé. Une école primaire y est implantée. Côté transports, il y a les gares Moult-Argences, Frénouville-Cagny et Mézidon-Canon à moins de 10 minutes en voiture. L'autoroute A13 et les nationales N158 et N814 sont accessibles à moins de 10 km.
Son prix de vente est de 210 400 €.
N'hésitez pas à prendre contact avec notre agence (Angélique CUVILLIERS : (Numéro supprimé)) pour toute information sur la maison, sur les démarches à suivre ou sur les modalités de vente.
EXTRACO Construction Rénovation Pont-l'Évêque vous accompagne à toutes les étapes de l'achat et dans tous vos projets immobiliers.
Logement susceptibles de vous intéresser
Nous vous proposons de découvrir aussi cette sélection de logements situés à moins de 10km de Moult-Chicheboville et qui seraient susceptibles de vous intéresser.
Moult-Chicheboville
TERRAINTerrain de 377 m² en vente à Moult-ChichebovilleIDÉALEMENT SITUÉ – PROCHE DE CAENÀ Moult-Chicheboville (14370), donnez vie à votre résidence principale ou secondaire sur ce terrain de 377 m². Dans un quartier prisé, le terrain idéalement situé est proche des écoles et des commerces. Il y a une école primaire dans le quartier. Côté transports, on trouve les gares Moult-Argences, Frénouville-Cagny et Mézidon-Canon à moins de 10 minutes en voiture. L’autoroute A13 et les nationales N158 et N814 sont accessibles à moins de 10 km.Il est à vendre pour la somme de 61 200 €. Contactez notre agence (Angélique CUVILLIERS : (Numéro supprimé)) pour obtenir de plus amples informations sur ce terrain. Concrétisez vos projets immobiliers avec EXTRACO Construction Rénovation Pont-l’Évêque.
Moult-Chicheboville
TERRAINVENTE : terrain de 637 m² à Moult-ChichebovillePROCHE DE CAENÀ Moult-Chicheboville (14370) à deux pas de Caen, découvrez ce terrain de 637 m². Le terrain est proche des écoles et des commerces. Il y a une école primaire dans le quartier. Niveau transports, on trouve les gares Moult-Argences, Frénouville-Cagny et Mézidon-Canon à moins de 10 minutes en voiture. L’autoroute A13 et les nationales N158 et N814 sont accessibles à moins de 10 km.Son prix de vente est de 90 000 €. Contactez notre agence (Angélique CUVILLIERS : (Numéro supprimé)) pour toute information sur ce terrain, sur les démarches à suivre ou sur les modalités de vente. Faites de vos projets immobiliers une réalité avec EXTRACO Construction Rénovation Pont-l’Évêque.
Moult-Chicheboville
TERRAINMoult-Chicheboville : terrain de 463 m² en venteIDÉALEMENT SITUÉ – PROCHE DE CAENÀ quelques kilomètres de Caen à Moult-Chicheboville (14370), terrain de 463 m². Il est prêt à accueillir votre résidence principale ou secondaire pour toute la famille. Il y a une école primaire dans le quartier. Côté transports, on trouve les gares Moult-Argences, Frénouville-Cagny et Mézidon-Canon à moins de 10 minutes en voiture. L’autoroute A13 et les nationales N158 et N814 sont accessibles à moins de 10 km.Ce terrain est proposé à l’achat pour 74 000 €. Prenez contact avec Angélique CUVILLIERS ((Numéro supprimé)) pour toute information sur le terrain. Donnez vie à vos projets immobiliers avec EXTRACO Construction Rénovation Pont-l’Évêque.
Moult-Chicheboville
TERRAIN ET MAISONOSSATURE BOIS VENTE d’une maison de 4 pièces (75 m²) à Moult-ChichebovilleIDÉALEMENT SITUÉE – MAISON 4 PIÈCES NEUVEÀ vendre : localisée à 17 km de Caen, nous vous présentons, idéalement située dans Moult-Chicheboville (14370), cette maison de 4 pièces de plain-pied de 75 m² et de 377 m² de terrain. Elle dispose de trois chambres, d’une cuisine et d’une salle de bains.La maison est neuve.Cette propriété se trouve dans un secteur prisé. Une école primaire y est implantée. Côté transports, il y a les gares Moult-Argences, Frénouville-Cagny et Mézidon-Canon à moins de 10 minutes en voiture. L’autoroute A13 et les nationales N158 et N814 sont accessibles à moins de 10 km.Son prix de vente est de 210 400 €.N’hésitez pas à prendre contact avec notre agence (Angélique CUVILLIERS : (Numéro supprimé)) pour toute information sur la maison, sur les démarches à suivre ou sur les modalités de vente. EXTRACO Construction Rénovation Pont-l’Évêque vous accompagne à toutes les étapes de l’achat et dans tous vos projets immobiliers.
Moult-Chicheboville
TERRAIN ET MAISONMaison T5 (85 m²) en vente à Moult-ChichebovilleIDÉALEMENT SITUÉE – MAISON 5 PIÈCES NEUVEEn vente : localisée à quelques kilomètres de Caen, ayez le coup de coeur pour, idéalement située dans Moult-Chicheboville (14370), cette maison de 5 pièces de 85 m². Son intérieur propose quatre chambres, une cuisine et deux salles de bains.Le terrain de la maison s’étend sur 377 m².Cette maison comporte 2 niveaux. Elle est neuve.La maison se trouve dans un quartier convoité. Une école primaire y est implantée. Niveau transports en commun, il y a les gares Moult-Argences, Frénouville-Cagny et Mézidon-Canon à moins de 10 minutes en voiture. L’autoroute A13 et les nationales N158 et N814 sont accessibles à moins de 10 km.Elle est à vendre pour la somme de 208 700 €.Prenez contact avec notre agence (Angélique CUVILLIERS : (Numéro supprimé)) pour toute information sur la maison, sur les démarches à suivre ou sur les modalités de vente.
Moult-Chicheboville
TERRAIN ET MAISONMoult-Chicheboville : maison de 5 pièces (92 m²) à vendreIDÉALEMENT SITUÉE – MAISON 5 PIÈCES NEUVEÀ vendre : à quelques kilomètres de Caen, venez découvrir, idéalement située dans Moult-Chicheboville (14370), cette maison de 5 pièces de plain-pied de 92 m². Elle comporte quatre chambres, une cuisine et une salle de bains.Le terrain de la maison est de 377 m².Cette maison est neuve.Cette maison se trouve dans un secteur prisé. On y trouve une école primaire. Côté transports, il y a les gares Moult-Argences, Frénouville-Cagny et Mézidon-Canon à moins de 10 minutes en voiture. L’autoroute A13 et les nationales N158 et N814 sont accessibles à moins de 10 km.Elle est proposée à l’achat pour 213 700 €.Contactez Angélique CUVILLIERS ((Numéro supprimé)) pour obtenir de plus amples renseignements sur la maison, sur les démarches à suivre et sur les modalités de vente. Donnez vie à vos projets immobiliers avec EXTRACO Construction Rénovation Pont-l’Évêque.
Moult-Chicheboville
TERRAIN ET MAISONVENTE d’une maison de 4 pièces (88 m²) à Moult-ChichebovilleIDÉALEMENT SITUÉE – MAISON 4 PIÈCES NEUVEEn vente : à 17 km de Caen, nous sommes ravis de vous présenter, idéalement située dans Moult-Chicheboville (14370), cette maison de 4 pièces de 88 m².Il s’agit d’une maison de 2 niveaux. Son intérieur se divise en trois chambres, une cuisine et une salle de bains. Cette maison est neuve.Le terrain de la propriété est de 377 m².Le bien est situé dans un secteur convoité. On y trouve une école primaire. Côté transports, on trouve trois gares (Moult-Argences, Frénouville-Cagny et Mézidon-Canon) à moins de 10 minutes en voiture. L’autoroute A13 et les nationales N158 et N814 sont accessibles à moins de 10 km.Il est proposé à l’achat pour 213 400 €.N’hésitez pas à prendre contact avec Angélique CUVILLIERS ((Numéro supprimé)) pour obtenir de plus amples renseignements sur la maison, sur les démarches à suivre ou sur les modalités de vente. EXTRACO Construction Rénovation Pont-l’Évêque est là pour vous accompagner dans tous vos projets immobiliers.
Moult-Chicheboville
TERRAIN ET MAISONOSSATURE BOIS VENTE : maison de 5 pièces (104 m²) à Moult-ChichebovilleMAISON 5 PIÈCES NEUVE – PROCHE DE CAENÀ 17 km de Caen, nous vous proposons cette maison de 5 pièces de plain-pied de 104 m² et de 637 m² de terrain à Moult-Chicheboville (14370). Son intérieur propose quatre chambres, une cuisine et deux salles de bains.Cette maison est neuve.Une école primaire est implantée dans le quartier. Côté transports en commun, il y a les gares Moult-Argences, Frénouville-Cagny et Mézidon-Canon à moins de 10 minutes en voiture. L’autoroute A13 et les nationales N158 et N814 sont accessibles à moins de 10 km.Son prix de vente est de 294 500 €.N’hésitez pas à prendre contact avec Angélique CUVILLIERS ((Numéro supprimé)) pour plus d’informations sur la maison, sur les modalités de vente ou sur les démarches à suivre.
Moult-Chicheboville
TERRAIN ET MAISONMaison T5 (100 m²) en vente à Moult-ChichebovillePROCHE DE CAEN – MAISON 5 PIÈCES NEUVEÀ vendre : à quelques kilomètres de Caen, nous vous proposons cette maison de 5 pièces de 100 m² et de 637 m² de terrain à Moult-Chicheboville (14370). Elle se divise en quatre chambres, une cuisine et une salle de bains.Il s’agit d’une maison de 2 niveaux. Elle est neuve.Une école primaire est implantée dans le quartier. Niveau transports, il y a les gares Moult-Argences, Frénouville-Cagny et Mézidon-Canon à moins de 10 minutes en voiture. L’autoroute A13 et les nationales N158 et N814 sont accessibles à moins de 10 km.Elle est proposée à l’achat pour 256 700 €.Contactez Angélique CUVILLIERS ((Numéro supprimé)) pour obtenir de plus amples informations sur cette maison. EXTRACO Construction Rénovation Pont-l’Évêque est là pour vous accompagner dans tous vos projets immobiliers.
L’actualité immobilière à Moult-Chicheboville
27/11/2023
02/11/2023
30/10/2023
20/10/2023
16/10/2023
16/10/2023