Maison à construire à Moyaux (14590)
Images
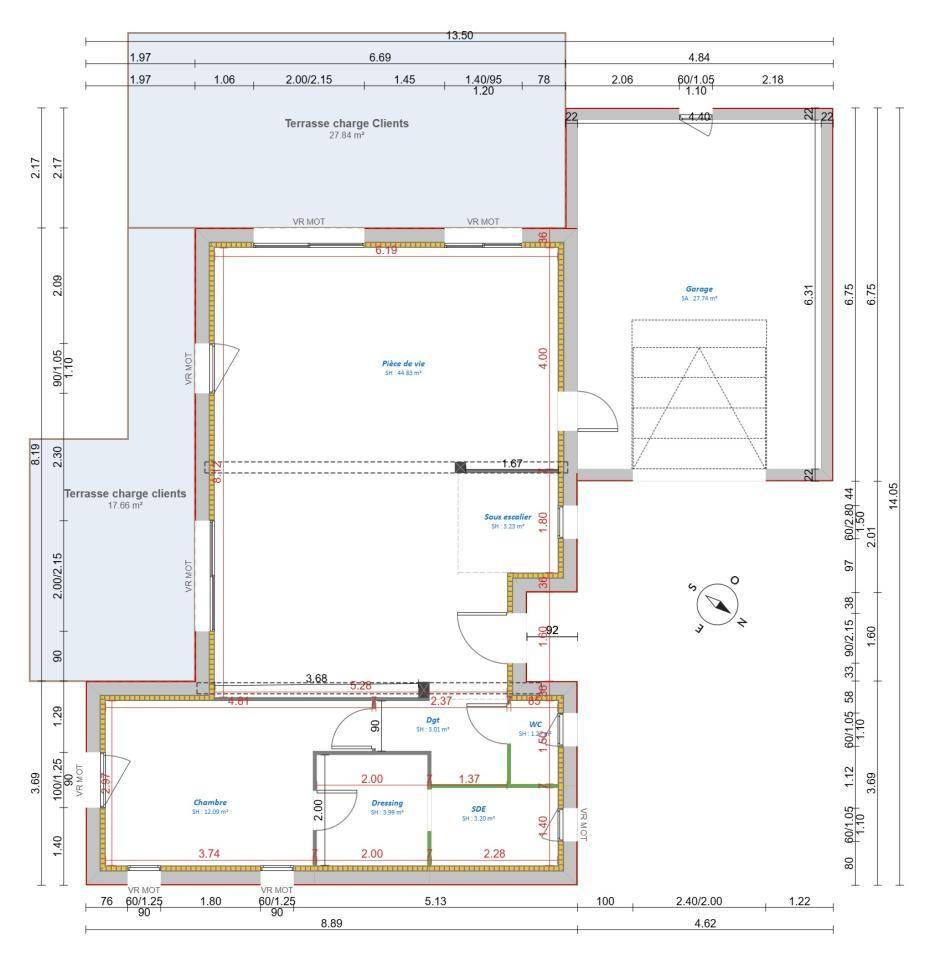
Description
Maisons France Confort vous propose cette maison à étage de 115m² avec un grand garage.
Entrée sur pièce de vie ouverte et lumineuse, une suite parentale avec 4ml de dressing et une salle de bain privée.
A l'étage 3 belle chambres, une salle de bain avec douche et baignoire.
Prestations:
carrelage 45*45
menuiserie anthracite
volet roulant encastrée à la maçonnerie et électrique Somfy
Pompe à chaleur plancher chauffant
Wc suspendu
Pour une étude personnalisée merci de prendre rdv avec Mme Vaudry Angélique (Numéro supprimé)
Logement susceptibles de vous intéresser
Nous vous proposons de découvrir aussi cette sélection de logements situés à moins de 10km de Moyaux et qui seraient susceptibles de vous intéresser.
Moyaux
TERRAINMoyaux : terrain de 539 m² en venteIDÉALEMENT SITUÉÀ Moyaux (14590), imaginez la maison de vos rêves sur ce terrain de 539 m². Il y a l’École Primaire Madame René Coty à moins de 10 minutes à pied. Les autoroutes A13, A132 et A28 sont accessibles à moins de 18 km. On trouve un tennis, un commerce, une boulangerie, une épicerie et un bureau de poste à quelques minutes.Il est à vendre pour la somme de 55 000 €. Contactez notre agence (Angélique CUVILLIERS : (Numéro supprimé)) pour plus de renseignements sur ce terrain ou sur les modalités de vente. EXTRACO Construction Rénovation Pont-l’Évêque est là pour vous accompagner à toutes les étapes de l’achat.
Moyaux
TERRAINVENTE : terrain de 841 m² à MoyauxIDÉALEMENT SITUÉÀ Moyaux (14590), grand terrain. Réalisez-y la maison de vos rêves. Dans un secteur convoité, ce terrain idéalement situé est proche des commerces et des écoles. L’École Primaire Madame René Coty se trouve à moins de 10 minutes à pied. Les autoroutes A13, A132 et A28 sont accessibles à moins de 18 km. Il y a un tennis, un commerce, une boulangerie, une épicerie et un bureau de poste à quelques minutes.Il est à vendre pour la somme de 65 000 €. Contactez notre agence (Angélique CUVILLIERS : (Numéro supprimé)) pour toute information sur ce terrain.
Le Brévedent
TERRAINLe Brévedent : terrain de 4 125 m² en venteIDÉALEMENT SITUÉAu Brévedent (14130), découvrez ce terrain de 4 125 m². Des établissements scolaires de tous types (de la maternelle au lycée) sont implantés à moins de 10 minutes en voiture. On trouve un accès à l’autoroute A13 à 10 km. On trouve des tennis, une bibliothèque, des commerces, des boulangeries, des supermarchés, deux supérettes et des boucheries-charcuteries à quelques minutes à peine. Ne manquez pas le marché Rue de l’Abbaye tous les vendredis matin.Il est à vendre pour la somme de 127 500 €. Contactez notre agence (Angélique CUVILLIERS : (Numéro supprimé)) pour toute information sur le terrain, sur les démarches à suivre ou sur les modalités de vente. EXTRACO Construction Rénovation Pont-l’Évêque vous accompagne à toutes les étapes de votre projet et dans tous vos projets immobiliers.
Moyaux
TERRAIN ET MAISONOSSATURE BOIS VENTE d’une maison de 4 pièces (83 m²) à MoyauxIDÉALEMENT SITUÉE – MAISON 4 PIÈCES NEUVEVenez découvrir à vendre, idéalement située dans Moyaux (14590), cette maison de 4 pièces de plain-pied de 83 m².Conçue de plain-pied, elle se divise en trois chambres, une cuisine et une salle de bains. Cette maison est neuve.Le terrain de la propriété s’étend sur 539 m².La propriété est située dans un quartier convoité. L’École Primaire Madame René Coty se trouve à moins de 10 minutes à pied. Les autoroutes A13, A132 et A28 sont accessibles à moins de 18 km. Il y a un tennis, un commerce, une boulangerie, une épicerie et un bureau de poste à quelques minutes.Elle est à vendre pour la somme de 222 300 €.Contactez Angélique CUVILLIERS (tél : (Numéro supprimé)) pour plus de renseignements sur la maison et sur les modalités de vente.EXTRACO Construction Rénovation Pont-l’Évêque vous accompagne dans toutes vos démarches et à toutes les étapes de votre projet.
Moyaux
TERRAIN ET MAISONMaison de 5 pièces (92 m²) à vendre à MoyauxIDÉALEMENT SITUÉE – MAISON 5 PIÈCES NEUVEEXTRACO Construction Rénovation Pont-l’Évêque vous présente, idéalement située dans Moyaux (14590), cette maison de 5 pièces de plain-pied de 92 m². Son intérieur est composé de quatre chambres, d’une cuisine et d’une salle de bains.Le terrain de cette maison s’étend sur 539 m².La maison est neuve.Cette maison se situe dans un secteur convoité. L’École Primaire Madame René Coty se trouve à moins de 10 minutes à pied. Les autoroutes A13, A132 et A28 sont accessibles à moins de 18 km. Il y a un tennis, un commerce, une boulangerie, un bureau de poste et une épicerie à proximité du logement.Elle est à vendre pour la somme de 208 700 €.Contactez Angélique CUVILLIERS (tél : (Numéro supprimé)) pour plus d’informations sur la propriété.
Moyaux
TERRAIN ET MAISONMoyaux : maison F4 (85 m²) à vendreIDÉALEMENT SITUÉE – MAISON 4 PIÈCES NEUVEEn vente : Idéalement située dans Moyaux (14590), nous vous présentons cette maison de 4 pièces de 85 m². Elle se divise en trois chambres, une cuisine et une salle de bains.Le terrain du bien est de 539 m².Cette maison possède 2 niveaux. Elle est neuve.La maison se situe dans un quartier convoité. On trouve l’École Primaire Madame René Coty à moins de 10 minutes à pied. Les autoroutes A13, A132 et A28 sont accessibles à moins de 18 km. Il y a un tennis, un commerce, une boulangerie, une épicerie et un bureau de poste à quelques minutes à peine.Elle est proposée à l’achat pour 195 800 €.N’hésitez pas à prendre contact avec Angélique CUVILLIERS ((Numéro supprimé)) pour plus de renseignements sur la maison. EXTRACO Construction Rénovation Pont-l’Évêque est là pour vous accompagner dans tous vos projets immobiliers.
Moyaux
TERRAIN ET MAISONMoyaux : maison de 4 pièces (74 m²) à vendreIDÉALEMENT SITUÉE – MAISON 4 PIÈCES NEUVENous vous présentons cette maison de 4 pièces de plain-pied de 74 m² idéalement située dans Moyaux (14590).Conçue de plain-pied, elle propose trois chambres, une cuisine et une salle de bains. Cette maison est neuve.Le terrain du bien est de 539 m².Cette maison se trouve dans un secteur attractif. L’École Primaire Madame René Coty est implantée à moins de 10 minutes à pied. Les autoroutes A13, A132 et A28 sont accessibles à moins de 18 km. On trouve un tennis, un commerce, une boulangerie, un bureau de poste et une épicerie dans les environs.Son prix de vente est de 204 500 €.Contactez Angélique CUVILLIERS ((Numéro supprimé)) pour obtenir de plus amples informations sur le bien. EXTRACO Construction Rénovation Pont-l’Évêque vous accompagne dans tous vos projets immobiliers et à toutes les étapes de l’achat.
Moyaux
TERRAIN ET MAISONOSSATURE BOIS Moyaux : maison T5 (104 m²) en venteIDÉALEMENT SITUÉE – MAISON 5 PIÈCES NEUVEEXTRACO Construction Rénovation Pont-l’Évêque vous présente à vendre, idéalement située dans Moyaux (14590), cette maison de 5 pièces de plain-pied de 104 m².Son intérieur dispose de quatre chambres, d’une cuisine et de deux salles de bains. Cette maison est neuve.Le terrain du bien s’étend sur 841 m².Cette maison se situe dans un quartier attractif. L’École Primaire Madame René Coty se trouve à moins de 10 minutes à pied. Les autoroutes A13, A132 et A28 sont accessibles à moins de 18 km. Il y a un tennis, un commerce, une boulangerie, un bureau de poste et une épicerie dans les environs.Son prix de vente est de 263 500 €.Prenez contact avec notre agence (CUVILLIERS Angélique : (Numéro supprimé)) pour obtenir de plus amples renseignements sur la propriété.
Moyaux
TERRAIN ET MAISONVENTE d’une maison F4 (98 m²) à MoyauxIDÉALEMENT SITUÉE – MAISON 4 PIÈCES NEUVEVotre agence EXTRACO Construction Rénovation Pont-l’Évêque est heureuse de vous présenter cette maison de 4 pièces de plain-pied de 98 m² à vendre, idéalement située dans Moyaux (14590). Elle propose trois chambres, une cuisine et une salle de bains.Le terrain du bien est de 841 m².Cette maison est neuve.Le bien est situé dans un quartier recherché. Il y a l’École Primaire Madame René Coty à moins de 10 minutes à pied. Les autoroutes A13, A132 et A28 sont accessibles à moins de 18 km. On trouve un tennis, un commerce, une boulangerie, un bureau de poste et une épicerie à proximité.Son prix de vente est de 206 800 €.Prenez contact avec notre constructeur (Angélique CUVILLIERS : (Numéro supprimé)) pour tout renseignement sur la maison ou sur les démarches à suivre.
L’actualité immobilière à Moyaux
27/11/2023
02/11/2023
30/10/2023
20/10/2023
16/10/2023
16/10/2023