Maison à construire à Noron-l'Abbaye (14700)
Images
Description
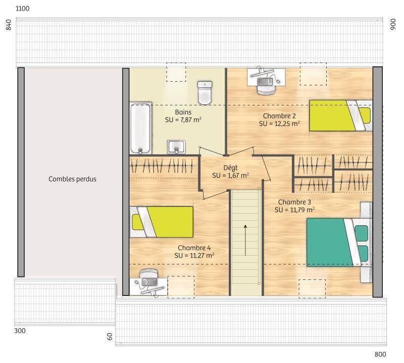
Maisons France Confort Lisieux vous propose de construire cette maison à étage de 90m².
Il se compose d'une entrée sur une belle pièce de vie, un cellier et un garage.
Dans l'espace nuit à l'étage, 3 chambres et une salle de bain.
Belles prestations :
- carrelage 45*45
- menuiserie encastrer à la maçonnerie
- volet roulant électrique somfy
- système de chauffage très économique
Pour une étude de construction, merci de prendre rdv avec Mme Vaudry Angélique (Numéro supprimé)
Logement susceptibles de vous intéresser
Nous vous proposons de découvrir aussi cette sélection de logements situés à moins de 10km de Noron-l'Abbaye et qui seraient susceptibles de vous intéresser.
Soumont-Saint-Quentin
TERRAINMaisons France Confort Lisieux vous propose de construire votre maison sur la commune de Soumont St Quentin.Commune à 5 min des commerces de Potigny.Pour étudier un projet de construction sur le terrain, merci de prendre rdv au (Numéro supprimé) Angélique Vaudry.
Noron-l'Abbaye
TERRAINMaisons France Confort Vous propose de construire votre maison sur la commune de Noron l’Abbaye à moins de 10 min des commerces de Falaise.Lotissement de 13 parcelles viabilisées avec assainissement individuelle.Pour une étude de projet de construction, merci de prendre rdv avec Mme Vaudry Angélique au (Numéro supprimé)
Soumont-Saint-Quentin
TERRAIN ET MAISONMaisons France Confort Lisieux vous propose de construire cette maison à étage de 90m².Il se compose d’une entrée sur une belle pièce de vie, un cellier et un garage.Dans l’espace nuit à l’étage, 3 chambres et une salle de bain.Belles prestations :- carrelage 45*45- menuiserie encastrer à la maçonnerie – volet roulant électrique somfy- système de chauffage très économiquePour une étude de construction, merci de prendre rdv avec Mme Vaudry Angélique (Numéro supprimé)
Noron-l'Abbaye
TERRAIN ET MAISONMaisons France Confort Lisieux vous propose de construire cette maison à étage de 90m².Il se compose d’une entrée sur une belle pièce de vie, un cellier et un garage.Dans l’espace nuit à l’étage, 3 chambres et une salle de bain.Belles prestations :- carrelage 45*45- menuiserie encastrer à la maçonnerie – volet roulant électrique somfy- système de chauffage très économiquePour une étude de construction, merci de prendre rdv avec Mme Vaudry Angélique (Numéro supprimé)
Falaise
TERRAINFalaise : terrain de 490 m² en venteEntre Suisse Normande et Pays d’Auge à Falaise (14700), terrain de 490 m². Ce terrain est proche des commerces et des écoles. Des établissements scolaires (de la maternelle au lycée) sont implantés à moins de 10 minutes à pied, tout comme une structure d’accueil pour les tout-petits. Niveau transports la commune est desservie par les transports scolaires. L’autoroute A88 et la nationale N158 sont accessibles à moins de 2 km. Il y a une bibliothèque, des boulangeries, des commerces, un supermarché, des épiceries et un bureau de poste à proximité. Ne manquez pas le marché Place Belle Croix tous les samedis matin.Son prix de vente est de 47 500 €. Contactez Sophie UCENDO ((Numéro supprimé)) pour plus de renseignements sur ce terrain, sur les démarches à suivre ou sur les modalités de vente. Concrétisez vos projets immobiliers avec Maisons Balency Caen.
Falaise
TERRAIN ET MAISONVENTE : maison de 7 pièces (125 m²) à FalaiseMAISON 7 PIÈCES NEUVEÀ vendre : Entre Suisse Normande et Pays d’Auge, à Falaise (14700), nous sommes ravis de vous proposer cette maison de 7 pièces de 125 m² et de 490 m² de terrain. Son intérieur est composé de quatre chambres, d’une cuisine et de trois salles de bains.Il s’agit d’une maison de 2 niveaux. Elle est neuve.Il y a des établissements scolaires de tous types (de la maternelle au lycée) à moins de 10 minutes à pied, tout comme une structure d’accueil pour les enfants en bas âge. Niveau transports en commun, on trouve la gare Couliboeuf à moins de 10 minutes en voiture. L’autoroute A88 et la nationale N158 sont accessibles à moins de 2 km. Il y a une bibliothèque, des boulangeries, des commerces, un supermarché, un bureau de poste et une poissonnerie à quelques minutes de la maison. Enfin, le marché Place Belle Croix a lieu chaque samedi matin.Elle est proposée à l’achat pour 292 900 €.Contactez Sophie UCENDO ((Numéro supprimé)) pour toute question sur la maison.
Falaise
TERRAIN ET MAISONVENTE : maison T5 (90 m²) à FalaiseMAISON 5 PIÈCES NEUVEEn vente : Entre Suisse Normande et Pays d’Auge, à Falaise (14700), notre agence Maisons Balency Caen est heureuse de vous proposer cette maison de 5 pièces de 90 m².Cette maison possède 2 niveaux. Son intérieur propose trois chambres, une cuisine et une salle de bains. La maison est neuve.Le terrain de la propriété est de 490 m².Il y a tous les types d’écoles (maternelle, élémentaire et secondaire) à moins de 10 minutes à pied, tout comme une structure d’accueil pour les enfants en bas âge. Côté transports en commun, on trouve la gare Couliboeuf à moins de 10 minutes en voiture. L’autoroute A88 et la nationale N158 sont accessibles à moins de 2 km. Il y a une bibliothèque, des boulangeries, des commerces, un supermarché, des épiceries et une poissonnerie à quelques minutes à peine. Le marché Place Belle Croix anime le quartier chaque samedi matin.Son prix de vente est de 241 900 €.Contactez Sophie UCENDO ((Numéro supprimé)) pour plus de renseignements sur cette maison, sur les démarches à suivre ou sur les modalités de vente. Maisons Balency Caen vous accompagne dans tous vos projets immobiliers et à toutes les étapes de votre projet.
Falaise
TERRAIN ET MAISONMaison de 5 pièces (90 m²) en vente à FalaiseMAISON 5 PIÈCES NEUVEEntre Suisse Normande et Pays d’Auge, Maisons Balency Caen vous présente cette maison de 5 pièces de plain-pied de 90 m² et de 490 m² de terrain à vendre à Falaise (14700). Elle compte trois chambres, une cuisine et une salle de bains.La maison est neuve.Il y a des écoles du primaire et du secondaire à moins de 10 minutes à pied, tout comme une structure d’accueil pour les tout-petits. Côté transports, on trouve la gare Couliboeuf à moins de 10 minutes en voiture. L’autoroute A88 et la nationale N158 sont accessibles à moins de 2 km. Il y a une bibliothèque, des boulangeries, des commerces, un supermarché, une poissonnerie et un bureau de poste à quelques minutes du logement. Ne manquez pas le marché Place Belle Croix tous les samedis matin.Son prix de vente est de 214 900 €.Prenez contact avec notre agence (Sophie UCENDO : (Numéro supprimé)) pour obtenir de plus amples informations sur cette maison, sur les démarches à suivre ou sur les modalités de vente.
Potigny
TERRAINTerrain de 425 m² à vendre à Potigny20 minutes Caen SudÀ vendre à deux pas du centre-ville de Caen à Potigny (14420), terrain de 425 m². Réalisez-y votre projet immobilier. Ce terrain est proche des commerces et des écoles. L’École Primaire Paul Langevin et le Collège Pierre et Marie Curie sont implantés à moins de 10 minutes à pied. On trouve un accès à la nationale N158 à 1 km. Commune desservie par les transports scolaires.On trouve un gymnase omnisport, trois commerces, trois boulangeries, un supermarché, une épicerie et une boucherie-charcuterie à 1à minutes à pied.Il est à vendre pour la somme de 52 900 €. Contactez notre agence (Sophie UCENDO : (Numéro supprimé)) pour obtenir de plus amples informations sur ce terrain.
L’actualité immobilière à Noron-l'Abbaye
27/11/2023
02/11/2023
30/10/2023
20/10/2023
16/10/2023
16/10/2023