Maison à construire à Potigny (14420)
Images
Description
VENTE : maison T6 (114 m²) à Potigny
PROCHE DE CAEN - MAISON 6 PIÈCES NEUVE
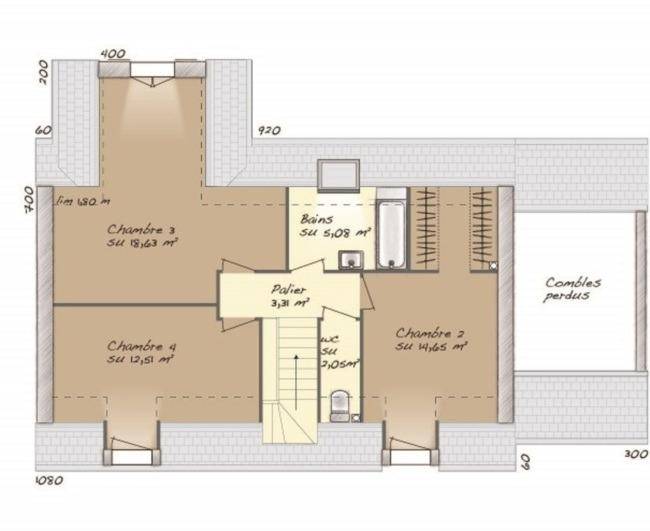
En vente : située à 25 kilomètres de Caen, notre agence Maisons Balency Caen est heureuse de vous proposer cette maison de 6 pièces de 114 m² et de 425 m² de terrain à Potigny (14420).
Il s'agit d'une maison de 2 niveaux. Elle propose quatre chambres, une cuisine et deux salles de bains. La maison est neuve.
Il y a l'École Primaire Paul Langevin et le Collège Pierre et Marie Curie à moins de 10 minutes à pied. Il y a un accès à la nationale N158 à 1 km. Commune desservie par les transports scolaires.
On trouve un gymnase omnisport, trois commerces, trois boulangeries, un supermarché, un bureau de poste et une épicerie à proximité du bien.
Son prix de vente est de 296 900 €.
Contactez notre constructeur (Sophie UCENDO : (Numéro supprimé)) pour toute question sur cette maison, sur les modalités de vente ou sur les démarches à suivre. Faites de vos projets immobiliers une réalité avec Maisons Balency Caen.
Logement susceptibles de vous intéresser
Nous vous proposons de découvrir aussi cette sélection de logements situés à moins de 10km de Potigny et qui seraient susceptibles de vous intéresser.
Barbery
TERRAINTerrain de 490 m² à vendre à BarberyIDÉALEMENT SITUÉ – PROCHE DE CAENÀ 33 km de la Manche et à 19 km de Caen à Barbery (14220), terrain de 490 m². Réalisez-y votre projet de construction. Ce terrain, avec une exposition sud, donne sur un espace vert. Il y a une école primaire dans le quartier. Il y a un accès à la nationale N158 à 7 km.Il est à vendre pour la somme de 63 000 €. Contactez notre agence (Kevin DUCHESNE : (Numéro supprimé)) pour obtenir de plus amples renseignements sur ce terrain ou sur les modalités de vente. Maisons France Confort Caen vous accompagne à toutes les étapes de votre projet et dans toutes vos démarches.
Barbery
TERRAIN ET MAISONBarbery : maison de 5 pièces (90 m²) à vendreIDÉALEMENT SITUÉE – MAISON 5 PIÈCES NEUVEÀ 33 km de la Manche et à 19 km de Caen, votre agence Maisons France Confort Caen est heureuse de vous présenter cette maison de 5 pièces de 90 m² avec vue sur espace vert idéalement située dans Barbery (14220). Son intérieur propose trois chambres, une cuisine et deux salles de bains.Le terrain de la propriété s’étend sur 490 m².C’est une maison de plain-pied. Elle est neuve.La maison se trouve dans un quartier attractif. On y trouve une école primaire. La nationale N158 est accessible à 7 km.Son prix de vente est de 252 000 €.Prenez contact avec Kevin DUCHESNE (tél : (Numéro supprimé)) pour toute information sur la maison et sur les modalités de vente.
Barbery
TERRAIN ET MAISONBarbery : maison de 3 pièces (76 m²) en venteIDÉALEMENT SITUÉE – MAISON 3 PIÈCES NEUVEEn vente : localisée à 33 km de la Manche et à deux pas de Caen, votre agence Maisons France Confort Caen est ravie de vous présenter cette maison de 3 pièces de plain-pied de 76 m², idéalement située dans Barbery (14220).Conçue de plain-pied, elle se divise en trois chambres, une cuisine et trois salles de bains. Cette maison est neuve.Le terrain de la propriété est de 490 m².La maison est située dans un secteur prisé. Une école primaire y est implantée. Il y a un accès à la nationale N158 à 7 km.Elle est proposée à l’achat pour 249 000 €.Prenez contact avec Kevin DUCHESNE ((Numéro supprimé)) pour toute information sur la maison.
Barbery
TERRAIN ET MAISONMaison F4 (82 m²) en vente à BarberyIDÉALEMENT SITUÉE – MAISON 4 PIÈCES NEUVEÀ vendre : située à 33 km de la Manche et à deux pas de Caen, idéalement située dans Barbery (14220), notre agence Maisons France Confort Caen est heureuse de vous proposer cette maison de 4 pièces de 82 m² et de 490 m² de terrain.Il s’agit d’une maison de 2 niveaux. Elle se divise en trois chambres, une cuisine et une salle de bains. La maison est neuve.La maison se situe dans un secteur prisé. Une école primaire y est implantée. Il y a un accès à la nationale N158 à 7 km.Elle est proposée à l’achat pour 279 000 €.Contactez notre agence (DUCHESNE Kevin : (Numéro supprimé)) pour tout renseignement sur la maison. Maisons France Confort Caen vous accompagne dans tous vos projets immobiliers et à toutes les étapes de l’achat.
Barbery
TERRAIN ET MAISONVENTE d’une maison F5 (90 m²) à BarberyIDÉALEMENT SITUÉE – MAISON 5 PIÈCES NEUVEEn vente : située à 33 km de la Manche et à 19 km de Caen, nous sommes ravis de vous présenter cette maison de 5 pièces de 90 m² et de 490 m² de terrain idéalement située dans Barbery (14220).Cette maison possède 2 niveaux. Son intérieur inclut trois chambres, une cuisine et une salle de bains. Cette maison est neuve.La maison se trouve dans un secteur attractif. On y trouve une école primaire. Il y a un accès à la nationale N158 à 7 km.Elle est à vendre pour la somme de 279 000 €.Prenez contact avec notre agence (DUCHESNE Kevin : (Numéro supprimé)) pour tout renseignement sur le bien, sur les modalités de vente ou sur les démarches à suivre. Concrétisez vos projets immobiliers avec Maisons France Confort Caen.
Barbery
TERRAIN ET MAISONVENTE : maison de 6 pièces (115 m²) à BarberyIDÉALEMENT SITUÉE – MAISON 6 PIÈCES NEUVEÀ vendre à 33 km de la Manche et à deux pas de Caen, idéalement située dans Barbery (14220), découvrez cette maison de 6 pièces de 115 m² et de 490 m² de terrain. Elle comporte quatre chambres, une cuisine et deux salles de bains.Il s’agit d’une maison de 2 niveaux. Elle est neuve.Cette maison se situe dans un secteur convoité. On y trouve une école primaire. Il y a un accès à la nationale N158 à 7 km.Elle est proposée à l’achat pour 305 900 €.N’hésitez pas à prendre contact avec Kevin DUCHESNE ((Numéro supprimé)) pour toute question sur la maison. Maisons France Confort Caen est là pour vous accompagner dans tous vos projets immobiliers.
Barbery
TERRAIN ET MAISONMaison de 6 pièces (125 m²) à vendre à BarberyIDÉALEMENT SITUÉE – MAISON 6 PIÈCES NEUVEÀ vendre : située à 33 km de la Manche et à 19 km de Caen, nous sommes ravis de vous présenter cette maison de 6 pièces de 125 m² et de 490 m² de terrain idéalement située dans Barbery (14220).Cette maison compte 2 niveaux. Son intérieur se divise en quatre chambres, une cuisine et deux salles de bains. Cette maison est neuve.La maison se trouve dans un secteur recherché. On y trouve une école primaire. La nationale N158 est accessible à 7 km.Elle est proposée à l’achat pour 352 900 €.Contactez Kevin DUCHESNE (tél : (Numéro supprimé)) pour tout renseignement sur la maison. Maisons France Confort Caen est là pour vous accompagner dans tous vos projets immobiliers.
Cauvicourt
TERRAINVENTE : terrain de 317 m² à CauvicourtEMPLACEMENT PRIVILÉGIÉ – VUE DÉGAGÉETerrain de 317 m² à vendre à 27 km de la Manche et à deux pas de Caen. Ce terrain se situe bénéficiant d’un emplacement privilégié dans Cauvicourt (14190). Ce terrain, exposé sud-ouest, profite d’une vue dégagée. Ce terrain se situe dans un secteur attractif. Niveau transports en commun, on trouve la gare Moult-Argences à moins de 10 minutes en voiture. Il y a un accès à la nationale N158 à 2 km. Il y a une bibliothèque à proximité du bien.Il est à vendre pour la somme de 56 900 €. N’hésitez pas à prendre contact avec Kevin DUCHESNE (tél : (Numéro supprimé)) pour toute question sur ce terrain. Maisons France Confort Caen est là pour vous accompagner dans toutes vos démarches.
Cauvicourt
TERRAIN ET MAISONVENTE : maison de 3 pièces (76 m²) à CauvicourtEMPLACEMENT PRIVILÉGIÉ – VUE DÉGAGÉEEn vente à 27 km de la Manche et à quelques kilomètres de Caen, bénéficiant d’un emplacement privilégié dans Cauvicourt (14190), Maisons France Confort Caen vous propose cette maison de 3 pièces de 76 m² avec vue dégagée. Son intérieur dispose de trois chambres, d’une cuisine et de trois salles de bains.Le terrain de la propriété est de 317 m².C’est une maison de plain-pied. Elle est neuve.Cette maison se trouve dans un secteur prisé. Niveau transports en commun, il y a la gare Moult-Argences à moins de 10 minutes en voiture. On trouve un accès à la nationale N158 à 2 km. On trouve une bibliothèque à quelques minutes.Elle est à vendre pour la somme de 249 000 €.Prenez contact avec Kevin DUCHESNE (tél : (Numéro supprimé)) pour toute information sur la maison. Maisons France Confort Caen est là pour vous accompagner dans tous vos projets immobiliers.
L’actualité immobilière à Potigny
27/11/2023
02/11/2023
30/10/2023
20/10/2023
16/10/2023
16/10/2023