Maison à construire à Lasson (14740)
Images
Description
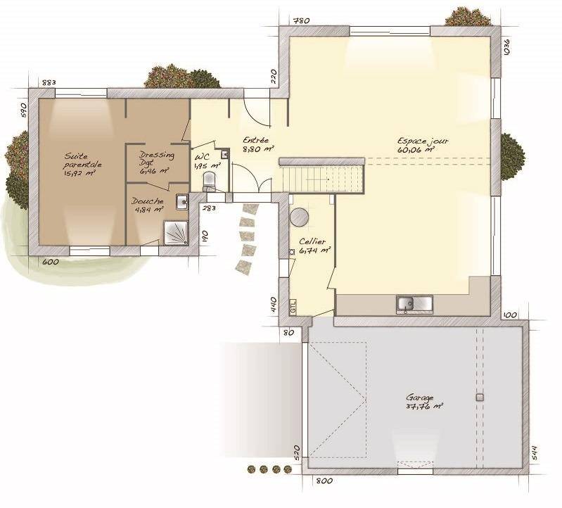
VENTE : maison T7 (170 m²) à Lasson
PROCHE DE CAEN - MAISON 7 PIÈCES NEUVE
À 12 kilomètres du centre-ville de Caen et seulement 15 kilomètres des plages de Courseulles-sur-Mer, à vendre à Lasson (14740), Maisons Balency Caen vous propose cette maison de 7 pièces de plain-pied de 170 m² et de 500 m² de terrain.
Conçue de plain-pied, elle comporte cinq chambres, une cuisine et trois salles de bains. La maison est à construire.
Il y a des écoles (de la maternelle au lycée) à moins de 10 minutes en voiture.
La communes est desservie par le réseau de bus TWISTO.
L'autoroute A84 et les nationales N13 et N814 sont accessibles à moins de 9 km.
On y trouve nombreux commerces, et nombreuses infrastructures à proximité immédiate.
Elle est proposée à l'achat pour 431 900 €.
Prenez contact avec Sophie UCENDO (tél : (Numéro supprimé)) pour toute information sur cette maison, sur les démarches à suivre ou sur les modalités de vente.
Logement susceptibles de vous intéresser
Nous vous proposons de découvrir aussi cette sélection de logements situés à moins de 10km de Rots et qui seraient susceptibles de vous intéresser.
Rots
TERRAINRots : terrain de 506 m² en ventePROCHE DE CAENNous vous proposons au sein de la nouvelle ZAC « L’Orée d’Ardennes » sur la commune de Rots, dans le Calvados, à l’Ouest de Caen, à seulement 10 minutes du centre-ville caennais et comprend de nombreux commerces et services.Rots est une commune à 10km à l’Ouest de Caen, idéalement située et facilement accessible par la nationale 13 reliant Caen et Bayeux. La commune est desservie par la ligne 30 des bus verts du Calvados. Une des branches de la ligne 20 du réseau Twisto dessert également la commune. Une école maternelle et de nombreux commerces et services sont présents au sein de Rots.Il est à vendre pour la somme de 139 000 €. N’hésitez pas à prendre contact avec notre agence (Céline VALLÉE : (Numéro supprimé)) pour obtenir de plus amples informations sur ce terrain, sur les modalités de vente ou sur les démarches à suivre. Maisons France Confort Caen est là pour vous accompagner à toutes les étapes de l’achat.
Rots
TERRAIN ET MAISONRots : maison F3 (71 m²) en venteMAISON 3 PIÈCES NEUVE – PROCHE DE CAENA Rots (14980), notre agence Maisons France Confort Caen est heureuse de vous proposer cette maison de 3 pièces de plain-pied de 71 m².Conçue de plain-pied, elle dispose de deux chambres, d’une cuisine et d’une salle de bains. Cette maison est neuve.Le terrain du bien s’étend sur 506 m².Il y a l’École Élémentaire les Roseaux et l’École Maternelle les Roseaux à moins de 10 minutes à pied. Côté transports en commun, on trouve quatre gares à moins de 10 minutes en voiture. L’autoroute A84 et les nationales N13 et N814 sont accessibles à moins de 6 km. Il y a une bibliothèque, trois commerces, une boulangerie et deux boucheries-charcuteries dans les environs.Son prix de vente est de 275 456 €.Contactez notre agence (VALLÉE Céline : (Numéro supprimé)) pour tout renseignement sur cette maison ou sur les modalités de vente. Maisons France Confort Caen est là pour vous accompagner dans tous vos projets immobiliers.
Rots
TERRAIN ET MAISONRots : maison de 3 pièces (71 m²) à vendreMAISON 3 PIÈCES NEUVE – PROCHE DE CAENEn vente : A quelques kilomètres de Caen, à Rots (14980), votre agence Maisons France Confort Caen est ravie de vous présenter cette maison de 3 pièces de plain-pied de 71 m² et de 506 m² de terrain. Conçue de plain-pied, elle inclut deux chambres, une cuisine et une salle de bains.La maison est neuve.On trouve l’École Élémentaire les Roseaux et l’École Maternelle les Roseaux à moins de 10 minutes à pied. Côté transports, il y a quatre gares à moins de 10 minutes en voiture. L’autoroute A84 et les nationales N13 et N814 sont accessibles à moins de 6 km. On trouve une bibliothèque, trois commerces, une boulangerie et deux boucheries-charcuteries à proximité.Son prix de vente est de 287 394 €.Contactez Céline VALLÉE (tél : (Numéro supprimé)) pour plus de renseignements sur cette maison ou sur les démarches à suivre.
Rots
TERRAIN ET MAISONRots : maison F4 (81 m²) à vendreMAISON 4 PIÈCES NEUVE – PROCHE DE CAENEn vente : A deux pas de Caen, nous vous proposons cette maison de 4 pièces de plain-pied de 81 m² et de 506 m² de terrain à Rots (14980). Conçue de plain-pied, elle compte trois chambres, une cuisine et une salle de bains.La maison est neuve.Il y a l’École Élémentaire les Roseaux et l’École Maternelle les Roseaux à moins de 10 minutes à pied. Niveau transports en commun, on trouve quatre gares à moins de 10 minutes en voiture. L’autoroute A84 et les nationales N13 et N814 sont accessibles à moins de 6 km. Il y a une bibliothèque, trois commerces, une boulangerie et deux boucheries-charcuteries à proximité.Elle est proposée à l’achat pour 303 937 €.Contactez notre agence (Céline VALLEE : (Numéro supprimé)) pour toute question sur le bien.
Rots
TERRAIN ET MAISONMaison de 3 pièces (71 m²) en vente à RotsMAISON 3 PIÈCES NEUVE – PROCHE DE CAENÀ quelques kilomètres de Caen, notre agence Maisons France Confort Caen est heureuse de vous présenter cette maison de 3 pièces de plain-pied de 71 m² et de 506 m² de terrain à Rots (14980). Elle est composée de deux chambres, d’une cuisine et d’une salle de bains.Cette maison est neuve.L’École Élémentaire les Roseaux et l’École Maternelle les Roseaux sont implantées à moins de 10 minutes à pied. Côté transports en commun, il y a quatre gares à moins de 10 minutes en voiture. L’autoroute A84 et les nationales N13 et N814 sont accessibles à moins de 6 km. On trouve une bibliothèque, trois commerces, une boulangerie et deux boucheries-charcuteries à quelques minutes.Elle est à vendre pour la somme de 275 893 €.Prenez contact avec CélineRots : terrain de 506 m² en ventePROCHE DE CAENNous vous proposons au sein de la nouvelle ZAC « L’Orée d’Ardennes » sur la commune de Rots, dans le Calvados, à l’Ouest de Caen, à seulement 10 minutes du centre-ville caennais et comprend de nombreux commerces et services.Rots est une commune à 10km à l’Ouest de Caen, idéalement située et facilement accessible par la nationale 13 reliant Caen et Bayeux. La commune est desservie par la ligne 30 des bus verts du Calvados. Une des branches de la ligne 20 du réseau Twisto dessert également la commune. Une école maternelle et de nombreux commerces et services sont présents au sein de Rots.Il est à vendre pour la somme de 139 000 €. N’hésitez pas à prendre contact avec notre agence (Céline VALLEE : (Numéro supprimé)) pour obtenir de plus amples informations sur ce terrain, sur les modalités de vente ou sur les démarches à suivre. Maisons France Confort Caen est là pour vous accompagner à toutes les étapes de l’achat. VALLEE ((Numéro supprimé)) pour toute question sur la maison. Donnez vie à vos projets immobiliers avec Maisons France Confort Caen.
Rots
TERRAIN ET MAISONVENTE : maison de 4 pièces (85 m²) à RotsPROCHE DE CAEN – MAISON 4 PIÈCES NEUVEA quelques kilomètres de Caen, à Rots (14980), découvrez cette maison de 4 pièces de plain-pied de 85 m² et de 506 m² de terrain. Conçue de plain-pied, elle compte trois chambres, une cuisine et une salle de bains.Cette maison est neuve.L’École Élémentaire les Roseaux et l’École Maternelle les Roseaux sont implantées à moins de 10 minutes à pied. Niveau transports en commun, on trouve quatre gares à moins de 10 minutes en voiture. L’autoroute A84 et les nationales N13 et N814 sont accessibles à moins de 6 km. Il y a une bibliothèque, trois commerces, une boulangerie et deux boucheries-charcuteries à proximité de la maison.Elle est proposée à l’achat pour 296 229 €.Prenez contact avec Céline VALLÉE ((Numéro supprimé)) pour obtenir de plus amples renseignements sur cette maison ou sur les modalités de vente.
Thue et Mue
TERRAINVente Terrain 750m² Martragny (14740 – Moulin en Bessin)Chez Romain Propriétés Privées – Rare à la vente – Proche de toutes commodités.Terrain de 750m2, idéalement situé, hors lotissement.Ce dernier offre une belle opportunité pour votre projet de construction.Ce terrain est non viabilisé. Réseaux accessibles en bordure de rue.Opportunité idéale pour un projet de construction individuelle ou un investissement immobilier.Je vous propose ce terrain constructible au prix de 90 000.00 euros HAI dont 5,88% d’honoraires à charge acquéreur soit 85 000.00 euros net vendeur.Pour visiter et vous accompagner dans votre projet, contactez Romain MARIE, au (Numéro supprimé) ou, par courriel à (Email supprimé).Selon l’article L.561.5 du Code Monétaire et Financier, pour l’organisation de la visite, la présentation d’une pièce d’identité vous sera demandée.Cette présente annonce a été rédigée sous la responsabilité éditoriale de Romain MARIE agissant sous le statut d’agent commercial immatriculé au RSAC CAEN 888 838 166 auprès de SAS PROPRIETES PRIVEES, au capital de 44 920 euros, ZAC LE CHÊNE FERRÉ – 44 ALLÉE DES CINQ CONTINENTS 44120 VERTOU; SIRET 487 624 777 00040, RCS Nantes. Carte Professionnelle Transactions sur immeubles et fonds de commerce (T) et Gestion immobilière (G) n°CPI 4401 2016 000 010 388 délivrée par la CCI Nantes – Saint Nazaire. Compte séquestre n(Numéro supprimé)67 BPA SAINT-SEBASTIEN-SUR-LOIRE (44230). Garantie GALIAN-SMABTP – 89 rue de la Boétie, 75008 Paris – n°28137 J pour 2 000 000 euros pour T et 120 000 euros pour G. Assurance responsabilité civile professionnelle par GALIAN-SMABTP n° de police 28137.JMandat réf : 405182 – Le professionnel garantit et sécurise votre projet immobilier. (5.88 % honoraires TTC à la charge de l’acquéreur.) Romain MARIE (EI) Agent Commercial – Numéro RSAC : CAEN 888 838 166 – .
Thaon
TERRAINCaen NORDVENTE d’un terrain de 314 m² 517m² à ThaonEMPLACEMENT PRIVILÉGIÉ – PROCHE DE CAEN et LA MERA Thaon (14610), terrain de 314 m² à 517 m². Chaque terrain a été pensé par rapport à l’orientation. Ce petit lotissement se situe dans un secteur recherché. L’École Primaire Yvonne Guégan se trouve à moins de 10 minutes à pied. Nous vous proposons des terrains allant de 73 500 € jusqu’à 115000€. Reste encore quelques opportunités, venez vite pour choisir votre terrain. Contactez Séverine CHATARD ((Numéro supprimé)) pour toute question sur ce terrain, sur les modalités de vente ou sur les démarches à suivre.
Thaon
TERRAINThaon : terrain de 433 m² à vendreEMPLACEMENT PRIVILÉGIÉ – PROCHE DE CAENÀ Thaon (14610) en vente à 10 km de la Mer et à quelques kilomètres de Caen, découvrez ce terrain de 433 m². Il profite d’une vue sur rue. Dans un quartier recherché, le terrain bénéficiant d’un emplacement privilégié est proche des écoles et des commerces. Il y a l’École Primaire Yvonne Guégan à moins de 10 minutes à pied. Il y a un tennis, une boulangerie et une épicerie à quelques minutes.Ce terrain est proposé à l’achat pour 102 000 €. Contactez Séverine CHATARD (tél : (Numéro supprimé)) pour toute question sur le terrain ou sur les démarches à suivre.
L’actualité immobilière à Rots
27/11/2023
02/11/2023
30/10/2023
20/10/2023
16/10/2023
16/10/2023