Maison à construire à Saint-Pierre-sur-Dives (14170)
Images
Description
OSSATURE BOIS
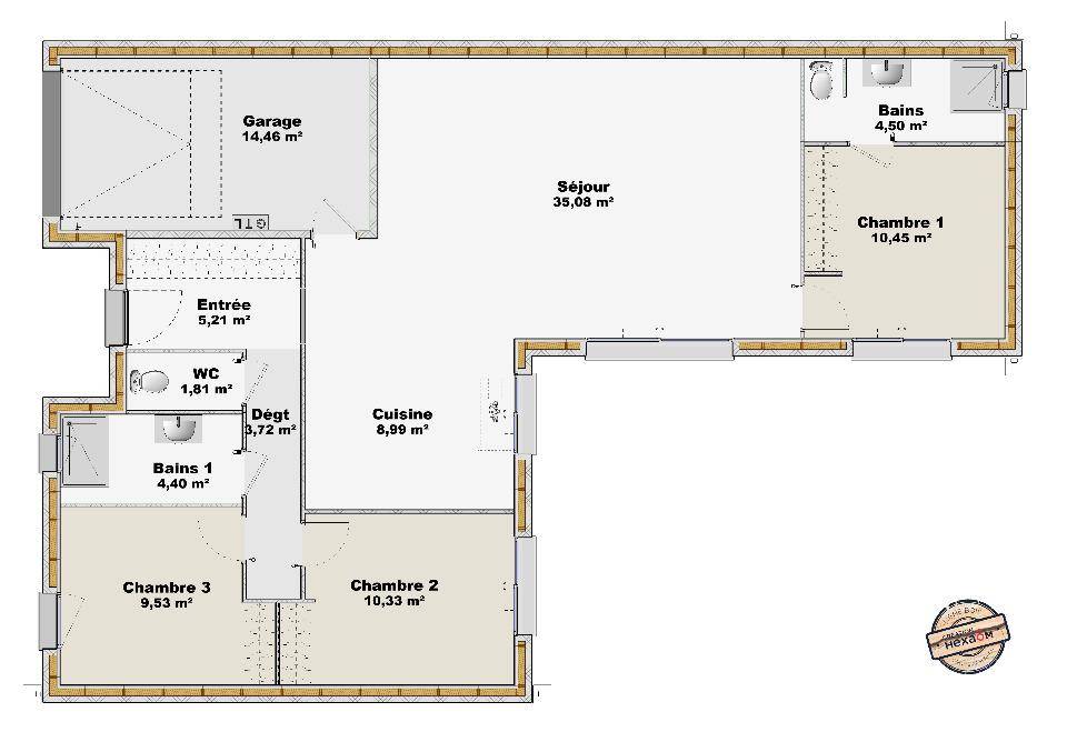
VENTE : maison T4 (94 m²) à Saint-Pierre-sur-Dives
EMPLACEMENT PRIVILÉGIÉ - MAISON 4 PIÈCES NEUVE
En vente : située à quelques kilomètres de Caen, nous vous présentons cette maison de 4 pièces de plain-pied de 94 m², bénéficiant d'un emplacement d'exception dans Saint-Pierre-sur-Dives (14170). Conçue de plain-pied, elle offre trois chambres, une cuisine et deux salles de bains.
Le terrain de cette maison est de 600 m².
La maison est neuve.
Cette maison se trouve dans un secteur convoité. Il y a l'École Élémentaire Privée Sainte Thérèse et le Collège Privé Sainte Thérèse à moins de 10 minutes à pied. Niveau transports en commun, on trouve la gare Saint-Pierre-sur-Dives juste à côté. La nationale N158 est accessible à 16 km. Il y a un bassin de natation, une bibliothèque, des commerces, des boulangeries, un supermarché, une supérette et un bureau de poste à proximité. Enfin, le marché Place du marché anime les environs chaque lundi matin.
Elle est à vendre pour la somme de 249 900 €.
Contactez notre agence (CUVILLIERS Angélique : (Numéro supprimé)) pour plus d'informations sur la propriété.
Concrétisez vos projets immobiliers avec EXTRACO Construction Rénovation Pont-l'Évêque.
Logement susceptibles de vous intéresser
Nous vous proposons de découvrir aussi cette sélection de logements situés à moins de 10km de Saint-Pierre-en-Auge et qui seraient susceptibles de vous intéresser.
Saint-Pierre-en-Auge
TERRAIN ET MAISONSaint-Pierre-sur-Dives : maison T5 (85 m²) en venteEMPLACEMENT PRIVILÉGIÉ – MAISON 5 PIÈCES NEUVEEn vente à 31 km de Caen, votre agence EXTRACO Construction Rénovation Pont-l’Évêque est ravie de vous présenter cette maison de 5 pièces de 85 m² bénéficiant d’un emplacement privilégié dans Saint-Pierre-sur-Dives (14170).Cette maison possède 2 niveaux. Elle comporte quatre chambres, une cuisine et deux salles de bains. Cette maison est neuve.Le terrain de la propriété s’étend sur 600 m².La maison se situe dans un secteur attractif. L’École Élémentaire Privée Sainte Thérèse et le Collège Privé Sainte Thérèse sont implantés à moins de 10 minutes à pied. Côté transports, il y a la gare Saint-Pierre-sur-Dives dans les alentours. Il y a un accès à la nationale N158 à 16 km. On trouve un bassin de natation, une bibliothèque, des commerces, des boulangeries, un supermarché, un bureau de poste et une poissonnerie à proximité du bien. Enfin, le marché Place du marché a lieu tous les lundis matin.Elle est proposée à l’achat pour 194 500 €.N’hésitez pas à prendre contact avec Angélique CUVILLIERS (tél : (Numéro supprimé)) pour tout renseignement sur la maison, sur les démarches à suivre ou sur les modalités de vente.
Saint-Pierre-en-Auge
TERRAINVENTE d’un terrain de 600 m² à Saint-Pierre-sur-DivesEMPLACEMENT PRIVILÉGIÉ – PROCHE DE CAENÀ Saint-Pierre-sur-Dives (14170) à deux pas de Caen, imaginez la maison de vos rêves sur ce terrain de 600 m². Il y a l’École Élémentaire Privée Sainte Thérèse et le Collège Privé Sainte Thérèse à moins de 10 minutes à pied. Côté transports, on trouve la gare Saint-Pierre-sur-Dives dans un rayon de 1 km. Il y a un accès à la nationale N158 à 16 km. Il y a un bassin de natation, une bibliothèque, des commerces, des boulangeries, un supermarché, un bureau de poste et une supérette à quelques minutes à peine. Enfin, le marché Place du marché a lieu tous les lundis matin.Son prix de vente est de 48 000 €. N’hésitez pas à prendre contact avec notre agence (Angélique CUVILLIERS : (Numéro supprimé)) pour plus de renseignements sur le terrain ou sur les modalités de vente.
Saint-Pierre-en-Auge
TERRAIN ET MAISONMaison T5 (92 m²) en vente à Saint-Pierre-sur-DivesEMPLACEMENT PRIVILÉGIÉ – MAISON 5 PIÈCES NEUVEÀ vendre : située à quelques kilomètres de Caen, EXTRACO Construction Rénovation Pont-l’Évêque vous présente cette maison de 5 pièces de plain-pied de 92 m² et de 600 m² de terrain bénéficiant d’un emplacement d’exception dans Saint-Pierre-sur-Dives (14170). Conçue de plain-pied, elle compte quatre chambres, une cuisine et une salle de bains.La maison est neuve.La maison se situe dans un quartier recherché. On trouve l’École Élémentaire Privée Sainte Thérèse et le Collège Privé Sainte Thérèse à moins de 10 minutes à pied. Côté transports, il y a la gare Saint-Pierre-sur-Dives juste à côté. On trouve un accès à la nationale N158 à 16 km. On trouve un bassin de natation, une bibliothèque, des commerces, des boulangeries, un supermarché, une supérette et une poissonnerie dans les environs. Le marché Place du marché a lieu tous les lundis matin.Son prix de vente est de 199 900 €.Contactez Angélique CUVILLIERS (tél : (Numéro supprimé)) pour tout renseignement sur le bien ou sur les modalités de vente.
Saint-Pierre-en-Auge
TERRAIN ET MAISONVENTE : maison de 4 pièces (88 m²) à Saint-Pierre-sur-DivesEMPLACEMENT PRIVILÉGIÉ – MAISON 4 PIÈCES NEUVEÀ vendre : à deux pas de Caen, bénéficiant d’un emplacement d’exception dans Saint-Pierre-sur-Dives (14170), nous vous proposons cette maison de 4 pièces de 88 m². Elle propose trois chambres, une cuisine et une salle de bains.Le terrain du bien s’étend sur 600 m².Il s’agit d’une maison de 2 niveaux. Elle est neuve.Cette maison se situe dans un quartier attractif. L’École Élémentaire Privée Sainte Thérèse et le Collège Privé Sainte Thérèse sont implantés à moins de 10 minutes à pied. Niveau transports, il y a la gare Saint-Pierre-sur-Dives à quelques pas du bien. Il y a un accès à la nationale N158 à 16 km. On trouve un bassin de natation, une bibliothèque, des commerces, des boulangeries, un supermarché, des boucheries-charcuteries et une poissonnerie à quelques minutes de la maison. Enfin, le marché Place du marché anime les environs chaque lundi matin.Son prix de vente est de 203 400 €.N’hésitez pas à prendre contact avec notre agence (Angélique CUVILLIERS : (Numéro supprimé)) pour tout renseignement sur la maison ou sur les modalités de vente. EXTRACO Construction Rénovation Pont-l’Évêque est là pour vous accompagner à toutes les étapes de votre projet.
Saint-Pierre-en-Auge
TERRAIN ET MAISONOSSATURE BOIS VENTE : maison T4 (94 m²) à Saint-Pierre-sur-DivesEMPLACEMENT PRIVILÉGIÉ – MAISON 4 PIÈCES NEUVEEn vente : située à quelques kilomètres de Caen, nous vous présentons cette maison de 4 pièces de plain-pied de 94 m², bénéficiant d’un emplacement d’exception dans Saint-Pierre-sur-Dives (14170). Conçue de plain-pied, elle offre trois chambres, une cuisine et deux salles de bains.Le terrain de cette maison est de 600 m².La maison est neuve.Cette maison se trouve dans un secteur convoité. Il y a l’École Élémentaire Privée Sainte Thérèse et le Collège Privé Sainte Thérèse à moins de 10 minutes à pied. Niveau transports en commun, on trouve la gare Saint-Pierre-sur-Dives juste à côté. La nationale N158 est accessible à 16 km. Il y a un bassin de natation, une bibliothèque, des commerces, des boulangeries, un supermarché, une supérette et un bureau de poste à proximité. Enfin, le marché Place du marché anime les environs chaque lundi matin.Elle est à vendre pour la somme de 249 900 €.Contactez notre agence (CUVILLIERS Angélique : (Numéro supprimé)) pour plus d’informations sur la propriété. Concrétisez vos projets immobiliers avec EXTRACO Construction Rénovation Pont-l’Évêque.
Mézidon Vallée d'Auge
TERRAINTerrain à Bâtir de 2445m² non viabilisé proche tout à l’égoutlibre constructeur vendu au prix 96000 euros cc à charge vendeurDPE? GES? non soumisPour visiter et vous accompagner dans votre projet, contactez Bernard MARGUERITE, au (Numéro supprimé) ou, par courriel à (Email supprimé).Selon l’article L.561.5 du Code Monétaire et Financier, pour l’organisation de la visite, la présentation d’une pièce d’identité vous sera demandée.Cette présente annonce a été rédigée sous la responsabilité éditoriale de Bernard MARGUERITE agissant en qualité de conseiller immobilier indépendant sous portage salarial auprès de SAS PROPRIETES PRIVEES, au capital de 44 920 euros, ZAC LE CHÊNE FERRÉ – 44 ALLÉE DES CINQ CONTINENTS 44120 VERTOU; SIRET 487 624 777 00040, RCS Nantes. Carte Professionnelle Transactions sur immeubles et fonds de commerce (T) et Gestion immobilière (G) n°CPI 4401 2016 000 010 388 délivrée par la CCI Nantes – Saint Nazaire. Compte séquestre n(Numéro supprimé)67 BPA SAINT-SEBASTIEN-SUR-LOIRE (44230). Garantie GALIAN-SMABTP – 89 rue de la Boétie, 75008 Paris – n°28137 J pour 2 000 000 euros pour T et 120 000 euros pour G. Assurance responsabilité civile professionnelle par GALIAN-SMABTP n° de police 28137.JMandat réf : 428383 – Le professionnel garantit et sécurise votre projet immobilier.Les informations sur les risques auxquels ce bien est exposé sont disponibles sur le site Géorisques : www. georisques. gouv. fr
Mézidon Vallée d'Auge
TERRAINTerrain à bâtir de 1121m² non viabilisé tout à égout prochelibre constructeur vendu au prix de 51 000 euroscc à charge vendeurPour visiter et vous accompagner dans votre projet, contactez Bernard MARGUERITE, au (Numéro supprimé) ou, par courriel à (Email supprimé).Selon l’article L.561.5 du Code Monétaire et Financier, pour l’organisation de la visite, la présentation d’une pièce d’identité vous sera demandée.Cette présente annonce a été rédigée sous la responsabilité éditoriale de Bernard MARGUERITE agissant en qualité de conseiller immobilier indépendant sous portage salarial auprès de SAS PROPRIETES PRIVEES, au capital de 44 920 euros, ZAC LE CHÊNE FERRÉ – 44 ALLÉE DES CINQ CONTINENTS 44120 VERTOU; SIRET 487 624 777 00040, RCS Nantes. Carte Professionnelle Transactions sur immeubles et fonds de commerce (T) et Gestion immobilière (G) n°CPI 4401 2016 000 010 388 délivrée par la CCI Nantes – Saint Nazaire. Compte séquestre n(Numéro supprimé)67 BPA SAINT-SEBASTIEN-SUR-LOIRE (44230). Garantie GALIAN-SMABTP – 89 rue de la Boétie, 75008 Paris – n°28137 J pour 2 000 000 euros pour T et 120 000 euros pour G. Assurance responsabilité civile professionnelle par GALIAN-SMABTP n° de police 28137.JMandat réf : 428385- Le professionnel garantit et sécurise votre projet immobilier.
Mézidon Vallée d'Auge
TERRAINPour votre futur projet voici un beau terrain à bâtir de 1324m²vendu au prix de 53 000 euros cc honoraires charge vendeurPour visiter et vous accompagner dans votre projet, contactez Bernard MARGUERITE, au (Numéro supprimé) ou, par courriel à (Email supprimé).Selon l’article L.561.5 du Code Monétaire et Financier, pour l’organisation de la visite, la présentation d’une pièce d’identité vous sera demandée.Cette présente annonce a été rédigée sous la responsabilité éditoriale de Bernard MARGUERITE agissant en qualité de conseiller immobilier indépendant sous portage salarial auprès de SAS PROPRIETES PRIVEES, au capital de 44 920 euros, ZAC LE CHÊNE FERRÉ – 44 ALLÉE DES CINQ CONTINENTS 44120 VERTOU; SIRET 487 624 777 00040, RCS Nantes. Carte Professionnelle Transactions sur immeubles et fonds de commerce (T) et Gestion immobilière (G) n°CPI 4401 2016 000 010 388 délivrée par la CCI Nantes – Saint Nazaire. Compte séquestre n(Numéro supprimé)67 BPA SAINT-SEBASTIEN-SUR-LOIRE (44230). Garantie GALIAN-SMABTP – 89 rue de la Boétie, 75008 Paris – n°28137 J pour 2 000 000 euros pour T et 120 000 euros pour G. Assurance responsabilité civile professionnelle par GALIAN-SMABTP n° de police 28137.JMandat réf : 428384- Le professionnel garantit et sécurise votre projet immobilier.Les informations sur les risques auxquels ce bien est exposé sont disponibles sur le site Géorisques : www. georisques. gouv. fr
Mézidon Vallée d'Auge
TERRAIN ET MAISONMaisons France Confort vous propose ce plain pied composé :d’une entrée avec placard, une pièce de vie de 40m², un espace nuit avec 3 chambres et une salle de bain.Vous souhaitez étudier un projet de maison, merci de prendre rdv au (Numéro supprimé) Angélique Vaudry
L’actualité immobilière à Saint-Pierre-en-Auge
27/11/2023
02/11/2023
30/10/2023
20/10/2023
16/10/2023
16/10/2023