Maison à construire à Saint-André-d'Hébertot (14130)
Images
Description
VENTE d'une maison T5 (76 m²) à Saint-André-d'Hébertot
MAISON 5 PIÈCES NEUVE - PROCHE DU HAVRE
À vendre à 13 km de la Manche et à 25 km du Havre, laissez vous charmer par cette maison de 5 pièces de 76 m² et de 616 m² de terrain à Saint-André-d'Hébertot (14130).
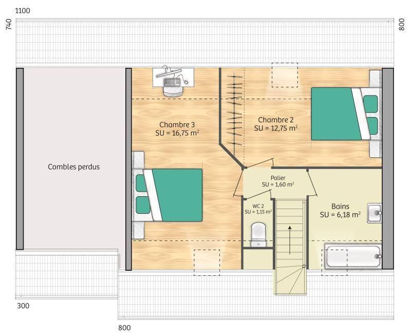
Cette maison comporte 2 niveaux. Elle propose trois chambres, une cuisine et une salle de bains. La maison est neuve.
Il y a une école primaire dans le quartier. Côté transports, on trouve la gare Pont-l'Évêque à moins de 10 minutes en voiture. Les autoroutes A13, A132 et A29 sont accessibles à moins de 8 km. Il y a deux commerces à proximité de la maison.
Son prix de vente est de 223 873 €.
Prenez contact avec notre agence (LEMONNIER Aurélien : (Numéro supprimé)) pour plus d'informations sur cette maison ou sur les modalités de vente. Maisons France Confort Deauville vous accompagne dans tous vos projets immobiliers et dans toutes vos démarches.
Logement susceptibles de vous intéresser
Nous vous proposons de découvrir aussi cette sélection de logements situés à moins de 10km de Saint-André-d'Hébertot et qui seraient susceptibles de vous intéresser.
Le Brévedent
TERRAINLe Brévedent : terrain de 4 125 m² en venteIDÉALEMENT SITUÉAu Brévedent (14130), découvrez ce terrain de 4 125 m². Des établissements scolaires de tous types (de la maternelle au lycée) sont implantés à moins de 10 minutes en voiture. On trouve un accès à l’autoroute A13 à 10 km. On trouve des tennis, une bibliothèque, des commerces, des boulangeries, des supermarchés, deux supérettes et des boucheries-charcuteries à quelques minutes à peine. Ne manquez pas le marché Rue de l’Abbaye tous les vendredis matin.Il est à vendre pour la somme de 127 500 €. Contactez notre agence (Angélique CUVILLIERS : (Numéro supprimé)) pour toute information sur le terrain, sur les démarches à suivre ou sur les modalités de vente. EXTRACO Construction Rénovation Pont-l’Évêque vous accompagne à toutes les étapes de votre projet et dans tous vos projets immobiliers.
Pont-l'Évêque
TERRAINVENTE d’un terrain de 988 m² à Fierville-les-ParcsIDÉALEMENT SITUÉ À Fierville-les-Parcs (14130), projetez la maison de vos rêves sur ce terrain de 988 m². Il y a des établissements scolaires du primaire et du secondaire à moins de 10 minutes en voiture. Côté transports, on trouve la gare Pont-l’Évêque dans les alentours. Les autoroutes A13 et A132 sont accessibles à moins de 6 km. Il y a des tennis, deux bibliothèques, des boulangeries, des commerces, quatre supermarchés, une poissonnerie et quatre boucheries-charcuteries à quelques minutes. Le marché Place Foch anime les environs tous les lundis matin.Il est à vendre pour la somme de 92 000 €. N’hésitez pas à prendre contact avec notre agence (Angélique CUVILLIERS : (Numéro supprimé)) pour plus de renseignements sur ce terrain. EXTRACO Construction Rénovation Pont-l’Évêque est là pour vous accompagner dans toutes vos démarches.
Pont-l'Évêque
TERRAINVENTE d’un terrain de 988 m² à Fierville-les-ParcsIDÉALEMENT SITUÉ À Fierville-les-Parcs (14130), projetez la maison de vos rêves sur ce terrain de 988 m². Il y a des établissements scolaires du primaire et du secondaire à moins de 10 minutes en voiture. Côté transports, on trouve la gare Pont-l’Évêque dans les alentours. Les autoroutes A13 et A132 sont accessibles à moins de 6 km. Il y a des tennis, deux bibliothèques, des boulangeries, des commerces, quatre supermarchés, une poissonnerie et quatre boucheries-charcuteries à quelques minutes. Le marché Place Foch anime les environs tous les lundis matin.Il est à vendre pour la somme de 92 000 €. N’hésitez pas à prendre contact avec notre agence (Angélique CUVILLIERS : (Numéro supprimé)) pour plus de renseignements sur ce terrain. EXTRACO Construction Rénovation Pont-l’Évêque est là pour vous accompagner dans toutes vos démarches.
Pont-l'Évêque
TERRAINSaint-Hymer : terrain de 636 m² à vendreIDÉALEMENT SITUÉ À Saint-Hymer (14130), donnez vie à la maison de vos rêves sur ce terrain de 636 m². On trouve plusieurs établissements scolaires (maternelle, élémentaire, primaire et collège) à moins de 10 minutes en voiture. Côté transports en commun, il y a la gare Pont-l’Évêque à proximité. Les autoroutes A13 et A132 sont accessibles à moins de 5 km. On trouve trois bibliothèques, quatre tennis, des commerces, des boulangeries, quatre supermarchés, des épiceries et une poissonnerie à quelques minutes à peine. Enfin, le marché Place Foch anime le quartier tous les lundis matin.Son prix de vente est de 75 000 €. Contactez Angélique CUVILLIERS (tél : (Numéro supprimé)) pour toute information sur le terrain. EXTRACO Construction Rénovation Pont-l’Évêque est là pour vous accompagner dans toutes vos démarches.
Quetteville
TERRAINProche Quetteville : terrain de 800 m² à vendreIDÉALEMENT SITUÉ – VUE DÉGAGÉEProche Quetteville (14130), grand terrain. Réalisez-y la maison de vos rêves. Il profite d’une vue dégagée. Il y a l’École Élémentaire Jean Macé à moins de 10 minutes à pied. Les autoroutes A13, A29 et A132 sont accessibles à moins de 10 km.Son prix de vente est de 49 900 €. Contactez Angélique CUVILLIERS (tél : (Numéro supprimé)) pour toute information sur ce terrain. EXTRACO Construction Rénovation Pont-l’Évêque vous accompagne à toutes les étapes de votre projet et dans toutes vos démarches.
Le Brévedent
TERRAIN ET MAISONOSSATURE BOIS VENTE : maison T5 (113 m²) au BrévedentIDÉALEMENT SITUÉE – MAISON 5 PIÈCES NEUVEÀ vendre : idéalement située dans Le Brévedent (14130), découvrez cette maison de 5 pièces de plain-pied de 113 m². Son intérieur compte quatre chambres, une cuisine et deux salles de bains.Le terrain de la propriété est de 4 125 m².La maison est neuve.Cette maison est située dans un secteur attractif. Des écoles du primaire et du secondaire se trouvent à moins de 10 minutes en voiture. L’autoroute A13 est accessible à 10 km. Il y a des tennis, une bibliothèque, des commerces, des boulangeries, des supermarchés, quatre épiceries et des boucheries-charcuteries dans les environs. Enfin, le marché Rue de l’Abbaye anime le quartier chaque vendredi matin.Son prix de vente est de 343 500 €.Prenez contact avec notre agence (Angélique CUVILLIERS : (Numéro supprimé)) pour toute question sur la maison ou sur les démarches à suivre.
Le Brévedent
TERRAIN ET MAISONLe Brévedent : maison de 4 pièces (141 m²) à vendreIDÉALEMENT SITUÉE – MAISON 4 PIÈCES NEUVENous vous proposons cette maison de 4 pièces de 141 m² et de 4 125 m² de terrain idéalement située dans Le Brévedent (14130).C’est une maison de 2 niveaux. Elle comporte quatre chambres, une cuisine et deux salles de bains. La maison est neuve.Cette maison est située dans un secteur convoité. On trouve des écoles de tous types (de la maternelle au lycée) à moins de 10 minutes en voiture. L’autoroute A13 est accessible à 10 km. Il y a des tennis, une bibliothèque, des commerces, des boulangeries, des supermarchés, des boucheries-charcuteries et deux bureaux de poste dans les environs. Le marché Rue de l’Abbaye a lieu chaque vendredi matin.Elle est à vendre pour la somme de 386 700 €.Contactez notre agence (Angélique CUVILLIERS : (Numéro supprimé)) pour toute information sur la maison. Concrétisez vos projets immobiliers avec Ouverture du talus pour création de deux accès, comprenant dessouchage d’arbres et évacuation de terre Pont-l’Évêque.
Le Brévedent
TERRAIN ET MAISONVENTE : maison de 6 pièces (132 m²) au BrévedentIDÉALEMENT SITUÉE – MAISON 6 PIÈCES NEUVEEn vente : nous vous présentons, idéalement située dans Le Brévedent (14130), cette maison de 6 pièces de 132 m² et de 4 125 m² de terrain.C’est une maison de 2 niveaux. Son intérieur se divise en cinq chambres, une cuisine et deux salles de bains. Cette maison est neuve.Le bien se situe dans un secteur convoité. Des écoles (de la maternelle au lycée) se trouvent à moins de 10 minutes en voiture. L’autoroute A13 est accessible à 10 km. Il y a des tennis, une bibliothèque, des commerces, des boulangeries, des supermarchés, deux supérettes et deux bureaux de poste à proximité du logement. Le marché Rue de l’Abbaye anime les environs chaque vendredi matin.Il est à vendre pour la somme de 348 700 €.Prenez contact avec notre agence (CUVILLIERS Angélique : (Numéro supprimé)) pour tout renseignement sur la maison, sur les démarches à suivre ou sur les modalités de vente.
Le Brévedent
TERRAIN ET MAISONMaison de 4 pièces (98 m²) en vente au BrévedentIDÉALEMENT SITUÉE – MAISON 4 PIÈCES NEUVEEn vente : venez découvrir, idéalement située dans Le Brévedent (14130), cette maison de 4 pièces de plain-pied de 98 m².Elle dispose de trois chambres, d’une cuisine et d’une salle de bains. La maison est neuve.Le terrain de la propriété est de 4 125 m².Cette maison est située dans un secteur recherché. Tous les types d’établissements scolaires (maternelle, élémentaire et secondaire) se trouvent à moins de 10 minutes en voiture. L’autoroute A13 est accessible à 10 km. Il y a des tennis, une bibliothèque, des commerces, des boulangeries, des supermarchés, deux supérettes et deux bureaux de poste à proximité. Ne manquez pas le marché Rue de l’Abbaye chaque vendredi matin.Elle est proposée à l’achat pour 296 700 €.Contactez Angélique CUVILLIERS ((Numéro supprimé)) pour obtenir de plus amples informations sur le bien ou sur les modalités de vente. Faites de vos projets immobiliers une réalité avec Ouverture du talus pour création de deux accès, comprenant dessouchage d’arbres et évacuation de terre Pont-l’Évêque.
L’actualité immobilière à Saint-André-d'Hébertot
27/11/2023
02/11/2023
30/10/2023
20/10/2023
16/10/2023
16/10/2023