Maison à construire à Saint-André-sur-Orne (14320)
Images
Description
Saint-André-sur-Orne : maison F5 (80 m²) à vendre
PROCHE DE CAEN - MAISON 5 PIÈCES NEUVE
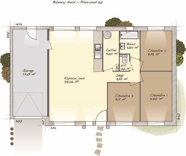
À vendre à 23 km des plages de Ouistreham et à 8 km du centre-ville de Caen, à Saint-André-sur-Orne (14320), notre agence Maisons Balency Caen est ravie de vous présenter cette maison de 5 pièces de plain-pied de 80 m². Son intérieur offre trois chambres, une cuisine et une salle de bains.
Le terrain du bien est de 350 m².
La maison est neuve.
On trouve l'École Élémentaire René Goscinny et l'École Maternelle Jacques Prévert à moins de 10 minutes à pied. Niveau transports, la commune est desservie par les bus de ville TWISTO, on trouve les gares Caen et Frénouville-Cagny à moins de 10 minutes en voiture. Les autoroutes A84 et A13 et les nationales N814, N158 et N13 sont accessibles à moins de 10 km.
Il y a un gymnase omnisport, un city stade, une bibliothèque, des commerces, deux supermarchés, une boulangerie, un bureau de poste et deux boucheries-charcuteries dans les environs.
Son prix de vente est de 256 900 €.
Contactez notre constructeur (UCENDO Sophie : (Numéro supprimé)) pour toute information sur cette maison ou sur les modalités de vente. Maisons Balency Caen est là pour vous accompagner dans tous vos projets immobiliers.
Logement susceptibles de vous intéresser
Nous vous proposons de découvrir aussi cette sélection de logements situés à moins de 10km de Saint-André-sur-Orne et qui seraient susceptibles de vous intéresser.
Cagny
TERRAINVENTE d’un terrain de 447 m² à CagnyIDÉALEMENT SITUÉ – VUE SANS VIS-À-VISÀ Cagny (14630) à 15 km de la Manche et à 9 km de Caen, venez découvrir ce terrain de 447 m². Ce terrain, sans vis-à-vis, est orienté au sud. Dans un quartier prisé, ce terrain idéalement situé est proche des écoles et des commerces. On trouve une école primaire dans la commune. Côté transports en commun, il y a la gare Frénouville-Cagny à moins de 10 minutes à pied. L’autoroute A13 et les nationales N814 et N158 sont accessibles à moins de 6 km. On trouve un tennis, deux boulangeries, quatre commerces, un bureau de poste, une épicerie et une boucherie-charcuterie à quelques minutes de la propriété.Ce terrain est proposé à l’achat pour 82 500 €. Prenez contact avec notre agence (DUCHESNE Kevin : (Numéro supprimé)) pour tout renseignement sur le terrain. Concrétisez vos projets immobiliers avec Maisons France Confort Caen.
Cagny
TERRAIN ET MAISONVENTE d’une maison de 3 pièces (76 m²) à CagnyIDÉALEMENT SITUÉE – MAISON 3 PIÈCES NEUVEÀ vendre : située à 15 km de la Manche et à 9 km de Caen, Maisons France Confort Caen vous propose, idéalement située dans Cagny (14630), cette maison de 3 pièces de 76 m² et de 447 m² de terrain sans vis-à-vis. Elle compte trois chambres, une cuisine et trois salles de bains.C’est une maison de plain-pied. Elle est neuve.Cette maison se situe dans un quartier prisé. Une école primaire y est implantée. Niveau transports en commun, on trouve la gare Frénouville-Cagny à moins de 10 minutes à pied. L’autoroute A13 et les nationales N814 et N158 sont accessibles à moins de 6 km. Il y a un tennis, deux boulangeries, quatre commerces, une épicerie, un bureau de poste et une boucherie-charcuterie dans les environs.Elle est proposée à l’achat pour 269 000 €.Prenez contact avec notre agence (Kevin DUCHESNE : (Numéro supprimé)) pour plus d’informations sur la maison, sur les modalités de vente ou sur les démarches à suivre. Donnez vie à vos projets immobiliers avec Maisons France Confort Caen.
Cagny
TERRAIN ET MAISONCagny : maison F5 (80 m²) en venteIDÉALEMENT SITUÉE – MAISON 5 PIÈCES NEUVEÀ vendre : à 15 km de la Manche et à quelques kilomètres de Caen, nous vous présentons cette maison de 5 pièces de 80 m² idéalement située dans Cagny (14630).Il s’agit d’une maison de 2 niveaux. Elle comporte trois chambres, une cuisine et une salle de bains. La maison est neuve.Le terrain de la propriété est de 447 m².Cette maison se situe dans un secteur recherché. Une école primaire y est implantée. Côté transports, on trouve la gare Frénouville-Cagny à moins de 10 minutes à pied. L’autoroute A13 et les nationales N814 et N158 sont accessibles à moins de 6 km. Il y a un tennis, deux boulangeries, quatre commerces, un bureau de poste, une boucherie-charcuterie et une épicerie dans les environs.Son prix de vente est de 289 000 €.Prenez contact avec notre agence (DUCHESNE Kevin : (Numéro supprimé)) pour obtenir de plus amples renseignements sur la maison ou sur les démarches à suivre.
Cagny
TERRAIN ET MAISONCagny : maison F5 (90 m²) en venteIDÉALEMENT SITUÉE – MAISON 5 PIÈCES NEUVEEn vente : à 15 km de la Manche et à quelques kilomètres de Caen, Maisons France Confort Caen vous propose, idéalement située dans Cagny (14630), cette maison de 5 pièces de 90 m² et de 447 m² de terrain. Elle propose trois chambres, une cuisine et une salle de bains.C’est une maison de 2 niveaux. Elle est neuve.Cette maison se situe dans un quartier convoité. On y trouve une école primaire. Niveau transports, on trouve la gare Frénouville-Cagny à moins de 10 minutes à pied. L’autoroute A13 et les nationales N814 et N158 sont accessibles à moins de 6 km. Il y a un tennis, deux boulangeries, quatre commerces, un bureau de poste, une épicerie et une boucherie-charcuterie dans les environs.Elle est proposée à l’achat pour 295 000 €.Contactez notre agence (DUCHESNE Kevin : (Numéro supprimé)) pour obtenir de plus amples informations sur la maison ou sur les démarches à suivre. Maisons France Confort Caen est là pour vous accompagner dans tous vos projets immobiliers.
Cagny
TERRAIN ET MAISONCagny : maison de 4 pièces (82 m²) à vendreIDÉALEMENT SITUÉE – MAISON 4 PIÈCES NEUVEÀ 15 km de la Manche et à quelques kilomètres de Caen, nous vous proposons cette maison de 4 pièces de 82 m² idéalement située dans Cagny (14630).Cette maison comporte 2 niveaux. Son intérieur est composé de trois chambres, d’une cuisine et d’une salle de bains. La maison est neuve.Le terrain de la propriété est de 447 m².La maison est située dans un secteur convoité. Une école primaire y est implantée. Côté transports, on trouve la gare Frénouville-Cagny à moins de 10 minutes à pied. L’autoroute A13 et les nationales N814 et N158 sont accessibles à moins de 6 km. Il y a un tennis, deux boulangeries, quatre commerces, une boucherie-charcuterie, une épicerie et un bureau de poste dans les environs.Son prix de vente est de 272 000 €.Contactez notre agence (Kevin DUCHESNE : (Numéro supprimé)) pour toute question sur le bien ou sur les démarches à suivre.
Cagny
TERRAIN ET MAISONVENTE : maison de 7 pièces (120 m²) à CagnyIDÉALEMENT SITUÉE – MAISON 7 PIÈCES NEUVEÀ 15 km de la Manche et à quelques kilomètres de Caen, nous vous proposons à vendre, idéalement située dans Cagny (14630), cette maison de 7 pièces de 120 m². Elle propose quatre chambres, une cuisine et deux salles de bains.Le terrain du bien s’étend sur 447 m².Cette maison compte 2 niveaux. Elle est neuve.Cette maison se situe dans un secteur attractif. Une école primaire y est implantée. Niveau transports en commun, il y a la gare Frénouville-Cagny à moins de 10 minutes à pied. L’autoroute A13 et les nationales N814 et N158 sont accessibles à moins de 6 km. On trouve un tennis, deux boulangeries, quatre commerces, une épicerie, un bureau de poste et une boucherie-charcuterie à proximité.Elle est proposée à l’achat pour 315 900 €.Contactez notre agence (Kevin DUCHESNE : (Numéro supprimé)) pour toute question sur la maison.
Mouen
TERRAINVENTE : terrain de 316 m² à MouenIDÉALEMENT SITUÉ – VUE SANS VIS-À-VISÀ Mouen (14790) en vente à 22 km de la Manche et à deux pas de Caen, découvrez ce terrain de 316 m². Ce terrain, sans vis-à-vis, est exposé plein sud. Il est situé dans un quartier prisé. Il y a l’École Élémentaire Pierre Herbet Mouen et l’École Maternelle Pierre Herbet Mouen à moins de 10 minutes à pied. Niveau transports en commun, on trouve deux gares (Bretteville-Norrey et Saint-Germain-en-Laye Bel-Air-Fourqueux T13) à moins de 10 minutes en voiture. L’autoroute A84 et les nationales N814 et N13 sont accessibles à moins de 6 km. Il y a une bibliothèque, une boulangerie et un commerce dans les environs.Son prix de vente est de 59 000 €. N’hésitez pas à prendre contact avec notre agence (Kevin DUCHESNE : (Numéro supprimé)) pour tout renseignement sur le terrain ou sur les démarches à suivre. Faites de vos projets immobiliers une réalité avec Maisons France Confort Caen.
Mouen
TERRAIN ET MAISONVENTE d’une maison T3 (76 m²) à MouenIDÉALEMENT SITUÉE – MAISON 3 PIÈCES NEUVEÀ 22 km de la Manche et à deux pas de Caen, en vente idéalement située dans Mouen (14790), Maisons France Confort Caen vous présente cette maison de 3 pièces de plain-pied de 76 m².Son intérieur inclut trois chambres, une cuisine et trois salles de bains. La maison est neuve.Le terrain de la propriété s’étend sur 316 m².Le bien est situé dans un secteur prisé. L’École Élémentaire Pierre Herbet Mouen et l’École Maternelle Pierre Herbet Mouen sont implantées à moins de 10 minutes à pied. Côté transports, on trouve deux gares (Bretteville-Norrey et Saint-Germain-en-Laye Bel-Air-Fourqueux T13) à moins de 10 minutes en voiture. L’autoroute A84 et les nationales N814 et N13 sont accessibles à moins de 6 km. Il y a une bibliothèque, une boulangerie et un commerce à proximité.Son prix de vente est de 229 000 €.Contactez Kevin DUCHESNE ((Numéro supprimé)) pour toute question sur la maison. Maisons France Confort Caen est là pour vous accompagner dans tous vos projets immobiliers.
Mouen
TERRAIN ET MAISONMaison de 4 pièces (82 m²) à vendre à MouenIDÉALEMENT SITUÉE – MAISON 4 PIÈCES NEUVEÀ vendre : à 22 km de la Manche et à deux pas de Caen, venez découvrir cette maison de 4 pièces de 82 m² et de 316 m² de terrain idéalement située dans Mouen (14790).C’est une maison de 2 niveaux. Elle inclut trois chambres, une cuisine et une salle de bains. Cette maison est neuve.La maison est située dans un secteur convoité. Il y a l’École Élémentaire Pierre Herbet Mouen et l’École Maternelle Pierre Herbet Mouen à moins de 10 minutes à pied. Côté transports en commun, on trouve deux gares (Bretteville-Norrey et Saint-Germain-en-Laye Bel-Air-Fourqueux T13) à moins de 10 minutes en voiture. L’autoroute A84 et les nationales N814 et N13 sont accessibles à moins de 6 km. Il y a une bibliothèque, une boulangerie et un commerce dans les environs.Son prix de vente est de 249 000 €.Contactez Kevin DUCHESNE (tél : (Numéro supprimé)) pour tout renseignement sur la propriété, sur les démarches à suivre ou sur les modalités de vente.
L’actualité immobilière à Saint-André-sur-Orne
27/11/2023
02/11/2023
30/10/2023
20/10/2023
16/10/2023
16/10/2023